Kingsbridge, Devon

Guide Price
£1,350,000

4 Bedroom Detached House for sale in Devon

1 4 3
  • Charming and characterful detached property
  • Superb rural location, close to the village of Churchstow
  • Immaculately presented throughout
  • Set in approximately 3 acres of gardens and paddocks
  • Double garage, long driveway, and ample parking
  • Wonderful countryside views
  • 3 useful outbuildings including 2 loose boxes
  • Walking distance to the village, Pub, Shop and Church

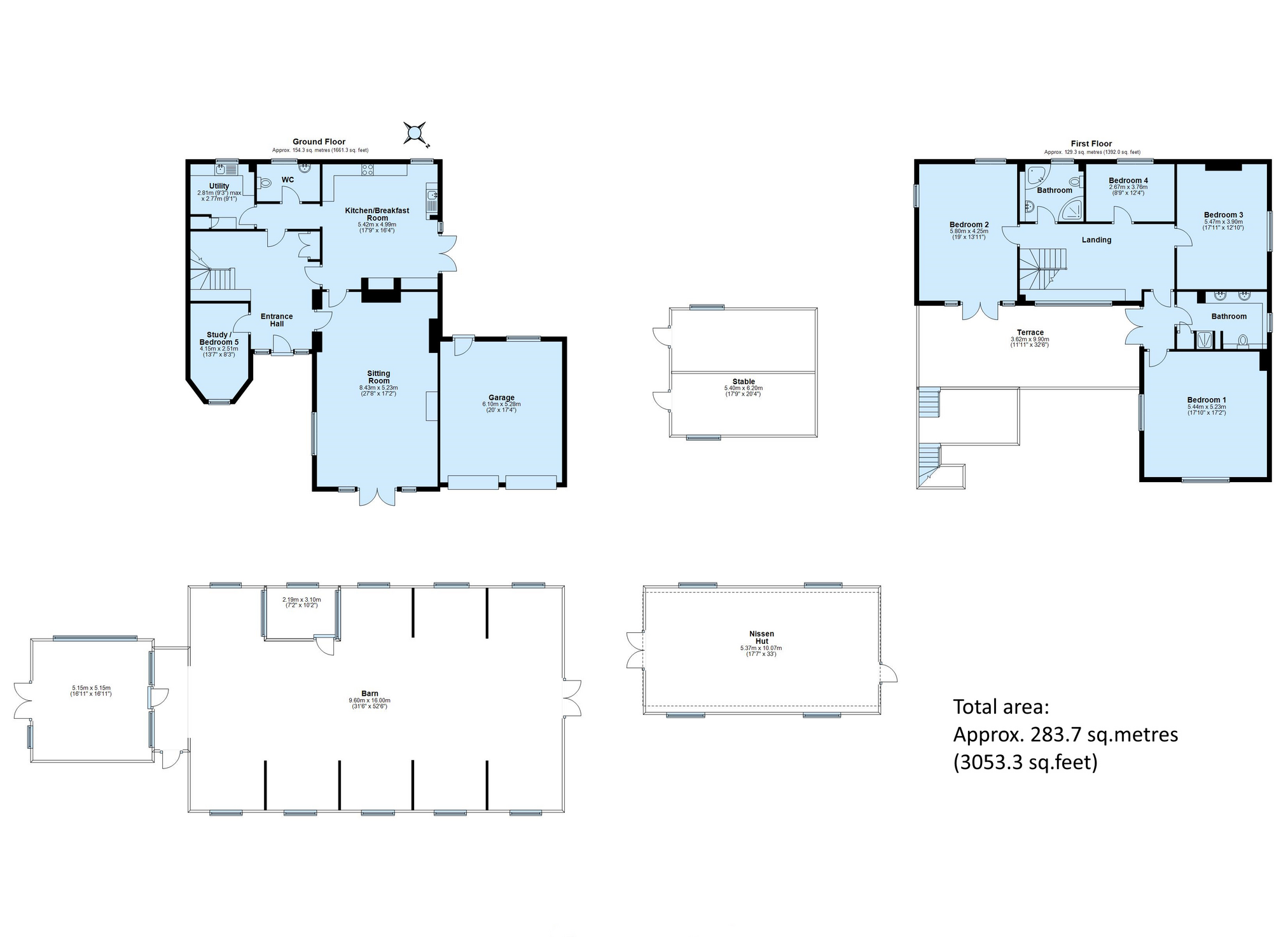
The Old Cyder Press is a wonderfully private and secluded property, boasting numerous character features and set within approximately three acres of gardens and paddocks, which include two loose box stables.

Originally built as a cyder press in the 1840s, the property was extended and fully refurbished around 2000 with additional updates since. The Old Cyder Press retains many character features, including original beams and exposed stone walls. In 2017, solar panels were installed, supplying much of the property’s electricity and an annual RHI payment.

Accommodation on the ground floor includes a bright double-height reception hall with feature brick flooring and a handmade oak staircase. This leads to a spacious triple aspect sitting room with a feature stone fireplace and multifuel stove, along with two sets of French doors, one leading to a front terrace and the other to a private side terrace. A large kitchen/diner with exposed beams and stone walls also offers access to a secluded terrace. Completing the ground floor are a utility room, a cloakroom, and a well-equipped study overlooking the grounds.

Ascending to the first-floor landing, which is wonderfully light and airy thanks to a full-height picture window, you will find doors leading to a generous decked sun terrace that overlooks the gardens, land, and surrounding countryside. The first floor accommodates a master bedroom with an en-suite bathroom, a second bedroom with access to the decked sun terrace, two additional bedrooms, and a family bathroom. The property is accessed via a sweeping tarmac driveway that crosses a natural stream, leading to an integral double garage along with a parking space for multiple vehicles. There are three practical outbuildings serving as workshops, a log store, and storage areas, all equipped with electricity and solar panels. Subject to planning, the outbuildings and adjoining paddock are certified residential and have potential for development.
Additionally, outside you’ll find a vegetable patch, and additional hardstanding provides further parking with access to the lane at the back.

Conveniently located just a short walk from the village of Churchstow, residents can enjoy amenities such as a shop, a Post Office, a church, and a pub, along with regular bus services to Kingsbridge, Totnes, and Plymouth. The town of Kingsbridge is only three miles away, offering a diverse array of shops, restaurants, two supermarkets, a cinema, a leisure center with indoor swimming, various sports and fitness facilities, a medical center, a community hospital, a library, and churches. The nearest beaches at Thurlestone and Bantham are just four miles away, while the picturesque sailing town of Salcombe is a mere seven miles distant.

Services
Solar Panels and mains electricity. Oil Central heating, mains sewage, private spring fed water. Bottled gas for cooker. Fibre broadband.

Fixtures and Fittings
All items in the written text of these particulars are included in the sale. All others are expressly excluded regardless of inclusion in any photographs. Purchasers must satisfy themselves that any equipment included in the sale of the property is in satisfactory order.

Viewing
Very strictly by appointment only through Marchand Petit Prime Waterfront & Country House Department. Tel: 01548 855590.

Important Information

  • This is a Freehold property.

Property Ref: 1357_XXP731722

Share:

Similar Properties

Thurlestone, Kingsbridge, Devon, TQ7

4 Bedroom Link Detached House | Guide Price £1,350,000

An outstanding beautifully presented detached Grade II listed cottage, set in a secluded private position in the middle...

Kingsbridge, Devon, TQ7

4 Bedroom Detached House | Guide Price £1,350,000

A substantial, detached, 4 bedroom family home situated in a glorious private and rural setting with grounds and paddock...

Alston, Holbeton

7 Bedroom Equestrian | Guide Price £1,350,000

Four bedroom home with 5.7 acres and stables. Lucrative three bedroom holiday cottage / annex providing income potential...

Edwards Close, Thurlestone

5 Bedroom Detached House | Guide Price £1,360,000

This impressive five-bedroom detached home is located within the sought-after development of The Mead Estate. The proper...

Yealm Road, Newton Ferrers

4 Bedroom Detached House | Guide Price £1,375,000

An exceptionally well presented property completed to an exceptionally high standard throughout, with panoramic and sout...

South Town, Dartmouth

4 Bedroom Not Specified | Guide Price £1,395,000

A beautifully presented elegant Grade ll Listed period house with magnificent views of the River Dart, in a wonderful po...

Marchand Petit (Kingsbridge)

94 Fore Street, Kingsbridge, Devon, TQ7 1PP

01548 857 588

How much is your home worth?

Use our short form to request a valuation of your property.

Request a Valuation

Mortgage Calculator

Amount Borrowed: £
Total Amount Repayable: £
Total Monthly Payment: £
©2025 The Guild of Property Professionals. All rights reserved. Terms and Conditions | Privacy Policy | Cookie Policy | Complaints Policy | Members Login
The Guild of Property Professionals Trading Address: 121 Park Lane, London W1K 7AG. GPEA Limited. Registered in England & Wales.  Company No: 02819824.  Registered Office Address: 2 St. Stephen's Court, St. Stephen's Road, Bournemouth, Dorset, England, BH2 6LA.  VAT Registration No: 576 8795 61
Book a Property Valuation Update Cookies Preferences