Lansdowne Close Dilton Marsh

Offers Over
£385,000

4 Bedroom Detached House for sale in Dilton Marsh

1 4 3
  • LOCATED IN A QUIET CUL-DE-SAC IN THE POPULAR VILLAGE OF DILTON MARSH
  • FOUR BEDROOM DETACHED HOME SET OVER THREE SPACIOUS FLOORS
  • A KITCHEN/DINER WITH SPACIOUS REAR SITTING ROOM
  • PRINCIPAL BEDROOM WITH EN-SUITE
  • THREE BATHROOMS
  • TWO TOP-FLOOR DOUBLE BEDROOMS – IDEAL FOR TEENAGERS OR GUESTS
  • DRIVEWAY PARKING AND SINGLE GARAGE
  • POPULAR VILLAGE LOCATION WITH GREAT ACCESS TO LOCAL AMENITIES, SCHOOLS, AND COUNTRYSIDE WALKS

Located in the popular village of Dilton Marsh is this wonderful four bedroom detached home. Set in an exclusive developmnent close to Dilton Marsh primary school and Dilton Marsh train station.

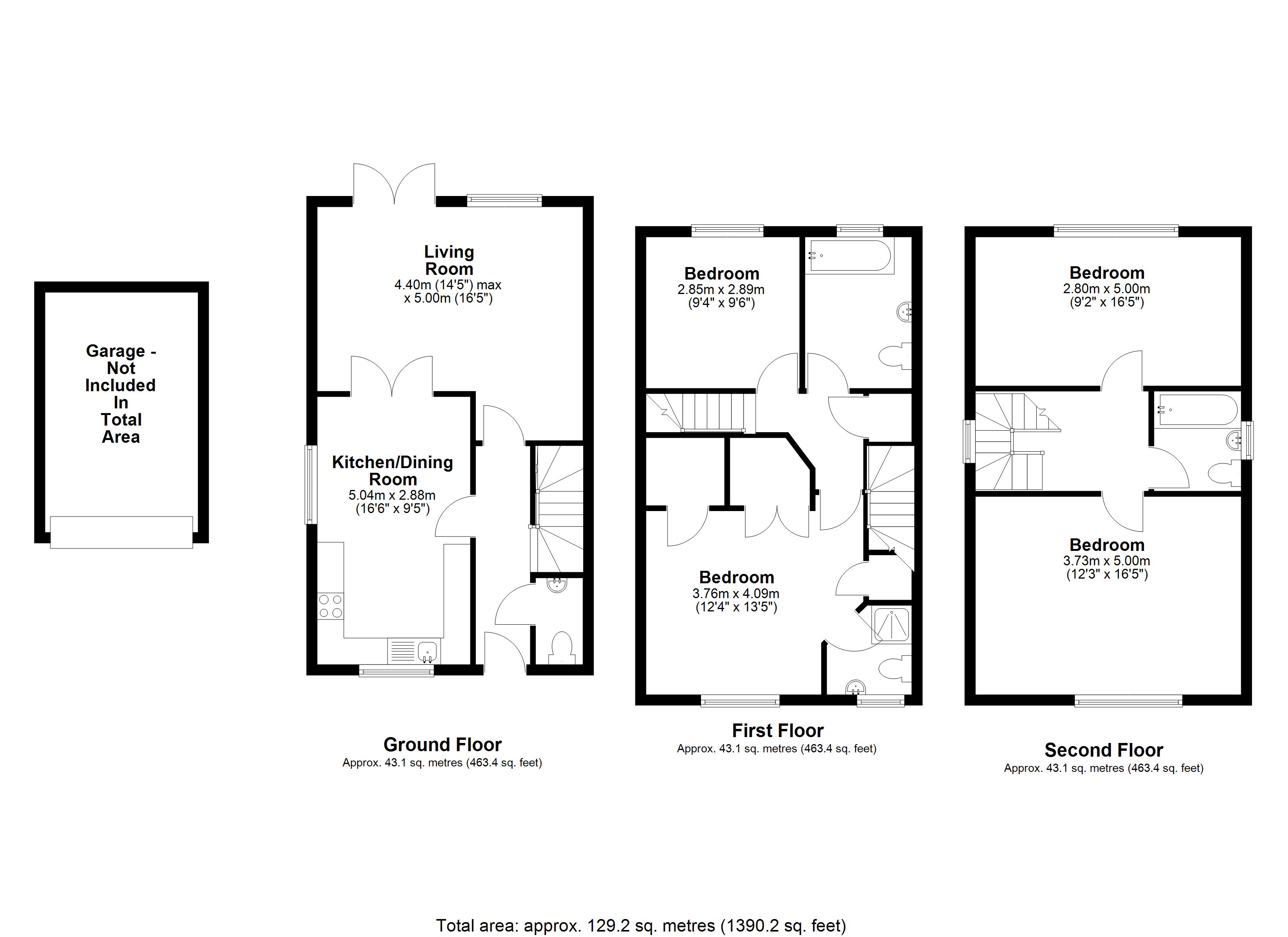
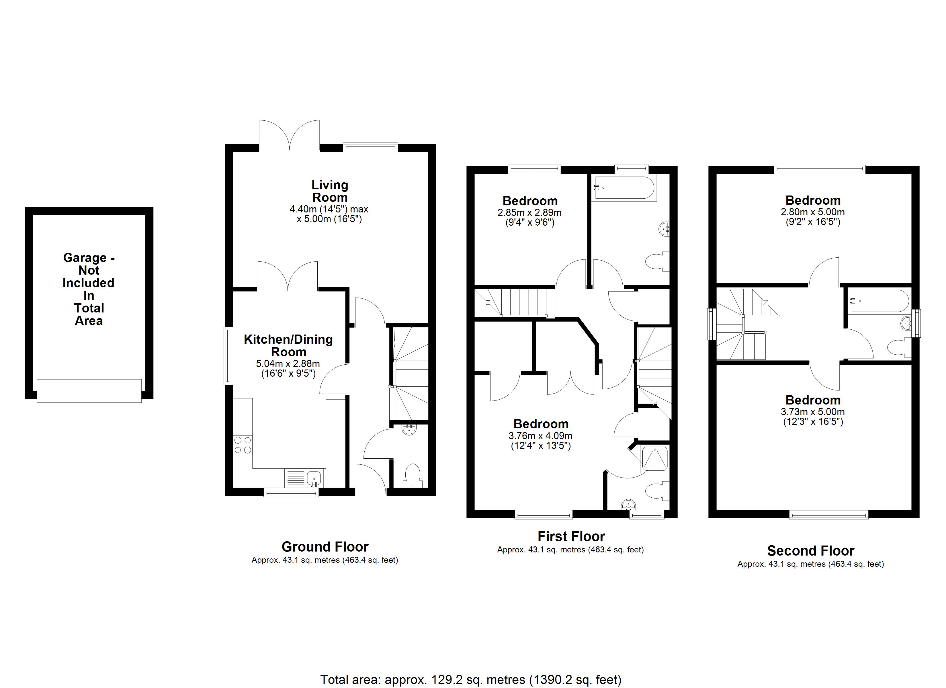
This beautifully presented four bedroom deatched home is offered to market with no onward chain. The property benefits from over 1200 sq ft of living space including four double bedrooms set over three floors.

The ground floor features a welcoming hallway, a convenient WC, and a spacious kitchen/dining room with plenty of storage and worktop space. To the rear, the bright and generously sized sitting room offers French doors that open directly onto the garden ideal for entertaining or relaxing with family and friends.

On the first floor, you'll find the principal bedroom with its own en-suite shower room, alongside a further double bedroom and a well-appointed family bathroom. As you make your way up to the second floor the property continues to impress with two generous double bedrooms and an additional bathroom, making it an ideal layout for guests or older children, alternatively it could be used as an office space.

Externally there is a garage and driveway parking for multiple cars. A spacious garden that has plenty of potentail to improve and put your own stamp on.

Important Information

  • This is a Freehold property.
  • EPC Rating is C

Property Ref: DDW_DDW250442

Share:

Similar Properties

Greenhill Place

4 Bedroom Semi-Detached House | Offers in excess of £385,000

A beautiful four bedroom semi detached home in the idyllic village of Codford St Peter, with far reaching views over adj...

Leighton Park Road Westbury Leigh

3 Bedroom Semi-Detached House | Asking Price £385,000

A stunning brand new semi detached family home situated in this fabulous location, close to beautiful open countryside,...

Freestone Grove Westbury

4 Bedroom Detached House | Offers Over £385,000

A modern four bedroom townhouse with three bathrooms including two ensuites and a landscaped garden, garage and driveway...

Lansdowne Close Dilton Marsh

4 Bedroom Detached House | Offers in excess of £400,000

Modern Four-Bedroom Detached Home in Popular Location, with Generous Garden & Garage

The Robins Frome

3 Bedroom Detached House | Guide Price £400,000

Attractive, brand new and ready to move in! A detached luxury home crafted by a local developer to a high specification,...

Shepherds Mead Dilton Marsh

5 Bedroom Detached House | Guide Price £425,000

Stunning 5/6-bedroom detached house in a charming village. This modern property boasts a beautiful garden and convenient...

Davies & Davies (Westbury)

Westbury, Wiltshire, BA13 3BW

01373 859 944

How much is your home worth?

Use our short form to request a valuation of your property.

Request a Valuation

Mortgage Calculator

Amount Borrowed: £
Total Amount Repayable: £
Total Monthly Payment: £
©2025 The Guild of Property Professionals. All rights reserved. Terms and Conditions | Privacy Policy | Cookie Policy | Complaints Policy | Members Login
The Guild of Property Professionals Trading Address: 121 Park Lane, London W1K 7AG. GPEA Limited. Registered in England & Wales.  Company No: 02819824.  Registered Office Address: 2 St. Stephen's Court, St. Stephen's Road, Bournemouth, Dorset, England, BH2 6LA.  VAT Registration No: 576 8795 61
Book a Property Valuation Update Cookies Preferences