9 The Generals Walk

Offers in region of
£209,950
SSTC
This property listing is now SSTC

3 Bedroom Semi-Detached House for sale in Donaghadee

1 3 1
  • Attractive Semi Detached Property with No Onward Chain
  • Popular and Highly Sought After Cul-de-Sac Location with Pedestrian Access onto the Commons at the End
  • Open Plan Living Room with Dining Area, Attractive Mahogany Fireplace and Open Fire
  • Fitted Kitchen
  • Conservatory with Double Glazed French Doors onto the Rear Garden
  • Three Bedrooms, Two of Which Have Views to the Irish Sea
  • Bathroom with Three Piece Suite
  • Phoenix Gas Heating
  • uPVC Double Glazed Windows
  • Front Garden in Lawns

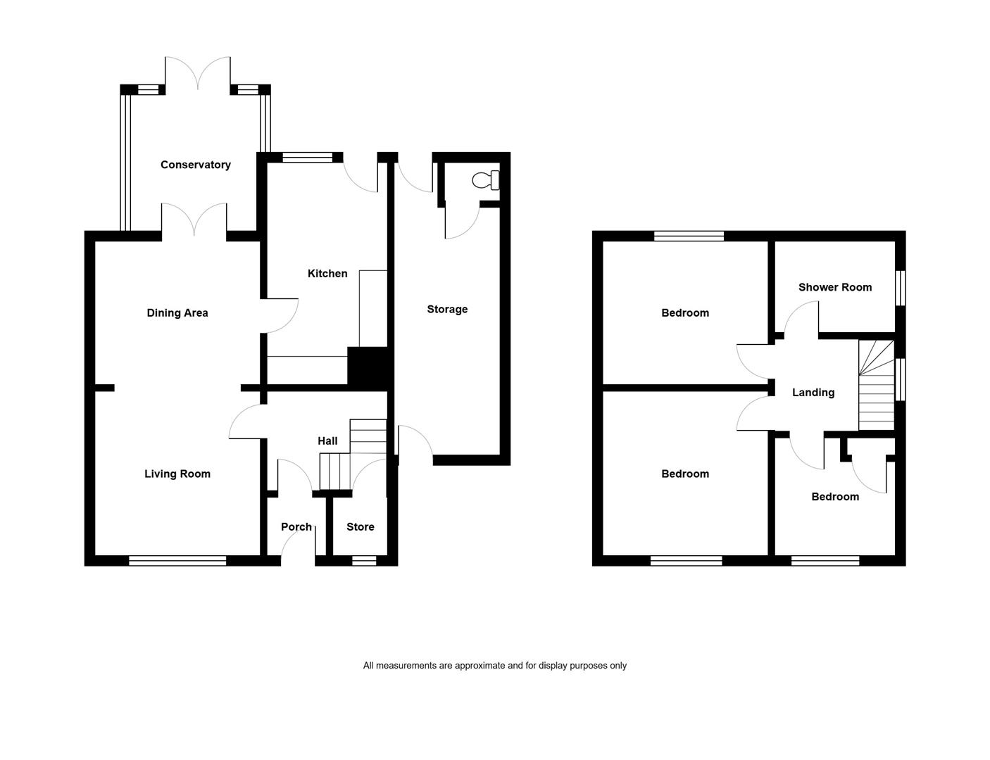
Located in a very popular cul-de-sac off Millisle Road here is an ideal opportunity to purchase a semi detached property with no onward chain and direct pedestrian access at the end of the cul-de-sac onto the Commons. Requiring some updating, this property offers huge potential and allows the lucky new owner to come in and put their own stamp on what will be a fantastic home.
The accommodation comprises open plan living room with dining area, attractive mahogany fireplace and open fire, kitchen and conservatory, on the ground floor. Upstairs there are three bedrooms, two of which have views to the Irish Sea, as well as a shower room. Outside you have a front garden in lawns, tarmac driveway with parking and outstanding fully enclosed rear garden in lawns with timber decked terrace and southerly aspect making it an ideal space for children at play, outdoor entertaining or enjoying the sun. It also provides ample room to extend subject to necessary approvals. Other benefits include Phoenix Gas heating, uPVC double glazed windows and detached large garden store with WC.
This property is conveniently positioned with easy access into Donaghadee's thriving town centre and its amenities such as shops, cafes, restaurants and, of course, the iconic lighthouse and harbour. Donaghadee also offers a range of activities for the sporting enthusiast which include sea swimming, sailing, hockey, golf, rugby, tennis, football, bowls and cricket. Demand is anticipated to be high and to a wide range of prospective purchasers including first time buyers, young professionals and families. A viewing is thoroughly recommended at your earliest opportunity so as to appreciate it in its entirety.

Ground Floor - () - uPVC double glazed front door to enclosed entrance porch.

Enclosed Entrance Porch: - () - Fully tiled floor, glazed internal door to reception hall.

Reception Hall: - () - Wooden floorboards, storage under stairs, cornice ceiling, cloakroom.

Open Plan Living Room With Dining Area: - (6.76m x 3.56m) - at widest points
Attractive carved mahogany fireplace, cast iron tiled inset, slate hearth, open fire, cornice ceiling, wooden floorboards.

Kitchen: - (4.78m x 2.44m) - at widest points
High and low level units, solid wooden work surfaces, one and a half bowl single drainer stainless steel sink unit with mixer tap, integrated oven, integrated four ring hob, tiled splashback, plumbed for washing machine, part tiled walls, uPVC double glazed door to rear garden.

Conservatory: - (2.97m x 2.74m) - Wooden floorboards, uPVC double glazed French doors to rear garden, aspect overlooking rear garden.

Stairs To First Floor - () -

Landing: - () - Access to roofspace.

Bedroom (1): - (3.56m x 3.56m) - at widest points
Views to Irish Sea and beyond to Scotland, wooden floorboards, cornice ceiling.

Bedroom (2): - (3.56m x 3.07m) - Wooden floorboards, cornice ceiling.

Bedroom (3): - (2.57m x 1.96m) - plus recess
Views to Irish Sea and beyond to Scotland, laminate wood effect floor, built-in wardrobe.

Shower Room: - () - Three piece suite comprising built-in fully tiled shower cubicle, pedestal wash hand basin, low flush WC.

Outside - () - Front garden in lawns, tarmac driveway with parking leading to attached garage.

Attached Garage - (6.45m x 2.29m) - at widest points
Currently used as large garden store, door to front, power and light, sink unit, low flush WC, gas fired boiler.

Outside. - () - Outstanding fully enclosed rear garden with lawns, timber decked terrace, paved patio areas, southerly aspect providing ample room to extend subject to necessary approvals, ideal space for children at play, outdoor entertaining or enjoying the sun.

Property Ref: 34013198

Share:

Similar Properties

41 Balmoral Road

3 Bedroom Semi-Detached House | Offers in region of £209,950

This beautifully finished semi-detached home, constructed in 2021 and benefiting from a 10-year structural warranty, off...

23 William Street

2 Bedroom End of Terrace House | Offers in region of £209,950

Located right in the heart of Donaghadee's thriving town centre here is an ideal opportunity to purchase an attractive e...

34 St. Annes Wood

3 Bedroom Town House | Offers in region of £208,500

John Minnis Estate Agents is thrilled to present 34 St Anne's Wood, an elegant and beautifully appointed home that effor...

2 Cotswold Drive

3 Bedroom Semi-Detached House | Offers in region of £214,950

.Attractive Semi Detached Property .No Onward Chain.Popular Residential Area.Good Size Living Room.Kitchen with Range of...

2E Cotswold Drive

3 Bedroom Semi-Detached House | Offers in region of £214,950

Located in this extremely popular residential area here is an ideal opportunity to purchase an attractive red brick semi...

7 Copeland Square

4 Bedroom Semi-Detached House | £214,950

An attractive semi detached property occupying a good site within this popular development of town houses, semi detached...

John Minnis Estate Agents (Donaghadee)

Donaghadee, County Down, BT21 0AG

028 9188 8881

How much is your home worth?

Use our short form to request a valuation of your property.

Request a Valuation

Mortgage Calculator

Amount Borrowed: £
Total Amount Repayable: £
Total Monthly Payment: £
©2026 The Guild of Property Professionals. All rights reserved. Terms and Conditions | Privacy Policy | Cookie Policy | Complaints Policy | Members Login
The Guild of Property Professionals Trading Address: 121 Park Lane, London W1K 7AG. GPEA Limited. Registered in England & Wales.  Company No: 02819824.  Registered Office Address: 2 St. Stephen's Court, St. Stephen's Road, Bournemouth, Dorset, England, BH2 6LA.  VAT Registration No: 576 8795 61
Book a Property Valuation Update Cookies Preferences