Wareham, Dorset

Guide Price
£975,000

5 Bedroom Detached House for sale in Dorset

3 5 4

A handsome house built in the 1820's, The Old Manse has an imposing street presence.
From the moment you step through the front door, as you walk through this lovely home, you can appreciate the warmth and good vibes that emanate through this fabulous period home.

This elegant and surprising home is furnished to a superb standard and blends original features with modern technology and amenities.

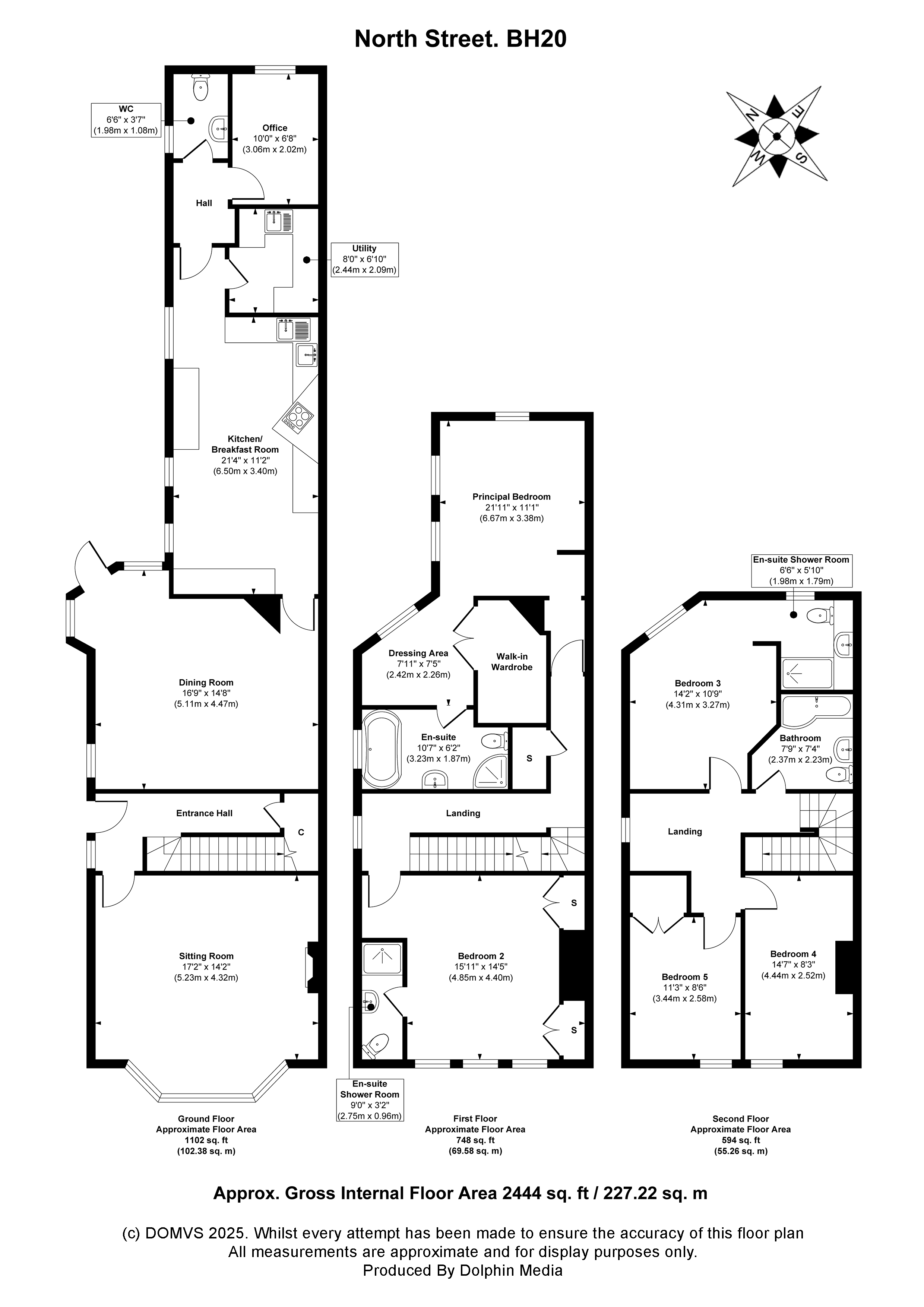
The elegance of the SITTING ROOM, with its generous size, focal log burner and Purbeck Stone surround does not disappoint. This is a wonderful room for entertaining friends and family. The DINING ROOM is spacious and has been renown for formal and informal parties and gatherings, with the charming round stained glass window a delightful feature.

The large KITCHEN/BREAKFAST ROOM is the epitome of modern family living, wrapped in a simple elegance, and a fluid curved style. There is plenty of light being drawn in through multiple windows, there are fitted units throughout, and Gaggennau™ appliances.

There is ample space for a breakfast table for informal meals within the kitchen, it has been used as a gathering point at most family get togethers!

Through the kitchen is the UTILITY ROOM, surprisingly large with ample storage space and a separate W.C/CLOAKROOM.

There is also a STUDY, with good internet access, suitable for house management and working from home, alike. This room has been previously used as a home business and a place to host clients, proving that it is possible to have a separate space to have a secondary income, should you want one.

The garden is accessed from here, a separate door leads from the rear drive and patio area in the garden.

From the hallway, stairs rise to the FIRST FLOOR landing where you will find the PRINCIPAL SUITE, which has a delightful bedroom with a DRESSING AREA and a very generous WALK IN WARDROBE. The elegant bathroom consists of a bath tub, separate shower, hand wash basin and W.C. DOUBLE BEDROOM 2, also has its own ensuite shower facilities and is a cosy retreat.

The stairs rise again to the SECOND FLOOR. This space could be used as a wing suitable for multi-generational living. There is a spacious landing, with a cosy chair for relaxing, a BATHROOM, with a bathtub, hand wash basin and W.C. and further accommodation. The DOUBLE BEDROOM has a modern ENSUITE SHOWER ROOM.

There are two further rooms. What a perfect space for HOME OFFICE and WORKROOM or STUDIO? Or could this be a PLAYROOM, or child's BEDROOM? You can choose and decide how this flexible accommodation is going to work for you.

Outside
What an extraordinary find, in the middle town! There is plenty of private PARKING, for up to 4 vehicles, all behind private wooden gates.

The sunny GARDEN has a pretty lawn area and established shrubs planted around.

The block paved area has been used as a fabulous entertaining area, there is plenty of space for seating, dining, and has outside electric points to set up pretty outside lighting.

There is a generous SUMMER HOUSE, which has electricity to it, and is the perfect place to enjoy the garden in any weather.

There is a natural well in the garden, with potable water and an electric pump.

And SOLAR PANELS which give an extraordinary eco credential to a Victorian building! There is a feed in tariff, and they are included in the sale.

Location
Situated in the heart of the Saxon walled town of Wareham, with walking distance of the picturesque quay by the River Frome. This attractive town benefits from an abundance of eclectic shops, restaurants and boasts its own independent cinema. The stunning beaches of Studland, Lulworth and Swanage are a short drive away and the Purbeck Hills are within walking distance offering far reaching views of the breath-taking Dorset countryside.   Wareham has a mainline railway station with a direct route to London/Waterloo, a sailing club and excellent schools in the area both public and state.

Directions
Use what3words.com to navigate to the exact spot. Search using: ///focus.bystander.scored

Shops, bars and cafes on the doorstep
Short stroll to Wareham Quay and the River Frome
Town centre location
Garden and ample parking
Spacious Victorian town house
Work from home spaces
Good WiFi connection
Generous principal bedroom with dressing area and ensuite


ROOM MEASUREMENTS Please refer to floor plan.

SERVICES Mains drainage, electric & gas. Gas central heating. Solar panels.

LOCAL AUTHORITY Dorset Council. Tax Band F.

BROADBAND Standard download 19 Mbps, upload 1 Mbps. Superfast download 80 Mbps, upload 20 Mbps. Ultrafast download 1000 Mbps, upload 1000 Mbps. Please note all available speeds quoted are 'up to'.

MOBILE PHONE COVERAGE For further information please go to Ofcom website.

TENURE Freehold.

LETTINGS Should you be interested in acquiring a Buy-to-Let investment, and would appreciate advice regarding the current rental market, possible yields, legislation for landlords and how to make a property safe and compliant for tenants, then find out about our Investor Club Our expert lettings team will be pleased to provide you with additional, personalised support; just call on the branch telephone number to take the next step.

IMPORTANT NOTICE DOMVS and its Clients give notice that: they have no authority to make or give any representations or warranties in relation to the property. These particulars do not form part of any offer or contract and must not be relied upon as statements or representations of fact. Any areas, measurements or distances are approximate. The text, photographs (including any AI photography) and plans are for guidance only and are not necessarily comprehensive. It should not be assumed that the property has all necessary Planning, Building Regulation or other consents, and DOMVS has not tested any services, equipment or facilities. Purchasers must satisfy themselves by inspection or otherwise. DOMVS is a member of The Property Ombudsman scheme and subscribes to The Property Ombudsman Code of Practice.

Important Information

  • This is a Freehold property.

Property Ref: 654488_WAM240120

Share:

Similar Properties

Wareham, Dorset

6 Bedroom Terraced House | Guide Price £975,000

This substantial Georgian Grade II Listed family home in the heart of Wareham. With 6 Bedrooms, 3 Receptions, garden, ga...

Stoborough, Wareham, Dorset

5 Bedroom Detached House | Guide Price £975,000

Modern, detached house in the charming village of Stoborough. With five bedrooms, two reception rooms and four bathrooms...

Shaftesbury, Dorset

4 Bedroom Detached House | Guide Price £900,000

Surrounded by trees and nature, this unique, A-rated, energy-efficient property offers all the benefits of a new build w...

Wareham, Dorset

4 Bedroom Detached Bungalow | Guide Price £1,000,000

The owners say, "Walking into town has been easy, and we have felt lucky to also have the space for a double garage and...

Bloxworth, Wareham

4 Bedroom Detached House | Offers Over £1,000,000

Owner says: "The Old Laundry has been our home, our income, and our rural sanctuary for the past 24 years. If you are lo...

Ridge, Nr Wareham, Dorset

4 Bedroom Detached House | Guide Price £1,060,000

Our owners say, "When we're not in the garden, we're in the garden room. It is absolutely our favourite place." Come and...

DOMVS Purbeck & East Dorset (Wareham)

Wareham, Dorset, BH20 4LT

01929 555300

How much is your home worth?

Use our short form to request a valuation of your property.

Request a Valuation

Mortgage Calculator

Amount Borrowed: £
Total Amount Repayable: £
Total Monthly Payment: £
©2026 The Guild of Property Professionals. All rights reserved. Terms and Conditions | Privacy Policy | Cookie Policy | Complaints Policy | Members Login
The Guild of Property Professionals Trading Address: 121 Park Lane, London W1K 7AG. GPEA Limited. Registered in England & Wales.  Company No: 02819824.  Registered Office Address: 2 St. Stephen's Court, St. Stephen's Road, Bournemouth, Dorset, England, BH2 6LA.  VAT Registration No: 576 8795 61
Book a Property Valuation Update Cookies Preferences