Wareham, Dorset

Guide Price
£800,000

4 Bedroom Detached House for sale in Dorset

2 4 2

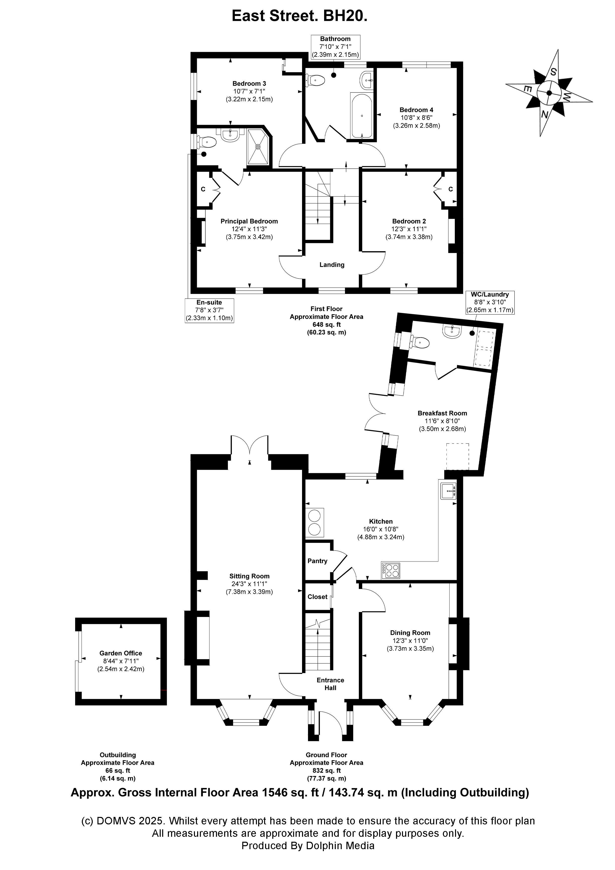
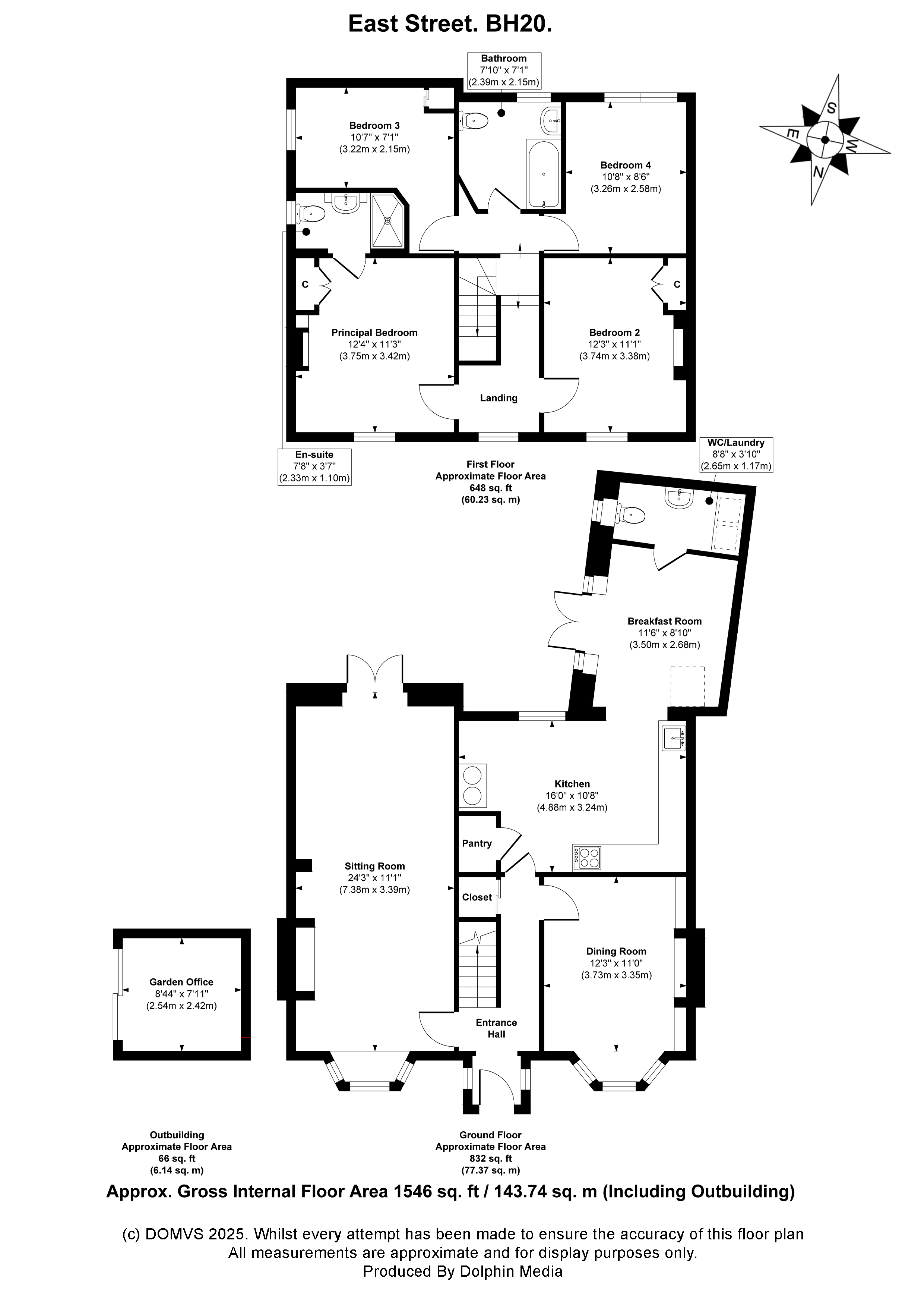
Step into this beautifully extended four-bedroom detached home, where modern living meets timeless elegance. As you enter through the front door and porch to the ENTRANCE HALL, you are greeted by a feeling of charm and character. A spacious SITTING ROOM is to the left, ideal for relaxation and entertaining guests. French doors lead out to the garden and there is a fireplace with log burner, perfect for cosy evenings in the winter months in front of the fire.

The DINING ROOM is an inviting space for friends and family, another open fire creates a cozy atmosphere too.

The heart of the home is the country style KITCHEN, thoughtfully designed with an extended breakfast area that captures natural light, creating a warm and welcoming atmosphere for a relaxing start to your day. Ample cupboards and workups, an AGA™ plus an electric cooker, space for fridge/freezer and a Butlers sink make this a family friendly and comfortable place to be. From the breakfast area, French doors lead out to the sunny patio area, a super place to spill out to for morning coffee in the fresh air. A practical UTILITY ROOM and convenient W.C complete the ground floor, ensuring functionality for a busy household.

From the hallway, stairs lead to the first floor where you will find four generously sized BEDROOMS, each offering a peaceful retreat for family members. The PRINCIPAL BEDROOM has an EN-SUITE SHOWER ROOM with wash basin and W.C. There is a further FAMILY BATHROOM with bath, shower over, wash basin and W.C which services the other three bedrooms.

Outside
The exterior of this property is as impressive as the interior. The south-facing private GARDEN is a true sanctuary, offering a serene escape from the hustle and bustle of daily life. Whether you’re enjoying a relaxing morning or hosting a summer barbecue, this outdoor space caters to all your needs. The GARDEN ROOM, currently used as a HOME OFFICE, has light and power and provides a versatile space that can adapt to your lifestyle, whether you require a quiet workspace or a creative studio.

Parking is never an issue, with secure gated access leading to ample parking for up to four cars. This added convenience is like gold dust in the centre of town so is a real bonus in this location.

Location
Nestled in the heart of Wareham, this property offers the perfect blend of tranquillity and accessibility. Wareham is renowned for its rich history and vibrant community, providing a picturesque setting for family life. The town centre, with its array of shops, cafes, and local amenities, is just a short stroll away, ensuring everything you need is within easy reach.

For those who appreciate the great outdoors, the surrounding countryside and nearby Jurassic Coast offer endless opportunities for exploration and adventure. Excellent transport links provide easy access to neighbouring towns and cities, making this location ideal for commuters.

This home is more than just a property; it’s a lifestyle choice, offering comfort, convenience, and a sense of belonging in a thriving community. Don’t miss the opportunity to make this exceptional residence your own.

Directions
Use what3words.com to navigate to the exact spot. Search using: flow.quitter.pointed

Within ancient Saxon Walls
Level walk to shops, bars and restaurants
Short stroll to River Frome & Wareham Quay
Private, peaceful, sunny garden
Parking for several cars
Nearby walks at RSPB Arne


ROOM MEASUREMENTS Please refer to floor plan.

SERVICES Mains drainage, electric & gas. Gas central heating.

LOCAL AUTHORITY Dorset Council. Tax Band D.

BROADBAND Standard download 18 Mbps, upload 1 Mbps. Superfast download 76 Mbps, upload 29 Mbps. Ultrafast download 1000 Mbps, upload 1000 Mbps. Please note all available speeds quoted are 'up to'.

MOBILE PHONE COVERAGE For further information please go to Ofcom website.

TENURE Freehold.

LETTINGS Should you be interested in acquiring a Buy-to-Let investment, and would appreciate advice regarding the current rental market, possible yields, legislation for landlords and how to make a property safe and compliant for tenants, then find out about our Investor Club Our expert lettings team will be pleased to provide you with additional, personalised support; just call on the branch telephone number to take the next step.

IMPORTANT NOTICE DOMVS and its Clients give notice that: they have no authority to make or give any representations or warranties in relation to the property. These particulars do not form part of any offer or contract and must not be relied upon as statements or representations of fact. Any areas, measurements or distances are approximate. The text, photographs (including any AI photography) and plans are for guidance only and are not necessarily comprehensive. It should not be assumed that the property has all necessary Planning, Building Regulation or other consents, and DOMVS has not tested any services, equipment or facilities. Purchasers must satisfy themselves by inspection or otherwise. DOMVS is a member of The Property Ombudsman scheme and subscribes to The Property Ombudsman Code of Practice.

Important Information

  • This is a Freehold property.

Property Ref: 654488_WAM230160

Share:

Similar Properties

West Lulworth, Wareham, Dorset

3 Bedroom Terraced House | Guide Price £800,000

A fabulous family home with the addition of an Eco Annexe for family to stay or extra income. Owner says, "we have absol...

Wareham, Dorset

4 Bedroom Detached House | Guide Price £795,000

Owners say, "Walking to town has been brilliant; so easy to make use of all the amenities. With a large private garden,...

Bournemouth, Dorset

2 Bedroom Penthouse | Guide Price £795,000

Perched on Bournemouth's Westcliff, this exceptional penthouse offers breathtaking panoramic sea views.Share of Freehold

Harmans Cross, Swanage, Dorset

4 Bedroom Detached House | £830,000

Owners say, "We've loved the look of delight when our family and friends first arrive and see one layer after another of...

Ridge, Wareham, Dorset

4 Bedroom Detached House | Guide Price £845,000

Owner says, 'It's been a pleasure to live so close to the River Frome in a quiet, private place yet so close to all Ware...

Corfe Castle, Wareham, Dorset

5 Bedroom Detached House | Guide Price £850,000

Owner says: "For nearly forty years, I have watched the sun fall on the Purbeck Hills, and walked out onto the Halves. I...

DOMVS Purbeck & East Dorset (Wareham)

Wareham, Dorset, BH20 4LT

01929 555300

How much is your home worth?

Use our short form to request a valuation of your property.

Request a Valuation

Mortgage Calculator

Amount Borrowed: £
Total Amount Repayable: £
Total Monthly Payment: £
©2025 The Guild of Property Professionals. All rights reserved. Terms and Conditions | Privacy Policy | Cookie Policy | Complaints Policy | Members Login
The Guild of Property Professionals Trading Address: 121 Park Lane, London W1K 7AG. GPEA Limited. Registered in England & Wales.  Company No: 02819824.  Registered Office Address: 2 St. Stephen's Court, St. Stephen's Road, Bournemouth, Dorset, England, BH2 6LA.  VAT Registration No: 576 8795 61
Book a Property Valuation Update Cookies Preferences