Chapel End, Broxted, Dunmow, Essex

Guide Price
£850,000
SSTC
This property listing is now SSTC

Land for sale in Dunmow

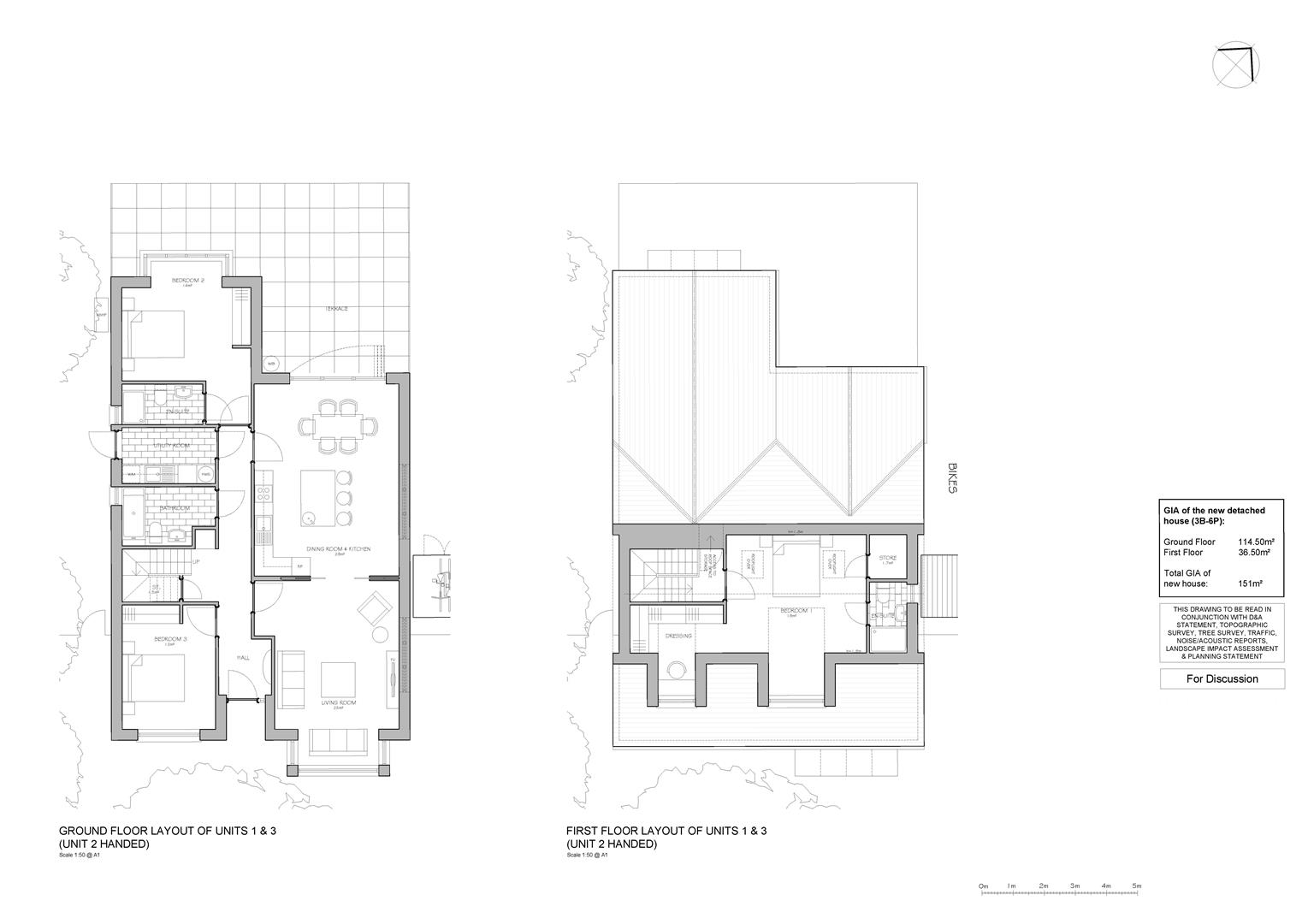
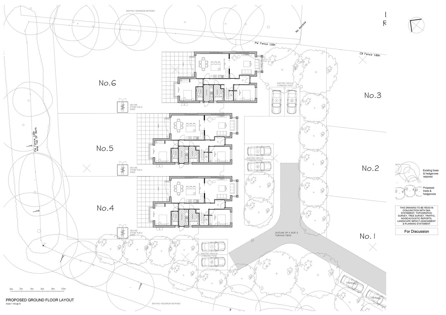
  • Building Plot With Full Planning Permission For Six, Three Bedroom Detached Family Homes
  • Uttlesford Planning Ref: UTT/25/1970/FUL
  • 1625 SQ ft Of Accommodation Per Dwelling
  • Countryside Views
  • Gardens & Allocated Parking
  • Approximately One & Half Acres
  • Proposed Modern Living Styles
  • Flexible Layout Over Two Floors
  • Short Drive To Elsenham Mainline Train Station, Stansted Airport, A120 & M11
  • Site Viewings Available

***DEVELOPMENT OPPORTUNITY* ***

Daniel Brewer are pleased to market this substantial building plot located in a superb village location within a short drive to Elsenham mainline train station, Stansted Airport, A120 & M11. Full planning permission has been granted for the construction of six, three bedroom family homes boasting 1625 Sq Ft of accommodation. Each plot will offer a kitchen/dining room, living room, utility room, three bedrooms, two en-suites and a family bathroom. All planning documentation, including approved drawings and conditions, can be accessed via the Uttlesford District Council website under reference: UTT/25/1970/FUL and interested parties are advised to make their own enquiries regarding access, services and any planning obligations.

Planning Permission Overview - Demolition of all buildings and erection of 6 no. dwellings with associated works including hard and soft landscaping.
The planning application was granted on the Friday 21st November 2025.
Please visit Uttlesford District Planning Search and use the application Ref:- UTT/25/1970/FUL
For any further information, please contact Daniel Brewer Estate Agents on (01371) 856585.

Agents Notes - The land is being offered on an unconditional basis and the current owners are not willing to consider conditional offers.

Property Ref: 34472516

Share:

Similar Properties

Braintree Road, Dunmow

4 Bedroom Detached House | Guide Price £850,000

***NO ONWARD CHAIN***Located on a highly regarded residential road in the centre of the thriving market town of Great Du...

Maynards Lane, Little Sampford, Saffron Walden

4 Bedroom Detached House | £850,000

Set within approximately one third of an acre, tucked away off a quiet country lane and surrounded by open countryside,...

Stevens Lane, Felsted, Dunmow, Essex

4 Bedroom Detached House | Offers Over £850,000

In the picturesque village of Bannister Green just outside of the village of Felsted is this detached four double bedroo...

Canfield Road, Takeley, Bishop's Stortford

4 Bedroom Detached House | Guide Price £895,000

Set within approximately a third of an acre in the quiet hamlet of Hope End is this stunning four bedroom detached count...

Radwinter, Saffron Walden

6 Bedroom Detached House | Offers Over £900,000

Nestled down a private lane and surrounded by countryside and open farmland, this fantastic Grade II Listed farmhouse pr...

Copthall Lane, Thaxted, Dunmow, Essex

5 Bedroom Detached House | Offers Over £900,000

Tucked away on a quiet lane in the charming village of Thaxted, Dunmow, this exquisite detached five-bedroom home offers...

Daniel Brewer Estate Agents (Great Dunmow)

51 High Street, Great Dunmow, Essex, CM6 1AE

01371 856 585

How much is your home worth?

Use our short form to request a valuation of your property.

Request a Valuation

Mortgage Calculator

Amount Borrowed: £
Total Amount Repayable: £
Total Monthly Payment: £
©2026 The Guild of Property Professionals. All rights reserved. Terms and Conditions | Privacy Policy | Cookie Policy | Complaints Policy | Members Login
The Guild of Property Professionals Trading Address: 121 Park Lane, London W1K 7AG. GPEA Limited. Registered in England & Wales.  Company No: 02819824.  Registered Office Address: 2 St. Stephen's Court, St. Stephen's Road, Bournemouth, Dorset, England, BH2 6LA.  VAT Registration No: 576 8795 61
Book a Property Valuation Update Cookies Preferences