Bannister Green, Felsted, Dunmow

Offers Over
£700,000

4 Bedroom Detached House for sale in Dunmow

3 4 1
  • Four Bedrooms
  • Detached Country Home
  • Ample Driveway Parking
  • Enclosed Rear Garden
  • Refurbished & Extended Throughout
  • Three Reception Rooms
  • Kitchen/Breakfast Room
  • Cloakroom & Utility Room
  • Family Bathroom
  • Viewing Advised

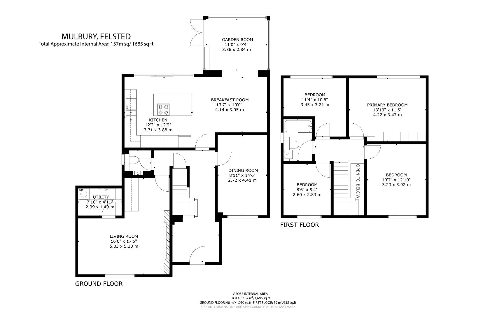
Located on the outskirts of the highly desirable village of Felsted is this impressive four bedroom detached country home which has been fully refurbished to a high standard throughout. The property offers a modern living style alongside a flexible layout. The ground floor accommodation comprises:- living room, dining room, kitchen/breakfast room, garden room, utility room, cloakroom and entrance hall. On the first floor are four bedrooms and a family bathroom. Externally the property benefits from an enclosed rear garden and ample driveway parking.

Entrance Hall - Part vaulted ceiling with Velux window, inset spotlights, power points, radiator, stairs rising to the first floor landing, doors to.

Cloakroom - UPVC double glazed opaque window to side aspect, concealed cistern W.C, wash hand basin with vanity unit below, inset spotlights, extractor fan, part tiled walls, tiled flooring.

Dining Room - 4.41 x 2.72 (14'5" x 8'11") - UPVC double glazed window to front aspect, wood effect flooring, radiator, power points, inset spotlights.

Living Room - 5.3 x 5.03 (17'4" x 16'6") - Part vaulted ceiling, UPVC double glazed window to front aspect, various inset speakers, radiator, inset spotlights, power points, media wall, door to.

Utility Room - 2.39 x 1.49 (7'10" x 4'10") - Base and eye level units with complimentary working surfaces over, space for washing machine, space for tumble dryer, wood effect flooring, radiator, power points, inset spotlights.

Kitchen/Breakfast Room - 7.85 x 3.89 (25'9" x 12'9") - base and eye level units with complimentary working surfaces over, island with complimentary working surfaces over & breakfast bar area, two inset ovens, electric hob with downdraft extractor, integrated fridge, integrated freezer, integrated dishwasher, inset 1 1/2 bowl sink with drainer unit, inset spotlights, LED feature lighting, glass splashbacks, radiator, power points, T.V point, bi-folding doors leading to the rear garden, opening to.

Garden Room - 3.36 x 2.84 (11'0" x 9'3") - UPVC double glazed windows to multiple aspects, radiator, power points, tiled flooring, UPVC double glazed French doors leading to the rear garden.

First Floor Landing - UPVC double glazed window to front aspect, power points, doors leading to.

Principal Bedroom - 4.22 x 3.47 (13'10" x 11'4") - UPVC double glazed window to rear aspect, a range of built-in wardrobes, built-in drawers & dressing table, wood effect flooring, radiator, inset spotlights, power points.

Bedroom Two - 3.92 x 3.23 (12'10" x 10'7") - UPVC double glazed window to front aspect, radiator, power points, inset spotlights.

Bedroom Three - 3.45 x 3.21 (11'3" x 10'6") - UPVC double glazed window to rear aspect, radiator, power points, inset spotlights.

Bedroom Four - 2.83 x 2.6 (9'3" x 8'6") - UPVC double glazed window to front aspect, radiator, power points, inset spotlights.

Family Bathroom - UPVC double glazed opaque window to side aspect, enclosed p-bath with mixer taps & shower attachment, separate shower with digital button, concealed cistern W.C, wash hand basin with vanity unit below, heated towel rail, LED wall mounted vanity mirror, fully tiled, inset spotlights, extractor fan.

Garden - To the rear of the property is a Sandstone patio area wrapping around the property leading to the remainder lawn with a wood chipped play area to the foot of the garden. The garden further benefits from a timber shed, Koi carp pond, side access via a timber gate and external water tap.

Driveway Parking - To the front of the property is a granite driveway providing parking for several vehicles enclosed by mature hedging and post & rail fencing.

Village Summary - The desirable village of Felsted offers a range of amenities with its two public houses, village store, restaurants, tearoom, hairdressers, clothing shop, and beauticians. The historic Felsted public school commands the centre of the village with its extensive grounds and attractive buildings. The playing facilities are extremely well equipped and are conveniently located in the centre of the village.

Property Ref: 34414339

Share:

Similar Properties

Bullocks Lane, Takeley, Bishop's Stortford

4 Bedroom Detached House | Offers Over £700,000

Daniel Brewer are pleased to market this well presented four bedroom detached country home in the quiet hamlet of "Hope...

Shalford Road, Rayne, Braintree

4 Bedroom Detached House | Offers Over £700,000

This impressive three bedroom detached family home boasting a self contained one bedroom annexe is located in the popula...

Bardfield Road, Thaxted, Dunmow

6 Bedroom Detached House | Offers Over £700,000

Nestled in the charming market town of Thaxted, Bardfield Road presents a remarkable opportunity to acquire a spacious s...

The Street, Takeley, Bishop's Stortford

5 Bedroom Detached House | £740,000

Nestled in the charming village of Takeley, just a stone's throw from Bishop's Stortford, this exquisite detached family...

Lindsell, Dunmow

6 Bedroom Detached House | Guide Price £740,000

Nestled in the tranquil village of Lindsell, this impressive six-bedroom detached country home offers a perfect blend of...

South View, Dunmow, Essex

5 Bedroom Detached House | Guide Price £750,000

Daniel Brewer are pleased to market this substantial five bedroom detached family home located on a desirable residentia...

Daniel Brewer Estate Agents (Great Dunmow)

51 High Street, Great Dunmow, Essex, CM6 1AE

01371 856 585

How much is your home worth?

Use our short form to request a valuation of your property.

Request a Valuation

Mortgage Calculator

Amount Borrowed: £
Total Amount Repayable: £
Total Monthly Payment: £
©2026 The Guild of Property Professionals. All rights reserved. Terms and Conditions | Privacy Policy | Cookie Policy | Complaints Policy | Members Login
The Guild of Property Professionals Trading Address: 121 Park Lane, London W1K 7AG. GPEA Limited. Registered in England & Wales.  Company No: 02819824.  Registered Office Address: 2 St. Stephen's Court, St. Stephen's Road, Bournemouth, Dorset, England, BH2 6LA.  VAT Registration No: 576 8795 61
Book a Property Valuation Update Cookies Preferences