St. Clements, Thaxted, Dunmow

Offers Over
£525,000

4 Bedroom Link Detached House for sale in Dunmow

1 4 2
  • Four Bedrooms
  • Link Detached Family Home
  • Single Garage With Driveway
  • Enclosed Rear Garden
  • No Onward Chain
  • Open Plan Living Layout
  • En-Suite & Family Bathroom
  • Kitchen/Dining/Family Room
  • Utility Room & Cloakroom
  • Walking Distance To Local Amenities

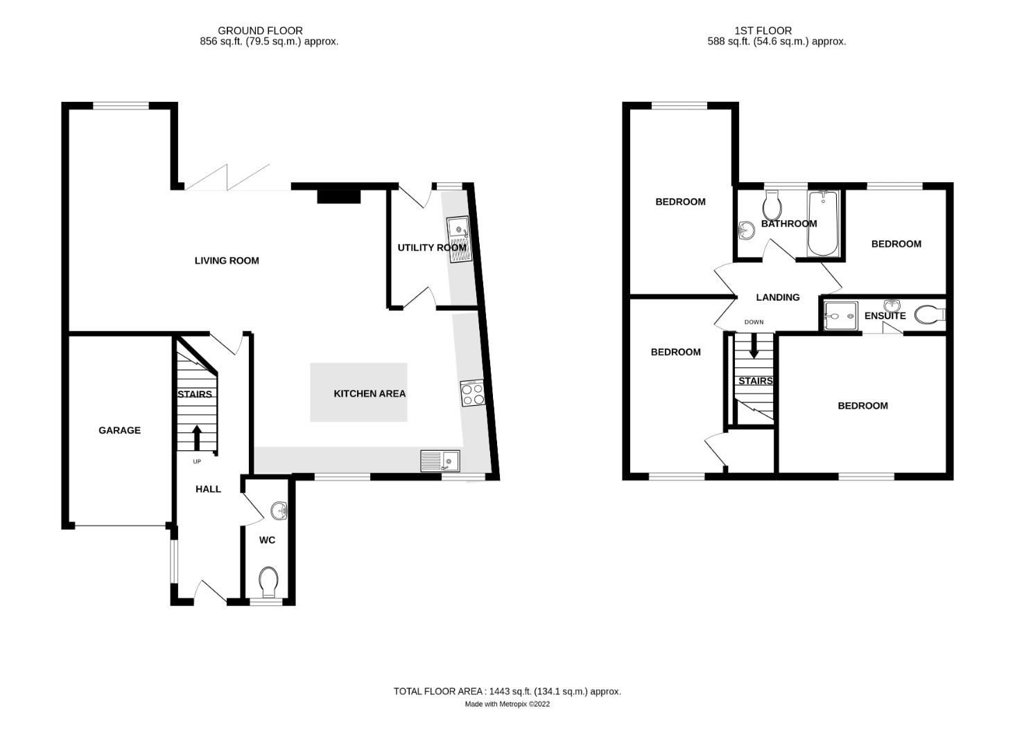
***No Onward Chain*** Located in the thriving medieval market town of Thaxted is this fully refurbished four bedroom link detached family home offering a modern open plan living layout. The ground floor accommodation comprises:- open plan kitchen/dining/family room, utility room, cloakroom and entrance hall. On the first floor are four bedrooms with en-suite facilities to the principal bedroom and a family bathroom. Externally the property boasts a single garage with ample driveway parking and an enclosed rear garden.

Entrance Hall - UPVC double glazed window to side aspect, inset spotlights, wall mounted light fittings, Amtico flooring, radiator, power points, telephone point, stairs rising to the first floor landing, door to.

Cloakroom - UPVC double glazed Opaque window to front aspect, W.C, wash hand basin with vanity unit below, heated towel rail, part tiled walls, tiled flooring, inset spotlights, extractor fan.

Kitchen Area - 6.32m x 5.28m (20'9" x 17'4") - UPVC double glazed window to front aspect, base and eye level units with polished concrete working surface over, complimentary island with concrete working surfaces over & breakfast bar area, inset double oven, five ring induction hob with extractor over, integrated dishwasher, integrated fridge/freezer, inset double sink, inset spotlights, radiator, power points, USB points, Amtico flooring, door to utility room, door to.

Dining Area - 5.23m" x 3.12m (17'2"" x 10'3") - Bi-folding doors to the rear garden, Amtico flooring, radiator, power points, inset spotlights, opening to.

Lounge Area - 5.21m x 2.24m (17'1" x 7'4") - UPVC double glazed window to rear aspect, Amtico flooring, radiator, power points, T.V point, wall mounted lights.

Utility Room - 2.49m x 1.45m (8'2" x 4'9") - UPVC double glazed window to rear aspect, base and eye level units with polished concrete working surfaces, space for washing machine, space for tumble dryer, radiator, inset sink with mixer taps, Amtico flooring, inset spotlights, power points, UPVC double glazed window to rear aspect.

First Floor Landing - Loft access, power points, inset spotlights, doors to.

Principal Bedroom - 3.78m x 3.02m (12'5" x 9'11") - UPVC double glazed window to front aspect, inset spotlights, wall mounted light fittings, power points, USB points, radiator, door to.

En-Suite - Enclosed shower cubicle with waterfall head & additional attachment, wash hand basin with vanity unit below, W.C, heated towel rail, fully tiled, inset spotlights, extractor fan.

Bedroom Two - 2.95 x 2.87 (9'8" x 9'4") - UPVC double glazed window to front aspect, built-in cupboard housing boiler, inset spotlights, radiator, power points.

Bedroom Three - 4.22 x 2.26 (13'10" x 7'4") - UPVC double glazed window to rear aspect, inset spotlights, radiator, power points.

Bedroom Four - 3.9 x 2.3 (12'9" x 7'6") - UPVC double glazed window to rear aspect, inset spotlights, radiator, power points.

Family Bathroom - UPVC double glazed Opaque window to rear aspect, enclosed bath with mixer taps, separate shower over with waterfall head & additional attachment, W.C, wash hand basin with vanity drawer below, heated towel rail, wall mounted LED vanity mirror, fully tiled, inset spotlights, extractor fan.

Single Garage With Driveway Parking - To the side of the property is a single garage with up & over door, power and lighting. To the front of the property is a sweeping shingle driveway providing parking for multiple vehicles.

Garden - To the rear of the property is a patio area leading to lawn with an additional patio area to the foot of the garden. A paved pathway links the two patio areas with a shrub border to the side.

Agents Notes - The images were taken prior to the property being rented. As the property has since been occupied, the images are for guidance purposes only and some wear and tear should be expected.

Property Ref: 879665_34400759

Share:

Similar Properties

Town Street, Thaxted, Dunmow

3 Bedroom Cottage | Offers Over £525,000

***No Onward Chain***Commanding a central position in the historic market town of Thaxted is this stunning three bedroom...

Ploughmans Way, Stebbing, Dunmow

3 Bedroom Link Detached House | Offers Over £525,000

Nestled in the heart of the charming village of Stebbing, Ploughmans Way presents a remarkable opportunity to acquire a...

Baynard Avenue, Flitch Green, Dunmow, Essex

4 Bedroom Link Detached House | Offers Over £525,000

Daniel Brewer are pleased to offer this spacious four-bedroom link-detached family home located on the desirable Flitch...

Lindsell, Dunmow

3 Bedroom Barn Conversion | Offers Over £550,000

***NO ONWARD CHAIN*** Situated in the popular village of Lindsell is a well presented high specification detached single...

Newbiggen Street, Thaxted, Dunmow

5 Bedroom Cottage | £550,000

***No Onward Chain*** Situated in the heart of the thriving medieval market town of Thaxted, this charming three-bedroom...

Leigh Drive, Elsenham, Bishop's Stortford

4 Bedroom Detached House | Offers Over £550,000

Located on an established residential road in the commuter village of Elsenham is this substantial four bedroom detached...

Daniel Brewer Estate Agents (Great Dunmow)

51 High Street, Great Dunmow, Essex, CM6 1AE

01371 856 585

How much is your home worth?

Use our short form to request a valuation of your property.

Request a Valuation

Mortgage Calculator

Amount Borrowed: £
Total Amount Repayable: £
Total Monthly Payment: £
©2026 The Guild of Property Professionals. All rights reserved. Terms and Conditions | Privacy Policy | Cookie Policy | Complaints Policy | Members Login
The Guild of Property Professionals Trading Address: 121 Park Lane, London W1K 7AG. GPEA Limited. Registered in England & Wales.  Company No: 02819824.  Registered Office Address: 2 St. Stephen's Court, St. Stephen's Road, Bournemouth, Dorset, England, BH2 6LA.  VAT Registration No: 576 8795 61
Book a Property Valuation Update Cookies Preferences