Pemberton Terrace, East Molesey

Guide Price
£800,000
SSTC
This property listing is now SSTC

4 Bedroom House for sale in East Molesey

1 4 2
  • Central East Molesey
  • Close to Shops & Restaurants
  • Modernised Throughout 
  • Three / Four Double Bedrooms
  • En Suite + Family Bathroom
  • Utility Room
  • D/s Guest W.C
  • Kitchen / Dining / Family Room
  • Under Floor Heating
  • Two Parking Spaces

A fully modernised three/four bedroom, two-bathroom, family home in a highly convenient East Molesey location with the advantage of two allocated parking spaces behind.



Pemberton Terrace forms a staggered terrace of five 'red-brick' Victorian style town houses arranged across three floors. Architecturally, the front elevations are imposing with attractive gabled roof lines featuring red brick facades with stone lintels, arches and key-stones. The terrace is naturally enhanced with established Silver Birch trees, each house has their own front gardens complete with traditional wrought-iron railings. 



It should be noted that both the ground and first floors have been extended since original construction (circa. 2000) together with remodelling of the ground floor to create excellent practical space for modern living.  The current owners have freshly decorated with new carpeting and there is excellent storage provision throughout.   



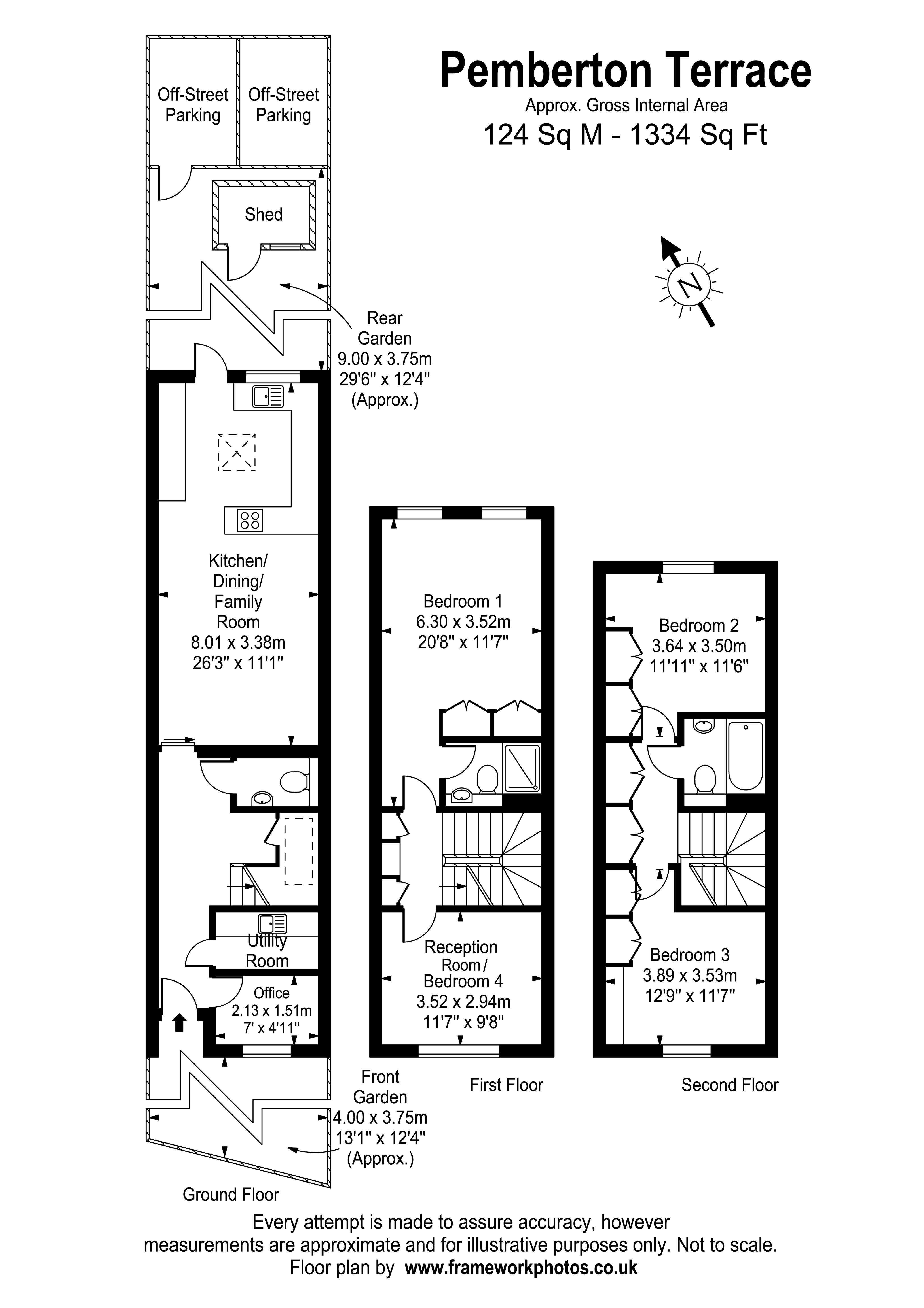
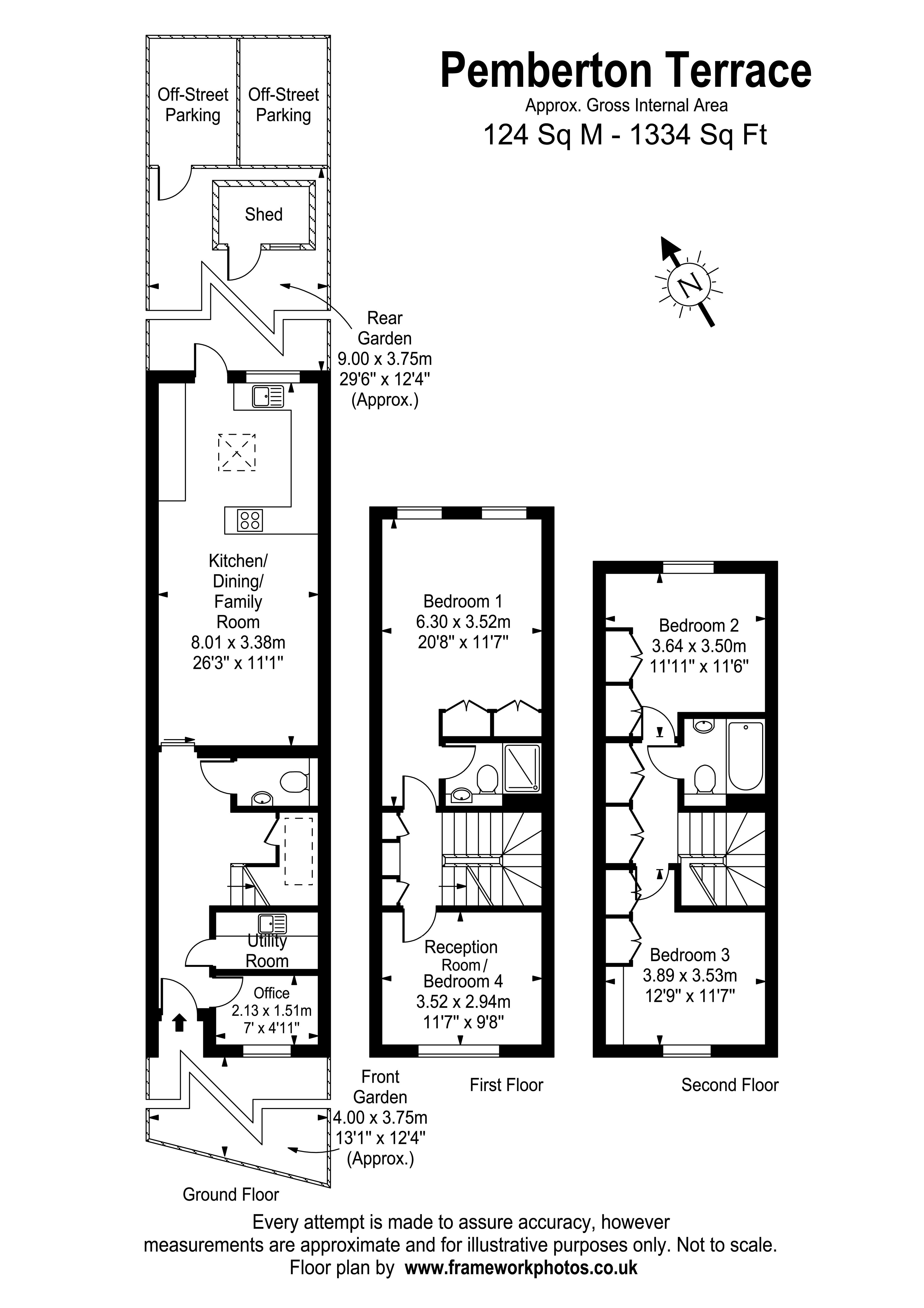
Upon entering the home it opens to a good size central hallway with useful guest cloakroom / WC and a lovely returning staircase rising to the top floor.  At the front (formerly a kitchen) is a study and adjacent to this is a utility room with storage, sink, and under-counter space for washing machine and separate dryer. 



The ground floor is further complimented by a good size (abt. 26 x 11 ft / 8.01 x 3.38 m) kitchen / dining / family room with roof light, underfloor heating, and access to the garden.  The white infinity style kitchen comes with integrated appliances to include separate fridge and freezer, dishwasher, twin ovens (one with hot plate) induction hob, under unit lights, and features a peninsula breakfast bar which makes for a social open plan arrangement to the dining / living room.   



At first floor level there is useful storage on the landing, leading to a generous principal bedroom (abt. 20' 8" x 11' 7" / 6.30 x 3.52m) with built-in wardrobes and an ensuite shower room, whilst a front sitting room could alternatively make a comfortable fourth bedroom.  The top floor landing again with superb storage, provides two further double bedrooms - both with fitted wardrobes - supported by a modern fitted main family bathroom. 



Externally, the rear garden with tool/bike shed is laid with easy-care lawn and patio/terrace next to the house.  A rear gate leads to private parking area - with two allocated spaces. 



Additional info. The rear parking area is lit and well maintained - accessed via a service lane off Pemberton Road.  It is owned by the five residents (Pemberton Terrace Management Co) each with rights to park including a neighbour in Pemberton Road.  It is managed and maintained informally.  The most recent quarterly electricity charge was £14 per property.      

 

Square footage: 1,334 ft2 / 124 m2 



Location: Pemberton Terrace falls within a short walking distance of East Molesey high street, Hampton Court Railway Station (zone 6) and village area at Bridge Road.  The area has an array of amenities, and enjoys superb local schooling options with The Orchard and St. Albans Primary Schools', and St. Lawrence CoE Aided Junior School.  In addition, there are many open acres of parkland found in The Wilderness and Hurst Park, along with areas of natural beauty in two Royal Parks (Bushy and Home) which led to their designation as a Site of Special Scientific Interest (SSSI).  Furthermore, there are beautiful stretches of the Thames alongside Royal Hampton Court Palace which plays host to outdoor festivals and music events throughout the year.  

Important Information

  • This is a Freehold property.

Property Ref: EAXML14612_12591134

Share:

Similar Properties

Wick Road, Teddington

3 Bedroom House | Offers in excess of £800,000

Miles & Bird, estate agents covering Teddington, are proud to present this delightful three bedroom, two bathroom, Victo...

Balmoral Crescent, West Molesey

5 Bedroom Semi-Detached House | Offers Over £800,000

An extended 1930s four/five bedroom, two bathroom, family home in popular Molesey side road near the River Thames, benef...

Dennis Road, East Molesey

3 Bedroom Semi-Detached House | Offers in excess of £800,000

An absolutely charming and innovatively extended character home set within a highly regarded East Molesey Village side r...

Nightingale Road, West Molesey

3 Bedroom House | Guide Price £810,000

A charming three bedroom semi-detached character property situated in a highly coveted tree-lined road, complemented by...

Queens Reach, East Molesey

2 Bedroom Apartment | Guide Price £825,000

Miles and Bird Estate Agents in East Molesey are delighted to offer a superior second floor, lift serviced apartment wit...

Greenfield Avenue, Surbiton

4 Bedroom Semi-Detached House | Guide Price £825,000

A traditional bay fronted semi-detached family home with 'off-street parking at the front to own driveway' whilst benefi...

Miles & Bird (East Molesey)

East Molesey, Surrey, KT8 9HA

020 3875 3875

How much is your home worth?

Use our short form to request a valuation of your property.

Request a Valuation

Mortgage Calculator

Amount Borrowed: £
Total Amount Repayable: £
Total Monthly Payment: £
©2026 The Guild of Property Professionals. All rights reserved. Terms and Conditions | Privacy Policy | Cookie Policy | Complaints Policy | Members Login
The Guild of Property Professionals Trading Address: 121 Park Lane, London W1K 7AG. GPEA Limited. Registered in England & Wales.  Company No: 02819824.  Registered Office Address: 2 St. Stephen's Court, St. Stephen's Road, Bournemouth, Dorset, England, BH2 6LA.  VAT Registration No: 576 8795 61
Book a Property Valuation Update Cookies Preferences