Nightingale Road, West Molesey

Guide Price
£810,000
Under Offer
This property listing is now Under Offer

3 Bedroom House for sale in West Molesey

3 3 1

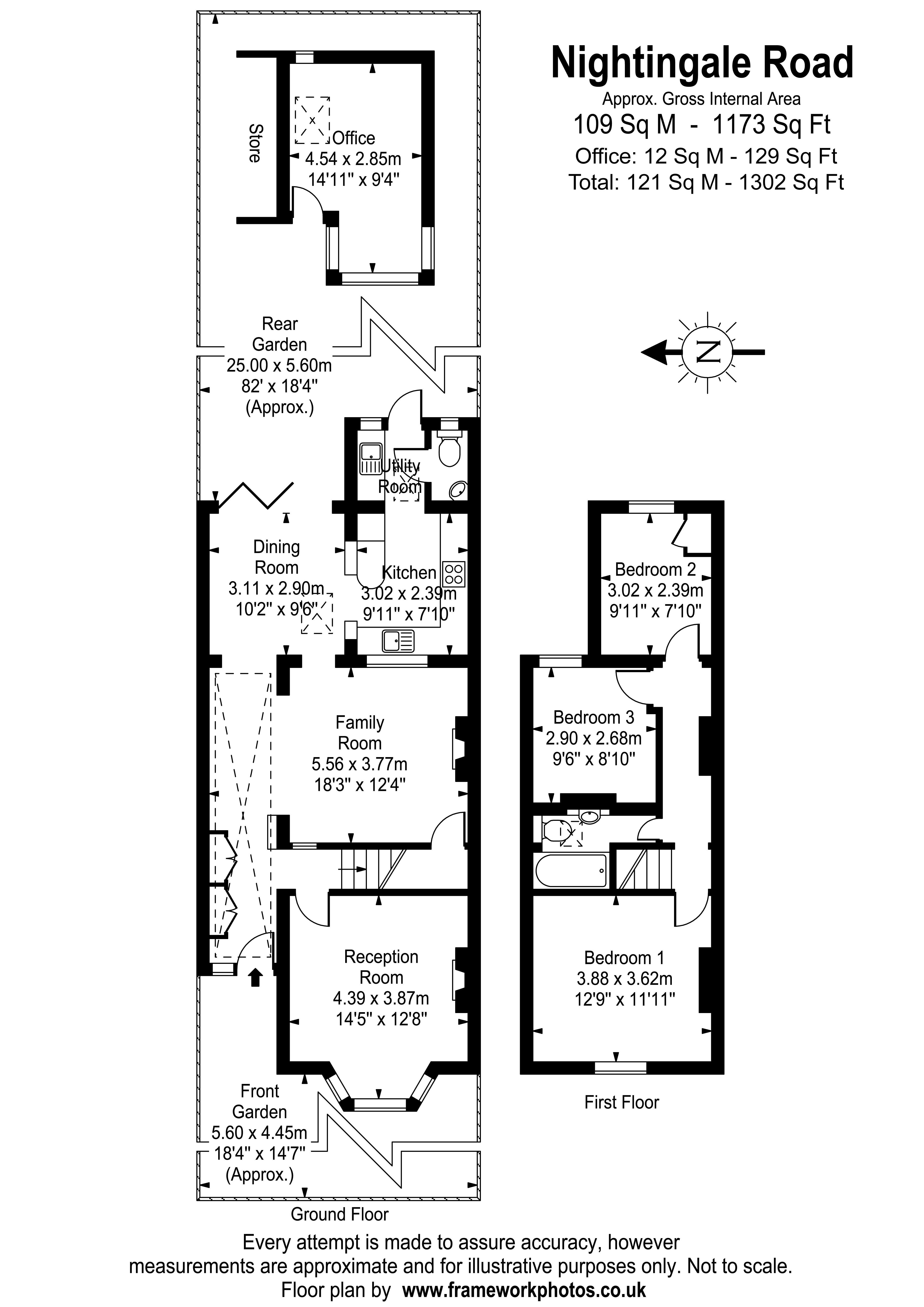
A charming three bedroom semi-detached character property situated in a highly coveted tree-lined road, complemented by a beautifully established 82ft rear garden, driveway parking, and a separate garden studio / home office.



The current owners have happily resided in the property for some 37 years, undertaking major improvement works during their tenure: notably, a ground floor side and rear extension designed by the owner, an architect. These works create clever inter-connecting, partial open-plan spaces between kitchen/diner, family room and side extension, which extends right through into a flourishing landscaped garden – a prerequisite these days for modern living.  



The side entrance is thoughtfully designed with pitched glazed roof distributing light throughout the ground floor, and provides a useful study space and built-in coat and shoe cupboards.  Immediately off to the right is an elegant front sitting room with bay window and cast-iron working fireplace, beautifully offset against matching alcoves with floating shelves.  The central family room, also with an open fireplace, takes you through to the kitchen/diner with roof light; this space enjoys same level access with bi-fold doors opening out to the terrace.  To complete the ground floor is a practical utility room and separate WC.    



Upstairs provides a lovely front aspect main bedroom, landing with loft access leading down to two further bedrooms – one double, and a further rear bedroom currently set up as a home office. To complete this floor is a stylish bathroom with tunnel skylight window.  



Externally, the rear garden enjoys good privacy and is a real haven for gardeners, planted with a variety of specimen plants, fruit trees, flowers and shrubs.  At the end of the garden is a highly useful office/studio allowing for all manner of practical uses and providing covered storage to the side. 



Early viewing is highly recommended to appreciate this traditional family home successfully combining that perfect balance of period charm with modern design, shape and form. 



Location:  Nightingale Road is a desirable residential neighbourhood in the heart of Molesey - where classic Victorian architecture adorns both sides of the street.  The main East Molesey High Road (Walton Road) is nearby with excellent local amenities, shops & restaurants and Tesco supermarket (0.2 miles). Bridge Road, affectionately known locally as Hampton Court Village, has superb independent retailers, cafes and restaurants, as well as Hampton Court Station zone 6 (0.8 miles) with regular trains into London Waterloo in abt. 33 mins. Direct road links via the nearby A3, M3 and M25 make for easy access to London’s airports.  East Molesey Cricket and Boat Clubs are popular with locals, both found on Thames towpath.  Historic Hampton Court Palace attracts visitors from around the world, and Bushy Park and Hurst Park are beautiful open spaces for walking, jogging and cycling.  Elmbridge Borough is also popular with families as it provides superb schooling options, including nearby St. Albans Catholic Primary School awarded best performing junior school by Surrey county in recent years. 

Important Information

  • This is a Freehold property.

Property Ref: EAXML14612_12704608

Share:

Similar Properties

Wick Road, Teddington

3 Bedroom House | Offers in excess of £800,000

Miles & Bird, estate agents covering Teddington, are proud to present this delightful three bedroom, two bathroom, Victo...

Balmoral Crescent, West Molesey

4 Bedroom Semi-Detached House | Asking Price £800,000

An extended four bedroom, two bathroom, family home situated in a well regarded Molesey side road benefitting from integ...

Dennis Road, East Molesey

3 Bedroom Semi-Detached House | Offers in excess of £800,000

An absolutely charming and innovatively extended character home set within a highly regarded East Molesey Village side r...

Greenfield Avenue, Surbiton

4 Bedroom Semi-Detached House | Guide Price £825,000

A traditional bay fronted semi-detached family home with 'off-street parking at the front to own driveway' whilst benefi...

Nightingale Road, West Molesey

3 Bedroom House | Guide Price £825,000

A modernised and extended three bedroom semi-detached family home situated in this popular tree-lined side road in the h...

Wick Road, Teddington

2 Bedroom House | Asking Price £829,950

Miles & Bird Estate Agents, covering Teddington, are delighted to off this immaculately presented and beautifully mainta...

Miles & Bird (East Molesey)

East Molesey, Surrey, KT8 9HA

020 3875 3875

How much is your home worth?

Use our short form to request a valuation of your property.

Request a Valuation

Mortgage Calculator

Amount Borrowed: £
Total Amount Repayable: £
Total Monthly Payment: £
©2026 The Guild of Property Professionals. All rights reserved. Terms and Conditions | Privacy Policy | Cookie Policy | Complaints Policy | Members Login
The Guild of Property Professionals Trading Address: 121 Park Lane, London W1K 7AG. GPEA Limited. Registered in England & Wales.  Company No: 02819824.  Registered Office Address: 2 St. Stephen's Court, St. Stephen's Road, Bournemouth, Dorset, England, BH2 6LA.  VAT Registration No: 576 8795 61
Book a Property Valuation Update Cookies Preferences