Seymour Road, East Molesey

Guide Price
£1,250,000

4 Bedroom House for sale in East Molesey

3 4 2
  • Private Road
  • No Onward Chain
  • Detached House
  • Private Aspect | Stunning Gardens
  • Versatile Accommodation
  • Immaculate Condition
  • Underfloor Heating
  • En Suite Bathroom
  • Utility Room | Guest W.C
  • Three Car Driveway

An extended and well maintained three / four bedroom, two bathroom, detached house with delightful gardens and occupying a tranquil position in a private road setting. NO ONWARD CHAIN.



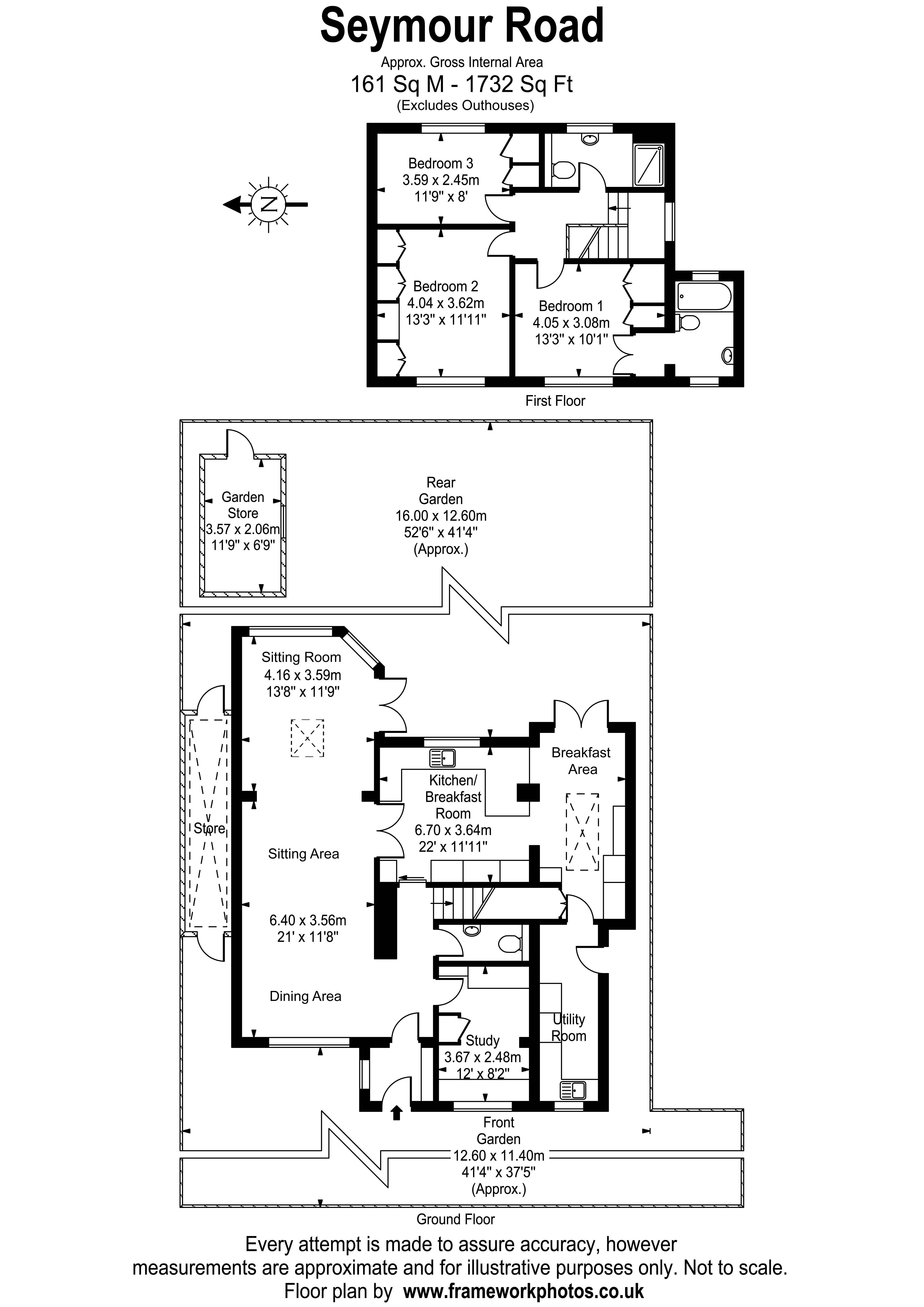
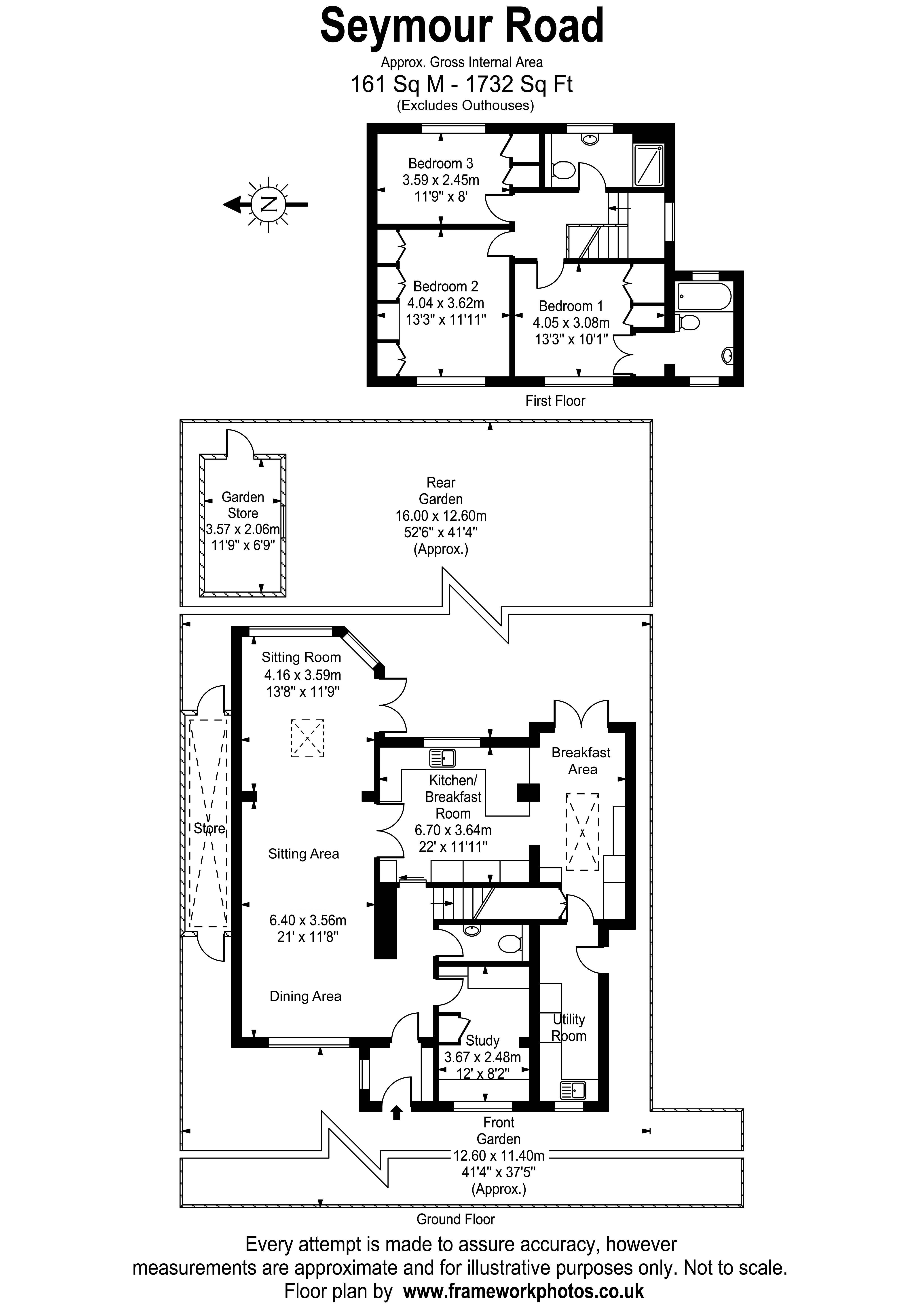
The accommodation is arranged laterally across two floors extending to a comfortable 161 sqm / 1,732 sq ft (total GIA). In 2008 the property was comprehensively updated and remodelled. Works included single and double storey side extensions, single storey rear extension to the lounge and conversion of the garage into a habitable room – set-up as a home office or occasional guest bedroom.

  

Presented in good modernised condition throughout with leafy window views front and rear, the accommodation comprises of a front entrance lobby which takes you through to an inner hallway with central staircase adjacent to a guest cloakroom with W.C.  There is excellent circulation space to the ground floor all with the warmth and comfort of underfloor heating.  To your right is a study with bespoke marble desk and fitted joinery.  Immediately off to the left is an open plan reception room that overlooks the front garden and provides twin doors to the kitchen.  This room, in turn, is open plan to an extended sitting room with skylight window – a well designed space – with doors opening to the terrace and a 45 degree window to accentuate the views and relationship with the garden.    



A good size modern fitted kitchen / breakfast room has a full compliment of integrated appliances to include; Bosch double-oven with combi microwave, dishwasher, and an induction hob with externally vented Elica extraction unit.  It also comes with Silestone work tops and water softener.  The breakfast area forms part of the side extension, again with skylight window, and double doors out to the garden terrace next to a small pond.  



Additional storage is found off the breakfast room with door to a large utility room complete with Bosch washing machine, Miele tumble dryer, sink and ample storage.  A wall mounted Vaillant boiler was newly installed in August 2023.   There is a door with side access leading out to the front. 



Upstairs, a landing with ceiling hatch opens to a fully boarded loft space fitted with retractable loft ladder.  All three bedrooms provide built-in wardrobes, the principal bedroom with discreet wardrobe door that opens to a double aspect en suite bathroom.  An independent shower room completes this floor. 



Externally, the gardens are a real asset.  The front is well stocked, enclosed by privet hedge with Indian sandstone pathways, and gravelled driveway with comfortable parking for three cars.  The rear garden is quintessentially English, extremely private and secluded, and planted with a variety of established plants and trees, three water taps strategically positioned for best use.  Off to the left is a hidden tool/bike shed with power, light and useful covered side access with secure doors each end.            

  

Location:  Seymour Road is a sought-after residential area, situated in popular East Molesey. Located in the private and unadopted section of Seymour Road linking Beauchamp Road and Molesey Park Road.  You will find an array of local shops, restaurants and amenities nearby on the high street, as well as quality independent boutiques, stores, and cafés in Bridge Road (known locally as Hampton Court Village) which is just 0.8 miles away. Superb transport links are on hand with access to London by train from Hampton Court Station (zone 6) under 1 mile, providing a direct train service into London Waterloo in approximately 35 minutes. The M3, M4 and M25 motorways are within easy driving distance and central London itself is about 15 miles away. The Elmbridge Borough has an excellent choice of both state and independent schools including excellent Primary and Junior options in The Orchard, St. Lawrence, and nearby St. Albans Catholic Primary School awarded best performing junior school by surrey county council in recent years.  You will find many sports, leisure and recreational facilities in the area including; Pavilion Sport & Fitness, Molesey Boat Club and East Molesey Cricket Club along the Thames towpath.

Important Information

  • This is a Freehold property.

Property Ref: EAXML14612_12687014

Share:

Similar Properties

Palace Road, East Molesey

3 Bedroom House | Asking Price £1,250,000

A most appealing former coach house property situated in East Molesey's premier tree-lined road moments from Hampton Cou...

Station Road, Teddington

4 Bedroom House | Guide Price £1,250,000

A traditional four-bedroom, two bathroom, halls-adjoining semi, right in the heart of central Teddington virtually oppos...

Gordon Road, Kingston-Upon-Thames

4 Bedroom House | Guide Price £1,250,000

A handsome bay-fronted Victorian detached Villa, skilfully extended into the loft (2015) and ground floor rear (2017) wi...

Parsons Mead, East Molesey

4 Bedroom House | Guide Price £1,275,000

A stylish four bedroom, two bathroom, link-detached property with south facing rear garden and driveway parking, tucked...

Manor Road, Teddington

5 Bedroom End of Terrace House | Guide Price £1,285,000

An architect owned four / five bedroom, three bathroom, double fronted end of terrace property with driveway parking, oc...

Hardy's Mews, East Molesey

3 Bedroom End of Terrace House | Guide Price £1,285,000

A unique opportunity to acquire an impressive, architect designed mews house with parking to the fore, tucked away in a...

Miles & Bird (East Molesey)

East Molesey, Surrey, KT8 9HA

020 3875 3875

How much is your home worth?

Use our short form to request a valuation of your property.

Request a Valuation

Mortgage Calculator

Amount Borrowed: £
Total Amount Repayable: £
Total Monthly Payment: £
©2025 The Guild of Property Professionals. All rights reserved. Terms and Conditions | Privacy Policy | Cookie Policy | Complaints Policy | Members Login
The Guild of Property Professionals Trading Address: 121 Park Lane, London W1K 7AG. GPEA Limited. Registered in England & Wales.  Company No: 02819824.  Registered Office Address: 2 St. Stephen's Court, St. Stephen's Road, Bournemouth, Dorset, England, BH2 6LA.  VAT Registration No: 576 8795 61
Book a Property Valuation Update Cookies Preferences