Gloucester Road, Twickenham

Guide Price
£1,075,000
Under Offer
This property listing is now Under Offer

5 Bedroom End of Terrace House for sale in Twickenham

3 5 2

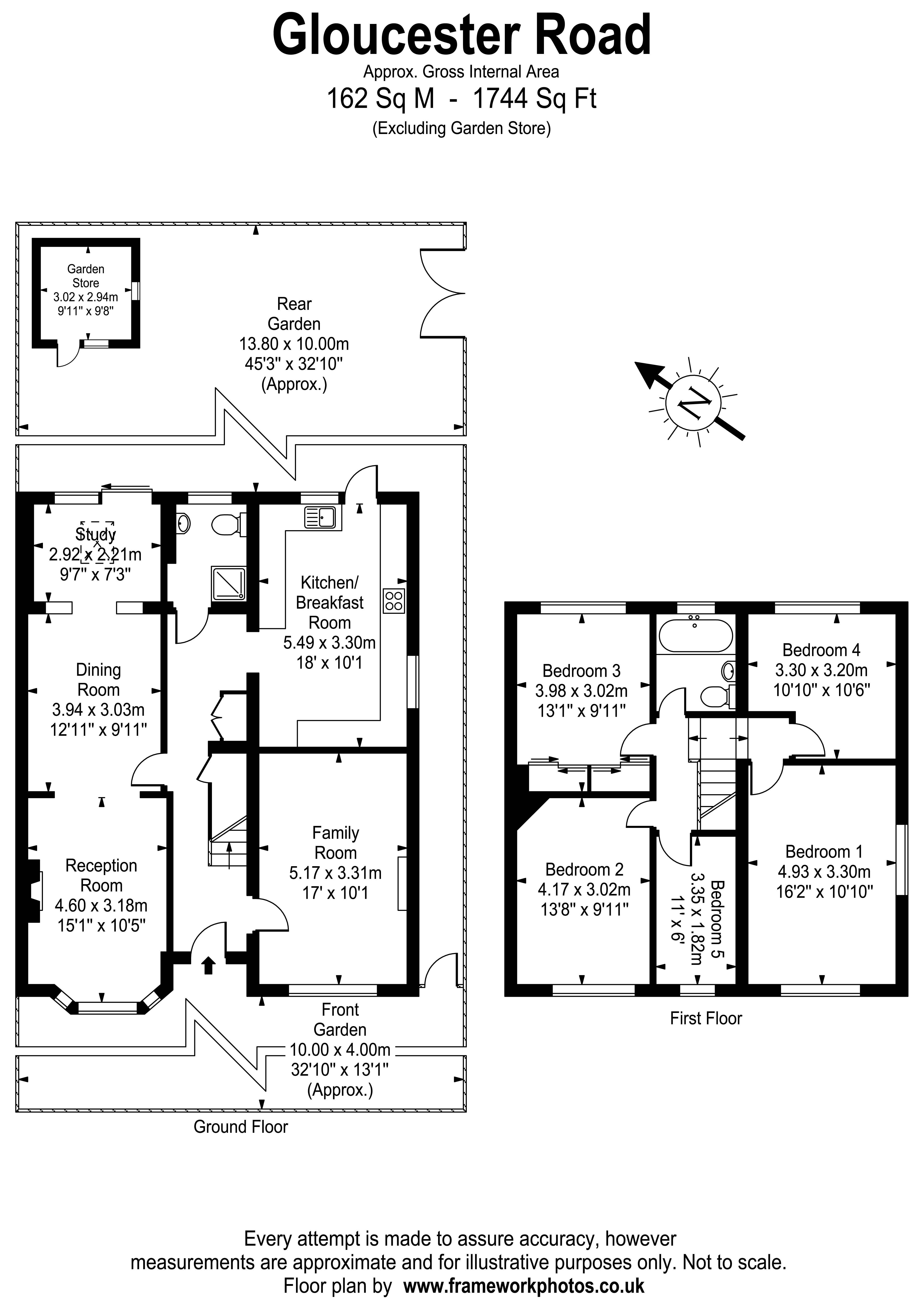
This substantial and well presented five bedroom, two bathroom family home forms part of the highly popular 'Counties' area of Twickenham within comfortable walking distance of Kneller and Crane Park (0.3 miles), and only half a mile to Whitton mainline station.



Available for the first time in over 40 years this much loved family home provides extremely flexible accommodation across just two floors. It is worth noting that the property has been incredibly well maintained by the current owner. The house occupies a nice corner position (with Wiltshire Gardens) facing south west and this therefore creates excellent natural light throughout to the house and garden, and a general feeling of space.  



It is already a good size home, but there is space to develop the roof into further accommodation if needed.  This type of work requires local authority consent, but a quick glance at neighbouring houses gives good insight into what has already been approved. 



The ground floor comprises entrance hall with under-stair cupboard, off to the left you will find a double reception room - set-up as a through lounge/dining room - which flows naturally into a 'pitched roof' study with sky-light window and patio doors opening to the garden.  This space would alternatively make a nice play room.  To the right of the hallway there is a good size family room backing onto a generous size kitchen / breakfast room with lots of storage and space of all appliances including a range cooker.  To complete the ground floor an inner lobby with built-in cupboard gives access to a highly practical shower room and W.C. 



Upstairs, the first floor accommodation provides a generous main bedroom, three further doubles, plus a good size single all supported by the main family bathroom.             



Outside, there is useful gated side access with a well kept lawned front garden enclosed by a low-level retainer wall.  An established rear garden is also mainly lawned with planted side boarders, front and back patios and tool/bike shed.  There is also a dropped kerb at the back with double gates opening to Wiltshire Gardens should someone wish make more permanent parking (although there are plenty of residents parking bays provided) or alternatively a more substantial garden studio / home office which are now popular due to flexible WFH arrangements.            



Location:  Gloucester Road is situated close to the open green spaces of Kneller Gardens and Crane Park; a great space for dog owners with lovely walks, jogging, cycling and fishing.  The town centre is within easy access with historic Twickenham Riverside, with its picturesque walks and riverside pubs. There are several highly regarded state and private schools in the area, including Trafalgar Infants, The Mall and Waldegrave Girls School which continues to be one of the top performing state schools in the country.  Commuter links are excellent with two railway stations in close proximity providing direct links to London Waterloo and frequent bus routes to nearby Richmond, Teddington & Kingston, plus easy access to the M3, M25 motorways and London Heathrow Airport.

Important Information

  • This is a Freehold property.

Property Ref: EAXML14612_12638402

Share:

Similar Properties

Wick Road, Teddington

5 Bedroom House | Guide Price £1,050,000

A traditional bay fronted Victorian property, tastefully presented and with lots of character, situated in a popular sid...

Hardman Road, Kingston Upon Thames

4 Bedroom House | Guide Price £1,020,000

This traditional bay fronted period home provides an escape from the hustle and bustle of the town centre and has surpri...

Dudley Road, Walton-On-Thames

4 Bedroom House | Guide Price £995,000

A traditional gable and bay fronted, detached family home positioned at the end of no through road within a highly covet...

Elm Tree Avenue, Esher

3 Bedroom Detached House | Guide Price £1,095,000

A detached three bedroom family home located on a popular residential road, close to Marney's Village Inn, duck pond and...

Hampton Court Road, East Molesey

3 Bedroom House | Guide Price £1,100,000

Miles & Bird, Estate Agents, East Molesey, are proud to present this beautifully restored Grade II listed house (1,679 s...

Feltham Avenue, East Molesey

3 Bedroom House | Asking Price £1,100,000

A handsome 'double-fronted' Victorian property situated in a popular crescent in the heart of East Molesey (Kent Town)...

Miles & Bird (East Molesey)

East Molesey, Surrey, KT8 9HA

020 3875 3875

How much is your home worth?

Use our short form to request a valuation of your property.

Request a Valuation

Mortgage Calculator

Amount Borrowed: £
Total Amount Repayable: £
Total Monthly Payment: £
©2026 The Guild of Property Professionals. All rights reserved. Terms and Conditions | Privacy Policy | Cookie Policy | Complaints Policy | Members Login
The Guild of Property Professionals Trading Address: 121 Park Lane, London W1K 7AG. GPEA Limited. Registered in England & Wales.  Company No: 02819824.  Registered Office Address: 2 St. Stephen's Court, St. Stephen's Road, Bournemouth, Dorset, England, BH2 6LA.  VAT Registration No: 576 8795 61
Book a Property Valuation Update Cookies Preferences