Bell Cottage, Bell Road, East Molesey

Guide Price
£650,000
SSTC
This property listing is now SSTC

2 Bedroom End of Terrace House for sale in East Molesey

2 2 1

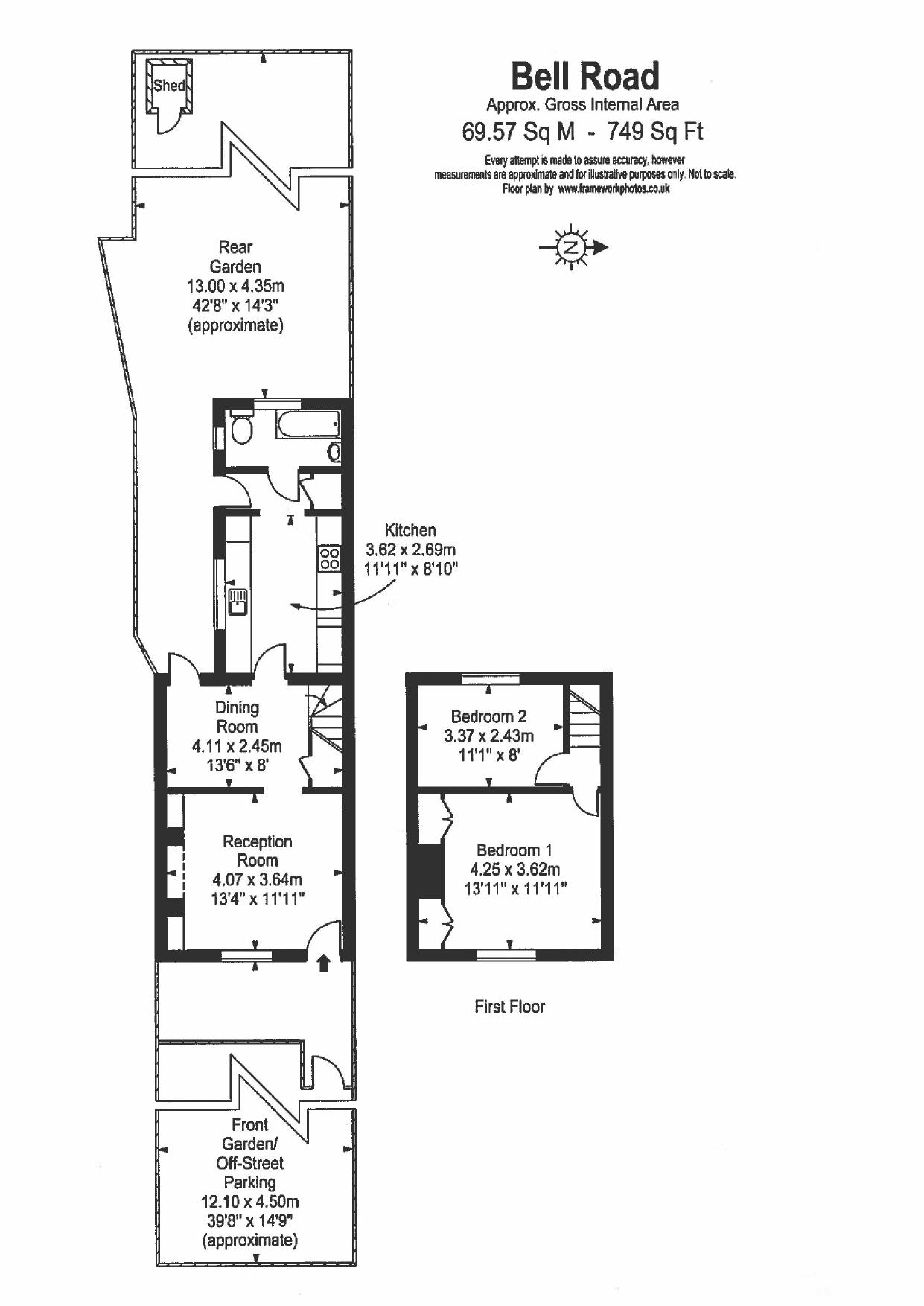
A pretty end of terrace cottage (dated to the late C18) sympathetically modernised by the current owner and is absolutely bursting with charm and character.  



It should be noted that the property is wider than others in the terrace.  Furthermore, it enjoys a favourable 'east to west' aspect with morning sunlight to the front and afternoon sunshine to a private rear garden of abt. 42 ft in depth.  It is a comparatively larger plot than typical cottages, with a good sized rear garden as well as a deep front driveway (approx. 40ft) to provide two off-street parking spaces in tandem. 



The overall character is immediately apparent on entry with features to include exposed ceiling beams, panelled doors with latches and a large open fireplace with wood burning stove (needs re-commissioning) to an inviting front sitting room.  Further accommodation includes a separate dining room with access to the garden, a modern and well fitted kitchen complete with a range of fitted Bosch appliances to include oven, gas hob and extraction unit, integrated dishwasher, and provides further space for a large American style fridge freezer, washing machine and tumble dryer.  To complete the ground floor there is a rear lobby with built-in storage and a stable door to the side return, and further door leads through to a double aspect bathroom recently updated with a white suite.  



Upstairs on the half landing is a ceiling hatch providing access to the loft space.  The principal bedroom is an excellent size (abt. 14 x 12ft / 4.25 x 3.62m)  with fitted wardrobes to alcoves, whilst the second bedroom is also a good double.  Other features include quality wool and seagrass carpets, and plantation shutters are fitted to the sitting room and principal bedroom. 



In addition, double-glazing was installed throughout the house (inc. new PVC stable door), new gutters, soffits and fascia board (fitted in 2021).  The hot water and central heating system (inc. new radiators) are operated by a quality Viessmann combi-boiler (installed Nov 2016).       



A low maintenance, part walled, rear garden is hard landscaped and also has the advantage of being particularly private and secluded. There is an upper and lower level patio, garden storage shed, external power, light and water tap.



Additional note.   Due to a current tenancy - vacant possession for sale completion is available for end of August 2025. 



Location:  Bell Road is one of the most historic parts of East Molesey forming part of the Old Town Conservation area.  The road houses the popular Bell Public House (circa. 1460) and the lovely St Mary's Church one end, and the far side a public path and footbridge leads to the Wilderness with lovely walks beside the River Mole.  The property itself enjoys a quiet and tranquil position with easy access to town centre shopping and amenities.  Hampton Court station (zone 6), beautiful riverside and the village area of Bridge Road is about half a mile away.

 

Important Information

  • This is a Freehold property.

Property Ref: EAXML14612_11744143

Share:

Similar Properties

Dennis Road, East Molesey

3 Bedroom House | Guide Price £650,000

An attractive Victorian semi-detached character property situated in a well regarded East Molesey Village side road, com...

High Street, West Molesey

3 Bedroom Semi-Detached House | Guide Price £650,000

A beautifully presented gable and bay fronted end of terrace property, enjoying a landscaped west facing rear garden and...

Friars Stile Road, Richmond

3 Bedroom Flat | Guide Price £650,000

SALE AGREED BY MILES & BIRD. A spacious three-bedroom duplex flat with private balcony forming part of a highly desirabl...

Winchilsea Crescent, Hurst Park

4 Bedroom House | Offers in region of £695,000

A four bedroom, two bathroom, detached house with driveway parking and garage, situated in quiet location on the East/We...

Queens Reach, East Molesey

2 Bedroom Ground Floor Flat | Guide Price £695,000

A spacious and tastefully refurbished, two bedroom, two bathroom, ground floor apartment set within this prestigious gat...

Pemberton Road, East Molesey

2 Bedroom Semi-Detached House | Offers in excess of £700,000

A traditional 'red-brick' semi-detached character property situated in a highly regarded East Molesey Village side road,...

Miles & Bird (East Molesey)

East Molesey, Surrey, KT8 9HA

020 3875 3875

How much is your home worth?

Use our short form to request a valuation of your property.

Request a Valuation

Mortgage Calculator

Amount Borrowed: £
Total Amount Repayable: £
Total Monthly Payment: £
©2026 The Guild of Property Professionals. All rights reserved. Terms and Conditions | Privacy Policy | Cookie Policy | Complaints Policy | Members Login
The Guild of Property Professionals Trading Address: 121 Park Lane, London W1K 7AG. GPEA Limited. Registered in England & Wales.  Company No: 02819824.  Registered Office Address: 2 St. Stephen's Court, St. Stephen's Road, Bournemouth, Dorset, England, BH2 6LA.  VAT Registration No: 576 8795 61
Book a Property Valuation Update Cookies Preferences