High Street, West Molesey

Guide Price
£650,000
Under Offer
This property listing is now Under Offer

3 Bedroom Semi-Detached House for sale in West Molesey

2 3 1
  • Victorian Charm
  • Modernised Family Home
  • Wood Burner
  • Oak Flooring 
  • Hardwood D/G Windows & Doors 
  • Utility Room / WC 
  • West Facing Landscaped Garden
  • Driveway Parking
  • Planning for Loft Conversion
  • EPC Rating C

A beautifully presented gable and bay fronted end of terrace property, enjoying a landscaped west facing rear garden and the advantage of driveway parking at the front.

This handsome late Victorian family home enjoys the best of both worlds; the charm of a period property, whilst being comprehensively improved by the current owner to provide tastefully modernised interior spaces with quality fittings and finishes.   

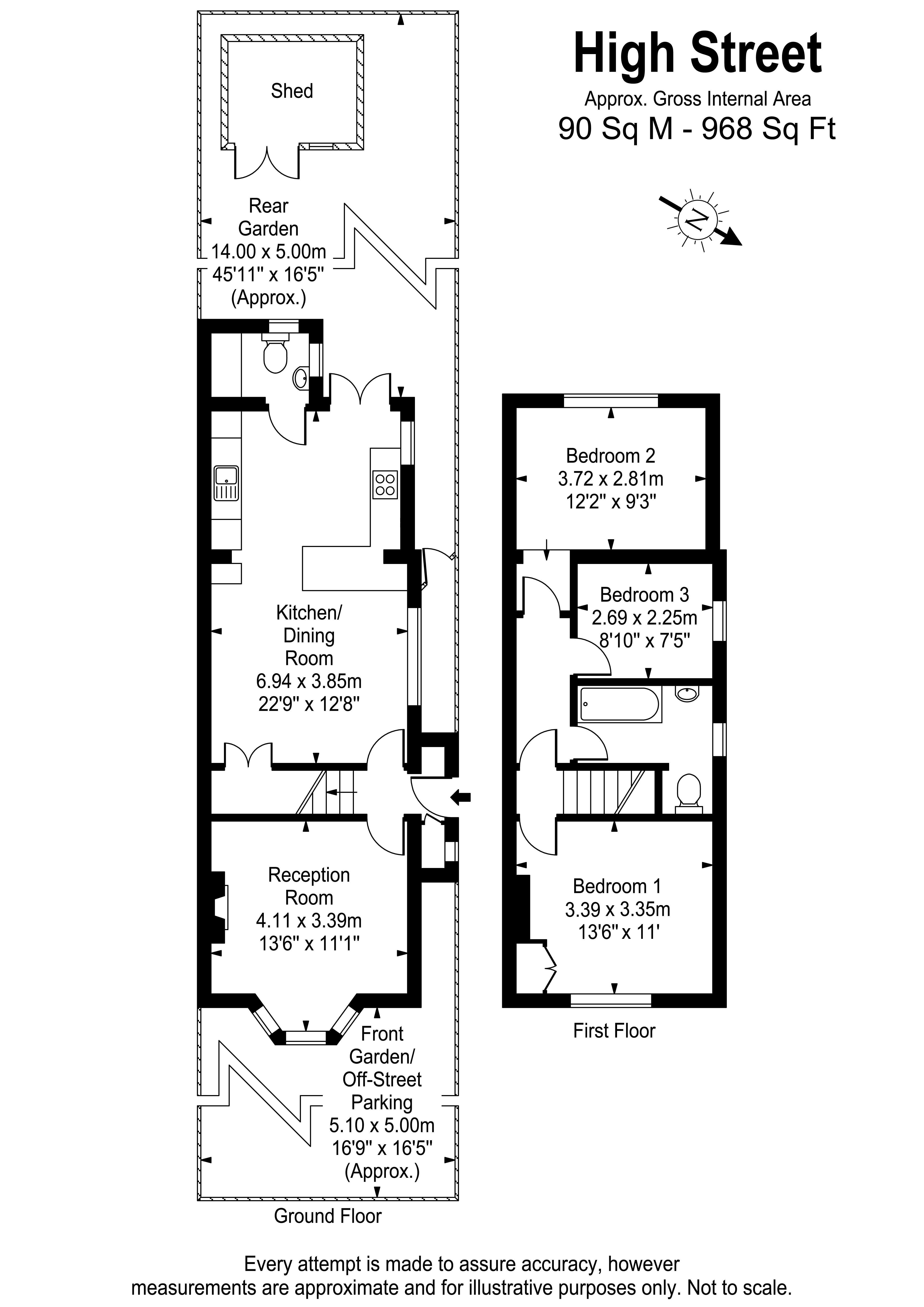
The ground floor is laid with oak flooring throughout and consists of a side entrance to hallway with useful coats and storage cupboard.  Immediately on the left, takes you through to an inviting front sitting room with bay window (inc. built-in window seat), the main focal point being a fireplace with oak mantle, slate hearth and wood burner.   At the back of the house you will find an impressive open-plan kitchen / diner with under-stairs cupboard and twin doors opening out to the garden terrace. 

The shaker style kitchen is fully integrated to include; Bosch dishwasher, fridge/freezer, separate under counter wine fridge, and Fisher & Paykel induction hob with separate double oven/grill, and is further complimented by quartz stone worktops with upstands and finished with peninsula breakfast bar and hanging lights over.  To complete the ground floor there is a separate utility room with W.C, including fitted laundry cupboard housing a washing machine, further high-level cupboard and again fitted with quartz stone work top and upstands. 

Upstairs, there are three good size bedrooms.  The front aspect main bedroom has oak flooring and fitted wardrobe.  There is a further good double bedroom overlooking the back garden, and a good size single also with oak flooring which currently accommodates a double bed.  The bedrooms are supported by a beautifully appointed family bathroom fitted to a period style, and includes a vanity unit topped with Carrera marble.   There is power and light to the attic, and it should be noted that plans exist for a loft conversion, consented under a Certificate of Lawfulness which is not time limited, as the works described are held in perpetuity.

Other notable features include replacement sash windows and doors which are all hardwood and double-glazed together with fitted plantation shutters to the dining area and first floor bathroom 

Outside, the garden enjoys a sunny aspect and features sunken terrace laid with Egyptian limestone which continues down the side path and out to the front.  The remainder is lawned with established borders.  There are two storage sheds, power sockets, water tap and lighting.  The front driveway also has power and lights (inc. front door lights) both are light sensitive, with 'dawn & dusk' settings. 

Location:  The property is located in the heart of West Molesey. St. Peter's Church at the junction of High Street and Walton Road is the oldest building in Molesey with its Medieval Watch Tower purportedly referenced in the Doomsday archives.  Local amenities are in abundance as well as superb parkland (The Heath and Wilderness), lovely Thames towpath walks, and plenty of shops and restaurants in East and West Molesey High streets and the village area of Bridge Road.  There is also Sainsburys Local a few minutes walk away. 

Important Information

  • This is a Freehold property.

Property Ref: M&B1342

Share:

Similar Properties

Mallard Place, Strawberry Hill

2 Bedroom Flat | Guide Price £650,000

A rarely available duplex apartment forming part of an award winning riverside development by well renowned architects G...

Bell Cottage, Bell Road, East Molesey

2 Bedroom End of Terrace House | Guide Price £650,000

A pretty end of terrace cottage (dated to the late C18) sympathetically modernised by the current owner and is absolutel...

Dennis Road, East Molesey

3 Bedroom House | Guide Price £650,000

An attractive Victorian semi-detached character property situated in a well regarded East Molesey Village side road, com...

Winchilsea Crescent, Hurst Park

4 Bedroom House | Offers in region of £695,000

A four bedroom, two bathroom, detached house with driveway parking and garage, situated in quiet location on the East/We...

Queens Reach, East Molesey

2 Bedroom Ground Floor Flat | Guide Price £695,000

A spacious and tastefully refurbished, two bedroom, two bathroom, ground floor apartment set within this prestigious gat...

Pemberton Road, East Molesey

2 Bedroom Semi-Detached House | Offers in excess of £700,000

A traditional 'red-brick' semi-detached character property situated in a highly regarded East Molesey Village side road,...

Miles & Bird (East Molesey)

East Molesey, Surrey, KT8 9HA

020 3875 3875

How much is your home worth?

Use our short form to request a valuation of your property.

Request a Valuation

Mortgage Calculator

Amount Borrowed: £
Total Amount Repayable: £
Total Monthly Payment: £
©2026 The Guild of Property Professionals. All rights reserved. Terms and Conditions | Privacy Policy | Cookie Policy | Complaints Policy | Members Login
The Guild of Property Professionals Trading Address: 121 Park Lane, London W1K 7AG. GPEA Limited. Registered in England & Wales.  Company No: 02819824.  Registered Office Address: 2 St. Stephen's Court, St. Stephen's Road, Bournemouth, Dorset, England, BH2 6LA.  VAT Registration No: 576 8795 61
Book a Property Valuation Update Cookies Preferences