Hampton Court Mews, East Molesey

Offers in excess of
£475,000
Under Offer
This property listing is now Under Offer

2 Bedroom Flat for sale in East Molesey

1 2 2
  • Hampton Court Station (0.1m)
  • Two generous double bedrooms
  • Amongst Cafés, Independent retailers, Delis & Restaurants
  • En suite shower + second bathroom
  • Beautiful Riverside & Royal Parks on the doorstep
  • Allocated undercroft parking
  • Private balconies & residents roof terrace
  • Good storage cupboard
  • Excellent condition | wood floors
  • Long Lease

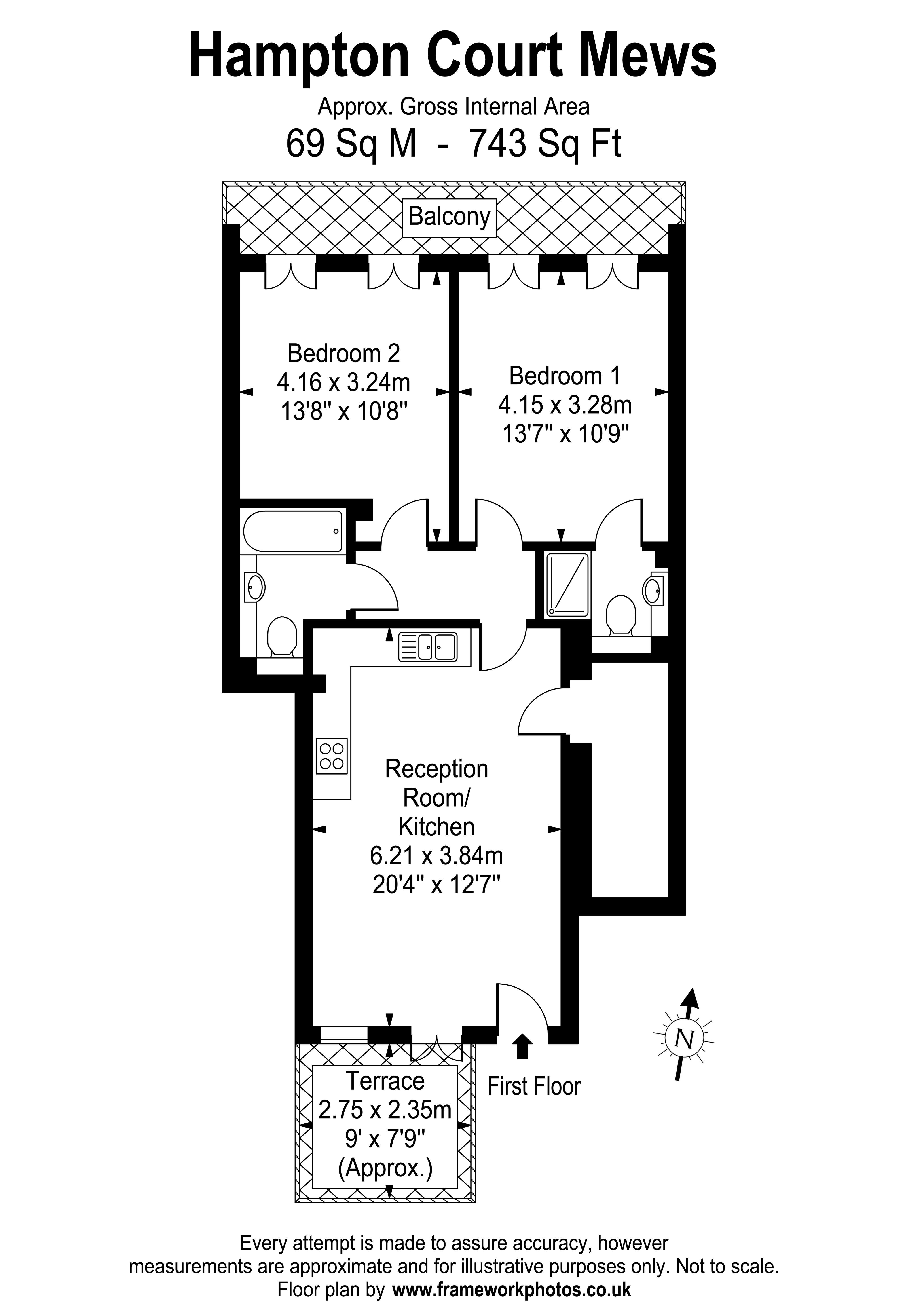
A superb two bedroom, two bathroom, first floor apartment with private outdoor spaces and allocated parking, right in the heart of Hampton Court, moments from Bridge Road's vibrant café culture, and beautiful riverside setting with Historic Palace & Royal Parks all close by with (zone 6) mainline station less than 0.1m.



The property is sensibly priced factoring all the benefits on offer – this will be evidenced by prospective buyers on review of others available in the market. The main entrance to Hampton Court Mews is from Bridge Road beside the popular Mada Deli Café or via secure gated parking behind in Feltham Avenue.



The apartment is one of three (12 total) that benefit from their own private flat door accessed from the residents roof garden.  As you enter the flat there is a good feeling of space and light with well designed open-plan living connecting the sitting room and kitchen/diner.  The sitting room has wood flooring and enjoys twin-door access that opens to a privately decked terrace with comfortable space for seating / outside dining.  There is a well equipped kitchen with integrated appliances, and opposite is a deep and highly practical storage cupboard, housing an updated combi-boiler.  



An inner hallway leads to two generous double bedrooms both providing two sets of twin-doors opening up onto a private balcony which soaks up the afternoon sunshine and lovely rear views over Feltham Avenue – a popular residential side road of predominantly attractive Victorian family homes.  There is an ensuite shower room to the main bedroom and a separate bathroom for visitors and guests.  



A residents' roof garden is incredibly inviting and a wonderful bonus outside space that you wouldn't expect in such a central location. It has seating areas and planters and at ground level there is undercroft allocated parking bays for residents with secure remotely operated gates.  EPC C. Council Tax E.    



Tenure: Leasehold with approx. 135 years remaining

Service charge:  £3k pa (due to be reduced as of 2026)

Ground rent: £150 pa

Important Information

  • This is a Leasehold property.

Property Ref: EAXML14612_12689252

Share:

Similar Properties

Pavilion Place, East Molesey

2 Bedroom Flat | Guide Price £450,000

An immaculate two-bedroom first floor apartment with allocated parking, set within approximately two acres of establishe...

Fieldend, Strawberry Hill

3 Bedroom Semi-Detached House | Auction Guide Price £450,000

Being sold via Secure Sale online bidding. Terms & Conditions apply. Starting Bid £450,000This property will be legally...

Queens Reach, East Molesey

1 Bedroom Ground Floor Flat | Guide Price £425,000

A spacious one bedroom ground floor apartment occupying a prime position facing the river within the highly sought after...

Hampton Court Mews, East Molesey

2 Bedroom Flat | Guide Price £489,000

Moments from Bridge Road's vibrant café and restaurant culture, beautiful riverside, and Hampton Court mainline station...

Regatta House, The Wharf, Teddington

2 Bedroom Flat | Guide Price £490,000

A two bedroom, two-bathroom, second floor (lift serviced) apartment with secure parking and a sunny aspect balcony enjoy...

Motcombe House, Palace Road, East Molesey

2 Bedroom Ground Floor Flat | Offers in excess of £500,000

A spacious two double bedroom balconied apartment with stunning views over the gardens from the living room and kitchen...

Miles & Bird (East Molesey)

East Molesey, Surrey, KT8 9HA

020 3875 3875

How much is your home worth?

Use our short form to request a valuation of your property.

Request a Valuation

Mortgage Calculator

Amount Borrowed: £
Total Amount Repayable: £
Total Monthly Payment: £
©2026 The Guild of Property Professionals. All rights reserved. Terms and Conditions | Privacy Policy | Cookie Policy | Complaints Policy | Members Login
The Guild of Property Professionals Trading Address: 121 Park Lane, London W1K 7AG. GPEA Limited. Registered in England & Wales.  Company No: 02819824.  Registered Office Address: 2 St. Stephen's Court, St. Stephen's Road, Bournemouth, Dorset, England, BH2 6LA.  VAT Registration No: 576 8795 61
Book a Property Valuation Update Cookies Preferences