Fieldend, Strawberry Hill

Auction Guide Price
£450,000
SSTC
This property listing is now SSTC

3 Bedroom Semi-Detached House for sale in Twickenham

1 3 1
  • CASH BUYERS ONLY / UN-MORTGAGEABLE / SHORT LEASE
  • Richmond Borough | Twickenham/Teddington Borders
  • Being Sold via ‘Secure Sale’
  • Designated Conservation Area
  • Immediate ‘exchange of contracts’ available
  • Grade II listed Communal Grounds
  • Award Winning Span Development
  • Private Garage

Being sold via Secure Sale online bidding. Terms & Conditions apply. Starting Bid £450,000

This property will be legally prepared enabling any interested buyer to secure the property immediately once their bid/offer has been accepted. Ultimately a transparent process which provides speed, security and certainty for all parties.

Description

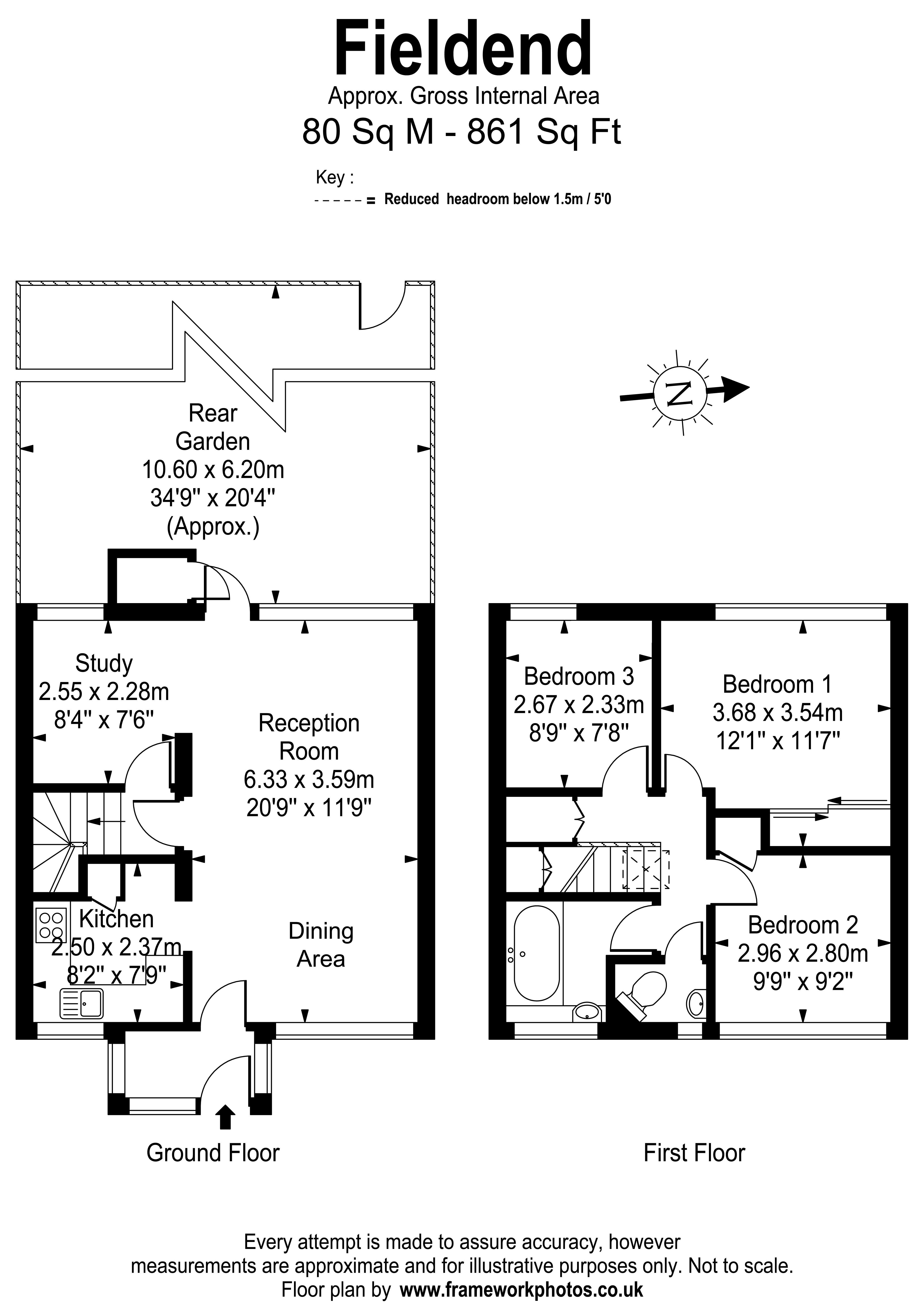
A three-bedroom, two storey, terraced house with private rear garden.  The accommodation comprises entrance porch, through reception room opening to separate study overlooking the garden, and modern kitchen, whilst the first floor provides three bedrooms, bathroom and separate W.C.  Room layout and dimensions are illustrated on the floor plan provided (due 28/01/2026) showing an internal floor area of approx. 84.1 sqm / 905 sq ft.  Electric convector heating to the ground floor (no gas connection) and heated towel radiator to the bathroom. A lovely private garden is planted with mature trees and shrubs and enjoys gated access to the service road behind.  This property comes with a lock-up garage and a parking space in tandem.  

The concept of Span living is the marriage between the built and natural environment, engendering the quiet sense of retreat from the city that is so loved by Fieldend's residents.  There is an active community and Residents Association. 

Fieldend in Strawberry Hill, Twickenham, is often considered to be one of the most appealing of Eric Lyons’ Span estates. Built in 1961, there are 51 houses that enjoy shared access to beautifully maintained communal gardens with seating areas, together with plenty of resident and visitor parking bays.  Garden landscaping is now Grade II-listed in recognition of its distinctive vision. The estate is largely pedestrianised – with a perimeter road allowing for access to garages.  There are three EV charging points for residents.

The Architect

Span is perhaps the most celebrated of all 20th-century residential developers, with many of their buildings throughout the south of England now listed. Founded by architect-turned-developer Geoff Townsend and Eric Lyons (thoroughly schooled in the modern movement having worked for Bauhaus designer Walter Gropius from 1936-37), their designs sought to bring the tenets of modernism – light, openness, a sense of order – to suburban areas on a domestic scale. The company built 30 housing estates between 1948 and 1984.

Location

Fieldend Estate can be found in Strawberry Hill, a popular residential neighbourhood in the London Borough of Richmond upon Thames.  Teddington and Twickenham high streets are both one mile away. Teddington was voted the best place to live in London by The Times in 2021 and boasts a vast array of quality independent retailers, restaurants & cafés, and a recently launched farmers’ market. Twickenham has a range of shops and pubs including a Waitrose and a farmers’ market on Saturdays.

The larger shopping areas of Kingston and Richmond are within easy reach. Fieldend is abt. a 10-minute walk from the River Thames at Radnor Gardens as well as Teddington Lock with access to the towpath for walking and cycling routes in both directions. Bushy Royal Park is also close by, next to Hampton Court Palace.  Richmond Park is a few miles away.

There are good transport links in the area. Strawberry Hill Station is a 10-minute walk and offers services to London Waterloo with journey times of around 35 mins (fast trains from Twickenham 21-22 mins). There are regular buses into Richmond (where the Underground also runs District Line services) and Kingston. It is a short drive to the M3, with good access to the M25 and M4.

Tenure:  Leasehold.  Held on a 99 year term from 25/12/1959 (Balance of 32 years)

Service charge:  Approx. £1,800 pa.  

Council Tax:  Band E

EPC: tbc (due 28/01/2026)

 

Auctioneers Additional Comments 

Pattinson Auction are working in partnership with the marketing agent on this online auction sale and are referred to below as 'The Auctioneer'. 

 

This auction lot is being sold either under conditional (Modern) or unconditional (Traditional) auction terms and overseen by the auctioneer in partnership with the marketing agent. 

 

The property is available to be viewed strictly by appointment only via the Marketing Agent (Miles & Bird Estate Agents) or The Auctioneer (Pattinson Auction). Bids can be made via the Marketing Agents or via The Auctioneers website. 

 

Please be aware that any enquiry, bid or viewing of the subject property will require your details being shared between both any marketing agent and The Auctioneer in order that all matters can be dealt with effectively. 

 

The property is being sold via a transparent online auction.  

In order to submit a bid upon any property being marketed by The Auctioneer, all bidders/buyers will be required to adhere to a verification of identity process in accordance with Anti Money Laundering procedures. Bids can be submitted at any time and from anywhere.  

Our verification process is in place to ensure that AML procedures are carried out in accordance with the law. 

 

A Legal Pack associated with this particular property is available to view upon request and contains details relevant to the legal documentation enabling all interested parties to make an informed decision prior to bidding. The Legal Pack will also outline the buyers’ obligations and sellers’ commitments. It is strongly advised that you seek the counsel of a solicitor prior to proceeding with any property and/or Land Title purchase. 

 

Auctioneers Additional Comments 

In order to secure the property and ensure commitment from the seller, upon exchange of contracts the successful bidder will be expected to pay a non-refundable deposit equivalent to 5% of the purchase price of the property. The deposit will be a contribution to the purchase price. A non-refundable reservation fee of up to 4.5% inc VAT (subject to a minimum of 6,000 inc VAT) is also required to be paid upon agreement of sale. The Reservation Fee is in addition to the agreed purchase price and consideration should be made by the purchaser in relation to any Stamp Duty Land Tax liability associated with overall purchase costs. 

 

Both the Marketing Agent and The Auctioneer may believe necessary or beneficial to the customer to pass their details to third party service suppliers, from which a referral fee may be obtained. There is no requirement or indeed obligation to use these recommended suppliers or services. 

Important Information

  • This is a Leasehold property.

Property Ref: M&B1327

Share:

Similar Properties

Pavilion Place, East Molesey

2 Bedroom Flat | Guide Price £450,000

An immaculate two-bedroom first floor apartment with allocated parking, set within approximately two acres of establishe...

Hampton Court Road, East Molesey

2 Bedroom Ground Floor Flat | Guide Price £450,000

A two bedroom, two bathroom, ground floor apartment with private balcony off the living room overlooking beautifully ten...

Queens Reach, East Molesey

1 Bedroom Ground Floor Flat | Guide Price £425,000

A spacious one bedroom ground floor apartment occupying a prime position facing the river within the highly sought after...

Hampton Court Mews, East Molesey

2 Bedroom Apartment | Offers in excess of £475,000

A superb two bedroom, two bathroom, first floor apartment with private outdoor spaces and allocated parking, right in th...

Hampton Court Mews, East Molesey

2 Bedroom Flat | Guide Price £489,000

Moments from Bridge Road's vibrant café and restaurant culture, beautiful riverside, and Hampton Court mainline station...

Regatta House, The Wharf, Teddington

2 Bedroom Flat | Guide Price £490,000

A two bedroom, two-bathroom, second floor (lift serviced) apartment with secure parking and a sunny aspect balcony enjoy...

Miles & Bird (East Molesey)

East Molesey, Surrey, KT8 9HA

020 3875 3875

How much is your home worth?

Use our short form to request a valuation of your property.

Request a Valuation

Mortgage Calculator

Amount Borrowed: £
Total Amount Repayable: £
Total Monthly Payment: £
©2026 The Guild of Property Professionals. All rights reserved. Terms and Conditions | Privacy Policy | Cookie Policy | Complaints Policy | Members Login
The Guild of Property Professionals Trading Address: 121 Park Lane, London W1K 7AG. GPEA Limited. Registered in England & Wales.  Company No: 02819824.  Registered Office Address: 2 St. Stephen's Court, St. Stephen's Road, Bournemouth, Dorset, England, BH2 6LA.  VAT Registration No: 576 8795 61
Book a Property Valuation Update Cookies Preferences