Newick Lane, Heathfield

Offers in region of
£1,295,000

5 Bedroom Detached House for sale in East Sussex

3 5 3

GUIDE PRICE: £1,295,000 - £1,345,000

• NO ONWARD CHAIN- QUICK SALE AVAILABLE

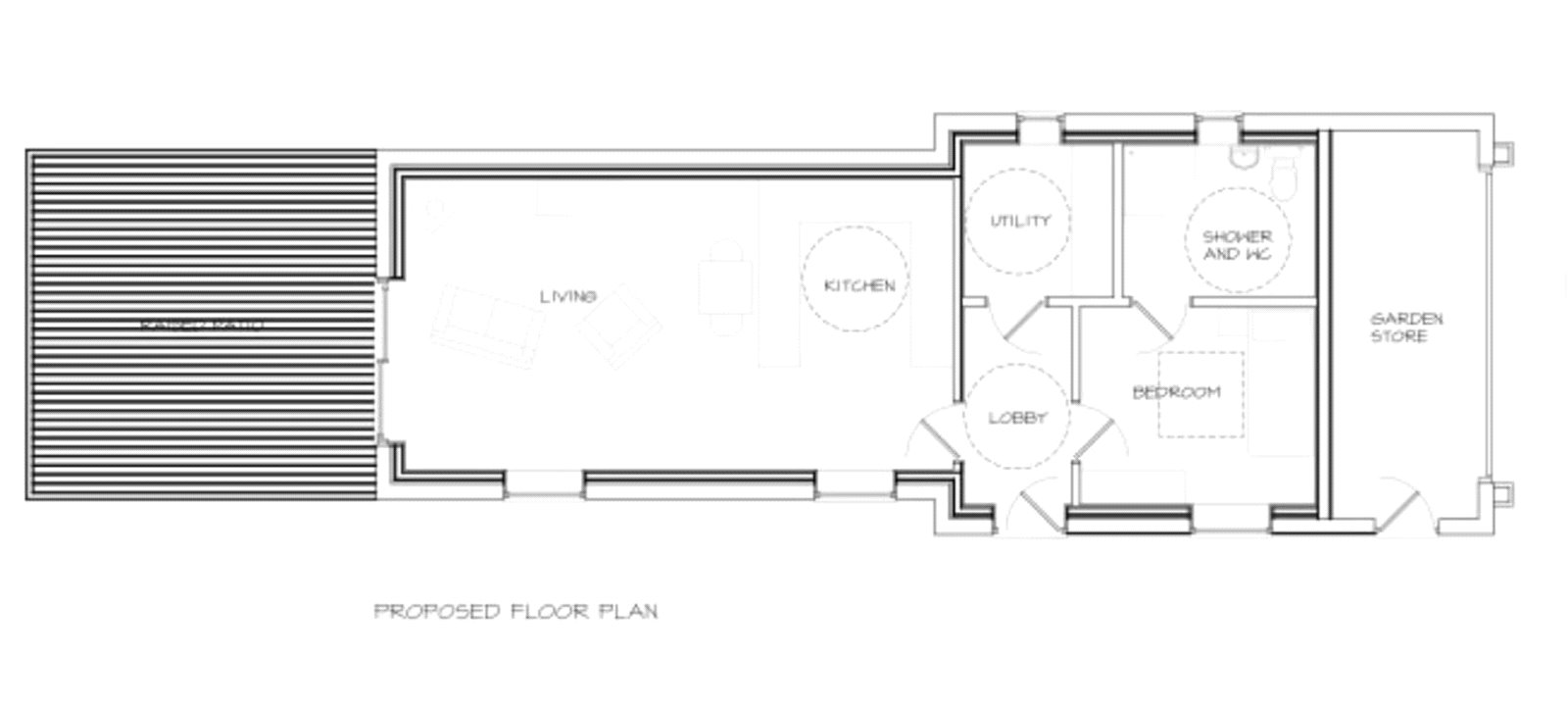
• Planning permission has recently been granted to convert and extend the large existing detached garage complex into a luxury detached annex

• An impressive and substantial sized detached 5 bedroomed country residence set within circa 3.69 acres (to be verified)

• Benefitting from stunning far reaching panoramic rural views

• Large and extensive gravelled driveway with parking areas for a number of vehicles

• Grazing paddocks to the side and rear of the property

• Woodland area

• Large landscaped gardens

• The majority of the land is south facing

• The property has been extensively updated and enhanced throughout, with numerous character features, including open fireplaces and high-level beamed ceilings

• Entrance vestibule

• Large vaulted ceilinged reception hall

• Sitting room with inglenook fireplace and wood burner

• Large formal dining room

• Study / family room

• Conservatory

• Impressive luxurious kitchen / breakfast room

• Rear lobby

• Cloakroom

• Ground floor bedroom 5

• Ground floor 2nd family shower room

• First floor galleried landing

• Four further bedrooms to the first floor

• Main bedroom one with luxury ensuite shower room and ensuite walk in dressing room, as well as a retractable Juliet balcony with stunning views

• Laundry room to first floor

• 1st luxury family bathroom / shower room to first floor

• Double glazed windows and doors throughout

• Convenient driving distance from the mainline train stations of Stonegate, Etchingham and Buxted, making this property perfect for London commuters

• Suitable for equestrian use with a number of grazing paddocks

LOCATION: Situated in a semi-rural location in a wonderful elevated position and enjoying stunning far reaching southerly views as far as the eye can see all the way to the south downs.

The village of Mayfield and town of Heathfield are only a short drive away, which are able to provide excellent shopping and leisure facilities.

London buyers can easily commute from this impressive detached 5 bedroomed residence using the mainline train stations of Stonegate, Etchingham and Buxted.

Depending upon educational needs, there are numerous schools to choose from, including Mayfield School for Girls, Tonbridge School for Boys, Bede’s and Heathfield to name but a few.

Horse riding, cycling and walking are also popular in the area, in addition to a number of local golf courses and sporting clubs.

DESCRIPTION: A very rare chance to buy a substantial sized and extensively refurbished detached 5 bedroomed and five reception roomed house set within its own private gardens and associated grazing paddocks, including some beautiful woodland totalling circa 3.69 acres (to be verified) and enjoying wonderful and breath taking panoramic far-reaching views all the way to the south downs.

Set off the highly desirable Newick Lane and situated between Heathfield and Mayfield, with the benefit of both its own main private gated entrance, as well as a further access track to its grazing paddocks and woodland located to the side and rear of the property.

The main residence is arranged on two floors, with an entrance vestibule, a large reception hall, a sitting room, a formal dining room, a study / family room, a conservatory, a kitchen / breakfast room with a general dining room, a cloakroom, a rear lobby, a bedroom 5 ground floor room with a luxury shower room, a galleried landing, a laundry room, a family bathroom / shower room, a main bedroom with an ensuite shower room and walk in dressing room, as well as three further bedrooms, all of which have stunning rural views.

The whole house has been carefully upgraded and redecorated to a very good standard, as well as enjoying double glazed windows, and doors with wonderful aspects and views. All the rooms are generously proportioned and have numerous character features throughout, including open fireplaces, beamed ceilings and character doors.

The large driveway with parking areas also has a detached garage building complex, which has recently had planning granted to extend and convert into a luxury annex for an elderly relative.

The circa 3.69 acres of land with amazing views beyond are ideal for horses or other livestock / animals if required.

We strongly recommend a viewing to appreciate the property’s large and luxurious accommodation and idyllic location, which as previously mentioned has fabulous stunning rural panoramic views as afar as the eye can see.

ACCOMMODATION: From the main extensive sized gravelled driveway, you are able to approach the property’s impressive and substantial sized character door front door, which opens into the property’s front entrance vestibule.

ENTRANCE VESTIBULE: Comprising of a triple aspect, storage cupboards and window seats to both sides, with double glazed arched windows also above, further double-glazed windows, to the front gardens, twin spotlights, twin paned and wooden doors opening into the impressive main reception hall.

MAIN RECEPTION HALL: A naturally bright and spacious hall with a vaulted ceiling and attractive galleried landing above, under stairs storage cupboard, downlighting, radiator, double glazed window with aspect to the front gardens, doors leading off from the main reception hall to a sitting room, a formal dining room and a kitchen / breakfast room, as well as a feature metal staircase leading to the first-floor accommodation.

SITTING ROOM: Approached from the main reception hall through a pair of glazed and paned doors, as well as from the kitchen / breakfast room. This room is triple aspect with a fabulous brick inglenook fireplace with a fitted wood burner and oak surround and brick hearth, high level beamed ceilings, downlighting, radiators, double glazed windows with aspect to the side gardens and front gardens, as well as double glazed windows and doors to the rear gardens with wonderful views beyond, twin doors opening to the kitchen / breakfast room.

KITCHEN / BREAKFAST ROOM: Beamed ceilings, downlighting, tiled floors, breakfast area / general dining area, further lounge area, double glazed French doors opening to the rear gardens with fabulous breath-taking views beyond, further internal glazed and paned door leading to the rear lobby and cloakroom.

KITCHEN AREA: With an extensive range of attractive modern shaker cupboard and base units with granite worktops over, fitted glazed and steel oven and grill, further electric ceramic hob with stainless steel over, tiled surrounds, fitted sink with mixer tap and drainer, double glazed window with aspect over the rear gardens and beyond to stunning panoramic views of the adjoining countryside as far as the eye can see, space fridge freezer, wooden and glazed door to the formal dining room.

REAR LOBBY: Comprising of tiled floors, coats area, door to cloakroom and double glazed door to the rear garden.

CLOAKROOM: Further door to WC, wash basin with and tiled splashback, chrome mixer tap, porthole feature window, tiled floor, storage cupboards.

LARGE FORMAL DINING ROOM: Approached from the main reception hall and the kitchen / breakfast room, as well as from the inner rear hall. This naturally bright and spacious room has high level beams to the ceilings, as further feature central beam, downlighting, a feature fireplace with a fitted wood burner, a large double glazed bay window with window seat incorporated with attractive aspect over the front gardens, further large full height double glazed windows also with aspect over the front gardens, radiators and door leading to rear hall.

REAR HALL: With a beamed high-level ceiling, with a number of doors leading off to a family room / study, a downstairs double bedroom and a large bathroom / shower room.

BEDROOM 4 (downstairs double room): A double aspect double sized bedroom with a feature brick fireplace, high level beamed ceiling, downlighting, fitted wardrobes, radiator, large double glazed bay window with window seat incorporated and having aspect over the front gardens, further double-glazed windows with aspect to the side gardens.

DOWNSTAIRS BATHROOM / SHOWER ROOM (2nd family bathroom facility also servicing bedroom 4): Comprising a fitted bath with chrome taps, shower attachment, WC, pedestal wash basin, chrome mixer tap, chrome heated towel rail, corner shower with glazed and chrome sides, tiled walls, chrome controls, feature exposed brick wall, radiator to wall, double glazed window.

FAMILY ROOM / STUDY: A double aspect double sized room with high level beamed ceilings, down lights, brick feature fireplace, fitted cupboards, radiator, double glazed window with aspect to the side gardens with stunning rural views beyond, further double-glazed window with aspect over the rear gardens and wonderful rural views beyond, further twin double glazed doors to the conservatory.

CONSERVATORY: A triple aspect room with tiled floors, low brick walls, glazed roof, double glazed sides and doors also leading out to the large rear gardens with views over the adjoining paddocks and woodland.

FIRST FLOOR ACCOMMODATION: From the main reception hall, there is an elegant and impressive feature staircase with Spanish style metal balustrading, and which lead up to a similar metal balustraded galleried first floor landing.

FIRST FLOOR LANDING: This large naturally bright galleried landing has beamed vaulted ceilings, and numerous doors leading off to bedrooms, 1,2,3 and 5, as well as to a luxurious family bathroom / shower room and also a laundry room.

BEDROOM ONE PRINCIPAL SUITE WITH AN ENSUITE DRESSING ROOM & AN ENSUITE SHOWER ROOM: This large double sized triple aspect bedroom has double glazed windows with amazing stunning far reaching panoramic rural views as far as the eye can see, downlighting, radiators, door to walk in wardrobe cupboard with radiator, further door to luxury ensuite shower room.

BEDROOM ONE LUXURY ENSUITE SHOWER ROOM: Comprising of tiled floors, radiator, WC, shower with heavy glazed front, shower control systems, beamed ceiling down lighting, vanity cupboards, wash basin, double glazed windows.

BEDROOM TWO: A double sized bedroom with radiator, downlighting, fitted wardrobe cupboard, double glazed window with aspect to rear gardens and adjoining paddocks, with stunning far reaching rural views.

BEDROOM THREE: A double sized room with radiator, downlighting, fitted cupboard and double-glazed window with aspect over the front gardens and grounds.

BEDROOM FIVE: A large sized single room with radiator, downlighting, fitted wardrobe cupboard, double glazed window with wonderful rural views.

FAMILY BATHROOM / SHOWER ROOM: Fitted bath with chrome mixer taps, WC, wash basin with chrome taps, mirror to wall above sink, radiator, double glazed window with aspect over the rear gardens and views beyond over the adjoining paddocks and panoramic rural views as far as the eye can see.

LAUNDRY ROOM: Comprising of a tiled floor, fitted units, with worktops over fitted sink and drainer, tiled surrounds, radiator, storage cupboards, spaces for dryer and washing machine, double glazed window with aspect over the front gardens.

OUTSIDE: The property has a large gravelled entrance drive accessed via a pair of wooden gates, with the driveway leading past the house with landscaped gardens either side and beyond to a generous sized parking area.

GARAGE COMPLEX: There is currently a large detached garage building beyond the parking areas and this large brick and rendered building is currently forming part of the new planning application that has been granted for a detached annex (with an extension) PLEASE SEE ATTACHED IMAGES OF PLANNING DESIGN WITHIN THE PHOTOS.

FRONT GARDENS: These are attractive mature landscaped areas with lawn and stocked flower borders and mature hedging to the front boundary.

SIDE PADDOCK: As you come off Newick Lane before the property’s entrance gates, there is a large grazing paddock to the left and an access track leading to the further paddocks and woodland behind the property. The side paddock is accessed off the is track by a five-bar wooden gate and comprises of grazing land with a fenced boundary and woodland to its rear.

REAR GARDEN: The rear gardens are also very extensive in size and are circa half an acre and lead down to the property’s adjoining paddocks.

The rear gardens have a wonderful south facing aspect and enjoy amazing stunning and panoramic breath-taking views all the way to the south downs.

There is a sun terrace that adjoins the back of the house, which winds round the side as well.

These gardens are arranged to lawns predominantly and to the left side are storage and garden sheds, as well as a pedestrian gate leading to the access track to the woodland and further grazing paddocks below, in addition to the side paddock to the side of the property.

WOODLAND: This is a very attractive area used by the family for recreation and which then adjoins the large further grazing paddock below.

LOWER GRAZING PADDOCK: This is also fenced and arranged as grass paddocks and would be ideal for horses. There is also the continuation of the stunning rural views beyond.

PLEASE NOTE: The total acreage is believed to be circa 3.69 acres (to be verified)

AGENTS NOTE: Please note that these details have been prepared as a general guide and do not form part of a contract. We have not carried out a detailed survey, nor tested the services, appliances and specific fittings. Room sizes are approximate and should not be relied upon. Any verbal statements or information given about this property, again, should not be relied on and should not form part of a contract or agreement to purchase.

EPC: E

Council Tax Band: G

Important Information

  • This is a Freehold property.
  • This Council Tax band for this property is: G
  • EPC Rating is E

Property Ref: FAN250027

Share:

Similar Properties

Gun Hill, Chiddingly

4 Bedroom Detached House | Guide Price £1,295,000

Bungalow 1 GUIDE PRICE: £1,295,000 to £1,350,000• New build luxury bespoke detached 4 double bedroomed bungalow / single...

Rolling Fields View, Newick Lane

4 Bedroom Detached House | Guide Price £1,250,000

GUIDE PRICE £1,250,000PLEASE VIEW OUR VIRTUAL TOUR HERE OR ON OUR WEBSITE www.nevilleandneville.co.ukNEW BUILD BESPOKE 2...

Rolling Fields View, Newick Lane

4 Bedroom Detached House | Guide Price £1,250,000

GUIDE PRICE £1,250,000PLEASE VIEW OUR VIRTUAL TOUR HERE OR ON OUR WEBSITE www.nevilleandneville.co.uk• NEW BUILD BESPOKE...

Herons Close, Copthorne

4 Bedroom Detached House | Asking Price £1,299,994

MAIN SPECIFICATIONS: RARELY AVAILABLE AND SET IN APPROXIMATELY 1.13 ACRES OF ITS OWN BEAUTIFUL PRIVATE LANDSCAPED GARDEN...

Lewes Road, Laughton

Land | Guide Price £1,300,000

GUIDE PRICE: £1,300,000 - 1,500,000• Prime bespoke development land located near Lewes in a semi-rural setting with amaz...

North Street, Hellingly

6 Bedroom Detached House | Guide Price £1,300,000

GUIDE PRICE: £1,300,000 - £1,400,000• An extremely attractive and elegant substantial sized detached six double bedroome...

Neville & Neville Estate Agents (Hailsham)

Cowbeech, Hailsham, East Sussex, BN27 4JL

01323 833 630

How much is your home worth?

Use our short form to request a valuation of your property.

Request a Valuation

Mortgage Calculator

Amount Borrowed: £
Total Amount Repayable: £
Total Monthly Payment: £
©2026 The Guild of Property Professionals. All rights reserved. Terms and Conditions | Privacy Policy | Cookie Policy | Complaints Policy | Members Login
The Guild of Property Professionals Trading Address: 121 Park Lane, London W1K 7AG. GPEA Limited. Registered in England & Wales.  Company No: 02819824.  Registered Office Address: 2 St. Stephen's Court, St. Stephen's Road, Bournemouth, Dorset, England, BH2 6LA.  VAT Registration No: 576 8795 61
Book a Property Valuation Update Cookies Preferences