Plot 9 - Hilders Farm, Edenbridge

£1,680,000

5 Bedroom Detached House for sale in Edenbridge

3 5 4
  • 5 Bedroom Detached Luxury Home
  • Expansive Open Plan Kitchen/ Family Dining Space
  • Spacious Living Room with Bifold access to the garden
  • Utility Room
  • Impressive Principal Suite. En-suites to bedrooms 2 & 3
  • Landscaped Gardens
  • Integral Garage & Private Parking
  • Potential to purchase additional land
  • Exclusive Gated Development
  • Rural Location between Oxted and Edenbridge

 


Hilders Farm


New exclusive private development currently under construction.


A wonderful opportunity to purchase one of 11 individual high specification NEW homes by Luxury House Builders, Novo Land & Development.   With far reaching views towards the North Downs and surrounding Greenbelt countryside, Hilders Farm is located within the borough of Sevenoaks  with potential eligibility for Kent GRAMMAR SCHOOLS.  Each of these individually designed luxury homes are set on generous plots with the possibility to significantly increase some of the plot sizes should purchasers wish to do so. Four homes have already been reserved off plan so early viewing is essential. 


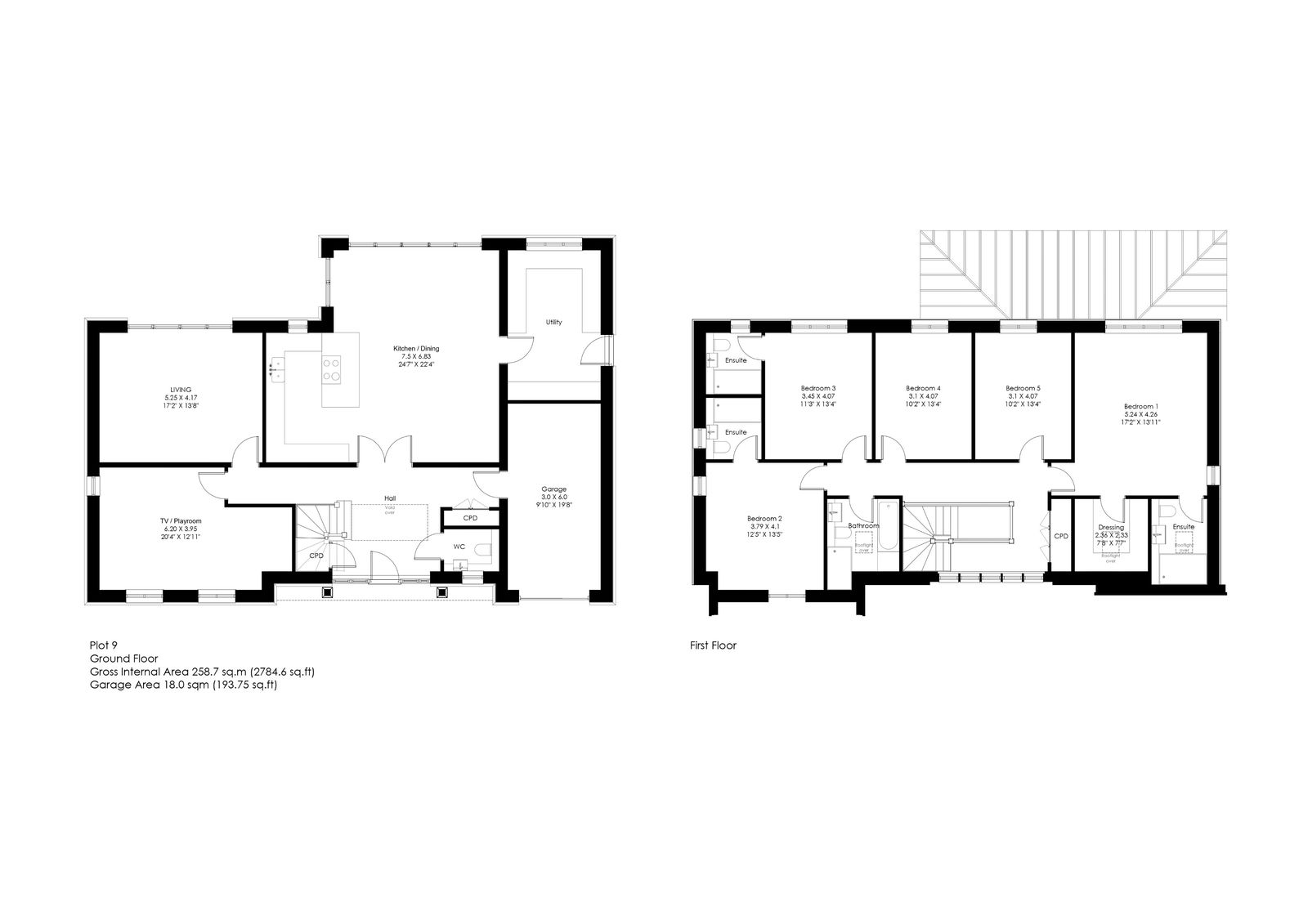
Plot 9 at Hilders Farm


This magnificent high specification home boasts approximately 2784 sq.ft internal living space arranged over two floors.  Currently under construction, Plot 9 will feature an impressive entrance hall leading to 3 spacious reception rooms as well as a large utility room and downstairs WC.   The versatile ground floor accommodation will give access to the landscaped rear garden via the Kitchen/Dining and Living Rooms.  First floor accommodation at Plot 9 includes  expansive principal suite as well as 2 further bedrooms with en-suite shower rooms, two further bedrooms and a family bathroom. With off road and integral parking.  Please note that CGI images have been used in this listing and are for representation only. 


Location


Edenbridge is a historic town in the Sevenoaks district of Kent and Hilders Farm is located between Edenbridge and Oxted which is only 7 minutes drive way.  Located on the border of Kent and Surrey, Edenbridge offers unrivalled access to surrounding Greenbelt countryside whilst enjoying all the amenities of a larger semi-rural town. Edenbridge town has a great selection of chain and independent shops and restaurants . Served by two mainline train stations Edenbridge offers easy access to Redhill, East Croydon and London Bridge. Gatwick Airport is around 25 minutes by car.  Close by Oxted  provides more extensive amenities including a wide range of shops, restaurants and cafes as well as sports centre, cinema and a range other sports and recreational facilities. Hilders Farm is also within easy reach of a selection of excellent local golf courses.


Prices and Availability at Hilders Farm:


Plot 1 - Available 3 Bedroom Semi Detached Home £900,000


Plot 2 - Available 3 Bedroom Semi Detached Home £900,000


Plot 3 - RESERVED


Plot 4 - Available Detached 4 Home £1,390,000


Plot 5 - Available Detached 4 Bedroom Home £1,390,000 


Plot 6 - RESERVED


Plot 7 - RESERVED


Plot 8 - RESERVED


Plot 9 - Detached 5 Bedroom Home £1,680,000


Plot 10 - Detached 4 Bedroom Home £1,800,000


Plot 11 - Detached  4 Bedroom Home £1,450,000


 

Property Ref: 856_1211911

Share:

Similar Properties

Tandridge Lane, Lingfield, Surrey, RH7 6LL

5 Bedroom Detached House | Guide Price £1,575,000

READY FOR OCCUPATION - 80% Sold or Reserved.  Oldencraig Mews is a spectacular new development in an idyllic location ye...

Millers Lane, Outwood, Redhill, RH1 5QB

5 Bedroom Detached House | Guide Price £1,500,000

This beautifully extended family home offers generous, versatile living spaces, five bedrooms and superb landscaped gard...

Newchapel Road, Lingfield, RH7 6BJ

4 Bedroom Detached House | Guide Price £1,395,000

Welcome to The Oast House, a truly exceptional and characterful property set within approximately 2.7 acres of beautiful...

Tandridge Lane, Lingfield, RH7 6LL

5 Bedroom Detached House | £1,775,000

BRAND NEW This impressive five bedroom detached character family home spans approximately 3616 sq.ft plus double carbarn...

Oldencraig Mews, Tandridge Lane

5 Bedroom Detached House | £1,825,000

BRAND NEW This spacious five bedroom detached family home spanning over 3,000 sqft, with en suite to the master and gues...

Oldencraig Mews, Tandridge Lane

5 Bedroom Detached House | £1,825,000

BRAND NEW This five bedroom detached family home, with impressive master suite and large rear garden is situated in the...

Robert Leech (Lingfield)

27 High Street, Lingfield, Surrey, RH7 6AA

01342 837783

How much is your home worth?

Use our short form to request a valuation of your property.

Request a Valuation

Mortgage Calculator

Amount Borrowed: £
Total Amount Repayable: £
Total Monthly Payment: £
©2025 The Guild of Property Professionals. All rights reserved. Terms and Conditions | Privacy Policy | Cookie Policy | Complaints Policy | Members Login
The Guild of Property Professionals Trading Address: 121 Park Lane, London W1K 7AG. GPEA Limited. Registered in England & Wales.  Company No: 02819824.  Registered Office Address: 2 St. Stephen's Court, St. Stephen's Road, Bournemouth, Dorset, England, BH2 6LA.  VAT Registration No: 576 8795 61
Book a Property Valuation Update Cookies Preferences