Eglwyswrw, Crymych

£269,950

3 Bedroom Detached House for sale in Eglwyswrw

2 3 2
  • An attractive Detached Three Bedroom Modernised Property
  • Situated in the village of Egwlswrw.
  • Eglwyswrw is a rural village situated in north Pembrokeshire
  • The property has a Parking, Garage and a Generous Garden to the rear with a useful Outhouse.
  • Council Tax band E

A deceptively spacious three bedroom detached house, situated in the village of Egwlswrw, the accommodation comprises: sitting room, open plan living/dining/ kitchen, utility room, rear lobby and a ground floor shower room. The first floor boasts three bedrooms and a family bathroom. The property has a parking, garage and a generous garden to the rear with a useful outhouse.

Situation - Eglwyswrw is a rural village situated in north Pembrokeshire, West Wales, approximately 7 miles northeast of Newport, 9 miles west of Cardigan, and 20 miles north of Haverfordwest. The village lies along the A487 trunk road, providing convenient access to the coastal towns of Newport and Fishguard as well as the wider road network across Pembrokeshire and Ceredigion.

The area is predominantly agricultural, characterised by open countryside, rolling hills, and scenic views towards the Preseli Mountains. Eglwyswrw benefits from a strong local community, with amenities including a primary school (Ysgol Eglwyswrw), a parish church, and a public house. Additional services, supermarkets, and secondary education facilities are available in nearby Cardigan.

The locality is popular among those seeking a peaceful rural lifestyle within easy reach of the Pembrokeshire Coast National Park, renowned for its walking trails, beaches, and wildlife.

uPVC double glazed door to:

Sitting Room - Radiator, uPVC double glazed window, door to:

Living/Dining/Kitchen - Recently installed kitchen with a modern range of wall and base units with work top over, inset stainless steel sink unit with mixer tap over, built in electric oven, hob with extractor fan over, exposed beams, wood effect laminate flooring to kitchen area, uPVC double glazed windows, radiator, under stairs cupboard. Wooden stable door to:

Rear Lobby - uPVC double glazed window, uPVC door to outside.

Wet Room - Toilet, pedestal hand wash basin, electric shower, tiled walls, uPVC double glazed window, heated towel rail, extractor fan.

Utility Room - Base cabinet with stainless steel sink unit, void and plumbing for washing machine.

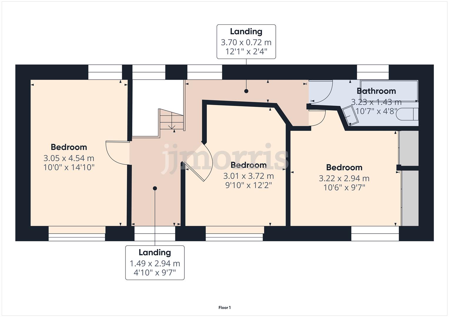
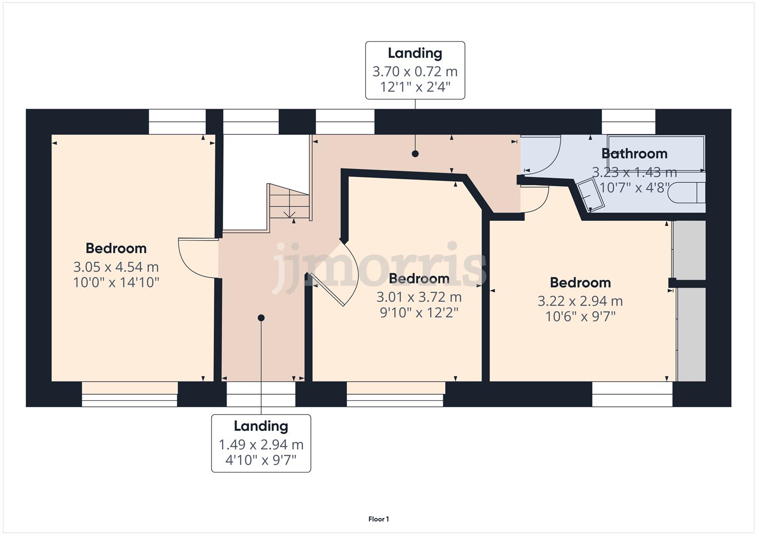
First Floor -

Landing - Dual aspect windows, loft access, doors to:

Bedroom One - Dual aspect windows, exposed floor boards, radiator.

Bedroom Two - uPVC double glazed window to the front elevation, exposed floor boards, radiator, picture rail.

Bedroom Three - uPVC double glazed window, picture rail, radiator, built in wardrobes.

Family Bathroom - Three piece suite with panel bath, toilet, pedestal hand wash basin, panelled walls, shaver socket, uPVC double glazed window.

Utilities & Services - Heating Source: Oil fired central heating.

Services:

Electric: Mains

Water: Mains

Drainage: tbc

Tenure: Freehold and available with vacant possession upon completion.

Local Authority: Pembrokeshire County Council

Council Tax: Band E

What3Words: ///weep.reefs.joyously

Anti Money Laundering & Ability To Purchase - Please note when making an offer we will require information to enable us to confirm all parties identities as required by Anti Money Laundering (AML) Regulations. We may also conduct a digital search to confirm your identity.

We will also require full proof of funds such as a mortgage agreement in principle, proof of cash deposit or if no mortgage is required, we will require sight of a bank statement. Should the purchase be funded through the sale of another property, we will require confirmation the sale is sufficient enough to cover the purchase.

Broadband Availability - According to the Ofcom website, this property has both standard and ultrafast broadband available, with speeds up to Standard 0.8mbps upload and 7mbps download and Ultrafast 220mbps upload and 1800mbps download. Please note this data was obtained from an online search conducted on ofcom.org.uk and was correct at the time of production.
Some rural areas are yet to have the infrastructure upgraded and there are alternative options which include satellite and mobile broadband available. Prospective buyers should make their own enquiries into the availability of services with their chosen provider.

Mobile Phone Coverage - The Ofcom website states that the property has the following imobile coverage

EE Good outdoor, variable indoor
Three Good outdoor, variable indoor
O2 Good outdoor
Vodafone. Good outdoor

Results are predictions and not a guarantee. Actual services available may be different from results and may be affected by network outages. Please note this data was obtained from an online search conducted on ofcom.org.uk and was correct at the time of production. Prospective buyers should make their own enquiries into the availability of services with their chosen provider.

Property Ref: 278594_34240924

Share:

Similar Properties

Moylegrove, Cardigan

2 Bedroom Cottage | £269,950

A refurbished and well presented cottage, situated in Moylegrove, within walking distance of Ceibwr Bay, the property ha...

Castle Street, Cardigan

3 Bedroom Detached House | £265,000

An exciting opportunity to acquire a freehold, commercial premises with residential element above within Cardigan. Previ...

Penllwyndu, Llangoedmor, Cardigan

3 Bedroom Detached House | £265,000

An improvable three bedroom detached house set on a generous plot overlooking adjacent farmland. The accommodation compr...

Heol Helyg, Cardigan

3 Bedroom Detached Bungalow | £275,000

A Three Bedroom Detached Bungalow situated in the popular residential area of North Park Cardigan town which is convenie...

Long Street, Newport

4 Bedroom Cottage | £275,000

A deceptively spacious four bedroom cottage situated in the favoured Pembrokeshire town of Newport, within easy walking...

High Street, Cilgerran, Cardigan

4 Bedroom End of Terrace House | £275,000

A deceptively spacious Four Bedroom Cottage situated in the heart of the village of Cilgerran with accommodation compris...

JJ Morris (Cardigan)

5 High Street, Cardigan, SA43 1HJ

01239 612343

How much is your home worth?

Use our short form to request a valuation of your property.

Request a Valuation

Mortgage Calculator

Amount Borrowed: £
Total Amount Repayable: £
Total Monthly Payment: £
©2026 The Guild of Property Professionals. All rights reserved. Terms and Conditions | Privacy Policy | Cookie Policy | Complaints Policy | Members Login
The Guild of Property Professionals Trading Address: 121 Park Lane, London W1K 7AG. GPEA Limited. Registered in England & Wales.  Company No: 02819824.  Registered Office Address: 2 St. Stephen's Court, St. Stephen's Road, Bournemouth, Dorset, England, BH2 6LA.  VAT Registration No: 576 8795 61
Book a Property Valuation Update Cookies Preferences