Long Street, Newport

£275,000

4 Bedroom Cottage for sale in Newport

2 4 1
  • A deceptively spacious four bedroom cottage.
  • Situated in the favoured Pembrokeshire town of Newport.
  • The accommodation comprises: Hall, Living Room, Dining Room, Kitchen, WC.
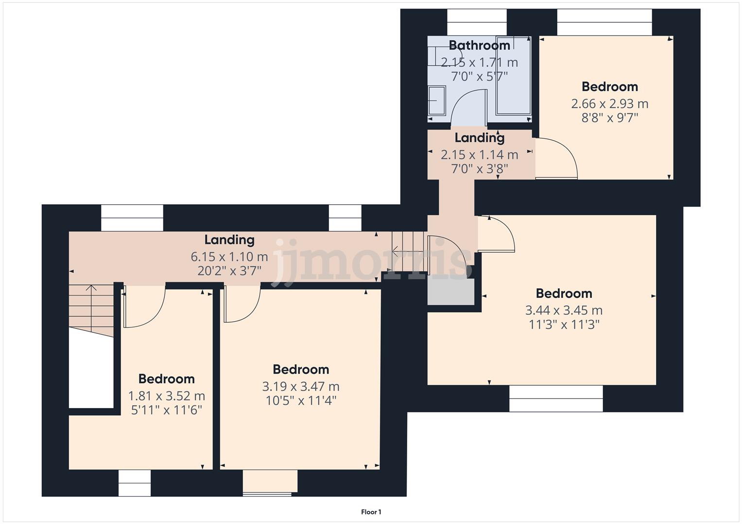
  • To the first floor there are Four Bedrooms and a Family Bathroom
  • There is parking nearby in a local authority car park, which offers permits for longer term parking.

A deceptively spacious four bedroom cottage situated in the favoured Pembrokeshire town of Newport, within easy walking distance of the coast and local amenities. The accommodation comprises: hall, living room, dining room, kitchen, w.c. To the first floor there is four bedrooms and a family bathroom. There is parking nearby in a local authority car park, which offers permits for longer term parking.

Glazed door to:

Hall - Stairs rising off, door to:

Living Room - Dual aspect windows, modern electric heater, wood burning stove.

Dining Room - uPVC double glazed window, uPVC double glazed door to the garden. Electric heater.

Inner Hall - uPVC double glazed door, doors to:

Kitchen - A range of wall and base cabinets with stainless steel sink unit, space for electric cooker, window to the rear.

W.C. - Low flush w.c.

First Floor -

Landing - Doors to:

Bedroom One - uPVC double glazed window, electric heater, wardrobe.

Bedroom Two - Window, electric heater.

Bedroom Three - Window to the rear with distant sea views, electric heater.

Bedroom Four - Window, electric heater.

Family Bathroom - A three piece suite with panel bath, pedestal hand wash basin, low flush w.c. uPVC double glazed window.

Externally - Cottage garden which has been lovingly planted and designed with a variety of mature shrubs and bushes, storage building with perspex roof.

Utilities & Services - Heating Source:

Services:

Electric: Mains

Water: Mains

Drainage: Mains

Tenure: Freehold and available with vacant possession upon completion.

Local Planning Authority: Pembrokeshire Coast National Park

Local Authority: Pembrokeshire County Council

Council Tax: tbc

What3words:///eruptions.wasps.charts

Anti Money Laundering & Ability To Purchase - Please note when making an offer we will require information to enable us to confirm all parties identities as required by Anti Money Laundering (AML) Regulations. We may also conduct a digital search to confirm your identity.

We will also require full proof of funds such as a mortgage agreement in principle, proof of cash deposit or if no mortgage is required, we will require sight of a bank statement. Should the purchase be funded through the sale of another property, we will require confirmation the sale is sufficient enough to cover the purchase.

Broadband Availability - According to the Ofcom website, this property has standard, superfast and ultrafast broadband available, with speeds up to Standard 1mbps upload and 18mbps download., Superfast 20mbps upload and 80mbps download and Ultrafast 220mbps upload and 1800mbps download. Please note this data was obtained from an online search conducted on ofcom.org.uk and was correct at the time of production.
Some rural areas are yet to have the infrastructure upgraded and there are alternative options which include satellite and mobile broadband available. Prospective buyers should make their own enquiries into the availability of services with their chosen provider.

Mobile Phone Coverage - The Ofcom website states that the property has the following mobile coverage

EE - Good outdoor, variable indoor
Three - Good outdoor and indoor
O2 - Variable outdoor
Vodafone. - Poor to none outdoor

Results are predictions and not a guarantee. Actual services available may be different from results and may be affected by network outages. Please note this data was obtained from an online search conducted on ofcom.org.uk and was correct at the time of production. Prospective buyers should make their own enquiries into the availability of services with their chosen provider.

Property Ref: 278594_34093036

Share:

Similar Properties

High Street, Cilgerran, Cardigan

4 Bedroom End of Terrace House | £275,000

A deceptively spacious Four Bedroom Cottage situated in the heart of the village of Cilgerran with accommodation compris...

Heol Helyg, Cardigan

3 Bedroom Detached Bungalow | £275,000

A Three Bedroom Detached Bungalow situated in the popular residential area of North Park Cardigan town which is convenie...

Moylegrove, Cardigan

2 Bedroom Cottage | £269,950

A refurbished and well presented cottage, situated in Moylegrove, within walking distance of Ceibwr Bay, the property ha...

Pilot Street, St. Dogmaels, Cardigan

3 Bedroom Terraced House | Offers in region of £285,000

A deceptively spacious cottage with accommodation set across three floors with an elevated balcony to take advantage of...

Carreg Wen, Llechryd, Cardigan

2 Bedroom Detached Bungalow | £289,950

A two bedroom detached bungalow situated in a rural hamlet, just a short distance from llechryd and Cardigan, enjoying f...

Llechryd, Cardigan

3 Bedroom Detached House | £290,000

A three bedroom detached house situated in Llechryd, just a short distance from Cardigan. The property briefly comprises...

JJ Morris (Cardigan)

5 High Street, Cardigan, SA43 1HJ

01239 612343

How much is your home worth?

Use our short form to request a valuation of your property.

Request a Valuation

Mortgage Calculator

Amount Borrowed: £
Total Amount Repayable: £
Total Monthly Payment: £
©2026 The Guild of Property Professionals. All rights reserved. Terms and Conditions | Privacy Policy | Cookie Policy | Complaints Policy | Members Login
The Guild of Property Professionals Trading Address: 121 Park Lane, London W1K 7AG. GPEA Limited. Registered in England & Wales.  Company No: 02819824.  Registered Office Address: 2 St. Stephen's Court, St. Stephen's Road, Bournemouth, Dorset, England, BH2 6LA.  VAT Registration No: 576 8795 61
Book a Property Valuation Update Cookies Preferences