Pilot Street, St. Dogmaels, Cardigan

Offers in region of
£285,000

3 Bedroom Terraced House for sale in St. Dogmaels

2 3 1
  • A deceptively spacious cottage with accommodation set across three floors.
  • Elevated balcony to take advantage of the estuary views to the rear.
  • Externally, the property benefits from parking, balcony and low maintenance gardens.

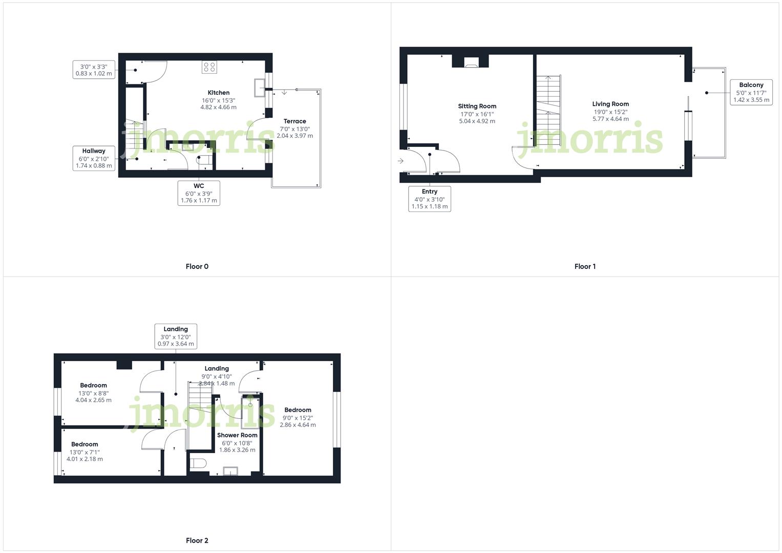
A deceptively spacious cottage with accommodation set across three floors with an elevated balcony to take advantage of the estuary views to the rear. The property comprises vestibule, sitting room, living room, kitchen/diner, wc, three bedrooms and a shower room. Externally, the property benefits from parking, balcony and low maintenance gardens.

Ground Floor -

Vestibule - Fuse box, tiled flooring. Glazed door to:

Sitting Room - Double glazed window to the front, feature fireplace with coal effect gas fire, tiled hearth and backing, wall lights, dado rail, radiator.

Living Area - Double glazed sliding doors to balcony which is an ideal place to sit out taking in the estuary views, wall lights, radiator, wood effect flooring, stairs lead to the lower ground and first floors.

Lower Ground Floor -

Kitchen/Dining Room - Having a range of wall and base units with work top surfaces, stainless steel sink unit, gas cooker with extractor fan over, space for fridge/freezer, plumbing for washing machine, windows to the rear, part tiled walls, tiled floor, radiator. Wall mounted Valiant gas fired boiler, under stairs storage cupboard, Wooden stable door leads out to the rear garden.

Wc - Low flush WC, integrated hand wash basin with unit, part tiled walls, tiled floor, radiator.

First Floor -

Landing - Loft access with pull down ladder and is part boarded with a light.
Radiator, linen cupboard. Doors to:

Bedroom One - Double glazed window, radiator, dado rail.

Bedroom Two - Double glazed window, radiator.

Bedroom Three - Upvc gable window, exposed beams, wood flooring, radiator, vaulted ceiling, wall lights.

Shower Room - Velux window, walk-in shower with electric shower, pedestal hand wash basin, low flush WC, heated towel rail, radiator, part tiled walls.

Externally - The property benefits from off-road parking to the side. To the rear the garden has been designed with ease of maintenance in mind with a patio and seating area with steps leading down to the decorative gravel.

Utilities & Services - Heating Source: Mains gas central heating.

Services:

Electric: Mains

Water: Mains

Drainage: Mains

Gas; Mains

Tenure: Freehold and available with vacant possession upon completion.

Local Authority: Pembrokeshire County Council

Council Tax: Band C

What Three Words: ///homelands.sundial.apples

Anti Money Laundering & Ability To Purchase - Please note when making an offer we will require information to enable us to confirm all parties identities as required by Anti Money Laundering (AML) Regulations. We may also conduct a digital search to confirm your identity.

We will also require full proof of funds such as a mortgage agreement in principle, proof of cash deposit or if no mortgage is required, we will require sight of a bank statement. Should the purchase be funded through the sale of another property, we will require confirmation the sale is sufficient enough to cover the purchase.

Broadband Availability - According to the Ofcom website, this property has both standard and superfast broadband available, with speeds up to Standard 0.9mbps upload and 8mbps download and Superfast 20mbps upload and 75mbps download. Please note this data was obtained from an online search conducted on ofcom.org.uk and was correct at the time of production.
Some rural areas are yet to have the infrastructure upgraded and there are alternative options which include satellite and mobile broadband available. Prospective buyers should make their own enquiries into the availability of services with their chosen provider.

Mobile Phone Coverage - The Ofcom website states that the property has the following indoor mobile coverage

EE Voice - Limited & Data - Limited
Three Voice - Limited & Data - Limited
O2 Voice - Likely & Data - Likely
Vodafone. Voice - Limited & Data - Limited

Results are predictions and not a guarantee. Actual services available may be different from results and may be affected by network outages. Please note this data was obtained from an online search conducted on ofcom.org.uk and was correct at the time of production. Prospective buyers should make their own enquiries into the availability of services with their chosen provider.

Property Ref: 278594_33253927

Share:

Similar Properties

High Street, Cilgerran, Cardigan

4 Bedroom End of Terrace House | £285,000

A deceptively spacious Four Bedroom Cottage situated in the heart of the village of Cilgerran with accommodation compris...

Blaenffos, Boncath

3 Bedroom Detached Bungalow | Offers in region of £280,000

A fully refurbished Three Bedroom Detached Bungalow set in a good sized plot with modern accommodation comprising: Entra...

Heol Helyg, Cardigan

3 Bedroom Detached Bungalow | £275,000

A Three Bedroom Detached Bungalow situated in the popular residential area of North Park Cardigan town which is convenie...

Cwm Cou, Newcastle Emlyn

1 Bedroom Cottage | £287,500

A One Bedroom Detached Cottage set on a generous plot of around 0.25 acre or thereabouts, nestled in the charming area o...

Carreg Wen, Llechryd, Cardigan

2 Bedroom Detached Bungalow | £289,950

A two bedroom detached bungalow situated in a rural hamlet, just a short distance from llechryd and Cardigan, enjoying f...

Llechryd, Cardigan

3 Bedroom Detached House | £290,000

A three bedroom detached house situated in Llechryd, just a short distance from Cardigan. The property briefly comprises...

JJ Morris (Cardigan)

5 High Street, Cardigan, SA43 1HJ

01239 612343

How much is your home worth?

Use our short form to request a valuation of your property.

Request a Valuation

Mortgage Calculator

Amount Borrowed: £
Total Amount Repayable: £
Total Monthly Payment: £
©2025 The Guild of Property Professionals. All rights reserved. Terms and Conditions | Privacy Policy | Cookie Policy | Complaints Policy | Members Login
The Guild of Property Professionals Trading Address: 121 Park Lane, London W1K 7AG. GPEA Limited. Registered in England & Wales.  Company No: 02819824.  Registered Office Address: 2 St. Stephen's Court, St. Stephen's Road, Bournemouth, Dorset, England, BH2 6LA.  VAT Registration No: 576 8795 61
Book a Property Valuation Update Cookies Preferences