Bog Road, Florencecourt, Enniskillen

POA

Not Specified for sale in Enniskillen

  • 5.33 Acres Within Local Development Limits
  • First Phase With FPP For 8 Units
  • Planning Ref LA10/2024/1056/F
  • Second Phase Planning Application Ongoing
  • Set Within An Increasingly Popular Location
  • Surrounded By So Many Natural Attractions
  • Convenient Walk To Florencecourt Estate
  • 15 Minute Drive To Enniskillen
  • Perfect Position For Phased Development

C5.33 Acres Of Development Land With First Phase Full Planning Approval For 8 Residential Units, Surrounded By The Picturesque Scenery Of Florencecourt.

Florencecourt is one of County Fermanagh`s most picturesque hamlets, well known for its scenic surroundings and it`s convenience to some of the County`s most note able natural attraction, including Marble Arch Caves, Cuilcagh Mountain walk as well as its proximity to the Florencecourt National Trust house and grounds.


Set in the heart of Florencecourt, this C.5.33 acres of land is positioned within the local developments limits and is ideally placed for phased residential development within an area of County Fermanagh that is experiencing a high level of demand.


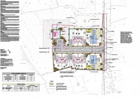
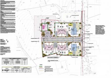
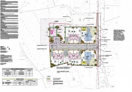
PROPOSED DEVELOPMENT:

Situated with frontage to the Bog Road, just off the Marble Arch Road, the site has Full Planning Approval for a mixed development of semi-detached units and 2 detached units, thoughtfully designed to reflect its unique and historic location.


Planning Ref: LA10/2024/0156/F


Second phase planning application has been submitted


FOR FURTHER INFORMATION PLEASE CONTACT US ON 02866320456

Notice
Please note we have not tested any apparatus, fixtures, fittings, or services. Interested parties must undertake their own investigation into the working order of these items. All measurements are approximate and photographs provided for guidance only.

Property Ref: 77666445_1002219

Share:

Similar Properties

5 Willoughby Place, Enniskillen

4 Bedroom Detached House | £595,000

88 Drumadown Road, Enniskillen

5 Bedroom Detached House | Guide Price £550,000

Smyth Leslie & Co (Enniskillen)

Enniskillen, Fermanagh, BT74 7BW

028 6632 0456

How much is your home worth?

Use our short form to request a valuation of your property.

Request a Valuation

Mortgage Calculator

Amount Borrowed: £
Total Amount Repayable: £
Total Monthly Payment: £
©2026 The Guild of Property Professionals. All rights reserved. Terms and Conditions | Privacy Policy | Cookie Policy | Complaints Policy | Members Login
The Guild of Property Professionals Trading Address: 121 Park Lane, London W1K 7AG. GPEA Limited. Registered in England & Wales.  Company No: 02819824.  Registered Office Address: 2 St. Stephen's Court, St. Stephen's Road, Bournemouth, Dorset, England, BH2 6LA.  VAT Registration No: 576 8795 61
Book a Property Valuation Update Cookies Preferences