Shrub Lane, Burwash

Guide Price
£350,000

5 Bedroom Land for sale in Etchingham

5 2

GUIDE PRICE: £350,000

• Development plot circa ¼ of an acre (to be verified) with southerly aspect.

• Exciting bespoke single luxury building plot development opportunity, being ideal for a self-build developer or private buyer looking for a wonderful semi-rural setting to build their dream home

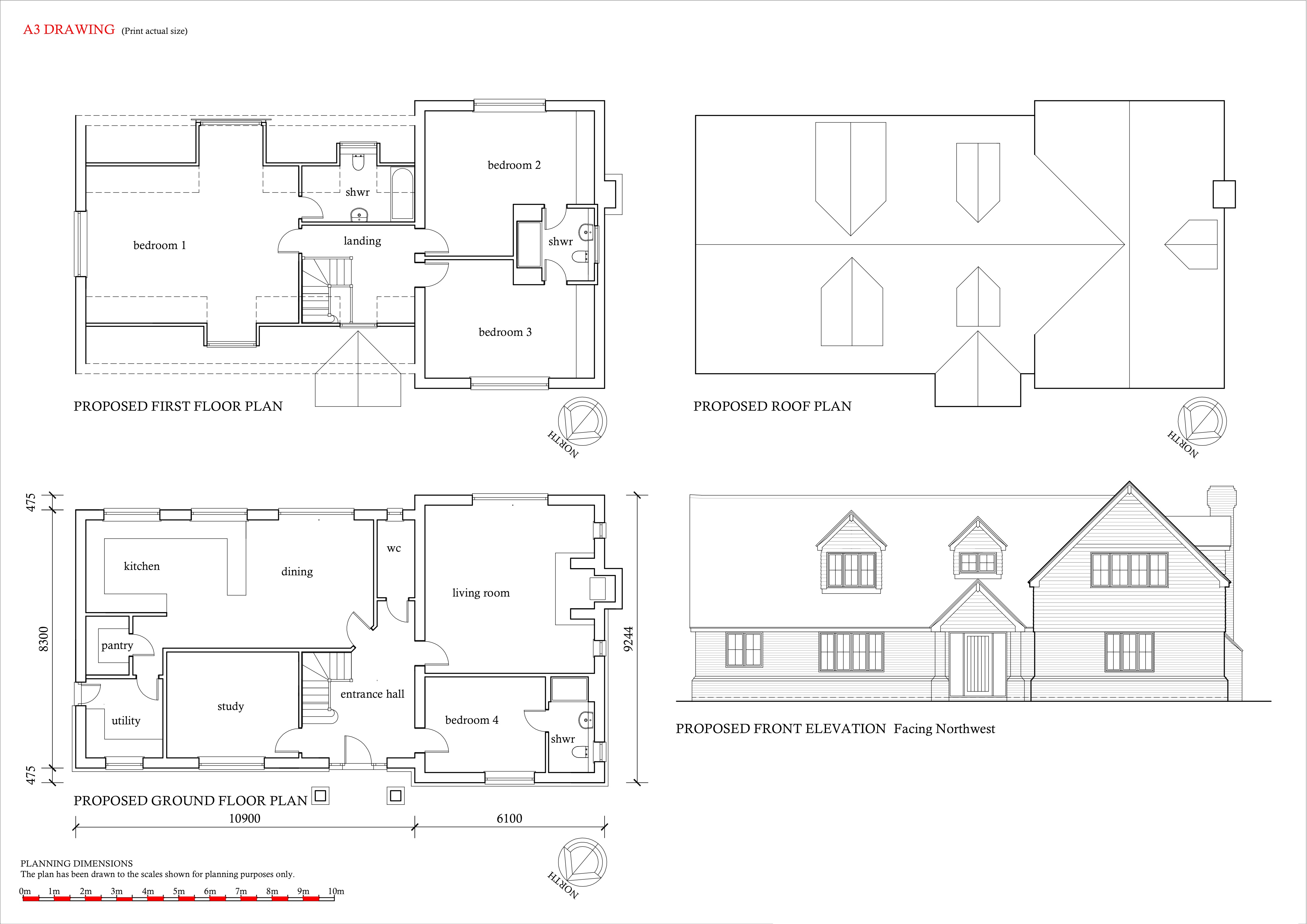
• A premium bespoke large luxury building plot with planning permission granted to build a substantial sized detached 4 to 5 bedroomed circa 2,500 square foot two storey character styled residence in a quiet semi-rural setting.

• This highly desirable site comprises of a large level garden plot backing onto, as well as siding onto open farmland.

• Set off a quiet country lane on the outskirts of the highly sought-after village of Burwash.

• PLANNING ALLOWS FOR THE FOLLOWING ACCOMMODATION: A reception hall, a cloakroom, a living room, with a fireplace, study / bedroom 5, ground floor bedroom 4 with an ensuite shower room, a large open plan dining room and kitchen / breakfast room, a utility room, a pantry, a large first floor landing, three further large double bedrooms all with ensuite facilities. PLEASE NOTE: The heritage style garage shown in the CGI images is not granted and a buyer will need to seek planning after the purchase, but our in-house planners and the client’s architects believe this is possible.

• Rural views of surrounding grazing meadows with a southerly aspect

• Convenient driving distance of the mainline train stations of Etchingham and Stonegate, making this bespoke building plot also perfect for a London buyer looking to relocate into the countryside and build their dream residence, but yet still within easy commuting distance for the city.

DESCRIPTION: A very rare opportunity to purchase an idyllically located luxury bespoke building plot of ¼ of an acre (to be verified) with a southerly aspect, which in our opinion is perfect for a self-builder, or a private individual wishing to build a fairly large luxury dream residence, that is located off a quiet country lane and also backs onto and sides onto attractive grazing meadows.

These types of luxury bespoke building plots hardly ever come to the market, especially in such beautiful semi-rural settings, so don’t miss this very rare chance to purchase this idyllic bespoke building plot.

The planning permission is currently for an attractive Sussex style character exterior, with a modern open plan layout inside, with the overall accommodation planning granted for circa 2,500 square feet.

PLEASE NOTE: The heritage style garage is only for illustration purposes only, as this has not been applied for. Although both our in-house planners and the owners own Architects have advised us and the owners that planning for this is a viable possibility.

LOCATION: Situated off a quiet country lane and backing onto, as well as siding onto attractive open farmland meadows, yet within only a short drive of the sought after and picturesque village of Burwash.

Also, within only a short drive away, are the mainline train stations of both Etchingham and Stonegate, making this luxury bespoke building plots location perfect for London commuters.

The sought after Burwash village benefits from a very well-respected Primary school, two village Pubs, a Post Office and a number of artisan shops. with an extremely popular Ofsted rated outstanding local primary school and artisan shops, including the post office store and stunning beautiful centrally located Church, as well as a medical centre with its own medical dispensing department

The town of Heathfield is only a short drive away and offers a good variety of shopping and leisure facilities, including, a Tennis club, as well as a number of gyms.

Depending upon future educational requirements, there are numerous reputable teaching institutions to choose from within the general locality, including Bede’s, Mayfield School for Girls, Tonbridge School for boys, Vinehall and Battle Abbey to name but a few.

CURRENT APPROVED PLANNING FOR THE PROPOSED ACCOMMODATION:

LARGE RECEPTION HALL WITH FEATURE STAIRCASE:

CLOAKROOM:

IMPRESSIVE SIZED KITCHEN / BREAKFAST ROOM WITH ADJOINING OPEN PLAN DINING ROOM & BI FOLDING DOORS:

PANTRY:

UTILITY ROOM:

LARGE LIVING ROOM WITH FEATURE FIREPLACE:

STUDY / DOUBLE BEDROOM FIVE:

GROUND FLOOR DOUBLE BEDROOM TWO WITH ENSUITE SHOWER ROOM:

FIRST FLOOR ACCOMMODATION:

LARGE FEATURE FIRST FLOOR LANDING:

LARGE MAIN PRINCIPAL DOUBLE BEDROOM ONE SUITE (TRIPLE ASPECT) WITH LARGE ENSUITE BATHROOM / SHOWER ROOM:

BEDROOM TWO ALSO A DOUBLE BEDROOM SUITE WITH ENSUITE SHOWER ROOM:

BEDROOM THREE ALSO A DOUBLE BEDROOM SUITE WITH ENSUITE SHOWER ROOM:

OUTSIDE: A circa 1/4 acre garden plot (to be verified) with driveway and parking areas and space subject to planning for a two-bay heritage style carport / garage. PLEASE NOTE: The image of the heritage style garage shown on the details does not have any planning and is for illustration purposes only.

AGENTS NOTE: Please note that these details have been prepared as a general guide and do not form part of a contract. We have not carried out a detailed survey, nor tested the services, appliances and specific fittings. Room sizes are approximate and should not be relied upon. Any verbal statements or information given about this property, again, should not be relied on and should not form part of a contract or agreement to purchase.

Important Information

  • This is a Freehold property.

Property Ref: FAN250033

Share:

Similar Properties

Ewhurst Green, Robertsbridge

Land | Guide Price £350,000

GUIDE PRICE: £350,000• Three exciting fishing lakes currently with planning for private use• Set in over 5.8 acres (to b...

Tower Street, Heathfield

3 Bedroom Semi-Detached House | Guide Price £320,000

GUIDE PRICE: £320,000• Three-bedroom semi-detached family home offering approximately 806 sq ft of well-laid-out accommo...

Dunvan Close

2 Bedroom Terraced House | Asking Price £319,950

MAIN SPECIFICATIONS: ENTRANCE HALL * OPEN PLAN SITTING ROOM AND DINING ROOM * REFITTED MODERN KITCHEN * LANDING * TWO DO...

Battle Road, Punnetts Town

Detached House | Guide Price £375,500

GUIDE PRICE £375,500 TO £395,950• Excellent Potential development land of approximately 1/3rd of an acre• Existing old d...

North Street, Waldron

2 Bedroom Detached House | Guide Price £385,000

GUIDE PRICE £385,000PLEASE VIEW OUR VIRTUAL TOUR HERE OR ON OUR WEBSITE www.nevilleandneville.co.ukMAIN SPECIFICATIONS:...

Hoadleys Lane, Withyham

2 Bedroom Semi-Detached House | Guide Price £385,000

GUIDE PRICE: £385,000• Beautifully presented character home in a peaceful village setting• PLEASE NOTE: there is only on...

Neville & Neville Estate Agents (Hailsham)

Cowbeech, Hailsham, East Sussex, BN27 4JL

01323 833 630

How much is your home worth?

Use our short form to request a valuation of your property.

Request a Valuation

Mortgage Calculator

Amount Borrowed: £
Total Amount Repayable: £
Total Monthly Payment: £
©2026 The Guild of Property Professionals. All rights reserved. Terms and Conditions | Privacy Policy | Cookie Policy | Complaints Policy | Members Login
The Guild of Property Professionals Trading Address: 121 Park Lane, London W1K 7AG. GPEA Limited. Registered in England & Wales.  Company No: 02819824.  Registered Office Address: 2 St. Stephen's Court, St. Stephen's Road, Bournemouth, Dorset, England, BH2 6LA.  VAT Registration No: 576 8795 61
Book a Property Valuation Update Cookies Preferences