Midway Terrace, Alphington, EX2

Offers in excess of
£300,000

3 Bedroom End of Terrace House for sale in Exeter

1 3 2

A charming three bedroom end of terrace cottage situated in the popular village location of Alphington. The property is well positioned for local school, shop, doctors surgery, public house, supermarkets, bus route and main commuter links and benefits from an enclosed garden and a garage. EPC D, Council Tax Band D, Freehold.

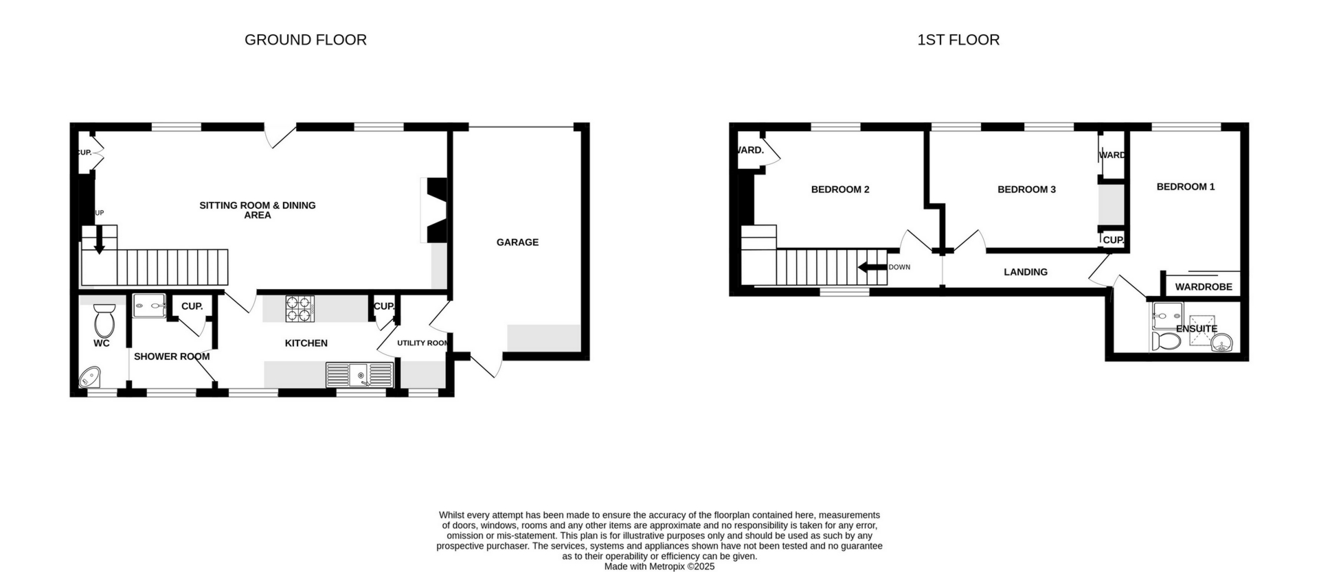
FRONT DOOR TO..

LOUNGE/DINER: 7.1m x 3.5m (23'5" x 11'6") Maximum, Double glazed windows to the front, radiators, stairs to first floor landing, door to..

KITCHEN: 3.7m x 1.9m (12'2" x 6'3"), Base cupboards and drawers with worktop over, space for cooker with extractor over, sink and drainer, wall mounted cupboards, radiator, double glazed windows to the rear.

SHOWER ROOM: Shower cubicle, pedestal wash hand basin, close coupled WC, built in storage cupboard, towel rail, windows to the rear.

INNER VESTIBULE: Wall mounted boiler, double glazed window to the rear, door to the garage.

FIRST FLOOR LANDING: Radiator, double glazed window to the rear, doors to..

BEDROOM 1: 3.8m x 2.8m (12'6" x 9'2"), Double glazed window to the front, radiator, mirror fronted wardrobe, door to..

EN-SUITE: Close coupled WC, wash hand basin, panelled bath with shower over, towel rail, roof window.

BEDROOM 2: 3.2m x 2.6m (10'6" x 8'6") Plus wardrobe, Double glazed windows to the front, radiator, built in wardrobe.

BEDROOM 3: 3.2m x 2.6m (10'6" x 8'6"), Double glazed window to the front, radiator.

OUTSIDE: To the rear of the property is an enclosed, well stocked garden with mature shrubs, plants and trees. There are different seating areas and a lovely wooden summer house which is currently being used as a workshop and office.

GARAGE: 5.2m x 2.7m (17'1" x 8'10"), Up and over door , light and power, door to the garden.

AGENTS NOTE: *The property is within a conservation area.

Important Information

  • This is a Freehold property.

Property Ref: FRASE003789

Share:

Similar Properties

Alphington Road, St Thomas, EX2

3 Bedroom End of Terrace House | Guide Price £300,000

A fantastic opportunity to acquire this recently renovated three bedroom Grade II listed property situated in a convenie...

Newlands Close, St. Thomas, EX2

3 Bedroom Semi-Detached House | Offers in excess of £300,000

A three bedroom semi detached property situated in a cul de sac position within a popular residential area and is in clo...

Barley Farm Road, St.Thomas, EX4

3 Bedroom Semi-Detached House | £300,000

A well presented three bedroom semi detached property positioned in a popular residential area with good size living acc...

Wellswood Gardens, St Thomas, EX4

3 Bedroom End of Terrace House | £315,000

A well presented and extended three bedroom semi detached property with open plan living situated in in a popular reside...

Clinton Street, St Thomas, EX4

3 Bedroom Terraced House | £318,000

An extended three bedroom terrace property situated in the popular residential area of St Thomas within close proximity...

Stoke Canon, Exeter, EX5

4 Bedroom Terraced House | £325,000

A rare opportunity to acquire a charming three/four bedroom cottage full of character nestled in the village of Stoke Ca...

Fraser & Wheeler (Exeter) (St Thomas)

St Thomas, Exeter, EX4 1AW

01392 420410

How much is your home worth?

Use our short form to request a valuation of your property.

Request a Valuation

Mortgage Calculator

Amount Borrowed: £
Total Amount Repayable: £
Total Monthly Payment: £
©2026 The Guild of Property Professionals. All rights reserved. Terms and Conditions | Privacy Policy | Cookie Policy | Complaints Policy | Members Login
The Guild of Property Professionals Trading Address: 121 Park Lane, London W1K 7AG. GPEA Limited. Registered in England & Wales.  Company No: 02819824.  Registered Office Address: 2 St. Stephen's Court, St. Stephen's Road, Bournemouth, Dorset, England, BH2 6LA.  VAT Registration No: 576 8795 61
Book a Property Valuation Update Cookies Preferences