Melvill Road, Falmouth, TR11

Guide Price
£315,000
SSTC
This property listing is now SSTC

2 Bedroom Semi-Detached Bungalow for sale in Falmouth

1 2 2
  • Semi Detached Two Bedroom Bungalow
  • 5 Minutes To The Beach
  • 5 Minutes To The Town Centre
  • Large Westerly Facing Rear Garden
  • In Need Of Renovation
  • Close To Amenities
  • Outbuildings With Scope for Garden Office or Studio
  • No Onward Chain

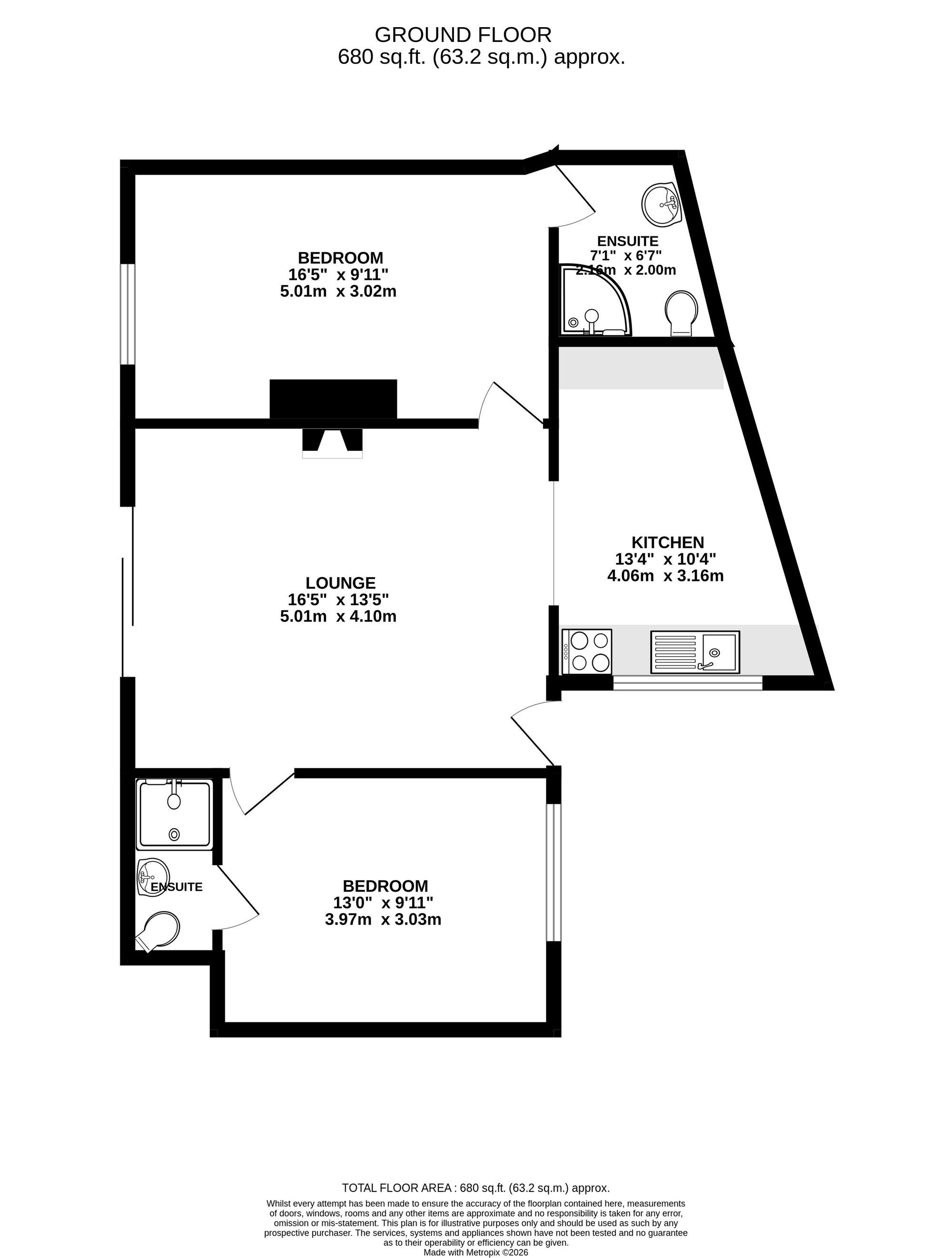
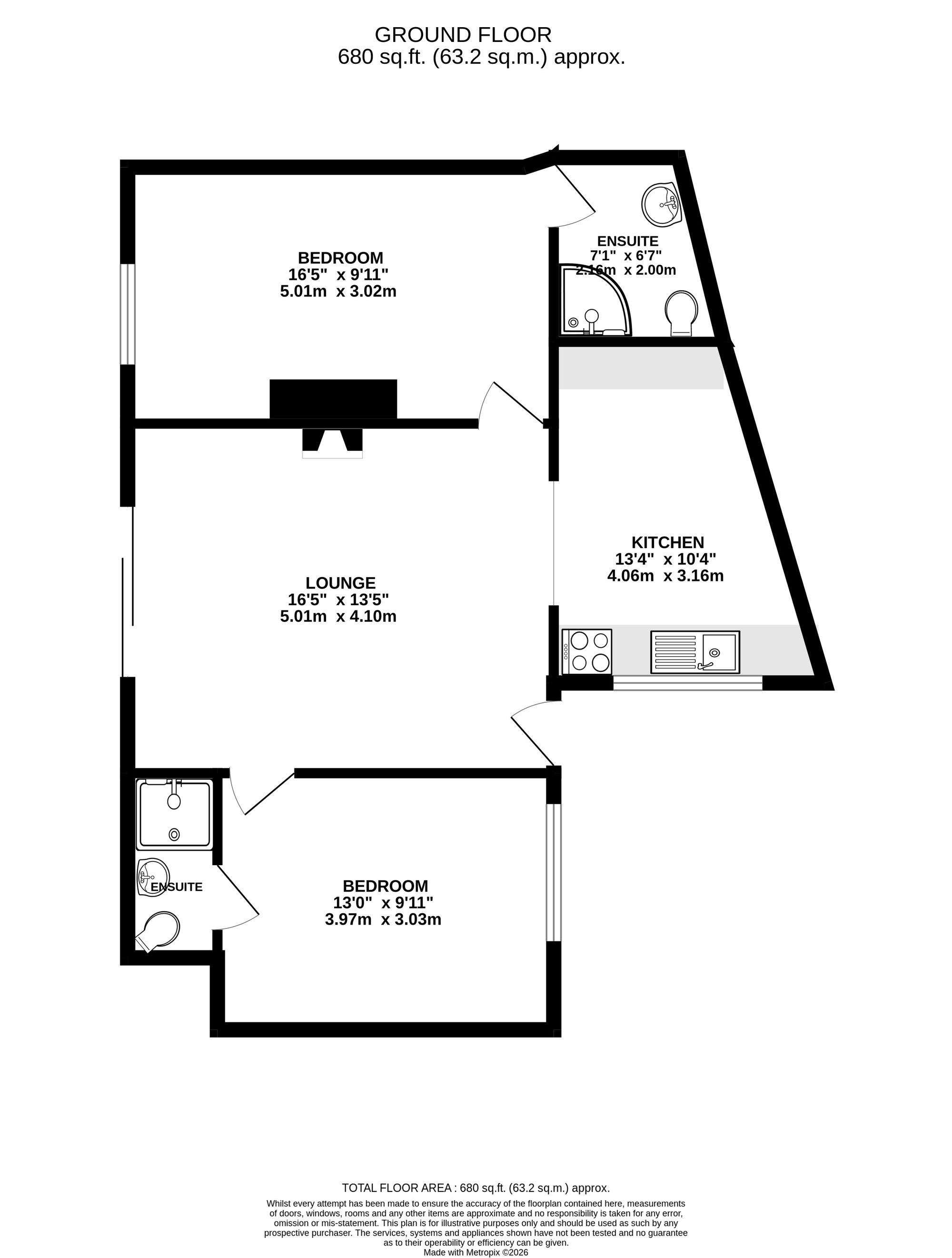
THE PROPERTY

This semi-detached two-bedroom bungalow offers comfortable single-level living in a highly sought-after location on Melvill Road, perfectly positioned equidistant between Gyllyngvase Beach and Falmouth town centre. The setting, combined with a superb mature west-facing rear garden, makes this a truly unique property within Falmouth.The garden provides excellent potential, featuring an existing block-built shed that could be converted into a studio, garden office, or hobby space (subject to any necessary consents).Upon entering the property, you are welcomed into a well-proportioned sitting room with high ceilings, a gas fire, and sliding doors opening directly onto the rear garden. An archway leads through to the kitchen, which is filled with natural morning light and offers an excellent opportunity for a buyer to modernise and personalise. The bungalow further benefits from two generous double bedrooms, both with en-suite facilities, offering further scope for updating. The property is sold with the added advantage of no onward chain, making it an ideal opportunity for those seeking a project in a prime coastal location.

LOCATION

Centrally located and close to all that Falmouth offers, 74a Melvill Road is situated less than 200 yards from the historic Fox Rosehill Gardens. This peaceful subtropical space, the legacy of the Fox family who also created nearby Glendurgan and Trebah, is believed to be the first subtropical gardens in the UK. Step outside the front door and enjoy a morning stroll amongst the exotic plants and Cornish palms or within a five-minute walk you can be at Gyllyngvase Beach and enjoy breakfast at Gylly Beach Café or a sea dip followed by a session in Kilna Sauna on the sand. A ten-minute walk in the other direction takes you to Swanpool Beach, the coastal footpath and nature reserve to feed the swans. 74a Melvill road is also perfectly positioned for Falmouth Town, Events Square and the National Maritime Museum where you’ll find lots of independent shops and restaurants are a 5 min walk and Killigrew Street and The Moor with transport links via bus and ferry, as well as an array of artisan cafes, shops and Falmouth Art Gallery are also close by. We would argue that this is one of the best locations in Falmouth, being close to no less than 3 beaches, Pendennis Point, Pendennis Castle, the harbour, the gardens, the town, a nursery and primary school as well as Falmouth University all on your doorstep. Not to mention The Princess Pavilion which is only a few minutes away for a delicious Sunday roast or live music and culture. You would never need to leave Falmouth with so much to see and do – but if you did decide to leave, you’re also walking distance from a train station that will take you straight to Truro. Locations don’t get better than this!

Energy Efficiency Current: 38.0
Energy Efficiency Potential: 76.0

Important Information

  • This is a Freehold property.
  • This Council Tax band for this property is: B

Property Ref: 8bcebf4c-a1c2-4c75-8d89-f66fd4cb4d4a

Share:

Similar Properties

7 Lemon Hill Gardens, Mylor Bridge, TR11

2 Bedroom Terraced House | Guide Price £315,000

A delightful 2 double bedroom modern cottage built to a traditional design by a highly regarded and award-winning develo...

Ashfield Villas, Falmouth, TR11

3 Bedroom End of Terrace House | Guide Price £299,000

Spacious 3-bed end of terrace family home with open-plan layout, scope for modernisation. Generous front garden, garage....

Falmouth

2 Bedroom Apartment | Guide Price £295,000

A superb apartment offering so much, with its waterside position moments from Falmouth High Street, glorious views, West...

Cliff Road, Bay Court Cliff Road, TR11

2 Bedroom Flat | Guide Price £325,000

Superbly positioned, sea facing ground floor apartment, set within a McCarthy and Stone much sought after sea front reti...

Lanoweth, Penryn, TR10

3 Bedroom Semi-Detached Bungalow | Guide Price £325,000

Three bedroom semi-detached bungalow in a quiet location with garage and no onward chain.

Harbour Village, Daniels Sail Loft Harbour Village, TR10

3 Bedroom Duplex | Guide Price £325,000

A superb and highly individual three-bedroom, duplex riverside penthouse apartment, set within a historic Grade II liste...

Heather & Lay (Falmouth)

Falmouth, Cornwall, TR11 3DN

01326 319767

How much is your home worth?

Use our short form to request a valuation of your property.

Request a Valuation

Mortgage Calculator

Amount Borrowed: £
Total Amount Repayable: £
Total Monthly Payment: £
©2026 The Guild of Property Professionals. All rights reserved. Terms and Conditions | Privacy Policy | Cookie Policy | Complaints Policy | Members Login
The Guild of Property Professionals Trading Address: 121 Park Lane, London W1K 7AG. GPEA Limited. Registered in England & Wales.  Company No: 02819824.  Registered Office Address: 2 St. Stephen's Court, St. Stephen's Road, Bournemouth, Dorset, England, BH2 6LA.  VAT Registration No: 576 8795 61
Book a Property Valuation Update Cookies Preferences