West Street, Titchfield Village

Guide Price
£312,500
SSTC
This property listing is now SSTC

2 Bedroom End of Terrace House for sale in Fareham

1 2 1
  • Easy walking distance to Titchfield Village amenities.
  • Woodburning stove to Sitting Room.
  • Bespoke oak kitchen cupboards with hardwood worktops and Butlers sink.
  • Newly refurbished throughout
  • Potential to extend kitchen if appropriate planning permissions obtained
  • Attractive and peaceful garden
  • Hill Head beach 3 miles

*** NO ONWARD CHAIN***
Situated in the heart of Titchfield village and within easy walking distance to amenities, a beautiful Grade II listed cottage dating back to the 18th century which has been upgraded and well maintained over the years.

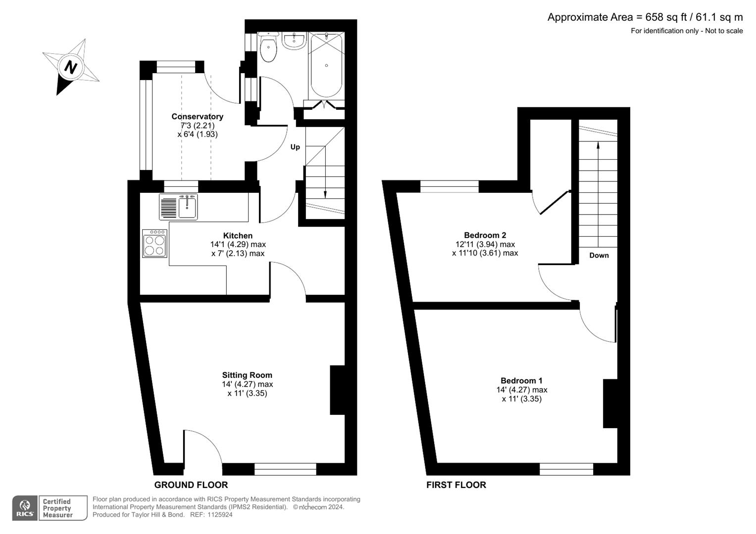
This charming home retains much of its character; on entering the cottage the Sitting Room offers a lovely space in which to relax centring on a wood burning stove with oak mantel, there are further fitted shelves flanking the fireplace to one side. A solid oak stable door leads into the Kitchen with a tiled floor and has been beautifully fitted with bespoke oak cupboards, hardwood worktops and a butler's sink. A doorway leads to an inner back lobby and beyond into the bathroom which is fully tiled with a wash hand basin and vanity unit and a bath with a shower over. Upstairs are two double bedrooms: bedroom 1 is a beautiful south facing room filled with light bedroom 2 has a picturesque aspect overlooking the country garden. A particular feature of the property is the attractive and peaceful garden, accessed via a wooden conservatory, with a small courtyard area and steps leading up to an area of lawn with perennial flowerbeds at the end there is a large wooden gardener's shed.

Titchfield itself is a beautiful unspoilt medieval village, home to the oldest Anglo Saxon church in Hampshire. The village has a thriving community and people flock to the boutique shops, cafes and public houses to enjoy the relaxed and friendly vibe. Titchfield Haven Nature Reserve is on the outskirts of the village where you can walk to Hill Head beach and Meon Shore.

SUMMARY OF FEATURES:
Recent damp works carried out by Insite with 30 year guarantee; Roof completely overhauled with new felt and battens with 5 year guarantee; Secondary glazing just installed to Bedrooms and Sitting Room; Painted throughout; Hardwood front door with cast iron ironmongery and 20 year paint guarantee; Re-carpeted throughout just over 12 months ago; Solid oak ledge and braced doors throughout; Vinyl plank floor to the Sitting Room; Kitchen appliances to include 4 ring gas Smeg cooker and Teknix washing machine with space for a freestanding fridge/freezer; Ideal boiler; well insulated loft; Gated side access to the right for bin removal.

GENERAL INFORMATION
TENURE: Freehold; SERVICES: Mains gas, electricity, water and drainage; LOCAL AUTHORITY: Fareham Borough Council; TAX BAND: C

DISTANCES:
Hill Head Beach - 3 miles; Locks Heath Shopping Centre - 2.7 miles; Portsmouth - 12 miles; Southampton - 12 miles

Property Ref: 34217249

Share:

Similar Properties

Friary Meadow, Titchfield

2 Bedroom Retirement Property | £300,000

END OF DEVELOPMENT SALE, CONTACT TAYLOR HILL & BOND, TITCHFIELD FOR MORE INFORMATION. A selection of luxury two or three...

Garstons Close, Titchfield

3 Bedroom Terraced House | Offers in excess of £300,000

Situated in a sought-after location a short walk from Titchfield village and local amenities, an attractive terraced fam...

Church Place, Fareham

2 Bedroom Terraced House | Guide Price £300,000

*** NO ONWARD CHAIN*** Situated in the heart of Fareham's conservation area adjacent to St. Peters and St. Paul's Church...

Southfields, Portchester

3 Bedroom Semi-Detached House | Guide Price £320,000

Conveniently located in a quiet development built by Persimmon Homes in 2019 with green open spaces nearby and Portchest...

Kingston Gardens, Fareham

3 Bedroom Terraced House | Guide Price £320,000

Situated in a popular residential location close to schools and amenities, a beautifully presented and upgraded family h...

The Greendale, Fareham

3 Bedroom Semi-Detached House | Guide Price £325,000

Situated in a popular residential location close to schools and amenities, a semi detached property in need of modernisi...

Taylor Hill & Bond (Titchfield)

Titchfield, Fareham, Titchfield, Hampshire, PO14 4RT

01329 844812

How much is your home worth?

Use our short form to request a valuation of your property.

Request a Valuation

Mortgage Calculator

Amount Borrowed: £
Total Amount Repayable: £
Total Monthly Payment: £
©2026 The Guild of Property Professionals. All rights reserved. Terms and Conditions | Privacy Policy | Cookie Policy | Complaints Policy | Members Login
The Guild of Property Professionals Trading Address: 121 Park Lane, London W1K 7AG. GPEA Limited. Registered in England & Wales.  Company No: 02819824.  Registered Office Address: 2 St. Stephen's Court, St. Stephen's Road, Bournemouth, Dorset, England, BH2 6LA.  VAT Registration No: 576 8795 61
Book a Property Valuation Update Cookies Preferences