Willow Brook Close, Titchfield Common

Guide Price
£392,000

3 Bedroom Semi-Detached House for sale in Fareham

1 3 2
  • Tucked away, private position in small development
  • Stunning interior
  • Fully integrated kitchen
  • Sunny west facing garden
  • Superb driveway parking
  • EPC- B

Situated within a small development and tucked away in a quiet cul-de-sac conveniently located for local amenities, green open spaces and with good road and rail links nearby, an attractive and immaculately presented family home built in 2018 offering well-proportioned reception space and three bedrooms, as well as benefitting from off road parking for two cars.

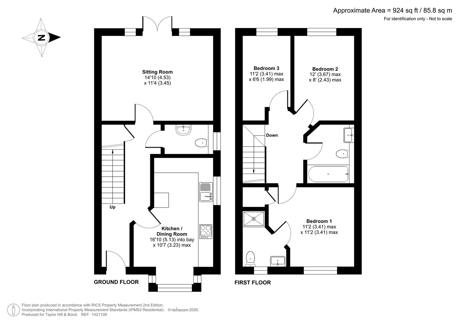
The property has a block paved driveway and the frontage is low maintenance with attractive prairie planted palms and shrubs and a pathway leads to the front door. On entering the quality is apparent with luxury vinyl plank flooring leading through the hallway into the Sitting Room at the rear. The Kitchen/Dining Room is positioned at the front of the with an attractive bay window providing an ideal seating area; there are ample matt grey cupboards with a range of appliances included; this good-sized room also has the benefit of a breakfast bar for informal dining. The generous Sitting Room is light and sunny providing a wonderful area for relaxing with the family; there are double doors leading to outside. Upstairs are three bedrooms, two of which are doubles; Bedroom 1 is complemented by a designer ensuite Shower Room and there is a further contemporary Family Bathroom. The back garden is west facing, private and tranquil, with a large terrace for alfresco dining, there is an area of lawn and a deck terrace perfect for capturing the evening sun. There is also a wooden gardeners shed and gated side access to the driveway.

Titchfield Common remains popular with both professional couples and families as it is ideally placed with the green open spaces of Hunts Pond Road Recreation Ground and Abshot Road Childrens Playground both within easy walking distance. Good local amenities can be found at Park Gate and the property is in close proximity and in the catchment area for St John the Baptist Church of England School, Locks Heath Infant and Junior School and Brookfield Community School. There are good road and rail links within easy reach.

SUMMARY OF FEATURES:
Double glazed throughout; Luxury vinyl plank flooring to Hallway and Sitting Room; Porcelain tile flooring to the Kitchen/Dining Room and Cloakroom; Understairs cupboard with light; Contemporary fitted Cloakroom; Kitchen appliances to include a 4 ring gas Neff hob, oven and grill. Integrated Indesit dishwasher, integrated fridge/freezer and space for a washing machine; Vaillant combi boiler; Large storage/airing cupboard; Loft space with light and power; Bedroom 1 with fitted wardrobe and wardrobe cupboards; Wooden gardeners shed.

GENERAL INFORMATION
TENURE: Freehold; SERVICES: Mains gas, electricity, water and drainage; LOCAL AUTHORITY: Fareham Borough Council; TAX BAND: C

DISTANCES:
Hunts Pond Recreation Ground - 0.5 miles; Abshot Road Childrens Playground - 0.9 miles; Junction 9 M27 - 2.3 miles; Park Gate local amenities - 2 miles; Swanwick Railway Station - 2.3 miles

Property Ref: 34511657

Share:

Similar Properties

Church Path, Titchfield Village

3 Bedroom Terraced House | Guide Price £392,000

Situated within the heart of this most sought after village, tucked away along a single track no through lane, a stunnin...

Friary Meadow, Titchfield

2 Bedroom Retirement Property | £385,000

Two bedroom ground floor apartment with kitchen/dining/lounge with door to a terrace, en-suite shower room to the main b...

West Street, Titchfield

3 Bedroom Semi-Detached House | Guide Price £385,000

Situated in the heart of Titchfield village and within easy walking distance to amenities, a much-loved family home dati...

Warsash Road, Warsash

3 Bedroom Semi-Detached House | Guide Price £399,950

*** VACANT POSSESSION***Situated in a popular residential location within walking distance to amenities and schools, a s...

Hollam Crescent, Fareham

3 Bedroom Detached House | Guide Price £399,950

Situated in a convenient location along a quiet cul-de-sac with good road and rail links nearby, a much-loved family hom...

The Florins, Titchfield Common

3 Bedroom Semi-Detached House | Guide Price £400,000

Situated in a peaceful, tucked away location in a wooded enclave at the head of this small development, a stunning tradi...

Taylor Hill & Bond (Titchfield)

Titchfield, Fareham, Titchfield, Hampshire, PO14 4RT

01329 844812

How much is your home worth?

Use our short form to request a valuation of your property.

Request a Valuation

Mortgage Calculator

Amount Borrowed: £
Total Amount Repayable: £
Total Monthly Payment: £
©2026 The Guild of Property Professionals. All rights reserved. Terms and Conditions | Privacy Policy | Cookie Policy | Complaints Policy | Members Login
The Guild of Property Professionals Trading Address: 121 Park Lane, London W1K 7AG. GPEA Limited. Registered in England & Wales.  Company No: 02819824.  Registered Office Address: 2 St. Stephen's Court, St. Stephen's Road, Bournemouth, Dorset, England, BH2 6LA.  VAT Registration No: 576 8795 61
Book a Property Valuation Update Cookies Preferences