Chapelside, Titchfield

Guide Price
£375,000

3 Bedroom Terraced House for sale in Titchfield

1 3 2
  • Within a small exclusive development in the heart of Titchfield.
  • Generous Sitting Room overlooking pretty garden.
  • Beautifully appointed and newly fitted Kitchen.
  • Three bedrooms, two of which are doubles.
  • Off road parking and single garage.
  • EPC D (65)

Situated within a small exclusive development in the heart of the historic and picturesque village of Titchfield, a much-loved home built in the 1980's offering three bedrooms and a spacious reception room. The property has been updated by the current owner who purchased the property in 2023.

***NO ONWARD CHAIN***

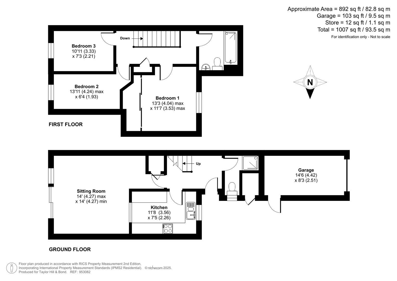
The Sitting Room is well proportioned and comfortable with ample space for dining and has large sliding doors which showcase and give access to the beautiful garden. The Kitchen has been refitted with ample painted wooden cupboards with quartz work tops and a range of appliances. There is an opening through to the Sitting Room allowing the light to pour in. A Shower Room completes the ground floor. Upstairs are three bedrooms; Bedroom 1 has been fitted with a bank of wardrobe cupboards. There is also a family Bathroom. A particular selling feature of this lovely home is the east facing garden which is walled on two sides, terraced and has been lovingly tended and planted with flowering shrubs such a Forsythia, Japonica, Camellia, Magnolia, Acer and a Climbing Rose. There is an immaculate wooden Summerhouse with views across to the church spire, perfect for relaxing and capturing the evening sun, as well as a breakfast area nearer the house. Outside, the property is approached via a block paved driveway with parking and a pretty, low maintenance frontage. There is a garage with an up and over door and pedestrian access down the side to the rear garden.

Titchfield itself is a beautiful unspoilt medieval village, home to the oldest Anglo-Saxon church in Hampshire. The village has a thriving community and people flock to the boutique shops, cafes and public houses to enjoy the relaxed and friendly vibe. Titchfield Haven Nature Reserve is on the outskirts of the village where you can walk to Hill Head beach and Meon Shore.

SUMMARY OF FEATURES:
Beautifully presented and well-maintained accommodation throughout; Stunning kitchen with Neff oven, electric hob, integral slimline dishwasher, fridge and freezer. Space for a washing machine; Glow worm combi boiler replaced in 2024 and serviced on 31st March 2025 with two new radiators installed in Sitting Room; New composite front door; Ceilings skimmed in Hallway and Sitting Room; New patio doors installed to Sitting Room and windows to rear; Wardrobe cupboards to Bedroom 1; New carpets to Bedroom1 & Bedroom 3; Gated access via alleyway to rear garden; Block paved driveway for tandem parking for two cars and single garage with power and light; New loft ladder installed; Outside tap and water butt; Wooden summerhouse.

GENERAL INFORMATION:
TENURE: Freehold; SERVICES: Mains gas, electricity, water and drainage; LOCAL AUTHORITY: Fareham Borough Council; TAX BAND: D

DISTANCES:
Titchfield Amenities - 0.2 miles; Fareham Train Station - 1.9 miles; Locks Heath Shopping Centre - 2.8 miles; Whiteley Shopping Village - 3.5 miles

AGENTS NOTE:
Private secure access to all residents of Chapelside through The Earl of Southampton Trust Day Rooms into the village square. No.15 has a pedestrian right of way over the side access.

Property Ref: 34161094

Share:

Similar Properties

Argyle Crescent, Fareham

3 Bedroom Detached Bungalow | Guide Price £375,000

*** NO ONWARD CHAIN ***Situated in a popular residential location a short distance to bus stops and amenities, a much lo...

Fair Isle Close, Stubbington

3 Bedroom Semi-Detached House | Guide Price £375,000

Situated in a sought-after residential location at the end of a quiet cul-de-sac, a much loved home offering generous re...

Bridge Street, Titchfield Village

3 Bedroom Terraced House | Guide Price £365,000

A pretty 3 bedroom cottage situated in the heart of this most sought after village with many character features.

West Street, Titchfield

3 Bedroom Semi-Detached House | Guide Price £385,000

Situated in the heart of Titchfield village and within easy walking distance to amenities, a much-loved family home dati...

Willow Brook Close, Titchfield Common

3 Bedroom Semi-Detached House | Guide Price £392,000

Situated within a small development and tucked away in a quiet cul-de-sac conveniently located for local amenities, gree...

Hollam Crescent, Fareham

3 Bedroom Detached House | Guide Price £399,950

Situated in a convenient location along a quiet cul-de-sac with good road and rail links nearby, a much-loved family hom...

Taylor Hill & Bond (Titchfield)

Titchfield, Fareham, Titchfield, Hampshire, PO14 4RT

01329 844812

How much is your home worth?

Use our short form to request a valuation of your property.

Request a Valuation

Mortgage Calculator

Amount Borrowed: £
Total Amount Repayable: £
Total Monthly Payment: £
©2026 The Guild of Property Professionals. All rights reserved. Terms and Conditions | Privacy Policy | Cookie Policy | Complaints Policy | Members Login
The Guild of Property Professionals Trading Address: 121 Park Lane, London W1K 7AG. GPEA Limited. Registered in England & Wales.  Company No: 02819824.  Registered Office Address: 2 St. Stephen's Court, St. Stephen's Road, Bournemouth, Dorset, England, BH2 6LA.  VAT Registration No: 576 8795 61
Book a Property Valuation Update Cookies Preferences