Southfields, Portchester

Guide Price
£365,000
SSTC
This property listing is now SSTC

3 Bedroom Semi-Detached House for sale in Portchester

1 3 2
  • Immaculately presented throughout.
  • 3 years of NHBC warranty remaining.
  • Well proportioned Sitting Room with double doors to garden.
  • Three bedrooms, two of which are doubles.
  • Portchester train station a short drive away.
  • EPC Rating B (83)

Conveniently located on the edge of a quiet development built by Persimmon Homes in 2019 with green open spaces and protected land just over the road and Portchester train station a mile away, an immaculately presented family home offering generous reception space and three bedrooms, in addition to driveway parking for two cars.

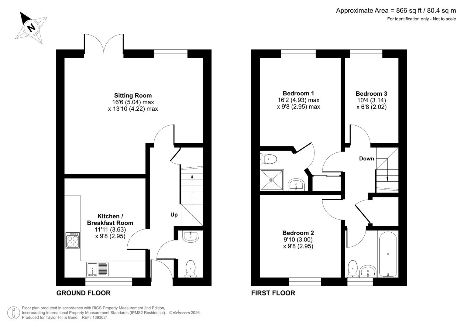
On entering, the adjacent Kitchen/Breakfast Room is a lovely sunny room drawing in sunlight from the south and which has been fitted with ample white cupboards, a range of appliances and plenty of space for a breakfast table. The Sitting Room is situated to the rear of the house and is a well-proportioned room for entertaining and relaxing with family and friends; double doors lead to the garden. A Cloakroom completes the ground floor. Upstairs are three bedrooms, two of which are doubles, Bedroom 1 benefits from an ensuite Shower Room and the contemporary Family Bathroom compliments the other bedrooms. A particular selling feature of the property is the larger than average garden with a terrace for al fresco dining and an area of lawn. There is also a wooden gardeners shed and gated side access.

The property is ideally located for easy road and rail links with Portchester railway station a short drive away and access to the M27 two miles away. Portchester Precinct is just over a mile from Southfields and there is local schooling just round the corner. For those with a love of the sea Portchester is surrounded by beautiful lakes with lovely coastal walks and Portchester Sailing Club has easy access into Portsmouth Harbour. Port Solent Broadwalk Shopping Centre and Marina are just three miles down the road.

Nearby Fareham town offers plenty of restaurants and brasseries and there is also a large Tesco superstore. Fareham Creek is a local beauty spot providing lovely trail walks and is popular with kayakers and SUP enthusiasts. Additionally, Cams Hall Estate Golf Course has both 9 and 18 hole courses.

SUMMARY OF FEATURES:
3 years remaining of NHBC warranty; Ideal Logic combi boiler; Understairs storage cupboard; Kitchen appliances to include an Electrolux electric hob, oven and grill and freestanding Hoover fridge/freezer; Space for washing machine; Electric fire to Sitting Room; Understairs cupboard; Fitted blinds throughout the house; Airing/storage cupboard on Landing; Fitted wardrobe cupboards to Bedroom 1; Outside tap to the front; Tarmac driveway for two cars; Loft space.

GENERAL INFORMATION:
TENURE: Freehold; SERVICES: Mains gas, electricity, water and drainage; LOCAL AUTHORITY: Fareham Borough Council; TAX BAND: C

DISTANCES:
Wicor Primary School - 0.4 miles; Wicor Woodland - 0.3 miles; Portchester Community School - 1 mile; Portchester Precinct - 1.3 miles; Portchester Train Station - 1.4 miles; Portchester Castle - 1.6 miles; Port Solent - 2.9 miles

AGENTS NOTE:
Estate Charges ?291.00 annually, paid six monthly to Remus Management Company. Estate charges include for gardening/landscaping, public liability insurance, estate cleaning, general repairs and maintenance, children's play equipment, management company expenses, accountancy fees, treeworks and resurfacing of access roads.

Property Ref: 34394850

Share:

Similar Properties

Bridge Street, Titchfield Village

3 Bedroom Terraced House | Guide Price £365,000

A pretty 3 bedroom cottage situated in the heart of this most sought after village with many character features.

Fair Acre Walk, Fareham

3 Bedroom Detached House | Guide Price £350,000

Situated in an extremely sought-after residential location equidistant between the village of Titchfield and the market...

Leep Lane, Alverstoke

3 Bedroom Bungalow | Guide Price £350,000

A deceptively spacious three bedroom bungalow situated in a peaceful tucked away lane close to Alverstoke Village. Leep...

Argyle Crescent, Fareham

3 Bedroom Detached Bungalow | Guide Price £375,000

*** NO ONWARD CHAIN ***Situated in a popular residential location a short distance to bus stops and amenities, a much lo...

Chapelside, Titchfield

3 Bedroom Terraced House | Guide Price £375,000

Situated within a small exclusive development in the heart of the historic and picturesque village of Titchfield, a much...

Fair Isle Close, Stubbington

3 Bedroom Semi-Detached House | Guide Price £375,000

Situated in a sought-after residential location at the end of a quiet cul-de-sac, a much loved home offering generous re...

Taylor Hill & Bond (Titchfield)

Titchfield, Fareham, Titchfield, Hampshire, PO14 4RT

01329 844812

How much is your home worth?

Use our short form to request a valuation of your property.

Request a Valuation

Mortgage Calculator

Amount Borrowed: £
Total Amount Repayable: £
Total Monthly Payment: £
©2026 The Guild of Property Professionals. All rights reserved. Terms and Conditions | Privacy Policy | Cookie Policy | Complaints Policy | Members Login
The Guild of Property Professionals Trading Address: 121 Park Lane, London W1K 7AG. GPEA Limited. Registered in England & Wales.  Company No: 02819824.  Registered Office Address: 2 St. Stephen's Court, St. Stephen's Road, Bournemouth, Dorset, England, BH2 6LA.  VAT Registration No: 576 8795 61
Book a Property Valuation Update Cookies Preferences