NICHOLAS CRESCENT, FAREHAM

£375,000
SSTC
This property listing is now SSTC

2 Bedroom Detached Bungalow for sale in Fareham

1 2 1
  • EXTENDED DETACHED BUNGALOW
  • NEWLY REFURBISHED
  • TWO DOUBLE BEDROOMS
  • NO FORWARD CHAIN
  • ATTRACTIVE KITCHEN/DINER
  • LOUNGE
  • CONSERVATORY
  • CONTEMPORARY SHOWER ROOM
  • EXTENSIVE DRIVE AND GARAGE
  • EPC RATING D

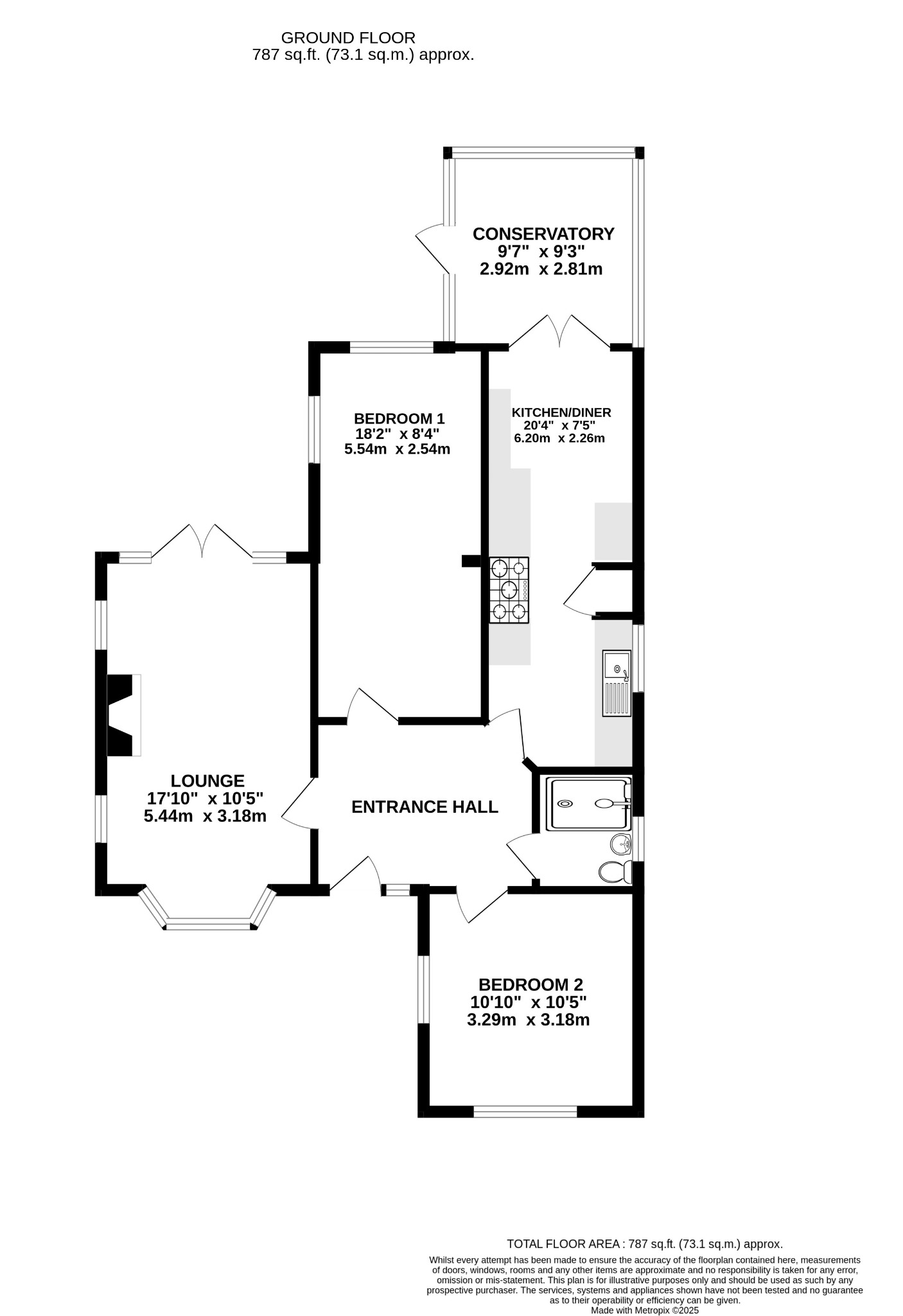
DESCRIPTION
Offered for sale with NO FORWARD CHAIN, is this newly refurbished, detached bungalow within easy reach of Fareham’s town centre, shops and amenities and mainline railway station. The well-proportioned and extended living accommodation benefits from an attractive kitchen/diner, conservatory, lounge with feature fireplace, two double bedrooms and a contemporary shower room. Outside there is an extensive block paved drive, GARAGE and gardens to both front and rear. This beautifully presented bungalow would be the ideal retirement or family home and comes with new carpets and flooring throughout, integrated fridge/freezer and brand new dual fuel range style cooker and integrated dishwasher.

ENTRANCE HALL
This generous size hall is approached through a contemporary UPVC front door with double glazed side panel.
Access to loft with ladder. Herringbone wood effect flooring, vertical radiator and newly fitted internal doors leading to all principal rooms.

LOUNGE
This light and airy triple aspect room, is centred around an attractive fireplace. Double glazed bay window overlooking the front garden. Double glazed French doors leading to the rear. Radiator.

KITCHEN/DINER
This attractive and comprehensively fitted kitchen has ample base cupboards with matching drawers, marble effect worktops and fitted wine rack. Appliances include an integrated fridge/freezer and dishwasher, newly installed freestanding dual fuel range style cooker with glass splash back and circulating stainless steel and glass canopy style cooker hood. Space and plumbing for washing machine. Matching wall cupboard housing a gas boiler for central heating and hot water with space beneath for microwave. Built-in larder with window also housing the gas meter. Herringbone wood effect flooring. Vertical radiator. Double glazed window to side elevation and double glazed French doors to:

CONSERVATORY
Double glazed windows and door to rear garden and small patio area. Herringbone wood effect flooring. Wall light and double socket.

BEDROOM ONE
This dual aspect room has double glazed windows to rear and side elevations. Vertical radiator.

BEDROOM TWO
Dual aspect double glazed windows to front and side elevations with views over the front garden. Built-in cupboard housing electric meter. Radiator.

SHOWER ROOM
This refitted contemporary designed shower room has a walk-in shower with fixed glass side panel, black rain shower with additional hand-held shower option, combination unit with basin and WC. Heated towel rail. Extractor fan. Obscure double glazed window to side elevation. Partially tiled walls and herringbone wood effect flooring.

OUTSIDE
The property is approached over a generous block paved driveway with space for parking cars, camper van/ motorhome/ boat etc. The driveway continues past the property giving access to a brick built single GARAGE with up and over door, power and light connected.

The good size front garden is mainly laid to lawn with flower and shrub borders and a gravelled side path leading to the rear garden.

The newly fenced rear garden is mainly laid to lawn and includes a sheltered patio area adjacent to the conservatory. Outside tap.

AGENT'S NOTE
In accordance with Section 21 of the Estate Agents Act 1979, we advise prospective purchasers that the vendor is an employee of Pearsons.

COUNCIL TAX
Fareham Borough Council. Tax Band D. Payable 2025/2026. £2,164.55.

Important Information

  • This is a Freehold property.
  • This Council Tax band for this property is: D

Property Ref: PFHCC_697200

Share:

Similar Properties

FRIARY MEADOW, TITCHFIELD

2 Bedroom Detached Bungalow | £375,000

A wonderful opportunity to purchase a two bedroom detached bungalow located on arguably one of the best plots within thi...

FRIARY MEADOW, TITCHFIELD

2 Bedroom Retirement Property | £375,000

A wonderful opportunity to purchase a luxury retirement apartment located on a prime position within this recently const...

SOUTHMEAD ROAD, FAREHAM

4 Bedroom Semi-Detached Bungalow | £375,000

This significantly extended semi-detached bungalow has an impressive wraparound side and rear extension creating a wonde...

FUNTLEY HILL, FUNTLEY

2 Bedroom Detached Bungalow | £379,000

NO FORWARD CHAIN and available for immediate occupation. A rare opportunity to purchase this stunning NEW BUILD detached...

ARUNDEL DRIVE, FAREHAM

4 Bedroom Semi-Detached House | £379,950

This extended four bedroom semi-detached house is located in the ever popular Uplands development. The internal accommod...

PENTLAND RISE, PORTCHESTER

4 Bedroom Semi-Detached House | £379,950

NO FORWARD CHAIN. A wonderful opportunity to purchase a three/four bedroom semi-detached house located on the Portcheste...

Pearsons Estate Agents (Fareham)

21 West Street, Fareham, Hampshire, PO16 0BG

01329 288241

How much is your home worth?

Use our short form to request a valuation of your property.

Request a Valuation

Mortgage Calculator

Amount Borrowed: £
Total Amount Repayable: £
Total Monthly Payment: £
©2026 The Guild of Property Professionals. All rights reserved. Terms and Conditions | Privacy Policy | Cookie Policy | Complaints Policy | Members Login
The Guild of Property Professionals Trading Address: 121 Park Lane, London W1K 7AG. GPEA Limited. Registered in England & Wales.  Company No: 02819824.  Registered Office Address: 2 St. Stephen's Court, St. Stephen's Road, Bournemouth, Dorset, England, BH2 6LA.  VAT Registration No: 576 8795 61
Book a Property Valuation Update Cookies Preferences