HIGHLANDS ROAD, FAREHAM

£310,000
SSTC
This property listing is now SSTC

3 Bedroom Semi-Detached House for sale in Fareham

2 3 1
  • SEMI-DETACHED HOUSE
  • NON-ESTATE POSITION
  • THREE BEDROOMS
  • NO FORWARD CHAIN
  • REQUIRES MODERNISATION
  • LOUNGE, DINING ROOM & KITCHEN
  • BATHROOM
  • DRIVEWAY PARKING & A GARAGE
  • REAR GARDEN
  • EPC RATING D

DESCRIPTION
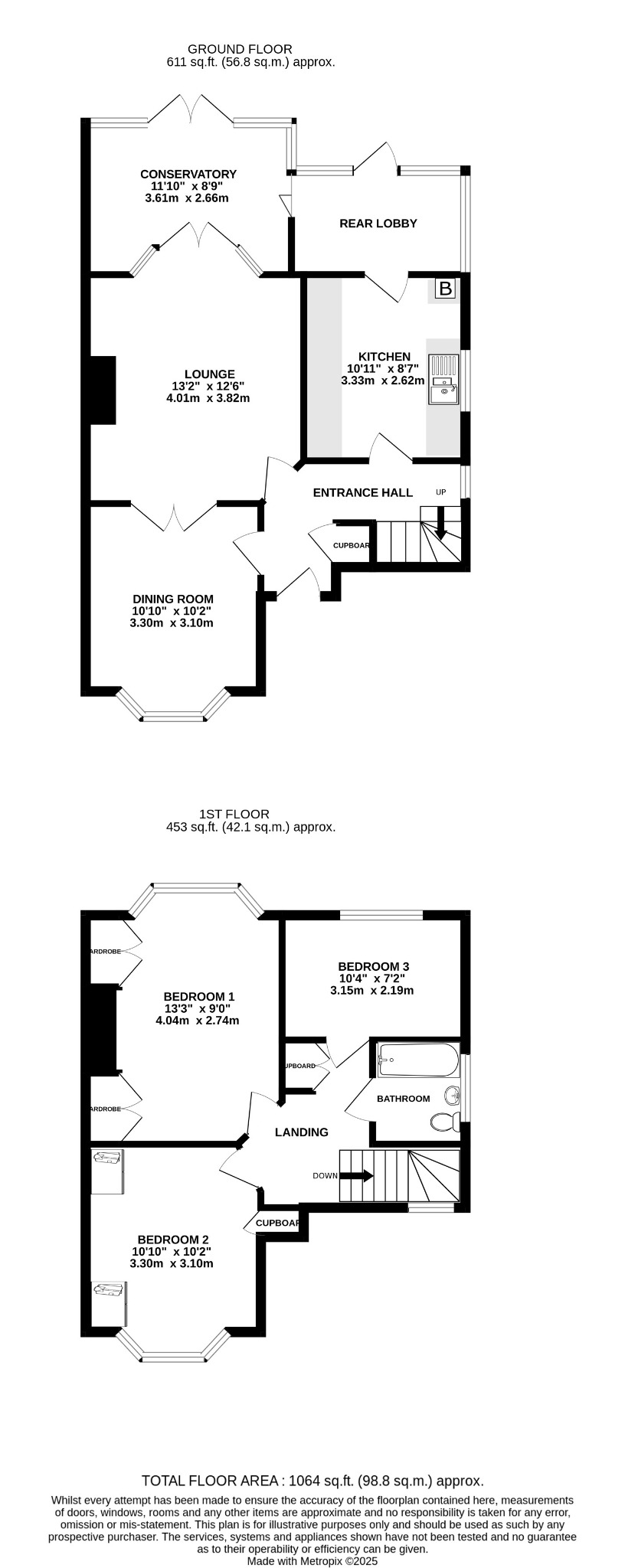
This three bedroom semi-detached house is located in a popular non-estate position to the north-west of Fareham town centre and is offered for sale with NO FORWARD CHAIN. The internal accommodation which requires modernisation, comprises; entrance hall, lounge, dining room, kitchen, rear lobby, conservatory and to the first floor, there are three bedrooms and a bathroom. Outside, there is driveway parking to the front, shared access leading to the GARAGE and a rear garden which is predominantly paved. Viewing is highly recommended by the sole agents.

ENTRANCE HALL
Double glazed UPVC front door. Double glazed window to the side aspect. Staircase rising to the first floor with understairs storage cupboard. Radiator.

DINING ROOM
Double glazed bay window to the front aspect. Radiator. Double doors leading to the dining room.

LOUNGE
Double doors leading to the conservatory. Window to the rear aspect. Radiator.

CONSERVATORY
Double glazed French doors leading to the rear garden. Double glazed window to the rear aspect. Door leading to the rear lobby.

KITCHEN
Double glazed window to the side aspect. Door leading to the rear lobby. Wall mounted 'ideal' combination boiler. Matching wall and base units with contrasting work tops. Inset stainless steel sink and half drainer. Tiled splashback. Space for fridge and cooker.

REAR LOBBY
Double glazed door leading to the rear garden. Double glazed window to the rear aspect. Space for fridge/freezer, washing machine, dishwasher and tumble dryer.

FIRST FLOOR
LANDING

Double glazed tall window to the front aspect. Loft access. Storage cupboard. Doors to:

BEDROOM ONE
Double glazed window to the rear aspect. Built-in wardrobes. Radiator.

BEDROOM TWO
Double glazed bay window to the front aspect. Fitted wardrobes. Radiator.

BEDROOM THREE
Double glazed window to the rear aspect. Radiator.

BATHROOM
Double glazed window to the side aspect. Suite comprising bath with shower over and screen, wash hand basin and low level WC. Part tiled walls. Heated towel rail.

OUTSIDE
To the front of the property, there is shingled driveway parking, open covered porch and side gated pedestrian access leading to the rear garden. Shared access leading to the garage.

GARAGE. Electric roller garage door. Window to the rear aspect. Power and light.

The rear garden is predominantly paved with mature shrubs, trees and hedging. Timber shed. Greenhouse. Side gated pedestrian access leading to the garage.

COUNCIL TAX
Fareham Borough Council. Tax Band D. Payable 2025/2026. £2,164.55.

Important Information

  • This is a Freehold property.
  • This Council Tax band for this property is: D

Property Ref: PFHCC_695907

Share:

Similar Properties

GORRAN AVENUE, GOSPORT

3 Bedroom Semi-Detached Bungalow | £310,000

A semi-detached chalet bungalow which has been extended both on the ground floor and the first floor to provide a decept...

TEWKESBURY AVENUE, FAREHAM

3 Bedroom Semi-Detached Bungalow | £310,000

Offered with NO FORWARD CHAIN, this two/three bedroom semi-detached bungalow is located in a cul-de-sac to the north of...

ASCOT CLOSE, TITCHFIELD COMMON

3 Bedroom Semi-Detached House | £310,000

A three bedroom detached home located within a cul-de-sac position in the popular area of Titchfield Common. The propert...

HILL PARK ROAD, FAREHAM

3 Bedroom Semi-Detached House | £315,000

A three bedroom semi-detached house which has been extended to the side to provide a large kitchen, family room/study, i...

WILD RIDINGS, FAREHAM

3 Bedroom Semi-Detached House | £315,000

A three bedroom semi-detached house located in a cul de sac position to the west of Fareham town centre. The property's...

BEAUMONT CLOSE, FAREHAM

3 Bedroom Semi-Detached House | £315,000

This well-presented three bedroom semi-detached house is located in a cul-de-sac within a popular residential area to th...

Pearsons Estate Agents (Fareham)

21 West Street, Fareham, Hampshire, PO16 0BG

01329 288241

How much is your home worth?

Use our short form to request a valuation of your property.

Request a Valuation

Mortgage Calculator

Amount Borrowed: £
Total Amount Repayable: £
Total Monthly Payment: £
©2026 The Guild of Property Professionals. All rights reserved. Terms and Conditions | Privacy Policy | Cookie Policy | Complaints Policy | Members Login
The Guild of Property Professionals Trading Address: 121 Park Lane, London W1K 7AG. GPEA Limited. Registered in England & Wales.  Company No: 02819824.  Registered Office Address: 2 St. Stephen's Court, St. Stephen's Road, Bournemouth, Dorset, England, BH2 6LA.  VAT Registration No: 576 8795 61
Book a Property Valuation Update Cookies Preferences