DUNDEE CLOSE, FAREHAM

£375,000
SSTC
This property listing is now SSTC

2 Bedroom Semi-Detached Bungalow for sale in Fareham

1 2 1
  • SEMI-DETACHED BUNGALOW
  • EXTREMELY WELL-PRESENTED
  • TWO BEDROOMS
  • GREATLY IMPROVED BY CURRENTLY OWNERS
  • GENEROUS SIZE REAR GARDEN
  • REFITTED KITCHEN
  • REFITTED SHOWER ROOM
  • AMPLE DRIVEWAY PARKING
  • 26'11 GARAGE
  • EPC RATING C

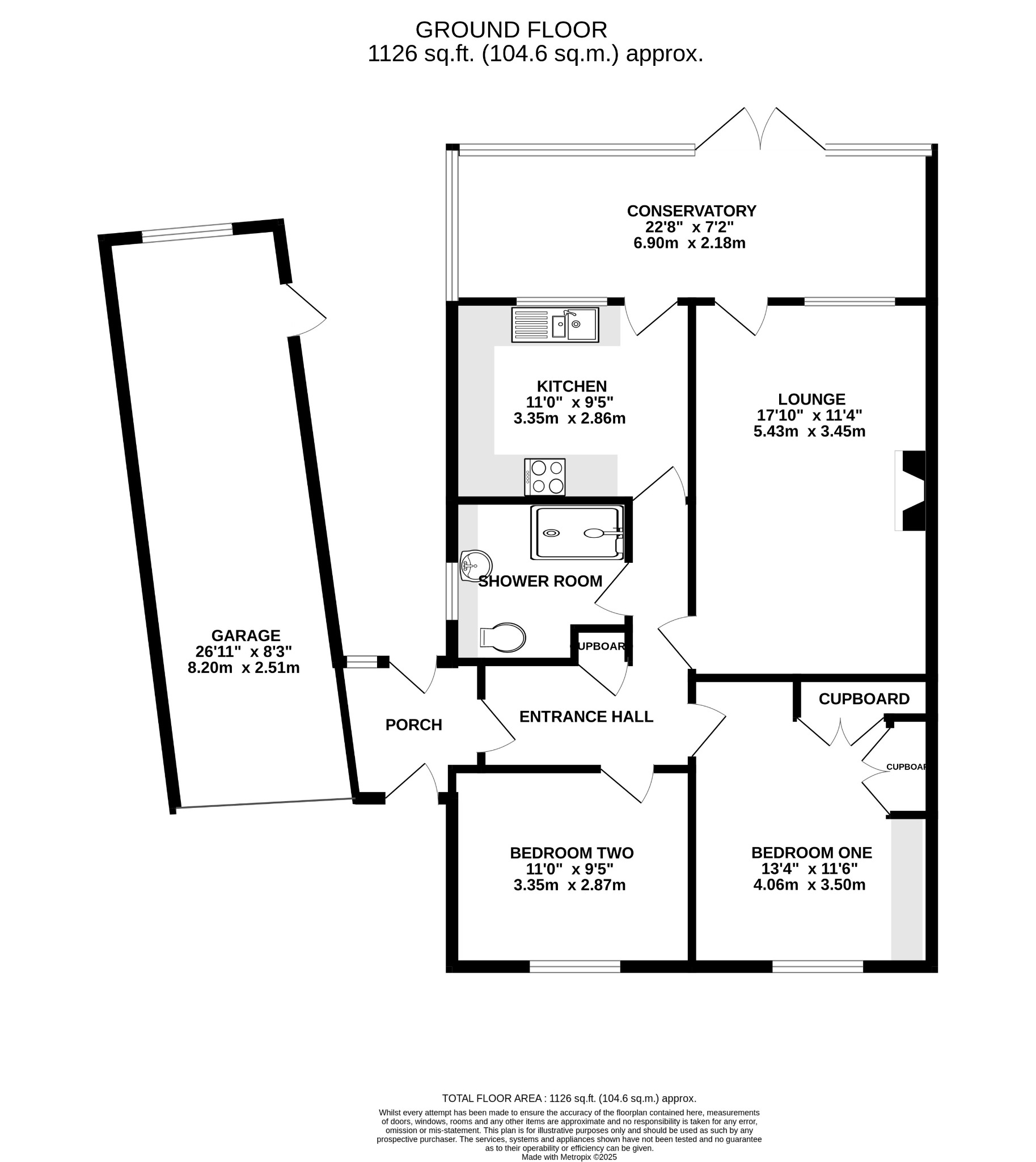
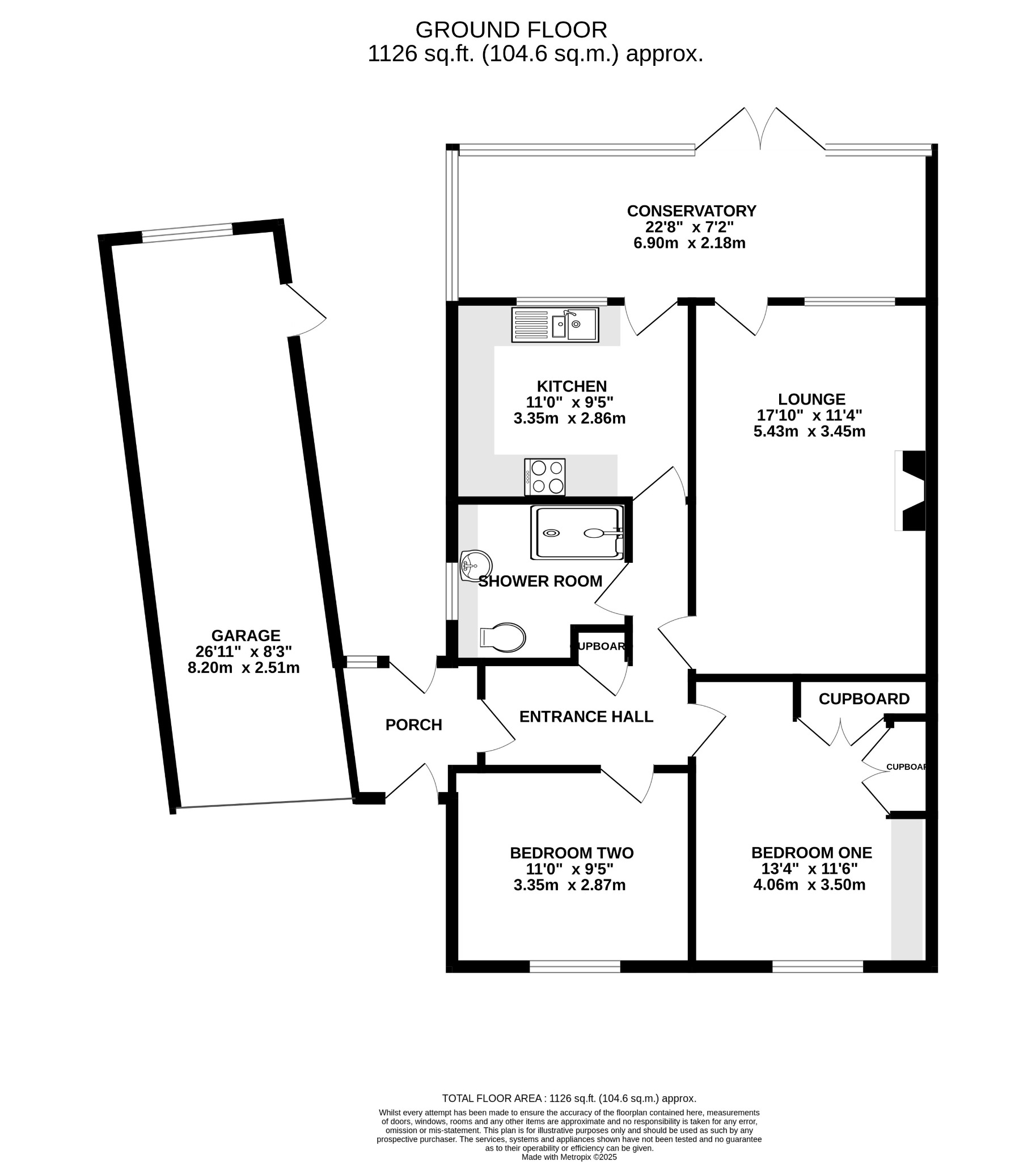
DESCRIPTION
An extremely well-presented two bedroom semi-detached bungalow which has been greatly improved by its present owners to create a beautiful home. The bungalow's accommodation briefly comprises entrance porch leading to an 'L' shaped entrance hall, two bedrooms; the principal bedroom with built-in bedroom furniture, lounge, refitted kitchen with fitted appliances, refitted shower room and double glazed conservatory with a double glazed clear glass roof leading onto the generous size rear garden. The property has gas central heating, is double glazed and benefits from its own solar panels including a 6.5 kilowatt battery. There is ample off road parking to the block paved driveway to the front of the property and a 26'11 GARAGE. As sole agents, we would highly recommend an early inspection.

DOUBLE GLAZED COMPOSITE FRONT DOOR
Leading to:

ENTRANCE PORCH
Tiled flooring. Double glazed door to rear garden. Cloaks hanging space. Door to:

ENTRANCE HALL
'L' shaped entrance hall with access to loft space with ladder where combination boiler can be found. Storage cupboard housing domestic meters and electric fuse box. Doors to:

BEDROOM ONE
Double glazed window to front elevation. Radiator. Coved and textured ceiling. Laminate flooring. Comprehensive range of built-in bedroom furniture including wardrobes, chests of drawers and dressing table.

BEDROOM TWO
Double glazed window to front elevation. Radiator. Coved and textured ceiling. Laminate flooring.

LOUNGE
Double glazed window and door to conservatory. Feature fireplace with coal effect gas fire. Coved and textured ceiling. Laminate flooring. Radiator.

KITCHEN
Double glazed window and door to conservatory. Refitted kitchen comprising one and a half bowl single drainer sink unit with cupboard under. Further range of wall and base level units with work surfaces over and acrylic splashback. Built-in four ring induction hob with cooker hood over and pan drawers beneath. Built-in eye-level 'Neff' oven with cupboards under and over. Built-in and concealed fridge, freezer, washing machine and dishwasher. Inset ceiling spotlights. Radiator. Laminate flooring.

SHOWER ROOM
Double glazed window to side elevation. Refitted shower room with walk-in shower cubicle with wall mounted shower unit and monsoon shower head. Table top wash hand basin with storage beneath. Low level close coupled WC with enclosed cistern. Further storage unit. Heated towel rail. Water softener. Tiled walls. Electric shaver point. Tiled floor with electric underfloor heating.

OUTSIDE
Off road parking is available for several cars to the block paved driveway to the front of the property which in turn provides access to the large garage.

GARAGE. Power and light. Personal door to rear garden.

The rear garden is a further feature of this bungalow and has a porcelain tiled patio area adjacent to the bungalow which continues providing a pathway to the garage and a garden store. The majority of the remainder of the garden can be found mainly laid to lawn with flower and shrub borders. The garden is fence enclosed.

AGENT'S NOTE
The solar panels are owned outright by the vendors and not only reduce energy bills but also provide a yearly rebate.

COUNCIL TAX
Fareham Borough Council. Tax Band C. Payable 2025/2026. £1,924.04.

Important Information

  • This is a Freehold property.
  • This Council Tax band for this property is: C

Property Ref: PFHCC_700391

Share:

Similar Properties

FRIARY MEADOW, TITCHFIELD

2 Bedroom Detached Bungalow | £375,000

A wonderful opportunity to purchase a two bedroom detached bungalow located on arguably one of the best plots within thi...

FRIARY MEADOW, TITCHFIELD

2 Bedroom Retirement Property | £375,000

A wonderful opportunity to purchase a luxury retirement apartment located on a prime position within this recently const...

SOUTHMEAD ROAD, FAREHAM

4 Bedroom Semi-Detached Bungalow | £375,000

This significantly extended semi-detached bungalow has an impressive wraparound side and rear extension creating a wonde...

FUNTLEY HILL, FUNTLEY

2 Bedroom Detached Bungalow | £379,000

NO FORWARD CHAIN and available for immediate occupation. A rare opportunity to purchase this stunning NEW BUILD detached...

ARUNDEL DRIVE, FAREHAM

4 Bedroom Semi-Detached House | £379,950

This extended four bedroom semi-detached house is located in the ever popular Uplands development. The internal accommod...

PENTLAND RISE, PORTCHESTER

4 Bedroom Semi-Detached House | £379,950

NO FORWARD CHAIN. A wonderful opportunity to purchase a three/four bedroom semi-detached house located on the Portcheste...

Pearsons Estate Agents (Fareham)

21 West Street, Fareham, Hampshire, PO16 0BG

01329 288241

How much is your home worth?

Use our short form to request a valuation of your property.

Request a Valuation

Mortgage Calculator

Amount Borrowed: £
Total Amount Repayable: £
Total Monthly Payment: £
©2026 The Guild of Property Professionals. All rights reserved. Terms and Conditions | Privacy Policy | Cookie Policy | Complaints Policy | Members Login
The Guild of Property Professionals Trading Address: 121 Park Lane, London W1K 7AG. GPEA Limited. Registered in England & Wales.  Company No: 02819824.  Registered Office Address: 2 St. Stephen's Court, St. Stephen's Road, Bournemouth, Dorset, England, BH2 6LA.  VAT Registration No: 576 8795 61
Book a Property Valuation Update Cookies Preferences