THE ROPE WALK, FAREHAM

£350,000
SSTC
This property listing is now SSTC

3 Bedroom Terraced House for sale in Fareham

1 3 2
  • STUNNING PERIOD PROPERTY
  • BELIEVED TO DATE FROM THE 18TH CENTURY
  • IMPRESSIVE LIVING ROOM WITH VAULTED BEAMED CEILING
  • THREE BEDROOMS
  • REFITTED KITCHEN
  • MEZZANINE FLOOR OVERLOOKING LIVING ROOM
  • CONSERVATION AREA
  • OFF ROAD PARKING FOR TWO VEHICLES
  • SOUTHERLY ASPECT REAR GARDEN
  • EPC RATING C

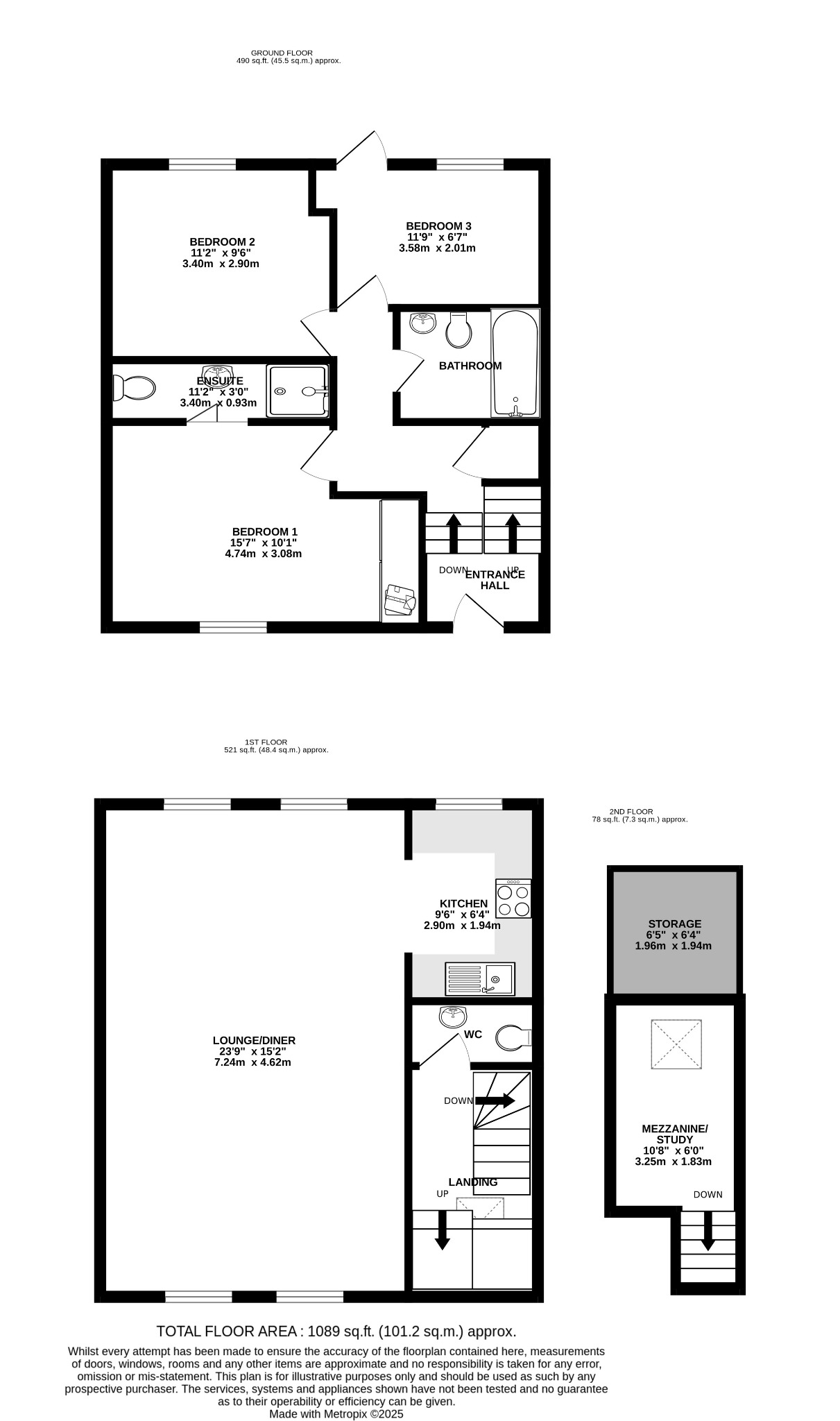
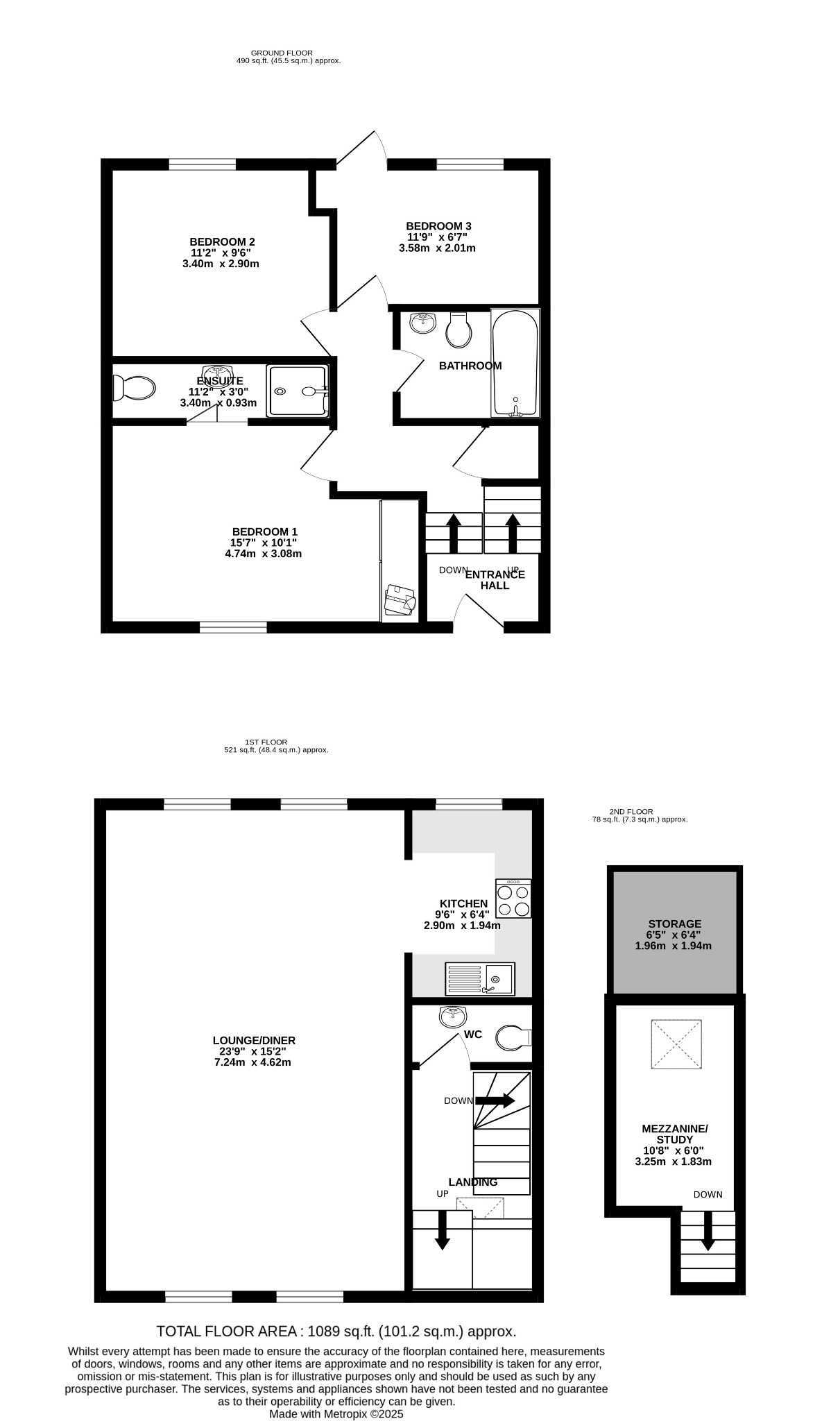
DESCRIPTION
A stunning period property believed to date from the 18th century and converted into residential accommodation in 1999. The property is located within the Fareham Quay conservation area, just to the south of Fareham's town centre and within easy walking distance of Fareham Creek. The main living accommodation is located on the first floor and boasts an impressive vaulted beamed ceiling with a maximum apex of 18ft. The refitted kitchen is located off the lounge/diner and a staircase leads to a mezzanine floor which is currently used as a study and overlooks the impressive living room. There is also a cloakroom located on the first floor. On the lower ground floor, there are three bedrooms, an en-suite to the principal bedroom and a family bathroom. The property has been upgraded with UPVC windows and doors and benefits from gas central heating. There is off road parking available for two vehicles to the front and a southerly aspect enclosed rear garden. As sole agents, we would highly recommend an early inspection.

COMPOSITE FRONT DOOR
Leading to:

ENTRANCE HALL
Stairs to first floor and lower ground floor. Coved and skimmed ceiling. 'Karndean' flooring. Oak doors to all rooms. Understairs storage cupboard and further storage cupboard where plumbing for washing machine can be found.

BEDROOM ONE
Double glazed window to front elevation. Radiator. Built-in wardrobes. Coved and skimmed ceiling. 'Karndean' flooring. Door to:

EN-SUITE
Low level close coupled WC. Pedestal wash hand basin. Tiled shower cubicle with wall mounted shower unit. 'Karndean' flooring. Extractor fan.

BEDROOM TWO
Double glazed window to rear elevation. Radiator. Coved and skimmed ceiling. 'Karndean' flooring.

BEDROOM THREE
Double glazed window and door to garden. Coved and skimmed ceiling. Radiator. 'Karndean' flooring.

BATHROOM
Panel enclosed bath with mixer taps and shower attachment over. Low level close coupled WC. Pedestal wash hand basin. Extractor fan. Heated towel rail. 'Karndean' flooring. Coved and skimmed ceiling. Feature mirrored wall.

FIRST FLOOR
LANDING

Staircase to mezzanine with 'Velux' window. Oak door to cloakroom and glazed oak door to lounge/diner.

CLOAKROOM
Low level close coupled WC. Vanity unit with wash hand basin and storage beneath. Extractor fan. Inset ceiling spotlights.

LOUNGE/DINER
A spacious and visually stunning room with a feature beamed ceiling measuring 18ft at its maximum apex. Two double glazed windows both to front and rear elevation. Wall lighting. Oak flooring. Opening to:

KITCHEN
With a range of wall and base level units with granite work surfaces and integrated sink and drainer. Built-in 'Neff' four ring induction hob with cooker hood over and 'Neff' fan-assisted oven beneath. Recess for fridge/freezer. Plumbing for dishwasher. Wall mounted gas boiler.

MEZZANINE FLOOR
Overlooking the lounge/diner. Currently used as a study. Double glazed 'Velux' window to rear. Access to eaves storage.

OUTSIDE
The property benefits from parking for two vehicles to the front of the property.

The rear garden has a timber decked area adjacent to the house. The remainder of the garden can be found mainly laid to lawn and is fence enclosed and has a gated pedestrian access.

COUNCIL TAX
Fareham Borough Council. Tax Band D. Payable 2025/2026. £2,164.55.

Important Information

  • This is a Freehold property.
  • This Council Tax band for this property is: D

Property Ref: PFHCC_697038

Share:

Similar Properties

OAKDOWN ROAD, STUBBINGTON

2 Bedroom Semi-Detached Bungalow | £350,000

NO FORWARD CHAIN. An extended two bedroom semi-detached bungalow located in a cul-de-sac position which is within a leve...

GLENBROOK WALK, FAREHAM

4 Bedroom Semi-Detached House | £350,000

NO FORWARD CHAIN. An extended four bedroom semi-detached house located in a popular cul-de-sac position to the west of F...

POUND GATE DRIVE, TITCHFIELD COMMON

3 Bedroom Detached Bungalow | £350,000

NO FORWARD CHAIN. A three bedroom detached bungalow located within an established residential area within the popular ar...

WICKHAM ROAD, FAREHAM

4 Bedroom House | £357,500

This superbly presented four bedroom house is ideally located in the Harrison School catchment area which is curricular...

DRIFT ROAD, WALLINGTON

3 Bedroom Semi-Detached House | £357,700

A modern three bedroom semi-detached house located within the popular village of Wallington and within easy access of Fa...

WOODVALE, FAREHAM

3 Bedroom Detached Bungalow | £359,950

NO FORWARD CHAIN. An excellent opportunity to purchase this three bedroom detached bungalow located in a highly regarded...

Pearsons Estate Agents (Fareham)

21 West Street, Fareham, Hampshire, PO16 0BG

01329 288241

How much is your home worth?

Use our short form to request a valuation of your property.

Request a Valuation

Mortgage Calculator

Amount Borrowed: £
Total Amount Repayable: £
Total Monthly Payment: £
©2026 The Guild of Property Professionals. All rights reserved. Terms and Conditions | Privacy Policy | Cookie Policy | Complaints Policy | Members Login
The Guild of Property Professionals Trading Address: 121 Park Lane, London W1K 7AG. GPEA Limited. Registered in England & Wales.  Company No: 02819824.  Registered Office Address: 2 St. Stephen's Court, St. Stephen's Road, Bournemouth, Dorset, England, BH2 6LA.  VAT Registration No: 576 8795 61
Book a Property Valuation Update Cookies Preferences