WEST DOWNS CLOSE, FAREHAM. GUIDE PRICE £500,000 - £525,000.

Guide Price
£500,000
SSTC
This property listing is now SSTC

4 Bedroom Detached House for sale in Fareham

2 4 2
  • DETACHED FAMILY HOME
  • UPLANDS PRIMARY SCHOOL CATCHMENT
  • FOUR BEDROOMS
  • NO FORWARD CHAIN
  • LOUNGE & DINING ROOM
  • KITCHEN
  • SHOWER ROOM
  • DRIVEWAY PARKING, CAR PORT & GARAGE
  • SOUTH FACING REAR GARDEN
  • EPC RATING C

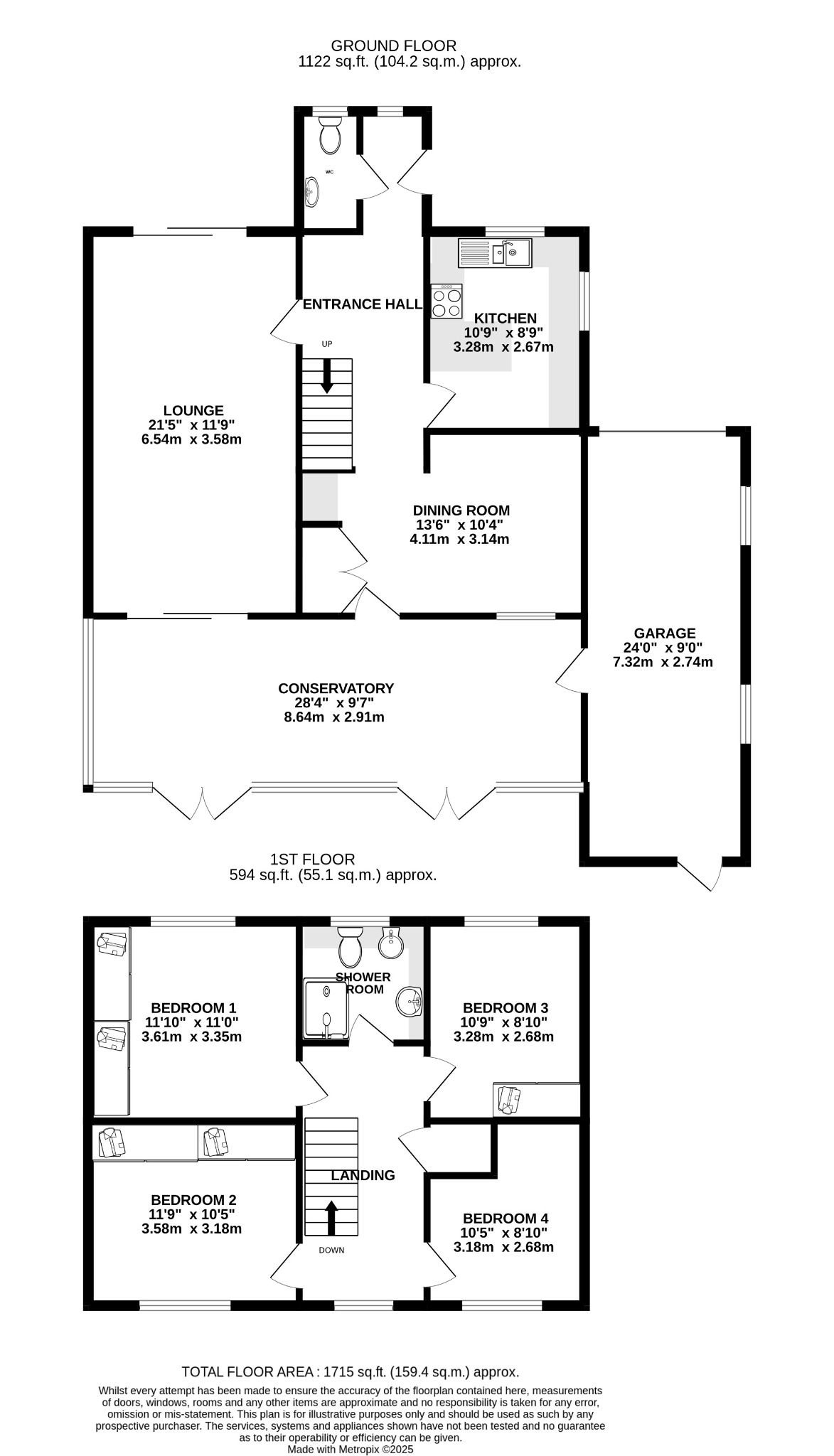
DESCRIPTION
GUIDE PRICE £500,000 - £525,000. NO FORWARD CHAIN. A four bedroom detached family home located in an off-road position to the north of Fareham town centre within catchment to Uplands Primary School, which is curriculum linked to Cams Hill Secondary School. The property's accommodation briefly comprises of an extended entrance hall, cloakroom, a dual aspect lounge, separate dining room, kitchen and an impressive 28' conservatory with two sets of French doors leading to the garden. On the first floor, four bedrooms can be found sharing a four piece shower room. The property benefits from double glazing and is warmed by gas central heating. There is off-road parking for several cars to the block paved driveway, a car port and a 24' long GARAGE. The property also benefits from an attractive south facing rear garden. As sole agents, we would highly recommend an early inspection.

DOUBLE GLAZED DOOR TO:

ENTRANCE HALL
Stairs to first floor. Radiator. Tiled floor. Doors to:

CLOAKROOM
Double glazed window to front elevation. Low level close coupled WC. Pedestal wash hand basin. Radiator. Tiled floor. Extractor fan.

LOUNGE
Double glazed patio doors to front patio and double glazed patio doors to conservatory. Chimney breast with feature fireplace with coal effect electric fire. Two radiators. Wall lights.

KITCHEN
Double glazed window to front and side elevation. Kitchen comprising; one and a half bowl single drainer sink unit with cupboard under. Further range of wall and base level units with roll edge work surfaces over and splashback tiling. Built-in four ring ceramic hob with cooker hood over. Built-in electric oven and grill with cupboards under and over. Built-in and concealed fridge, dishwasher and washing machine. Radiator. Tiled floor.

DINING ROOM
Double glazed patio doors and double glazed door to conservatory. Fitted dining room sideboard and glass fronted display units. Radiator. Understairs storage cupboard.

CONSERVATORY
Double glazed conservatory with two sets of double glazed French doors leading to garden. Radiator. Personal door to garage.

FIRST FLOOR

LANDING
Double glazed picture window to rear elevation. Storage cupboard. Doors to:

BEDROOM ONE
Double glazed window to front elevation. Radiator. Built-in wardrobe with mirrored doors.

BEDROOM TWO
Double glazed window to rear elevation. Radiator. Built-in wardrobes with mirrored doors.

BEDROOM THREE
Double glazed window to front elevation. Fitted wardrobes. Radiator.

BEDROOM FOUR
Double glazed window to rear elevation. Access to loft space with pull down ladder. Fitted shelves.

SHOWER ROOM
Double glazed window to front elevation. Shower cubicle. Low level close coupled WC. Bidet. Wash hand basin. Fitted bathroom storage units. Heated chrome towel rail. Extractor fan. Wall fan heater.

OUTSIDE
The property has off-road parking for several cars to the block paved driveway, which in turn provides access under a car port to the attached garage.

The attractive front garden can be found mainly laid to lawn and is private from West Downs Close and has a patio area with a storm canopy over and is directly accessed from the lounge.

The rear garden has a patio area adjacent to the property. The majority of the rear garden can be found mainly laid to lawn with flower and shrub borders.

The GARAGE is accessible via up and over door, has power and light and a wall mounted gas boiler.

AGENTS NOTES
A significant benefit is the installation of solar panels which are owned outright.

COUNCIL TAX
Fareham Borough Council. Tax Band E. Payable 2025/2026. £2,645.56.

Important Information

  • This is a Freehold property.
  • This Council Tax band for this property is: E

Property Ref: PFHCC_689445

Share:

Similar Properties

BEECH ROAD, FAREHAM - BUNGALOW WITH DETACHED ANNEXE

5 Bedroom Semi-Detached Bungalow | £500,000

An excellent and unique opportunity to purchase this extended three bedroom semi-detached bungalow with the benefit of a...

GROVE ROAD, FAREHAM

4 Bedroom Semi-Detached House | £500,000

A substantial semi-detached period home conveniently located within Fareham town centre and within catchment of Harrison...

SOUTH LODGE, CATISFIELD

3 Bedroom Detached Bungalow | £499,950

NO FORWARD CHAIN. This most impressive and well-presented two/three bedroom (three bedroom design) detached bungalow is...

HILL ROAD, PORTCHESTER

4 Bedroom Detached House | £525,000

NO FORWARD CHAIN. A four bedroom detached house located in the popular Portchester hill slopes with far reaching views o...

HEATH LAWNS, CATISFIELD

4 Bedroom Detached House | £529,950

This extended and versatile three/four bedroom detached house is positioned within a highly regarded cul de sac in Catis...

GOLDCREST CLOSE, FAREHAM

4 Bedroom Detached House | £550,000

This four bedroom modern detached house is positioned in a cul de sac within a highly regarded development close to Cams...

Pearsons Estate Agents (Fareham)

21 West Street, Fareham, Hampshire, PO16 0BG

01329 288241

How much is your home worth?

Use our short form to request a valuation of your property.

Request a Valuation

Mortgage Calculator

Amount Borrowed: £
Total Amount Repayable: £
Total Monthly Payment: £
©2026 The Guild of Property Professionals. All rights reserved. Terms and Conditions | Privacy Policy | Cookie Policy | Complaints Policy | Members Login
The Guild of Property Professionals Trading Address: 121 Park Lane, London W1K 7AG. GPEA Limited. Registered in England & Wales.  Company No: 02819824.  Registered Office Address: 2 St. Stephen's Court, St. Stephen's Road, Bournemouth, Dorset, England, BH2 6LA.  VAT Registration No: 576 8795 61
Book a Property Valuation Update Cookies Preferences