GORDON ROAD, FAREHAM

£290,000

3 Bedroom Terraced House for sale in Fareham

2 3 1
  • TERRACED HOUSE
  • LOCATED IN THE HEART OF THE TOWN CENTRE
  • THREE BEDROOMS
  • SITTING ROOM
  • OPEN PLAN KITCHEN/DINER
  • BATHROOM
  • FORECOURT GARDEN TO THE FRONT
  • SIZEABLE REAR GARDEN
  • GARAGE/WORKSHOP
  • EPC RATING TBC

DRAFT DETAILS AWAITING VENDOR APPROVAL

DESCRIPTION
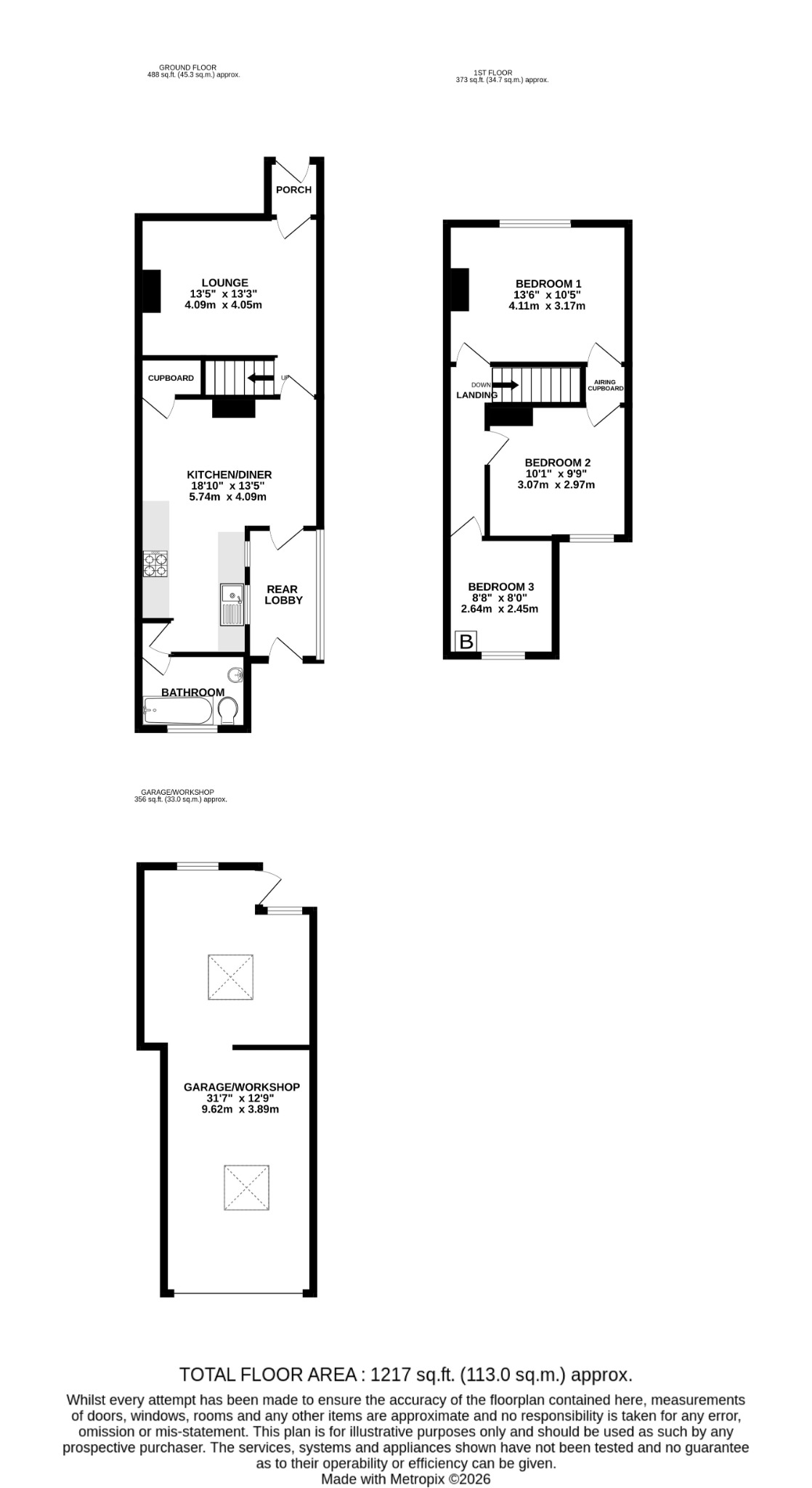
An excellent opportunity to purchase this three bedroom house located in the heart of Fareham town centre with the added advantage of a GARAGE/WORKSHOP located at the bottom of the garden. The internal accommodation comprises; porch, sitting room, open plan kitchen/diner, bathroom and a rear lobby. To the first floor, there are three bedrooms. Outside, there is a forecourt to the front and a sizeable rear garden with a GARAGE/WORKSHOP with access from Colenso Road. As sole agents we would highly recommend a viewing.

PORCH
Double glazed UPVC front door. Double glazed window to the front and side aspect.

LOUNGE
Double glazed window to the front aspect. Smooth ceiling. Radiator. Wooden flooring. Staircase rising to the first floor.

KITCHEN/DINER

DINING AREA
Double glazed door to the rear lobby. Smooth ceiling. Understairs storage cupboard. Radiator. Wall and base units with contrasting worktops. Tile effect vinyl flooring. Opening to:

KITCHEN
Two double glazed windows to the side aspect. Smooth ceiling. Low level units with contrasting worktops. Inset stainless steel sink and drainer. Space for cooker, fridge/freezer, washing machine and an additional low level fridge or freezer. Continuation of the flooring from the dining area.

BATHROOM
Double glazed obscure window to the side aspect. Smooth ceiling. Bath with hand shower. Low level WC. Wash hand basin. Radiator. Part tiled walls. Tiled flooring.

REAR LOBBY
Double glazed door leading to the rear garden. Radiator.

FIRST FLOOR

LANDING
Loft access. Doors to:

BEDROOM ONE
Double glazed window to the front aspect. Smooth ceiling. Airing cupboard. Radiator.

BEDROOM TWO
Double glazed window to the rear aspect. Smooth ceiling. Radiator. Airing cupboard. Adjoining door to the airing cupboard from bedroom one.

BEDROOM THREE
Double glazed window to the rear aspect. Smooth ceiling. Wall mounted 'Worcester' boiler fitted January 2024. Radiator.

OUTSIDE
To the front of the property, there is a forecourt. The sizeable rear garden has an initial patio area with a timber shed with the majority of the rear garden being laid to lawn with a path leading to the garage and workshop. Mature shrubs and trees.

GARAGE: Electric roller door. Power and light. Door to:

WORKSHOP: Door leading to the rear garden. Two windows to the rear aspect. Power and light.

AGENTS NOTE
Please be aware there is a pedestrian right of way across the rear of the property, which is currently not in working use.

COUNCIL TAX
Fareham Borough Council. Tax Band B. Payable 2026/2027. £1,765.98.

Important Information

  • This is a Freehold property.
  • This Council Tax band for this property is: B

Property Ref: PFHCC_636703

Share:

Similar Properties

PAXTON ROAD, FAREHAM

3 Bedroom End of Terrace House | £290,000

An older style three/four bedroom end terrace town house conveniently located close to Fareham town centre and within wa...

HASTINGS AVENUE, GOSPORT

4 Bedroom Terraced House | £290,000

This extended four bedroom double bay fronted older style house is located in a popular and convenient area of Elson, Go...

DERLYN ROAD, FAREHAM

2 Bedroom Terraced House | £290,000

This superbly presented two bedroom house is ideally located within the heart of Fareham town centre and within easy rea...

WOODBOURNE CLOSE, CATISFIELD

3 Bedroom Semi-Detached House | £295,000

An excellent opportunity to purchase this three bedroom semi-detached house located in a popular cul de sac within the e...

PIPISTRELLE WALK, KNOWLE VILLAGE

3 Bedroom Terraced House | £299,950

A modern three bedroom mid-terrace house located within the popular Knowle Village which is offered with NO FORWARD CHAI...

WOODBOURNE CLOSE, CATISFIELD

3 Bedroom Semi-Detached House | £299,950

NO FORWARD CHAIN. A three bedroom semi-detached house located in an off-road position within a popular cul de sac to the...

Pearsons Estate Agents (Fareham)

21 West Street, Fareham, Hampshire, PO16 0BG

01329 288241

How much is your home worth?

Use our short form to request a valuation of your property.

Request a Valuation

Mortgage Calculator

Amount Borrowed: £
Total Amount Repayable: £
Total Monthly Payment: £
©2026 The Guild of Property Professionals. All rights reserved. Terms and Conditions | Privacy Policy | Cookie Policy | Complaints Policy | Members Login
The Guild of Property Professionals Trading Address: 121 Park Lane, London W1K 7AG. GPEA Limited. Registered in England & Wales.  Company No: 02819824.  Registered Office Address: 2 St. Stephen's Court, St. Stephen's Road, Bournemouth, Dorset, England, BH2 6LA.  VAT Registration No: 576 8795 61
Book a Property Valuation Update Cookies Preferences