KILN ROAD, FAREHAM

£350,000
SSTC
This property listing is now SSTC

3 Bedroom Semi-Detached Bungalow for sale in Fareham

2 3 2
  • SEMI-DETACHED CHALET STYLE PROPERTY
  • REQUIRES GENERAL UPDATING
  • THREE BEDROOMS
  • NO FORWARD CHAIN
  • LOUNGE & DINING ROOM
  • KITCHEN
  • DOWNSTAIRS BATHROOM
  • DRIVEWAY PARKING & GARAGE
  • LARGE GARDEN
  • EPC RATING TBC

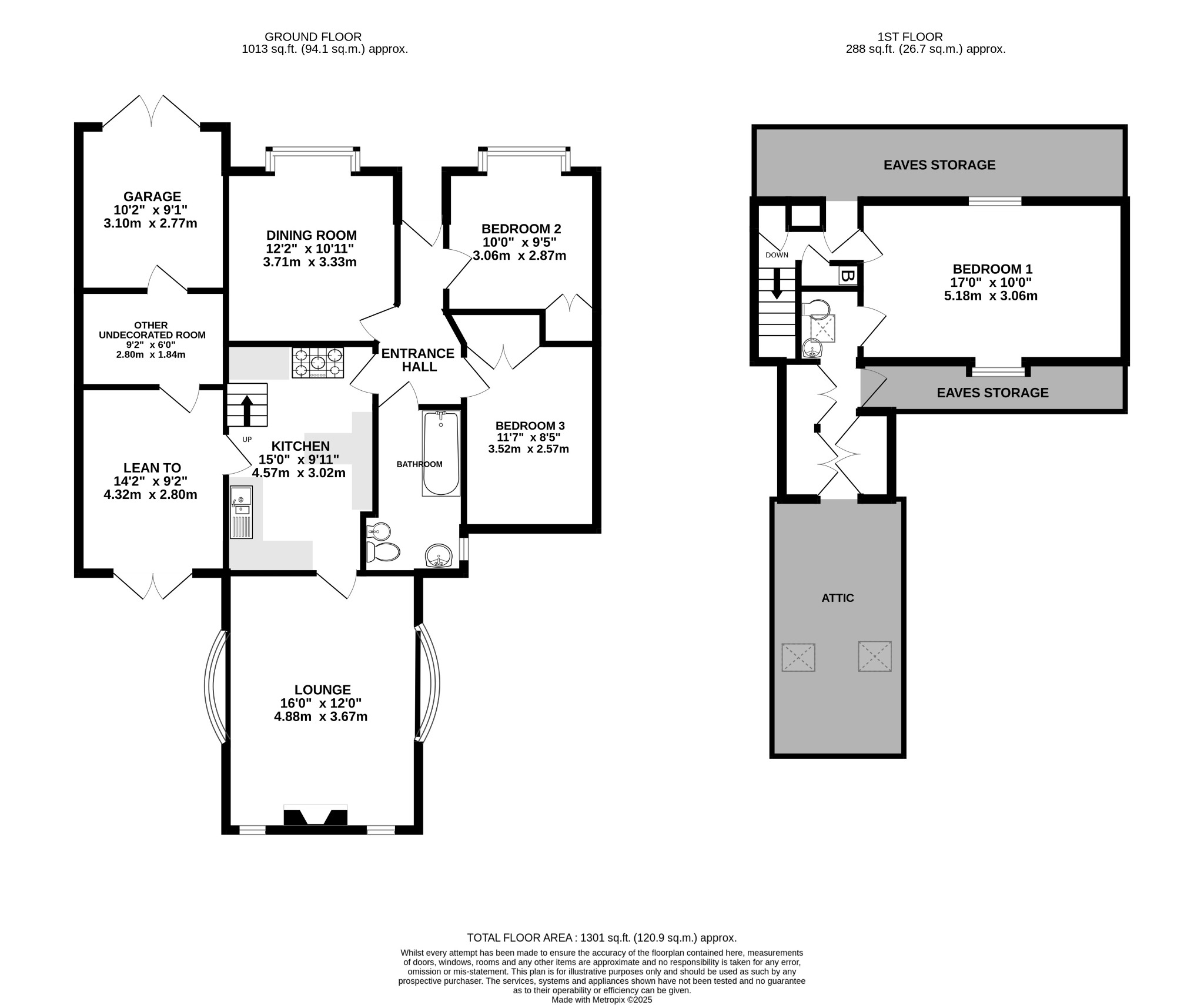
DESCRIPTION
NO FORWARD CHAIN. A three bedroom semi-detached chalet style property offering flexible accommodation and requires general updating throughout. The property, which sits on a large garden plot does have the potential to greatly improve and extend further (subject to the usual planning permissions and building reg approval). The internal accommodation briefly comprises of an entrance hall which leads to two ground floor bedrooms, a dining room and a bathroom, whilst the lounge is located off the kitchen, which has a fixed ladder style staircase leading from the kitchen to the first floor, where the principal bedroom, en-suite WC and further attic room can be found. Outside, there is off-road parking to the driveway, GARAGE, which has been shortened in length but could be opened to increase its size to a normal garage. To the rear of the property, there is a large garden which requires cultivation. As sole agents we would highly recommend an early inspection.

MULTI-PANED DOOR TO:

ENTRANCE HALL
Radiator. Doors to:

BEDROOM TWO
Double glazed bay window to front elevation. Built-in wardrobes and chest of drawers. Radiator.

BEDROOM THREE
Double glazed window to rear elevation. Built-in wardrobe and chest of drawers.

DINING ROOM
Double glazed bay window to front elevation. Radiator.

BATHROOM
Double glazed window to side elevation. Panel enclosed bath with shower unit and shower screen. Vanity unit with wash hand and storage beneath. Low level WC. Bidet. Tiled walls and flooring. Radiator.

KITCHEN
Double glazed window to side elevation. Stable door to lean-to. Range of wall and base level units with stainless steel one and a half bowl sink unit. Space for range style cooker. Steep staircase rising to first floor. Door to lounge.

LOUNGE
Two double glazed windows to rear elevation and two double glazed bow windows to side elevations. Feature brick fireplace. Two radiators.

LEAN-TO
French doors leading to garden. Door to garage, which has been subdivided with a stud wall to provide a shorter garage and a store room.

FIRST FLOOR

LANDING
Storage cupboard. Access to eaves storage space. Cupboard housing gas boiler. Door to:

BEDROOM ONE
Window to front elevation and window to rear elevation with bench seat. Radiator. Door to:

EN-SUITE WC
Low level WC. Wash hand basin. Access through to:

ATTIC ROOM
'Velux' windows to side elevations.

OUTSIDE
Off-road parking is available for several vehicles to the driveway to the front of the property.

Swing doors provide access to the GARAGE, which has been divided to provide a shortened garage and a store.

The substantial rear garden does require general cultivation throughout, but does contain a number of mature and specimen plants. There are numerous outhouses including a timber summerhouse.

COUNCIL TAX
Fareham Borough Council. Tax Band C. Payable 2025/2026. £1,924.04.

Important Information

  • This is a Freehold property.
  • This Council Tax band for this property is: C

Property Ref: PFHCC_680027

Share:

Similar Properties

OAKDOWN ROAD, STUBBINGTON

2 Bedroom Semi-Detached Bungalow | £350,000

NO FORWARD CHAIN. An extended two bedroom semi-detached bungalow located in a cul-de-sac position which is within a leve...

GLENBROOK WALK, FAREHAM

4 Bedroom Semi-Detached House | £350,000

NO FORWARD CHAIN. An extended four bedroom semi-detached house located in a popular cul-de-sac position to the west of F...

POUND GATE DRIVE, TITCHFIELD COMMON

3 Bedroom Detached Bungalow | £350,000

NO FORWARD CHAIN. A three bedroom detached bungalow located within an established residential area within the popular ar...

WICKHAM ROAD, FAREHAM

4 Bedroom House | £357,500

This superbly presented four bedroom house is ideally located in the Harrison School catchment area which is curricular...

DRIFT ROAD, WALLINGTON

3 Bedroom Semi-Detached House | £357,700

A modern three bedroom semi-detached house located within the popular village of Wallington and within easy access of Fa...

WOODVALE, FAREHAM

3 Bedroom Detached Bungalow | £359,950

NO FORWARD CHAIN. An excellent opportunity to purchase this three bedroom detached bungalow located in a highly regarded...

Pearsons Estate Agents (Fareham)

21 West Street, Fareham, Hampshire, PO16 0BG

01329 288241

How much is your home worth?

Use our short form to request a valuation of your property.

Request a Valuation

Mortgage Calculator

Amount Borrowed: £
Total Amount Repayable: £
Total Monthly Payment: £
©2026 The Guild of Property Professionals. All rights reserved. Terms and Conditions | Privacy Policy | Cookie Policy | Complaints Policy | Members Login
The Guild of Property Professionals Trading Address: 121 Park Lane, London W1K 7AG. GPEA Limited. Registered in England & Wales.  Company No: 02819824.  Registered Office Address: 2 St. Stephen's Court, St. Stephen's Road, Bournemouth, Dorset, England, BH2 6LA.  VAT Registration No: 576 8795 61
Book a Property Valuation Update Cookies Preferences