PENTLAND RISE, PORTCHESTER

£375,000
SSTC
This property listing is now SSTC

4 Bedroom Semi-Detached House for sale in Fareham

1 4 1
  • SEMI-DETACHED HOUSE
  • STUNNING VIEWS TOWARDS PORTSMOUTH HARBOUR
  • THREE/FOUR BEDROOMS
  • LOUNGE
  • KITCHEN/BREAKFAST ROOM
  • STUDY/BEDROOM FOUR
  • WET ROOM
  • DRIVEWAY PARKING AND GARAGE
  • SOUTHERLY ASPECT REAR GARDEN
  • EPC RATING D

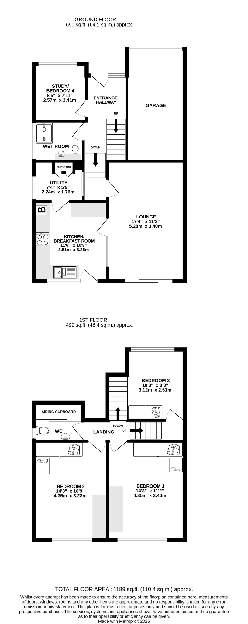
DESCRIPTION
This versatile and well-proportioned three/four bedroom semi-detached house is positioned on the ever-popular Portchester hill slopes with stunning views towards Portsmouth Harbour. The split-level accommodation comprises; entrance hallway, study/bedroom four, wet room, lounge, kitchen/breakfast room and a utility. To the first floor there are three bedrooms and a WC. Outside, there is driveway parking, GARAGE and a southerly aspect enclosed rear garden also benefitting from views towards Portsmouth Harbour. Viewing is highly recommended by the sole agents to appreciate the position on offer.

ENTRANCE HALL
Double glazed front door. Double glazed obscure window to the front aspect. Staircase rising to the first floor. Radiator. Steps leading down to the lounge and kitchen/breakfast room.

STUDY/BEDROOM FOUR
Double glazed window to the front aspect. Radiator.

WET ROOM
Double glazed obscure window to the side aspect. Extractor fan. Walk-in shower area with grip handles. Vanity unit with concealed low level WC and wash hand basin. Heated towel rail. Tiled walls. Anti-slip flooring.

LOUNGE
Double glazed sliding patio doors leading to the rear garden with views towards Portsmouth Harbour. Smooth and coved ceiling. Gas coal effect fireplace with stone surround and hearth. Radiator.

KITCHEN/BREAKFAST ROOM
Double glazed door leading to the rear garden. Double glazed window to the rear aspect with views towards Portsmouth Harbour. Smooth and coved ceiling. Matching wall and base units with contrasting work tops. Tiled splashback. Inset stainless steel sink and half drainer. Four ring gas hob. Fitted 'Stoves' double oven. Tile effect vinyl flooring. 'Worcester' boiler.

UTILITY
Double glazed obscure window to the side aspect. Space for fridge/freezer and washing machine. Storage cupboard.

SPLIT-LEVEL FIRST FLOOR LANDING
Steps rising to bedroom three and doors to:

WC
Double glazed obscure window to the side aspect. Low level WC. Wash hand basin. Part tiled walls. Vinyl flooring. Airing cupboard.

BEDROOM ONE
Double glazed window to the rear aspect with views towards Portsmouth Harbour. Fitted wardrobes. Chests of drawers and bedside tables. Radiator.

BEDROOM TWO
Double glazed window to the rear aspect with views towards Portsmouth Harbour. Fitted wardrobes. Bedside tables and drawers. Radiator.

BEDROOM THREE
Double glazed window to the front aspect. Radiator. Access to loft storage.

OUTSIDE
To the front of the property there is driveway parking, laid to lawn front garden with shrubs and trees. Side gated pedestrian access leading to the rear garden.

GARAGE. Up and over door. Power and light.

The southerly aspect rear garden has an initial raised patio area with the remainder of the garden being laid to lawn with shrubs, borders and trees. Timber garden shed. Outside light.

COUNCIL TAX
Fareham Borough Council. Tax Band D. Payable 2025/2026. £2,164.55.

Important Information

  • This is a Freehold property.
  • This Council Tax band for this property is: D

Property Ref: PFHCC_701416

Share:

Similar Properties

FRIARY MEADOW, TITCHFIELD

2 Bedroom Detached Bungalow | £375,000

A wonderful opportunity to purchase a two bedroom detached bungalow located on arguably one of the best plots within thi...

FRIARY MEADOW, TITCHFIELD

2 Bedroom Retirement Property | £375,000

A wonderful opportunity to purchase a luxury retirement apartment located on a prime position within this recently const...

SOUTHMEAD ROAD, FAREHAM

4 Bedroom Semi-Detached Bungalow | £375,000

This significantly extended semi-detached bungalow has an impressive wraparound side and rear extension creating a wonde...

FUNTLEY HILL, FUNTLEY

2 Bedroom Detached Bungalow | £379,000

NO FORWARD CHAIN and available for immediate occupation. A rare opportunity to purchase this stunning NEW BUILD detached...

ARUNDEL DRIVE, FAREHAM

4 Bedroom Semi-Detached House | £379,950

This extended four bedroom semi-detached house is located in the ever popular Uplands development. The internal accommod...

PENTLAND RISE, PORTCHESTER

4 Bedroom Semi-Detached House | £379,950

NO FORWARD CHAIN. A wonderful opportunity to purchase a three/four bedroom semi-detached house located on the Portcheste...

Pearsons Estate Agents (Fareham)

21 West Street, Fareham, Hampshire, PO16 0BG

01329 288241

How much is your home worth?

Use our short form to request a valuation of your property.

Request a Valuation

Mortgage Calculator

Amount Borrowed: £
Total Amount Repayable: £
Total Monthly Payment: £
©2026 The Guild of Property Professionals. All rights reserved. Terms and Conditions | Privacy Policy | Cookie Policy | Complaints Policy | Members Login
The Guild of Property Professionals Trading Address: 121 Park Lane, London W1K 7AG. GPEA Limited. Registered in England & Wales.  Company No: 02819824.  Registered Office Address: 2 St. Stephen's Court, St. Stephen's Road, Bournemouth, Dorset, England, BH2 6LA.  VAT Registration No: 576 8795 61
Book a Property Valuation Update Cookies Preferences