Parsonage Lane, Farnham Common, Buckinghamshire SL2

Guide Price
£895,000
SSTC
This property listing is now SSTC

3 Bedroom House for sale in Farnham Common

3 3 2
  • Detached Three Bedroom Family Home
  • Premier Residential Road
  • Three Reception Rooms
  • Master Bedroom with Ensuite
  • Large Kitchen with Utility
  • Scope to Extend and Convert the Loft Space STPP
  • Garage, Summer House and Garden Shed
  • South Facing Garden

* SOLD BY FOREMAN KING * Located in one of Farnham Common’s most sought after roads and within easy walking distance of the Village centre, an attractive detached family house with mature south facing garden.

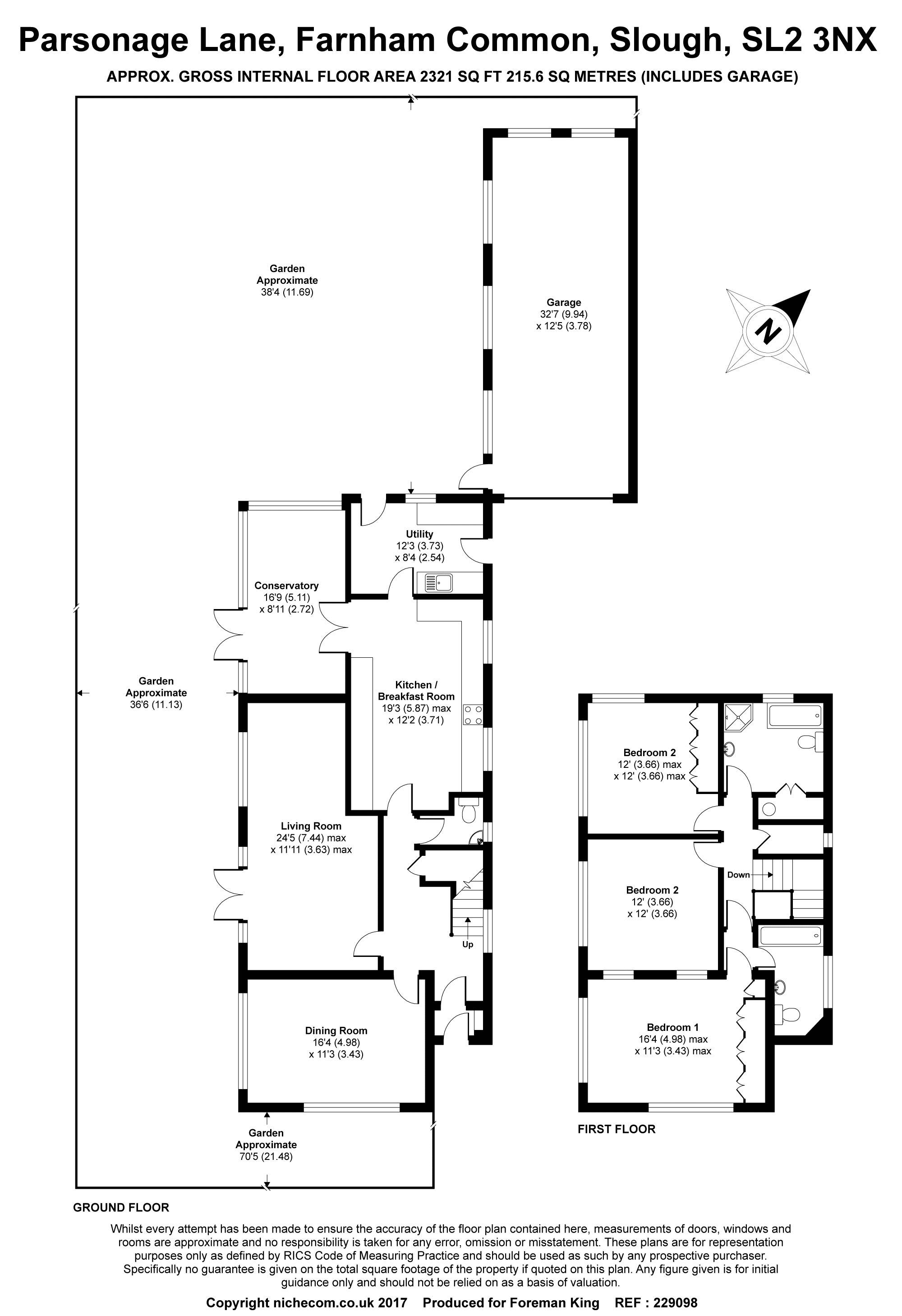
The house offers considerable potential (subject to the usual consents) and benefits from well - planned accommodation comprising good reception space and a large garage.


The house is approached via a driveway with parking for several cars giving access to a Garage. An Entrance Porch leads to a spacious Entrance Hall with under stairs cupboard and staircase to first floor. The ground floor accommodation comprises of a Downstairs Cloakroom, large Drawing Room with large windows overlooking the garden and double doors also giving access to the garden and a large double aspect Dining Room. The Kitchen is fitted with a comprehensive range of wall and base units and a range of built in appliances. Leading from the Kitchen is Utility Room, fitted with a range of units, one and a half bowl sink and space and plumbing for appliances. Also leading from the Kitchen is a Conservatory with an attractive aspect over the Garden.

On the first floor Landing there is a large storage cupboard and easy access to the Loft/Roof Space which is currently completely open with two velux windows – ideal for a large loft converstion subject to the necessary consents. There is a double aspect Master Bedroom suite with built in wardrobe cupboards, air conditioning unit and an En Suite Bathroom. There are two further double bedrooms, both with built in wardrobe cupboards and aspect over the garden. There is a Family Bathroom comprising a panelled bath, large separate corner shower cubicle, fully tiled walls, airing cupboard and a wash hand basin.

Outside, there is a mature and Garden with a southerly aspect which is mainly laid to lawn with a patio area, established hedging and a selection of mature trees and shrubs. There is a timber Summerhouse and a brick built garden shed. There is also a large Garage / Workshop with power and light and an up and over door.      

Farnham Common is ideally situated for numerous leisure facilities including 500 acres of the historic woodland of Burnham Beeches, ideal for its attractive country walks, cycling paths and a relaxing café. Stoke Park, the popular Golf and Country Club is close by with its famous golf course, Spa and Gym.

Farnham Common is perfectly situated for transportation links with easy access to the M40 and M4 motorways, with close proximity to Heathrow Airport. The mainline stations at Gerrards Cross and Beaconsfield are close by with the regular fast (approx. 18 minutes) mainline service to London Marylebone. In 2019/20 Crossrail at nearby Burnham and Taplow will provide commuters with easy access across central London to Canary Wharf. The area is well regarded for its excellent grammar and primary schooling along with a good number of state and independent schools including Caldicott (boys preparatory) in Farnham Common and Dair House (mixed preparatory) in Farnham Royal. For a full list of catchment schools visit buckscc.gov.uk.

Important Information

  • This is a Freehold property.

Property Ref: EAXML15419_8296052

Share:

Similar Properties

Beaconsfield Road, Farnham Common, Buckinghamshire SL2

5 Bedroom Detached House | Asking Price £895,000

A substantial detached family home packed full of character features, situated within walking distance of Farnham Common...

Fairfield Lane, Farnham Royal, Buckinghamshire SL2

5 Bedroom House | Asking Price £895,000

* SOLD BY FOREMAN KING * A magnificent Four / Five Bedroom Detached family home set in sought after road in Farnham Roya...

Scott Close, Farnham Common

5 Bedroom House | Guide Price £895,000

* SOLD BY FOREMAN KING * A spacious and well proportioned five bedroom detached family house located in a popular cul...

Bracken Close, Farnham Common, Buckinghamshire SL2

4 Bedroom Detached House | Asking Price £899,950

* SOLD BY FOREMAN KING * A very well presented four bedroom detached home in a sought after cul de sac off Templewood La...

Rosewood Way, Farnham Common, Buckinghamshire

3 Bedroom House | Asking Price £925,000

* SOLD BY FOREMAN KING * A spacious, well presented and recently redecorated family house located in a popular and desi...

Hedgerley Hill, Hedgerley, Farnham Common, Buckinghamshire

4 Bedroom House | Guide Price £929,500

* SOLD BY FOREMAN KING * A beautifully presented four bedroom home set in a popular position on Hedgerley Hill. The prop...

Foreman King (Farnham Common)

The Broadway, Farnham Common, Buckinghamshire, SL2 3QL

01753 643222

How much is your home worth?

Use our short form to request a valuation of your property.

Request a Valuation

Mortgage Calculator

Amount Borrowed: £
Total Amount Repayable: £
Total Monthly Payment: £
©2026 The Guild of Property Professionals. All rights reserved. Terms and Conditions | Privacy Policy | Cookie Policy | Complaints Policy | Members Login
The Guild of Property Professionals Trading Address: 121 Park Lane, London W1K 7AG. GPEA Limited. Registered in England & Wales.  Company No: 02819824.  Registered Office Address: 2 St. Stephen's Court, St. Stephen's Road, Bournemouth, Dorset, England, BH2 6LA.  VAT Registration No: 576 8795 61
Book a Property Valuation Update Cookies Preferences