Plot 1 Bryngwyn, Bryn Y Mor Lane, Fishguard

Guide Price
£445,000

3 Bedroom Detached Bungalow for sale in Fishguard

1 3 2
  • Under Construction, an attractive Detached 2 storey Dormer Bungalow Residence.
  • Spacious Reception, Kitchen, Utility, Bathroom, Study, En Suite Shower Room and 3 Bedrooms.
  • Central Heating via Air Source Heat Pump. uPVC Double Glazing. Cavity Wall, Floor and Wall Insulation.
  • Tarmacadamed/Block Pavior hardstanding to fore together with a small Lawned Garden.
  • Paved/Concrete Path surround to 3 sides of the bunglaow together with a sizeable Lawned Garden.
  • NHBC Building Certificate.

* An exceptional Detached 2 storey (newly built) Dormer Bungalow Residence.
* Spacious Accommodation inc Hall, Sitting/Dining, Kitchen/Breakfast, Utility, Bathroom and 2 Bedrooms on Ground Floor and a Master Bedroom with Dressing Area and En Suite Shower and Bedroom 4/Study on First Floor.
* Central Heating via Air Source Heat Pump. uPVC Double Glazing. Cavity Wall, Floor and Loft Insulation.
* Block Pavior hardstanding allows for Off Road Vehicle Parking, small Lawned Garden, Flower and Shrub Borders.
* Porcelain Paved Path Surround to three sides leading to a good sized elevated Lawned Garden with Paved Patio.
* NHBC Building Certificate. All Mains Services.
* Ideal for Family or Retirement purposes. Inspection essential. Realistically Priced.

Situation - Fishguard is a popular Market Town which stands on the North Pembrokeshire Coastline some 15 miles or so North of the County and Market Town of Haverfordwest. Fishguard has the benefit of a good Shopping Centre together with a wide range of amenities and facilities which briefly include Secondary and Primary Schools, Churches, Chapels, a Building Society, Hotels, Restaurants, Public Houses, Cafes, Takeaways, Art Galleries, a Cinema/Theatre, Supermarket and a Leisure Centre.

The twin town of Goodwick is a mile of so distant and Fishguard Harbour being close by provides a Ferry Terminal for Southern Ireland. There is also a Railway Station.

The Pembrokeshire Coastline at The Parrog is within three quarters of a mile or so of the Property and also close by are the other wall known sandy beaches and coves at Pwllgwaelod, Cwm yr Eglwys, Newport Sands, Pwllcrochan, Abermawr, Aberbach, Abercastle, Aberfelin and Porthgain.

The County and Market Town of Haverfordwest is within easy car driving distance and has the benefit of an excellent Shopping Centre together with an extensive range of amenities and facilities including Secondary and Primary Schools, Churches, Chapels, Banks, Building Societies, Hotels, Restaurants, Public Houses, Cafes, Takeaways, Art Galleries, a Library, Supermarkets, Petrol Filling Stations, a Leisure Centre, The County Council Offices and The County Hospital at Withybush.

There are good road links along the Main A40 to Haverfordwest and Carmarthen and the M4 to Cardiff and London as well as good rail links from Fishguard and Haverfordwest to Carmarthen, Cardiff, London Paddington and the rest of the UK.

Plot 1 Bryngwyn stands in a private location and is within a 100 yards or so of the Council Road at Windy Hall. The Property is situated within half a mile or so of Fishguard Town Shopping Centre and Market Square.

Directions - From the Offices at J. J. Morris at 21 West Street, turn left and proceed in the direction of Goodwick for 700 yards or so and upon reaching Windy Hall, turn left into Bryn-y-Mor Lane towards Gwaun Vets. Continue on this road for a 100 yards or so and take the turning on the left into Bryngwyn i.e. the last but one turning. A "For Sale" Board is erected at the entrance.

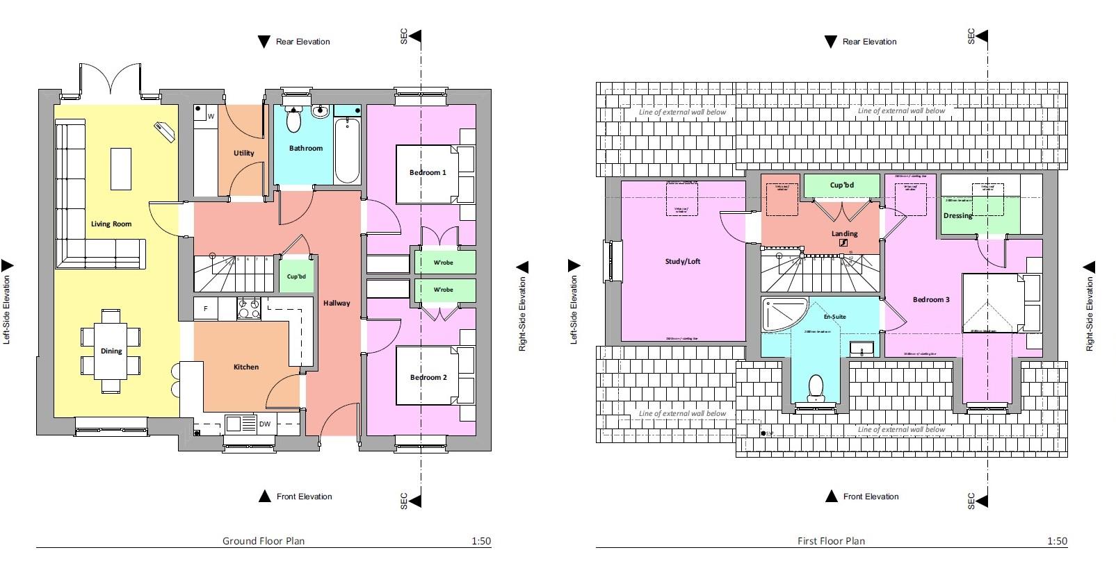
Description - Plot 1 comprises of a Detached 2 storey Dormer Bungalow Residence of cavity concrete block construction with rendered and whitened elevations and part composite clad elevations under a pitched composition slate roof. Accommodation is as follows:-

Composite Double Glazed Entrance Door To:- -

Hall - With an LVT Oak effect floor with underfloor heating, central heating thermostat control, 2 ceiling lights, 2 power points, built in understairs Cloaks/Storage cupboard with Central Heating Manifold and Solar Panel Invertor, bespoke Oak and Glass Staircase to First Floor, mains smoke detector and doors to Kitchen/Breakfast, Bedrooms, Bathroom, Utility Room and:-

Sitting/Dining Room - 8.03m x 3.35m (26'4" x 11'0") - With an LVT Oak effect floor with underfloor heating, central heating thermostat control, 14 power points, uPVC double glazed window, uPVC double glazed French Doors to rear Garden and Patio, TV point, Ethernet cable/CAT point, 8 downlighters and opening to:-

Kitchen/Breakfast Room - 3.48m x 3.15m (11'5" x 10'4") - With LVT Oak effect floor with underfloor heating, uPVC double glazed window to fore, 4 downlighters, range of fitted floor and wall cupboards, inset one and a half bowl composite sink unit with mixer tap, Quartz worktop, built in Bosch eye level electric Double Oven, Bosch 5 Ring Induction Hob, Bosch Cooker Hood (externally vented), built in Bosch Dishwasher, built in Refrigerator, 8 power points, Quartz splashbacks and door to Hall.

Utility Room - 2.51m x 1.83m (8'3" x 6'0") - (approx). With LVT Oak effect floor with underfloor heating, quartz worktop with a composite sink with mixer tap, ceiling light, 2 concealed power points, uPVC double glazed door to rear Garden, plumbing for automatic washing machine, space for a tumble drier and a fitted corner cupboard housing a pressurised hot water cylinder and immersion heater.

Bedroom 1 (Rear) - 4.24m x 2.74m (13'11" x 9'0") - With underfloor heating, ceiling light, 10 power points, TV point, Ethernet cable/CAT point, uPVC double glazed window overlooking rear Garden, central heating thermostat control, ceiling light and 10 power points.

Bedroom 2 (Front) - 3.94m x 2.74m (12'11" x 9'0") - With underfloor heating, central heating thermostat control, 10 power points, TV point, Ethernet cable/CAT point, uPVC double glazed window to fore and a ceiling light.

Bathroom - 2.18m x 2.13m (7'2" x 7'0") - With LVT Oak effect flooring with underfloor heating, uPVC double glazed window, white suite of panelled Bath, Wash Hand Basin in a vanity surround and WC, 2 downlighters, illuminated wall mirror with shaver point, extractor fan, 2 downlighters, Thermostatic Shower over Bath, glazed shower screen, Aquaboard walls and an electrically heated designer vertical towel rail/radiator.

First Floor -

Landing - 3.05m x 1.63m (10'0" x 5'4") - With 2 power points, Velux window, built in Cupboard/Wardrobe, Mains Smoke Detector, central heating thermostat control, double panelled radiator and doors to Bedroom 4/Study and:-

Bedroom 3 - 4.47m x 3.96m plus dormer 1.14m x 0.99m (14'8" x - ("L" shaped plus dormer 3'9" x 3'3" 1.14m x 0.99m). With Velux window, 2 double panelled radiators, TV point, Ethernet cable/CAT point, 10 power points, uPVC double glazed window, 5 downlighters and doors to En Suite Shower Room and:-

Dressing Room - 2.54m x 1.35m (8'4" x 4'5") - With Velux window, 2 downlighters, double panelled radiator and a low level door to undereaves storage space.

En Suite Shower Room - 3.00m x 2.57m (9'10" x 8'5") - ("T" shaped maximum). With white suite of WC, Wash Hand Basin in a vanity surround and a Glazed and Aquaboard clad Quadrant Shower with a Thermostatic Shower, 3 downlighters, extractor fan, LVT Oak effect floor, uPVC double glazed window and a electrically heated designer vertical radiator/towel rail.

Bedroom 4/Study - 4.01m x 3.35m (13'2" x 11'") - With uPVC double glazed window, Velux window, double panelled radiator, TV point, Ethernet cable/CAT point, 4 downlighters and 8 power points.

Externally - Directly to the fore of the Property is a Block Pavior hardstanding which allows for parking for 2 Vehicles and beyond is a small Lawned Garden with Flower and Shrub Borders. There is a Porcelain Path surround to 3 sides of the Property and on the other side is an Ornamental Stone Path. Directly to the rear of the Property and accessed over a short flight of steps is a good sized raised private Lawned Garden with a Porcelain Paved Patio and a Concrete Base for a Garden Shed.

2 Outside Electric Lights and an Outside Water Tap.

Services - Mains Water (metered supply), Electricity and Drainage are connected. The Ground Floor has Underfloor Heating via an Air Source Heat Pump and Radiators on the First Floor. uPVC Double Glazed Windows and Rear Entrance Door. Composite Double Glazed Front Entrance Door. Cavity Wall, Floor and Loft Insulation. Photovoltaic Panels on rear elevation roof. Sprinkler system.

Tenure - Freehold with Vacant Possession upon Completion.

Certificate - Plot 1 Bryngwyn will have the benefit of a 10 Year NHBC Building Certificate.

Planning Reference Number - 23/0518/PA

Remarks - Plot 1 Bryngwyn is a spacious Detached 2 storey newly built Dormer Bungalow Residence which is nearing completion. The Property has been built to an extremely high standard of workmanship by Ian Fletcher of Fletcher & Son Ltd., (Award Winning Builders) who recently developed the site at Windy Hall (within a 150 yards or so of Bryngwyn). The Property has the benefit of comfortable, well appointed accommodation benefiting a Hall, Sitting/Dining Room, Kitchen/Breakfast Room, Utility Room, Bathroom and 2 Bedrooms on the Ground Floor and a Landing, Master Bedroom with Dressing Room and En Suite Shower Room and a Study/Work Room/Bedroom 4 on the First Floor. In addition, it has a Block Pavior hardstanding at the fore allowing for Off Road Parking for 2 Vehicles together with a small Lawned Garden. There is a Porcelain/Paved Path surround to 3 sides of the Property and to the rear is a sizeable, elevated Lawned Garden. It will be ideally suited for Family or Retirement purposes and is offered "For Sale" with a realistic Price Guide. Early inspection is strongly advised.

Property Ref: 258964_34097417

Share:

Similar Properties

Wern Road, Goodwick

Land | Guide Price £445,000

A valuable Commercial Site which extends to 1.15 Acres or thereabouts with a frontage of 210 feet onto Wern Road and an...

LLysfair, Upper St. Mary Street, Newport

4 Bedroom Terraced House | Guide Price £445,000

* An attractive character stone faced Terraced 2 storey Dwelling House with Loft Room.* Deceptively spacious 2 Reception...

Craigluscar, 7 Gerddi Windsor, Newport

3 Bedroom Semi-Detached House | Guide Price £429,500

* An attractive Semi Detached double fronted 2 storey modern Dwelling House.* Comfortable 2/3 Reception, Kitchen/Diner,...

Llwyncelyn, Trefwrgi Road, Goodwick

5 Bedroom Detached Bungalow | Guide Price £449,500

An attractive and deceptively spacious Detached 'L' shaped Dormer Bungalow residence which stands in a quiet location on...

The Old Farmhouse, Panteg, Manorowen

4 Bedroom Cottage | £449,950

* An attractive Detached 2 storey character stone built Cottage Residence.* Spacious 2/3 Reception, Kitchen, Utility, Co...

Llys Araul, 15 St. Davids Road, Letterston

4 Bedroom Detached House | Guide Price £449,950

*An exceptionally well built and deceptively spacious New Detached 2 storey Dormer Bungalow residence. *Well appointed,...

JJ Morris (Fishguard)

21 West Street, Fishguard, SA65 9AL

01348 873836

How much is your home worth?

Use our short form to request a valuation of your property.

Request a Valuation

Mortgage Calculator

Amount Borrowed: £
Total Amount Repayable: £
Total Monthly Payment: £
©2026 The Guild of Property Professionals. All rights reserved. Terms and Conditions | Privacy Policy | Cookie Policy | Complaints Policy | Members Login
The Guild of Property Professionals Trading Address: 121 Park Lane, London W1K 7AG. GPEA Limited. Registered in England & Wales.  Company No: 02819824.  Registered Office Address: 2 St. Stephen's Court, St. Stephen's Road, Bournemouth, Dorset, England, BH2 6LA.  VAT Registration No: 576 8795 61
Book a Property Valuation Update Cookies Preferences