Church Street, Frodsham

£348,000

3 Bedroom Duplex for sale in Frodsham

1 3 2
  • Three Bedrooms
  • Duplex Apartment
  • Off Road Parking
  • Highly Regarded Location
  • No Onward Chain Delay
  • Large Outhouse
  • Fully Renovated and Refurbished in 2019
  • Two Bathrooms
  • Move in Ready Interiors
  • EPC Rating to Follow. Council Tax Band B. Leasehold Tenure.

**THREE BEDROOM DUPLEX APARTMENT. NO ONWARD CHAIN. TWO BATHROOMS. OFF-ROAD PARKING. FULLY RENOVATED & REFURBISHED IN 2019. STUNNING INTERIORS. PRIVATE PATIO. SOUGHT-AFTER LOCATION. EARLY VIEWING ADVISED.**


Adams Real Estate are delighted to present this exceptional three-bedroom duplex apartment, situated on the highly sought-after Church Street in Frodsham and accessed via the charming and historic Kydds Wynt. Offering a rare opportunity to acquire a character-filled home with modern comforts, this unique property is available with no onward chain delay and has undergone a complete renovation and refurbishment in 2019.


Accessed via a private gated entrance, the property immediately impresses with its blend of period features and contemporary finishes, including high ceilings, original decorative coving, and beautifully updated interiors throughout. The ground floor accommodation comprises a useful utility room, modern downstairs bathroom, and a stylish open-plan kitchen/dining area, complete with built-in white goods including dishwasher and fridge freezer. An inner hallway leads to a spacious lounge and a versatile third bedroom, ideal for guests or home working.


To the second floor, there are two further well-proportioned bedrooms and a modern family bathroom. In addition, a fully boarded loft room with light and power provides excellent storage options.


The property further benefits from a 32m² outbuilding, which is fully equipped with power and water, offering fantastic potential for a home office, workshop, gym or additional storage.


Externally, there is off-road parking for two vehicles, enhanced by a feature-wall parking area and a recently installed larch wood front door canopy. The front elevation has been improved with recently replaced extra-thick UPVC double glazed windows and a high-quality Endurance composite front door, all benefiting from a 10-year guarantee. Additional features include outdoor PIR security lighting throughout.


Perfectly positioned in the heart of Frodsham, just a short walk from local amenities, independent shops and eateries, this versatile and characterful home must be viewed to be fully appreciated.


Early viewing is strongly recommended—call Adams Real Estate today to arrange your early viewing. Commercial premises below can be purchased wtih the freehold under seperate negotiations.


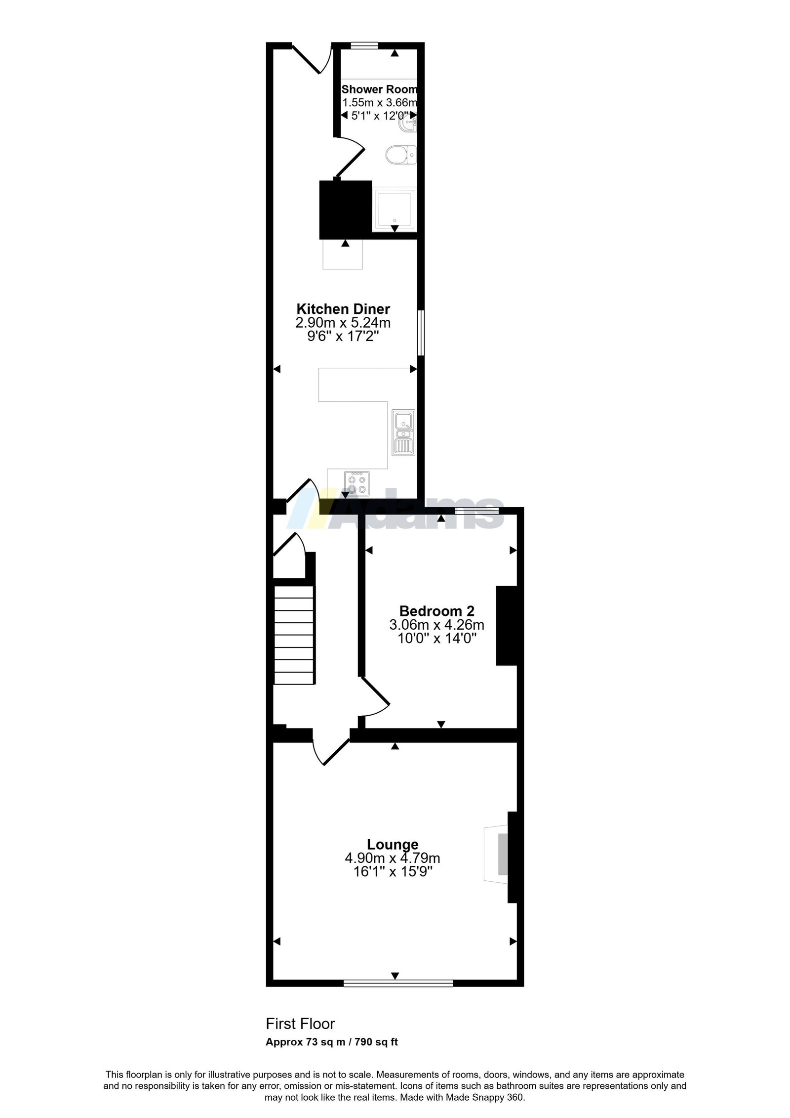
Duplex Apartment - Approx 1601 sq ft


First Floor (Rear Entrance)


Entrance Hall


Utility/ Shower Room - 1.55m x 3.66m (5'1" x 12'0")


Kitchen/Diner - 2.9m x 5.23m (9'6" x 17'2")


Bedroom 2 - 3.05m x 4.27m (10'0" x 14'0")


Lounge - 4.9m x 4.8m (16'1" x 15'9")


Hallway


Second Floor


Landing


Bedroom 3 - 3.07m x 4.27m (10'1" x 14'0")


Bathroom - 2.67m x 1.6m (8'9" x 5'3")


Bedroom 1 - 4.88m x 2.82m (16'0" x 9'3")


Externally


The property offers off-road parking for two vehicles, 35m² outbuilding ideal for storage, a staircase provides access to the Duplex Apartments entrance door.


Outbuilding - 3.28m x 3.15m (10'9" x 10'4")


Outbuilding - 5.92m x 3.4m (19'5" x 11'2")


Viewing


By prior appointment only through our Runcorn Office.

Note


All measurements are approximate. No appliances or central heating systems referred to within these particulars have been tested and therefore their working order cannot be verified. Floorplans are for guide purposes only and all dimensions are approximate.

Important Information

  • This is a Leasehold property.
  • This Council Tax band for this property is: B

Property Ref: 8_1374948

Share:

Similar Properties

Adlington Road, Runcorn

4 Bedroom Detached House | Offers Over £340,000

**FOUR BEDROOMS. DETACHED FAMILY HOME. REFURBISHED IN RECENT YEARS. LANDSCAPED REAR GARDEN. EXTENDED FIRST FLOOR. MOVE I...

Hilltop, Runcorn

4 Bedroom Detached House | £325,000

**FOUR BEDROOMS. DETACHED. SOUGHT AFTER LOCATION. WELL MAINTAINED THROUGHOUT. IDEAL FAMILY HOME. FREEHOLD TENURE.**

Littlebourne, Runcorn

3 Bedroom Bungalow | £325,000

**THREE BEDROOMS. DETACHED BUNGALOW. OFF ROAD PARKING AND GARAGE. SOLAR PANELS. RARE TO MARKET. LANDSCAPED GARDENS. IMMA...

Eanleywood Lane, Runcorn

4 Bedroom Detached House | Offers Over £350,000

**FOUR BEDROOMS. DETACHED FAMILY HOME. SOUTH FACING REAR GARDEN. OFF ROAD PARKING. HIGHLY REGARDED LOCATION. FREEHOLD TE...

Tannery Croft, Preston Brook

4 Bedroom Detached House | £350,000

**FOUR BEDROOMS. DETACHED FAMILY HOME. NO ONWARD CHAIN DELAY. OFF ROAD PARKING AND GARAGE. SOUGHT AFTER LOCATION. STUNNI...

Troutbeck Close, Beechwood

4 Bedroom Detached House | Offers Over £355,000

**FOUR/FIVE BEDROOMS. DETACHED FAMILY HOME. ADDITIONAL LIVING SPACE. LARGE PLOT. EARLY VIEWING ADVISED. EXTENDED TO TWO...

Adams Estate Agents (Runcorn)

54 High Street, Runcorn, Cheshire, WA7 1AW

01928 574401

How much is your home worth?

Use our short form to request a valuation of your property.

Request a Valuation

Mortgage Calculator

Amount Borrowed: £
Total Amount Repayable: £
Total Monthly Payment: £
©2026 The Guild of Property Professionals. All rights reserved. Terms and Conditions | Privacy Policy | Cookie Policy | Complaints Policy | Members Login
The Guild of Property Professionals Trading Address: 121 Park Lane, London W1K 7AG. GPEA Limited. Registered in England & Wales.  Company No: 02819824.  Registered Office Address: 2 St. Stephen's Court, St. Stephen's Road, Bournemouth, Dorset, England, BH2 6LA.  VAT Registration No: 576 8795 61
Book a Property Valuation Update Cookies Preferences