Tor View Avenue, Glastonbury, Somerset

£195,000
SSTC
This property listing is now SSTC

2 Bedroom Apartment for sale in Glastonbury

1 2 1
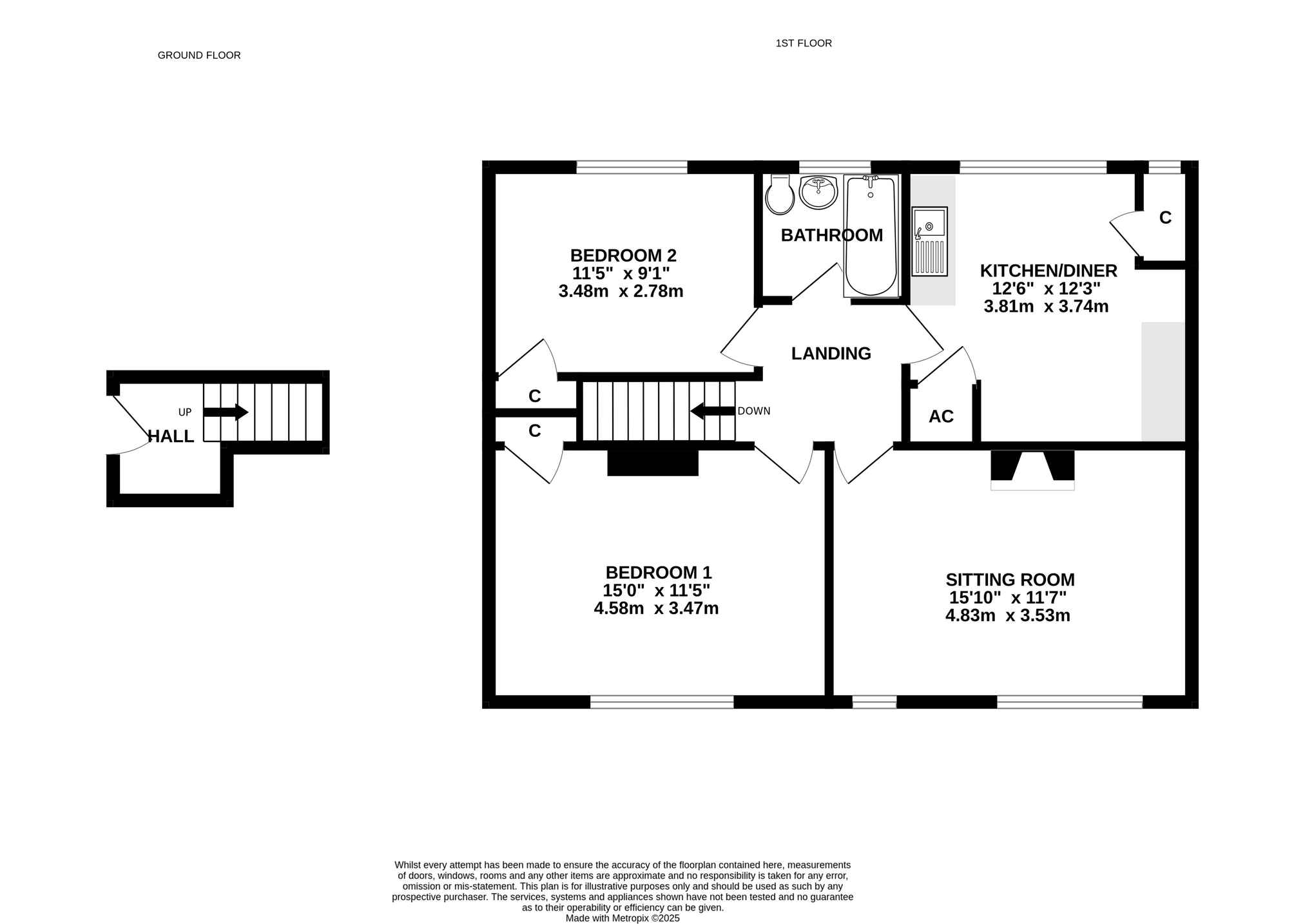
  • Both bedrooms are comfortable doubles. The main bedroom has views across Glastonbury and a useful over-stairs cupboard. Bedroom two overlooks the rear garden and also includes built-in storage.
  • A standout feature is the large rear garden, mainly laid to lawn with a patio area, raised terrace, and timber fencing. There’s also a shed and two block-built stores ideal for tools or bikes.
  • The sitting room also enjoys elevated views across rooftops to the south, making the most of the natural light throughout the day.
  • Well-planned kitchen with ample wall and base units, built-in pantry cupboard, space for gas cooker, fridge, freezer and washing machine, plus window overlooking the rear garden.
  • The first-floor layout provides a good sense of space with a central landing, access to the loft, and useful storage options throughout the property.
  • Two block-built outdoor stores and a timber shed offer excellent additional storage, all conveniently located for the rear garden.
  • Finally, the family bathroom comprises of a panelled bath with shower over, WC and wash hand basin. The property is offered with no onward chain

Set on the southern edge of Glastonbury, this spacious two-bedroom first-floor home enjoys far-reaching southerly views and a generously sized rear garden. Offered with no onward chain, the property presents a superb opportunity for those seeking a well-positioned home with outdoor space and scope to modernise.

Location
Glastonbury is an historic centre famous for its Tor, picturesque Abbey ruins and many legends. The town provides an eclectic mix of shops along with restaurants and pubs, mainstream supermarkets, health centres, modern library, primary schooling and St Dunstans secondary school. The neighbouring town of Street offers a further choice of shopping with Clarks Village, Strode Sixth Form College and Strode Theatre. Millfield Junior School is on the edge of Glastonbury at Edgarley and Millfield Senior School in Street is some two miles distance.

Directions
From Street, passing Morrisons Supermarket on the left, at the mini-roundabout turn right up Fishers Hill. At the top of the hill, as the road bears sharp left, proceed straight ahead into Butleigh Road. Take the first turning on the right into Tor View Avenue where the property will be found towards the far end on the right-hand side.

Material Information
All available property information can be provided upon request from Holland & Odam. For confirmation of mobile phone and broadband coverage, please visit checker.ofcom.org.uk

Identity Verification
To ensure full compliance with current legal requirements, all buyers are required to verify their identity and risk status in line with anti-money laundering (AML) regulations before we can formally proceed with the sale. This process includes a series of checks covering identity verification, politically exposed person (PEP) screening, and AML risk assessment for each individual named as a purchaser. In addition, for best practice, we are required to obtain proof of funds and where necessary, to carry out checks on the source of funds being used for the purchase. These checks are mandatory and must be completed regardless of whether the purchase is mortgage-funded, cash, or part of a related transaction. A disbursement of £49 per individual (or £75 per director for limited company purchases) is payable to cover all aspects of this compliance process. This fee represents the full cost of conducting the required checks and verifications. You will receive a secure payment link and full instructions directly from our compliance partner, Guild365, who carry out these checks on our behalf.

Important Information

  • This is a Leasehold property.
  • The annual cost for the ground rent on this property is £10
  • The annual service charges for this property is £84
  • This Council Tax band for this property is: A

Property Ref: FMV837854

Share:

Similar Properties

Magdalene Street, Glastonbury, Somerset

Land | £180,000

Previously developed brownfield site close to the town centre. The scheme will provide for 1 x 2 bedroomed ground floor...

Landmead, Glastonbury

3 Bedroom Not Specified | £180,000

A mid terrace, three bedroom house, within walking distance of the town centre and local amenities, in need of modernisa...

The Tanneries, Glastonbury

2 Bedroom Flat | £175,000

A well presented purpose built two bedroom first floor apartment with allocated parking space, located close to the hist...

Cavendish Lodge, Glastonbury

2 Bedroom Retirement Property | £199,950

A purpose-built ground floor apartment for the over 60s, ideally located close to the town centre and local amenities. T...

Compton Close, Glastonbury

2 Bedroom Coach House | £202,500

A fantastic opportunity for first time buyers and investors alike. A well presented coachhouse situated towards the edge...

Tor View Avenue, Glastonbury

2 Bedroom Flat | £205,000

Situated on the southern edge of Glastonbury, this spacious ground floor flat enjoys lovely south-easterly views at the...

Holland & Odam (Glastonbury)

Glastonbury, Somerset, BA6 9DX

01458 833123

How much is your home worth?

Use our short form to request a valuation of your property.

Request a Valuation

Mortgage Calculator

Amount Borrowed: £
Total Amount Repayable: £
Total Monthly Payment: £
©2026 The Guild of Property Professionals. All rights reserved. Terms and Conditions | Privacy Policy | Cookie Policy | Complaints Policy | Members Login
The Guild of Property Professionals Trading Address: 121 Park Lane, London W1K 7AG. GPEA Limited. Registered in England & Wales.  Company No: 02819824.  Registered Office Address: 2 St. Stephen's Court, St. Stephen's Road, Bournemouth, Dorset, England, BH2 6LA.  VAT Registration No: 576 8795 61
Book a Property Valuation Update Cookies Preferences