Magdalene Street, Glastonbury, Somerset

£180,000

Land for sale in Glastonbury

5
  • Central location to the town
  • Development project with consent to build five apartments, within walking distance of the High Street
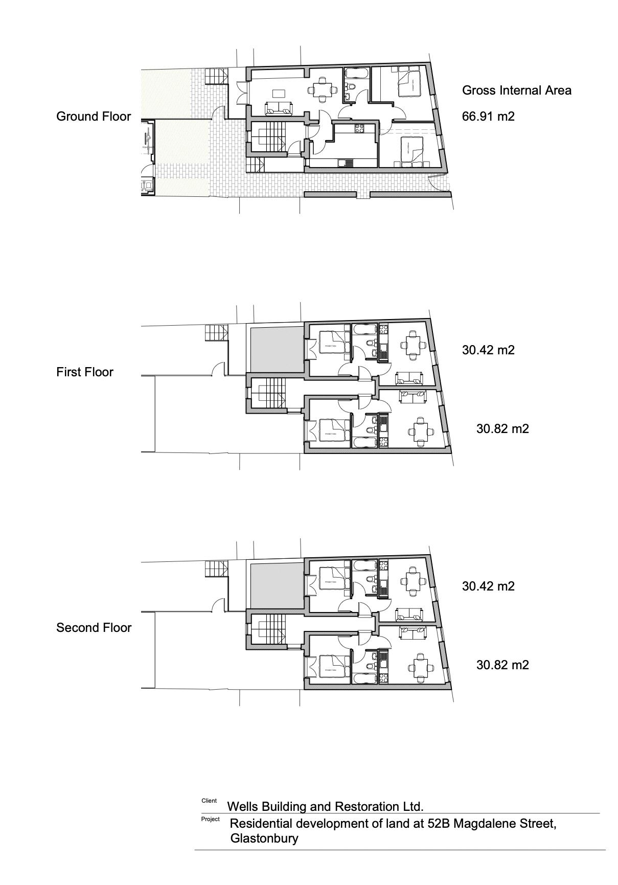
  • Plans provide for 1 x two bed apartment and 4 x one bed apartment
  • Includes provision for a single story building allowing for cycles and bins
  • Sold jointly along with Eveland Land and Property Brokers
  • Please enquire with the office for further information

Previously developed brownfield site close to the town centre. The scheme will provide for 1 x 2 bedroomed ground floor flat and 4 x 1 bedroomed units over the two floors above. The design would be a traditional 3 storey building in brick and render under a slate roof. The building is designed with a side access to a rear yard area which includes a single storey storage building for cycle storage and refuse storage.

Location
The property is conveniently located being within a short walk of the town centre with its good range of shops, banks, supermarkets, restaurants, public houses, health centres etc. The historic town of Glastonbury is famous for its Tor and Abbey Ruins is lies some 6 miles south of the Cathedral City of Wells. Street is 2 miles and offers more comprehensive facilities including Strode College, Strode Theatre and the complex of shopping outlets in Clarks Village. Bristol, Bath, Taunton and Yeovil are all within commuting distance whilst access to the M5 motorway can be gained at Junction 23 some 14 miles distant.

Directions
On entering Glastonbury from Street/Bridgwater (A39) at the Wirral Park roundabout take the third exit into Street Road. Continue, passing Morrisons Supermarket on the left, and at the mini-roundabout, you will see the development site on your left hand side.

Previously developed brownfield site close to the town centre. The scheme, with full planning consent, will provide for 1 x 2 bedroomed ground floor flat and 4 x 1 bedroomed units over the two floors above. The design would be a traditional 3 storey building in brick and render under a slate roof. The building is designed with a side access to a rear yard area which includes a single storey storage building for cycle storage and refuse storage.

Planning reference number 2019/1574/FUL
Viewing Buy appointment through holland & odam Glastonbury 01458 833123
Joint agent Eveland land and property brokers – 07968 772751


Material Information
All available property information can be provided upon request from Holland & Odam. For confirmation of mobile phone and broadband coverage, please visit checker.ofcom.org.uk

Identity Verification
To ensure full compliance with current legal requirements, all buyers are required to verify their identity and risk status in line with anti-money laundering (AML) regulations before we can formally proceed with the sale. This process includes a series of checks covering identity verification, politically exposed person (PEP) screening, and AML risk assessment for each individual named as a purchaser. In addition, for best practice, we are required to obtain proof of funds and where necessary, to carry out checks on the source of funds being used for the purchase. These checks are mandatory and must be completed regardless of whether the purchase is mortgage-funded, cash, or part of a related transaction. A disbursement of £49 per individual (or £75 per director for limited company purchases) is payable to cover all aspects of this compliance process. This fee represents the full cost of conducting the required checks and verifications. You will receive a secure payment link and full instructions directly from our compliance partner, Guild365, who carry out these checks on our behalf.

Description
Previously developed brownfield site close to the town centre. The scheme, with full planning consent, will provide for 1 x 2 bedroomed ground floor flat and 4 x 1 bedroomed units over the two floors above. The design would be a traditional 3 storey building in brick and render under a slate roof. The building is designed with a side access to a rear yard area which includes a single storey storage building for cycle storage and refuse storage.


Planning reference number 2019/1574/FUL

Viewing Buy appointment through holland & odam Glastonbury 01458 833123

Joint agent Eveland land and property brokers – 07968 772751




Location
The property is conveniently located being within a short walk of the town centre with its good range of shops, banks, supermarkets, restaurants, public houses, health centres etc. The historic town of Glastonbury is famous for its Tor and Abbey Ruins is lies some 6 miles south of the Cathedral City of Wells. Street is 2 miles and offers more comprehensive facilities including Strode College, Strode Theatre and the complex of shopping outlets in Clarks Village. Bristol, Bath, Taunton and Yeovil are all within commuting distance whilst access to the M5 motorway can be gained at Junction 23 some 14 miles distant.

Directions
On entering Glastonbury from Street/Bridgwater (A39) at the Wirral Park roundabout take the third exit into Street Road. Continue, passing Morrisons Supermarket on the left, and at the mini-roundabout, you will see the development site on your left hand side.

Important Information

  • This is a Freehold property.

Property Ref: 665667_FMV430381

Share:

Similar Properties

Heritage Court, Magdalene Street, Glastonbury

2 Bedroom Semi-Detached House | £180,000

Situated in a peaceful, select development just off the town centre, this two-bedroom semi-detached retirement home is o...

Turstin Road, Glastonbury

2 Bedroom Apartment | £180,000

This modern first floor flat has been refurbished throughout and is offered with no onward chain. The accommodation incl...

The Tanneries, Glastonbury

2 Bedroom Triplex | £175,000

A well presented purpose built two bedroom first floor apartment with allocated parking space, located close to the hist...

Tor View Avenue, Glastonbury, Somerset

2 Bedroom Apartment | £195,000

Set on the southern edge of Glastonbury, this spacious two-bedroom first-floor home enjoys far-reaching southerly views...

Cavendish Lodge, Glastonbury

2 Bedroom Retirement Property | £210,000

A purpose-built ground floor apartment for the over 60s, ideally located close to the town centre and local amenities. T...

Bere Lane, Glastonbury

3 Bedroom Terraced House | £212,500

This well-proportioned home is available with no onward chain and enjoys a highly convenient location within a level wal...

Holland & Odam (Glastonbury)

Glastonbury, Somerset, BA6 9DX

01458 833123

How much is your home worth?

Use our short form to request a valuation of your property.

Request a Valuation

Mortgage Calculator

Amount Borrowed: £
Total Amount Repayable: £
Total Monthly Payment: £
©2025 The Guild of Property Professionals. All rights reserved. Terms and Conditions | Privacy Policy | Cookie Policy | Complaints Policy | Members Login
The Guild of Property Professionals Trading Address: 121 Park Lane, London W1K 7AG. GPEA Limited. Registered in England & Wales.  Company No: 02819824.  Registered Office Address: 2 St. Stephen's Court, St. Stephen's Road, Bournemouth, Dorset, England, BH2 6LA.  VAT Registration No: 576 8795 61
Book a Property Valuation Update Cookies Preferences