Heritage Court, Magdalene Street, Glastonbury

£174,950
SSTC
This property listing is now SSTC

2 Bedroom Semi-Detached House for sale in Glastonbury

1 2 1
  • Located in a desirable retirement development just off the town centre, offering convenience and a peaceful setting.
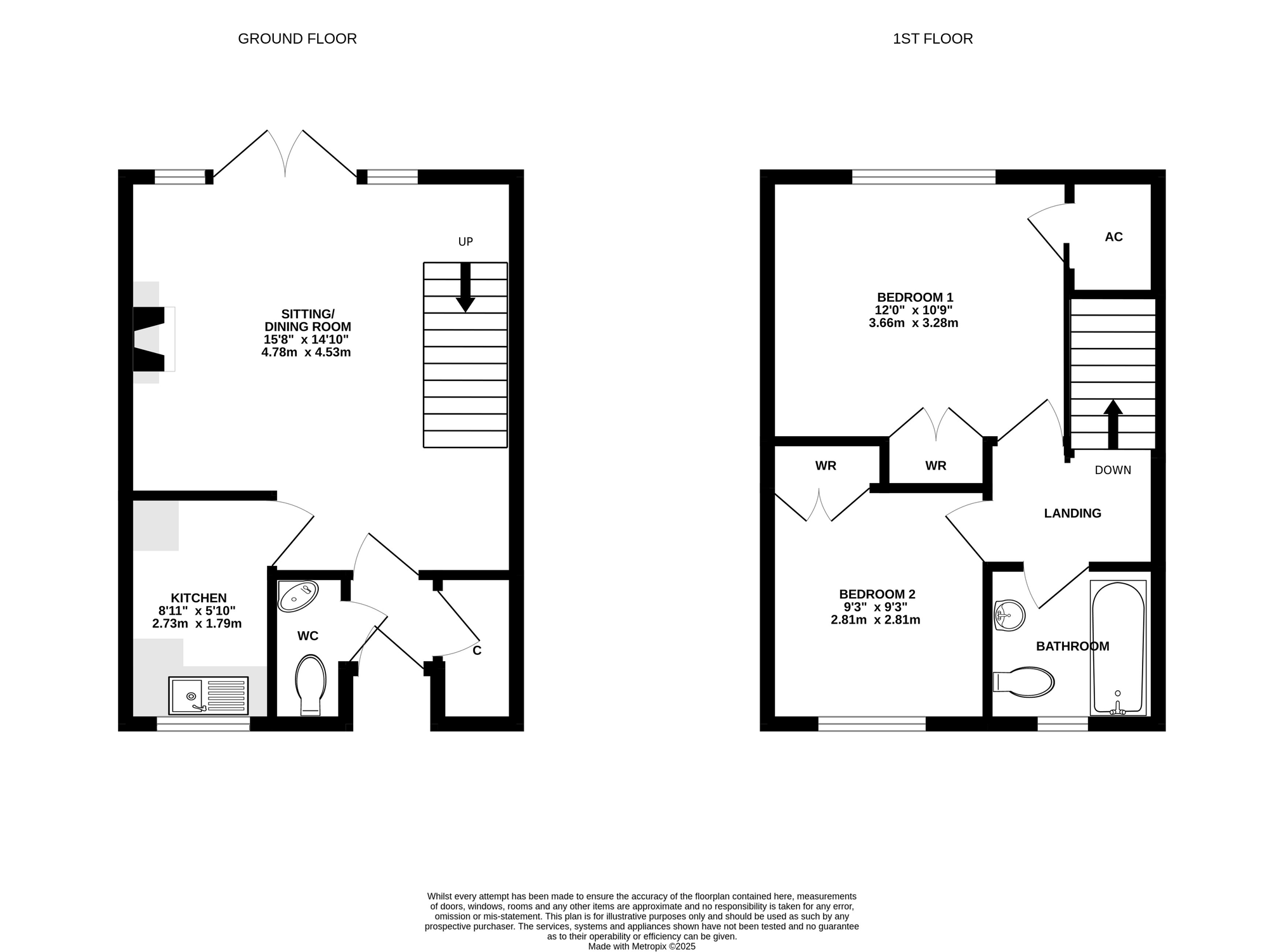
  • Two-bedroom semi-detached home with no onward chain, ideal for down sizing or those seeking a quiet, manageable property.
  • Spacious sitting/dining room with patio doors opening to a terrace and well-kept communal gardens.
  • Kitchen with wall and base units, space for electric cooker, washing machine, and fridge, with a window to the front.
  • Two first-floor bedrooms, both with built-in wardrobes; the main bedroom enjoys garden views and additional storage.
  • Modern bathroom with panelled bath and mixer shower, wash basin, and WC; ground floor cloakroom adds convenience.
  • End-of-cul-de-sac position with front porch, storage, gated side access, and access to lovely shared gardens.

Situated in a peaceful, select development just off the town centre, this two-bedroom semi-detached retirement home is offered with no onward chain. The well-planned accommodation includes a sitting/dining room, kitchen, cloakroom, and two bedrooms plus a bathroom upstairs. Patio doors open onto a small terrace with access to attractive communal gardens. The property enjoys a quiet position at the end of a no-through road, with gated side access to the garden.

Location
Heritage Court is a purpose built complex for the over 55s located in the centre of Glastonbury within easy walking distance of all amenities. Renowned for historic and mythical associations with the famous Tor and Abbey Ruins, Glastonbury is 6 miles from the Cathedral City of Wells and some 2 miles from Street which has more comprehensive facilities including Strode Theatre and the complex of shopping outlets in Clarks Village.

Directions
On entering Glastonbury from Street/Bridgwater (A39) at the Wirral Park roundabout (B & Q on the left) take the third exit into Street Road. Continue, passing Morrisons Supermarket on the left, and at the mini-roundabout turn left into Magdalene Street. After approximately 150 metres the entrance to Heritage Court will be found on the left opposite the car park for the Abbey Ruins. Continue to the end of the road where the property can be found on the left hand side.

Material Information
All available property information can be provided upon request from Holland & Odam. For confirmation of mobile phone and broadband coverage, please visit checker.ofcom.org.uk

Identity Verification
To ensure full compliance with current legal requirements, all buyers are required to verify their identity and risk status in line with anti-money laundering (AML) regulations before we can formally proceed with the sale. This process includes a series of checks covering identity verification, politically exposed person (PEP) screening, and AML risk assessment for each individual named as a purchaser. In addition, for best practice, we are required to obtain proof of funds and where necessary, to carry out checks on the source of funds being used for the purchase. These checks are mandatory and must be completed regardless of whether the purchase is mortgage-funded, cash, or part of a related transaction. A disbursement of £49 per individual (or £75 per director for limited company purchases) is payable to cover all aspects of this compliance process. This fee represents the full cost of conducting the required checks and verifications. You will receive a secure payment link and full instructions directly from our compliance partner, Guild365, who carry out these checks on our behalf.

Important Information

  • This is a Freehold property.
  • The annual service charges for this property is £2880
  • This Council Tax band for this property is: C

Property Ref: FMV806775

Share:

Similar Properties

Turstin Road, Glastonbury

2 Bedroom Apartment | £169,950

This modern first floor flat has been refurbished throughout and is offered with no onward chain. The accommodation incl...

Flat 24, The Tanneries, Sedgemoor Way, Glastonbury, Somerset

2 Bedroom Flat | £165,000

A stylish purpose built two bedroom second floor apartment with allocated parking space, located close to the historic t...

Northload Street, Glastonbury

1 Bedroom Apartment | £150,000

Set within a converted period former farmhouse just a short walk from Glastonbury High Street, this ground floor single...

The Tanneries, Glastonbury

2 Bedroom Flat | £175,000

A well presented purpose built two bedroom first floor apartment with allocated parking space, located close to the hist...

Magdalene Street, Glastonbury, Somerset

Land | £180,000

Previously developed brownfield site close to the town centre. The scheme will provide for 1 x 2 bedroomed ground floor...

Landmead, Glastonbury

3 Bedroom Not Specified | £180,000

A mid terrace, three bedroom house, within walking distance of the town centre and local amenities, in need of modernisa...

Holland & Odam (Glastonbury)

Glastonbury, Somerset, BA6 9DX

01458 833123

How much is your home worth?

Use our short form to request a valuation of your property.

Request a Valuation

Mortgage Calculator

Amount Borrowed: £
Total Amount Repayable: £
Total Monthly Payment: £
©2026 The Guild of Property Professionals. All rights reserved. Terms and Conditions | Privacy Policy | Cookie Policy | Complaints Policy | Members Login
The Guild of Property Professionals Trading Address: 121 Park Lane, London W1K 7AG. GPEA Limited. Registered in England & Wales.  Company No: 02819824.  Registered Office Address: 2 St. Stephen's Court, St. Stephen's Road, Bournemouth, Dorset, England, BH2 6LA.  VAT Registration No: 576 8795 61
Book a Property Valuation Update Cookies Preferences