Turstin Road, Glastonbury

£169,950

2 Bedroom Apartment for sale in Glastonbury

1 2 1
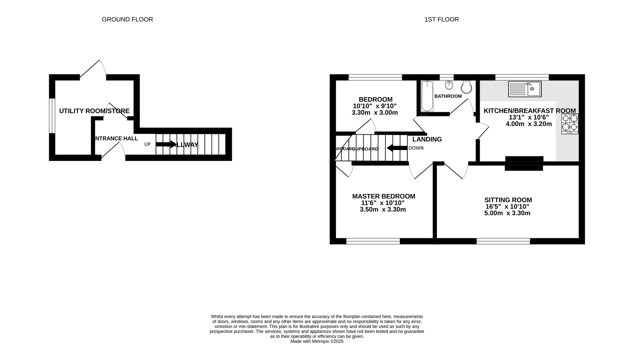
  • Refurbished first floor flat offered with no onward chain, ideal for first-time buyers or investors.
  • Two well-proportioned double bedrooms, both with fitted storage cupboards.
  • Light sitting room with front-facing aspect and exposed wooden floor to landing and both bedrooms.
  • Newly fitted kitchen with integrated oven, hob and dishwasher, plus space for washing machine and fridge/freezer.
  • Updated bathroom with new white suite including bath with shower mixer, wash basin and WC.
  • Private front entrance with ground floor storeroom and direct access to rear garden.
  • Generous enclosed rear garden with sunny aspect and at the front, potential for off-road parking, subject to consents.

This modern first floor flat has been refurbished throughout and is offered with no onward chain. The accommodation includes two double bedrooms, a light sitting room and a newly fitted kitchen with fitted appliances and bathroom. Outside there is a generous enclosed rear garden with at the front scope, subject to consents, to create off road parking. Ideal for a first-time buyer or investor seeking a well-presented and low maintenance home.

Location
The property is approximately half a mile from the High Street with its good range of shops, banks, supermarkets, health centres, restaurants, cafes and public houses. This historic town is famous for its Tor and Abbey Ruins and lies some 6 miles south of the Cathedral City of Wells. Street is 2 miles and offers more comprehensive facilities including Strode Theatre, both indoor and open air swimming pools and the complex of shopping outlets in Clarks Village. Bristol, Bath, Taunton and Yeovil are all within commuting distance whilst access to the M5 motorway at Junction 23 is 14 miles.

Directions
From the town centre proceed up the HIgh Street passing St John's Church on the left. At the top of the hill turn left into Wells Road and then take the first right into Leg of Mutton Road. Follow the road up the hill and turn right into Monington Road. Turstin Road is the second on the left and number 18 will be found, towards the end on the right hand side.

Material Information
All available property information can be provided upon request from Holland & Odam. For confirmation of mobile phone and broadband coverage, please visit checker.ofcom.org.uk

Identity Verification
To ensure full compliance with current legal requirements, all buyers are required to verify their identity and risk status in line with anti-money laundering (AML) regulations before we can formally proceed with the sale. This process includes a series of checks covering identity verification, politically exposed person (PEP) screening, and AML risk assessment for each individual named as a purchaser. In addition, for best practice, we are required to obtain proof of funds and where necessary, to carry out checks on the source of funds being used for the purchase. These checks are mandatory and must be completed regardless of whether the purchase is mortgage-funded, cash, or part of a related transaction. A disbursement of £49 per individual (or £75 per director for limited company purchases) is payable to cover all aspects of this compliance process. This fee represents the full cost of conducting the required checks and verifications. You will receive a secure payment link and full instructions directly from our compliance partner, Guild365, who carry out these checks on our behalf.

Important Information

  • This is a Leasehold property.
  • The annual cost for the ground rent on this property is £10
  • The annual service charges for this property is £400
  • This Council Tax band for this property is: A

Property Ref: FMV866224

Share:

Similar Properties

Flat 24, The Tanneries, Sedgemoor Way, Glastonbury, Somerset

2 Bedroom Flat | £165,000

A stylish purpose built two bedroom second floor apartment with allocated parking space, located close to the historic t...

Northload Street, Glastonbury

1 Bedroom Apartment | £150,000

Set within a converted period former farmhouse just a short walk from Glastonbury High Street, this ground floor single...

Primrose Hill, Charlton Mackrell

2 Bedroom Park Home | £145,000

* MOTIVATED SELLER * A well maintained park home situated on an exclusive over 50s development, within the desirable vil...

Heritage Court, Magdalene Street, Glastonbury

2 Bedroom Semi-Detached House | £174,950

Situated in a peaceful, select development just off the town centre, this two-bedroom semi-detached retirement home is o...

The Tanneries, Glastonbury

2 Bedroom Flat | £175,000

A well presented purpose built two bedroom first floor apartment with allocated parking space, located close to the hist...

Magdalene Street, Glastonbury, Somerset

Land | £180,000

Previously developed brownfield site close to the town centre. The scheme will provide for 1 x 2 bedroomed ground floor...

Holland & Odam (Glastonbury)

Glastonbury, Somerset, BA6 9DX

01458 833123

How much is your home worth?

Use our short form to request a valuation of your property.

Request a Valuation

Mortgage Calculator

Amount Borrowed: £
Total Amount Repayable: £
Total Monthly Payment: £
©2026 The Guild of Property Professionals. All rights reserved. Terms and Conditions | Privacy Policy | Cookie Policy | Complaints Policy | Members Login
The Guild of Property Professionals Trading Address: 121 Park Lane, London W1K 7AG. GPEA Limited. Registered in England & Wales.  Company No: 02819824.  Registered Office Address: 2 St. Stephen's Court, St. Stephen's Road, Bournemouth, Dorset, England, BH2 6LA.  VAT Registration No: 576 8795 61
Book a Property Valuation Update Cookies Preferences