Benedict Street, Glastonbury

£395,000

3 Bedroom End of Terrace House for sale in Glastonbury

1 3 3
  • Well presented family home situated within walking distance of town centre.
  • Deceptively spacious accommodation spread across three floors.
  • Light and airy lounge diner with double doors opening to the rear garden
  • Three double bedrooms, some with outlooks towards either Wearyll Hill or Glastonbury Tor
  • Generous garden abundant with mature plants, trees, shrubs aswell as a cabin with power and lighting.
  • Ample off street parking with driveway to the rear
  • For information regarding broadband and mobile coverage, go to checker.offcom.org.uk

A beautifully presented end of terrace townhouse, thoughtfully updated in recent years and ideally positioned within a short, level walk of the High Street and local amenities. The property offers well-balanced accommodation arranged over three floors, complemented by a landscaped rear garden, garden room and the rare advantage of off-road parking.

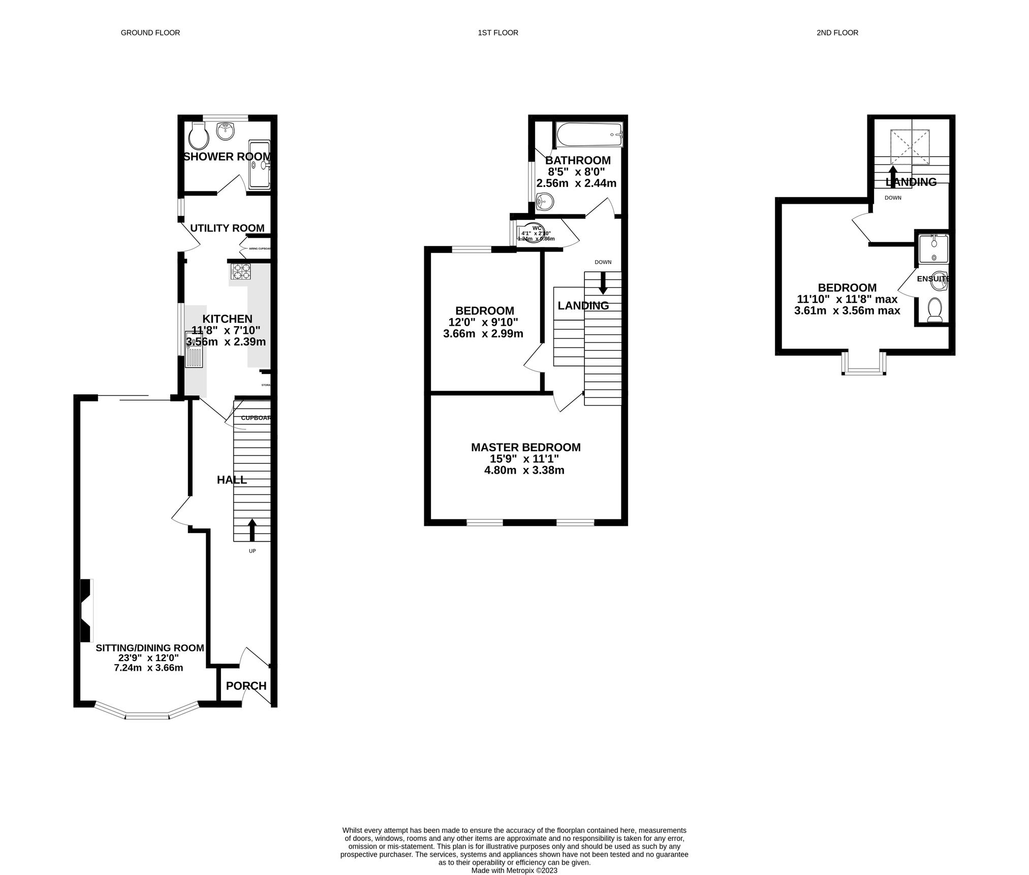
Accommodation
The accommodation is entered via a welcoming hallway with attractive herringbone wood flooring, leading through to a bright and spacious open plan sitting/dining room. This dual aspect space features a bay window to the front, feature fireplace and patio doors opening onto the rear garden. The kitchen is fitted with a modern range of units and integrated appliances, with an opening through to a useful utility room and a contemporary ground floor shower room.

To the first floor are two well-proportioned double bedrooms, a family bathroom and separate WC. The second floor is dedicated to an impressive principal bedroom, benefitting from a dormer window with far-reaching views towards Glastonbury Tor and Wearyall Hill, along with a stylish en-suite shower room.

Outside
Externally, the rear garden has been carefully landscaped to create an attractive and low-maintenance space, with paved seating areas and mature planting. A garden room with power and lighting provides excellent versatility, with an off-road parking space located beyond.

Location
The property is situated within a level walk of the town centre with its good range of shops, supermarkets, health centres, restaurants, cafes and public houses. The historic town of Glastonbury is famous for its Tor and Abbey Ruins and is 6 miles from the Cathedral City of Wells. Street is 2 miles and offers more comprehensive facilities including both indoor and outdoor swimming pools, Strode Theatre, Strode College and a good range of High Street shops and the complex of shopping outlets in Clarks Village. Access to the M5 motorway interchange can be gained at Junction 23 (Dunball) whilst Bristol, Bath and Yeovil are all within commuting distance.

Directions
On entering Glastonbury from Street/Bridgwater (A39) at the Wirral Park roundabout (B & Q on the left) take the third exit into Street Road. Continue, passing Morrisons Supermarket on the left and at the mini-roundabout turn left into Magdalene Street. Continue and after approximately 200 metres turn left into Benedict Street. Continue past the right hand turning for Garvins Road, where the property can be found on the right hand side.

Material Information
All available property information can be provided upon request from Holland & Odam. For confirmation of mobile phone and broadband coverage, please visit checker.ofcom.org.uk

Identity Verification
To ensure full compliance with current legal requirements, all buyers are required to verify their identity and risk status in line with anti-money laundering (AML) regulations before we can formally proceed with the sale. This process includes a series of checks covering identity verification, politically exposed person (PEP) screening, and AML risk assessment for each individual named as a purchaser. In addition, for best practice, we are required to obtain proof of funds and where necessary, to carry out checks on the source of funds being used for the purchase. These checks are mandatory and must be completed regardless of whether the purchase is mortgage-funded, cash, or part of a related transaction. A disbursement of £49 per individual (or £75 per director for limited company purchases) is payable to cover all aspects of this compliance process. This fee represents the full cost of conducting the required checks and verifications. You will receive a secure payment link and full instructions directly from our compliance partner, Guild365, who carry out these checks on our behalf.

Important Information

  • This is a Freehold property.
  • This Council Tax band for this property is: B

Property Ref: FMV861741

Share:

Similar Properties

Coxs Drive, Baltonsborough, Glastonbury, Somerset

2 Bedroom Detached Bungalow | £395,000

This beautifully presented detached bungalow has been extended and improved in recent years, creating a light and well b...

Ashwell Lane, Glastonbury, Somerset

3 Bedroom Semi-Detached House | £395,000

Set in the highly desirable Ashwell Lane, in the lee of Glastonbury Tor, this substantial semi-detached home is availabl...

Glastonbury Road, West Pennard

4 Bedroom Detached House | £395,000

Bytheway is a detached four-bedroom period cottage, set in the village of West Pennard. The property includes a sitting...

Cottons Lane, Keinton Mandeville

3 Bedroom Cottage | £399,950

Tucked away on a quiet no through road, in the popular village of Keinton Mandeville, this recently renovated cottage of...

Cherry Pie Lane, Sparkford

3 Bedroom Semi-Detached House | £425,000

A charming and characterful home, believed to be around 100 years old, offering versatile 2/3 bedroom accommodation, a g...

Hexton Road, Glastonbury

3 Bedroom Detached House | £425,000

Enjoying stunning south and westerly views over the town and into the far distance, this versatile split-level detached...

Holland & Odam (Glastonbury)

Glastonbury, Somerset, BA6 9DX

01458 833123

How much is your home worth?

Use our short form to request a valuation of your property.

Request a Valuation

Mortgage Calculator

Amount Borrowed: £
Total Amount Repayable: £
Total Monthly Payment: £
©2026 The Guild of Property Professionals. All rights reserved. Terms and Conditions | Privacy Policy | Cookie Policy | Complaints Policy | Members Login
The Guild of Property Professionals Trading Address: 121 Park Lane, London W1K 7AG. GPEA Limited. Registered in England & Wales.  Company No: 02819824.  Registered Office Address: 2 St. Stephen's Court, St. Stephen's Road, Bournemouth, Dorset, England, BH2 6LA.  VAT Registration No: 576 8795 61
Book a Property Valuation Update Cookies Preferences