Golant, Fowey

Guide Price
£1,150,000
SSTC
This property listing is now SSTC

4 Bedroom Detached House for sale in Golant

1 4 3
  • LUXURIOUSLY APPOINTED
  • STUNNING OPEN PLANING LIVING ACCOMMODATION WITH BALCONIES OVERLOOKING THE RIVER
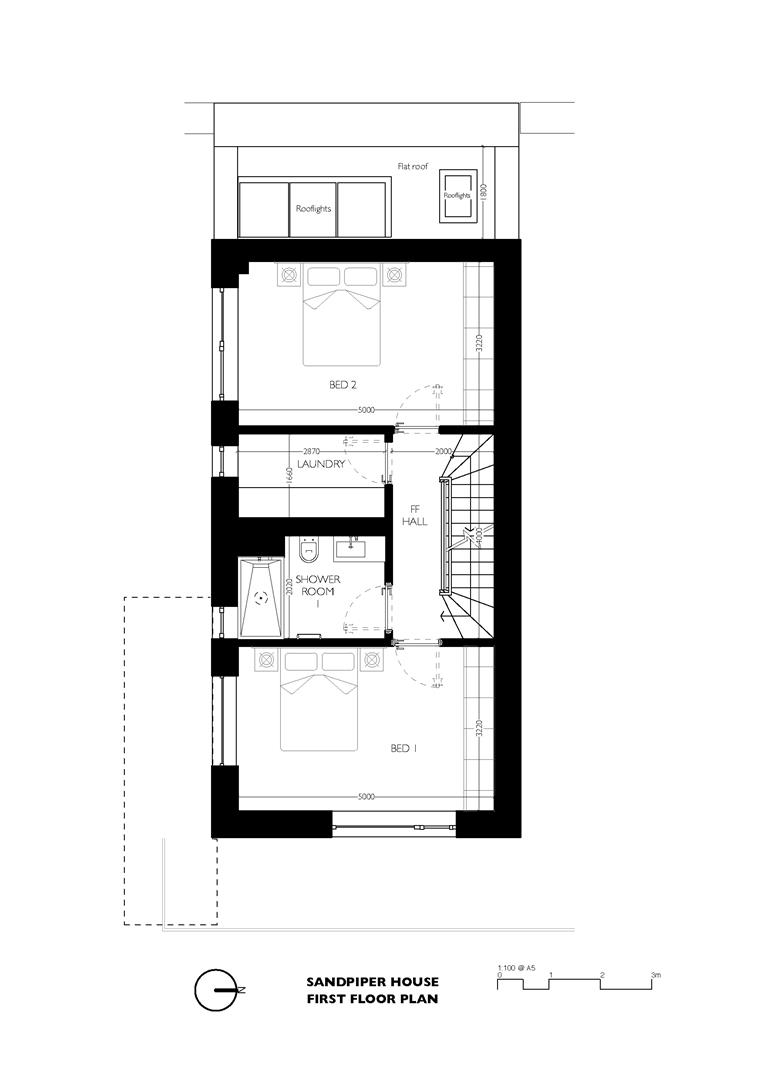
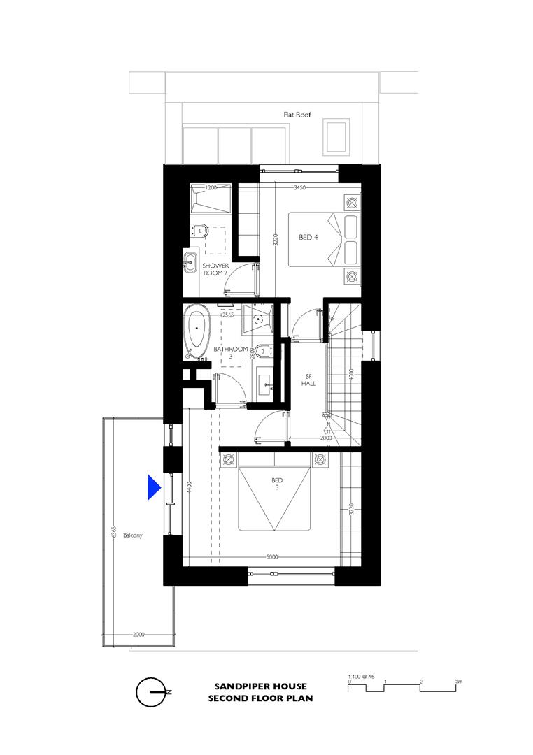
  • 4 BEDROOMS 3 BATHROOMS (2 ENSUITE)
  • APPROX 170 m2
  • BEAUTIFUL RIVER VIEWS
  • OPTION ON 2.5 ACRE WOODLAND ADJACENT TO PROPERTY (enquire for further details)
  • 2 PARKING SPACES
  • COMPLETION MID 2022

PRIVATELY SITUATED AT THE EDGE OF THE DEVELOPMENT, NESTLED IN WOODLAND WITH VIEWS OVER THE RIVER, ONE OF THE FIRST THREE HOUSES TO BE RELEASED AT THE CORMORANT, SET WITHIN A COLLECTION OF 9 LUXURIOUS RIVERSIDE HOMES IN GOLANT WITH STUNNING VIEWS OVER THE RIVER FOWEY. CONSTRUCTED AND FINISHED TO THE HIGHEST SPECIFICATION, SANDPIPER HOUSE OFFERS 4 BEDROOM, 3 BATHROOM ACCOMMODATION WITH PARKING FOR 2 CARS. COMPLETION MID 2022

Golant is a charming, Cornish waterside village to the west of Lostwithiel and located on the River Fowey. Easily accessed being just 20 minutes drive from the A30 Bodmin junction; 35 minutes from Newquay Airport and 10 minutes from the railway station in Par with direct trains to London. Fowey is a pleasant 30 minute walk from Golant along the Saints Way.

The village has a population of approximately 220 people and there is the Fishermans Arms pub, a watersports centre and caf? and two art galleries. Positioned in an area of Outstanding Natural Beauty (AONB) Golant boasts scenic views all year round. In the summer the river is a popular location for boating activity and in the winter left mostly to cormorants, egrets, mallards, herons and kingfishers that make the river their home.

This Exclusive development is being built by Green and Rock. Green and Rock are quite unique in that they work with clients to bespoke the final house to their design.

All properties will benefit from stunning water views and direct access onto the historic and beautiful Saints Way.

Designed by renowned architect Charles Mador with gardens designed by Richard Sneesby, a fellow of the Landscape Institute. All properties are of an interesting and modern design, clad with siberian larch wood, and lime covered brick and limestone tiles.

All built to a high level specification, Ted Todd oak floors and LussoStone bathrooms.

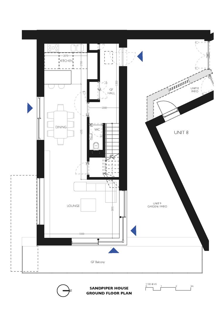
Sandpiper House will sit on the edge of the development and offers approximately 171m2 of space with open plan living area and balcony overlooking the river and garden. There is an option to purchase 2.5 acres of woodland adjacent to the property and over looking the river.

The property will have underfloor heating throughout and environmentally friendly air sourced heat pumps, along with feature lighting schemes, high quality Quantum handless kitchens with quartz worksurfaces and Neff appliances. Please ask for further details including specification details of the property.

Further options to bespoke each home are available, such as room configurations and decoration, Sonos integrated sound system and home automated lighting system; electric vehicle charging, solar power, Cinema/gym rooms fitted out, hot tubs, alarms and choices of final finishes (subject to timescales).

All of the 9 homes at the Cormorant will have fibre broadband connected direct to the home, so with Ultrafast fibre broadband services the minimum download speeds will be approximately 300+ Mbps. This is the first fibre to the home connection in Golant, and makes these houses perfect for working from home.

Cornwall's premier holiday let agents Cornish Gems have predicted a 6-7% gross return for owners who choose to place their new Green and Rock home onto the holiday let market. This equates to a gross income of ?70-?80k per annum, with 15-20 weeks per year left for you to enjoy the house yourselves.

Agents Note - All designs are subject to final approvals and necessary permissions.

Viewing - Strictly by appointment with the Sole Agents: May Whetter & Grose, Estuary House, Fore Street, Fowey, Cornwall, PL23 1AH.
Tel: 01726 832299 Email: info@maywhetter.co.uk

Local Authority - Cornwall Council, 39 Penwinnick Road, St Austell, Cornwall, PL25 5DR

Property Ref: 30127824

Share:

Similar Properties

Golant, Fowey

4 Bedroom Detached House | Guide Price £1,100,000

ONE OF THE FIRST THREE HOUSES TO BE RELEASED TO PURCHASE AT THE CORMORANT, SET WITHIN A COLLECTION OF 9 LUXURIOUS RIVERS...

Passage Lane, Fowey

4 Bedroom Character Property | Guide Price £999,950

A BEAUTIFUL FOUR BEDROOM VICTORIAN VILLA, RENOVATED AND EXTENDED BY THE CURRENT OWNER TO PROVIDE A WELL PROPORTIONED MAI...

Tower Park, Fowey

4 Bedroom Detached House | Guide Price £850,000

A SPACIOUS 4 BEDROOM DETACHED HOME, WITH LARGE GARDENS AND VIEWS OVER NEIGHBOURING WOODLAND, TOWARDS THE SEA AND POLRUAN...

St. Saviours Hill, Polruan, Polruan

5 Bedroom Detached House | £1,245,000

IMMACULATELY PRESENTED 5 BEDROOM DETACHED HOUSE WITH FABULOUS VIEWS OVER THE HARBOUR AND TO FOWEY. EXTENSIVE PARKING FOR...

Church Avenue, Fowey

4 Bedroom House | Guide Price £1,250,000

A BEAUTIFUL DOUBLE-FRONTED TOWNHOUSE IN THE HISTORIC HEART OF THE TOWN, A SHORT WALK FROM THE QUAYSIDE, GALLERIES, RESTA...

Lombard, Lanteglos, Nr Fowey

6 Bedroom Country House | Guide Price £1,250,000

BEAUTIFUL FAMILY HOME LOCATED IN A PICTURESQUE SETTING, CLOSE TO THE ESTUARY AND BOAT LAUNCHING FACILITIES. A SPACIOUS D...

May Whetter & Grose (Fowey)

Fowey, Cornwall, PL23 1AH

01726832299

How much is your home worth?

Use our short form to request a valuation of your property.

Request a Valuation

Mortgage Calculator

Amount Borrowed: £
Total Amount Repayable: £
Total Monthly Payment: £
©2026 The Guild of Property Professionals. All rights reserved. Terms and Conditions | Privacy Policy | Cookie Policy | Complaints Policy | Members Login
The Guild of Property Professionals Trading Address: 121 Park Lane, London W1K 7AG. GPEA Limited. Registered in England & Wales.  Company No: 02819824.  Registered Office Address: 2 St. Stephen's Court, St. Stephen's Road, Bournemouth, Dorset, England, BH2 6LA.  VAT Registration No: 576 8795 61
Book a Property Valuation Update Cookies Preferences