Orion Avenue, Priddys Hard, Gosport

Offers Over
£575,000

5 Bedroom Detached House for sale in Gosport

3 5 3
  • FIVE BEDROOM DETACHED HOUSE
  • THREE EN SUITES
  • FAMILY BATHROOM
  • THREE RECEPTION ROOMS
  • TANDEM LENGTH GARAGE
  • DOWNSTAIRS WC
  • ATTRACTIVE REAR GARDEN
  • PRIDDYS HARD LOCATION
  • VERY WELL PRESENTED

**Price Guide £575,000-£600,000**
Nestled in the peaceful residential setting of Orion Avenue in Priddy's Hard, Gosport, this impressive five-bedroom detached home offers spacious and versatile living across three well-designed floors. With approximately 1,738 square feet of living space, it's perfectly suited for large families or multi-generational households - offering privacy, comfort, and room to grow.

The property sits adjacent to a large green open space and backs onto a protected wildlife area, designated as a Site of Special Scientific Interest (SSSI), providing a unique sense of tranquillity and a wonderful connection to nature. The nearby waterfront, with access to the Explosion Museum, sailing club, and waterfront bars, adds to the charm and convenience of this sought-after location. The Gosport Ferry is also close by, offering easy connections to Portsmouth, Gunwharf Quays, and direct rail services to London - making it an ideal spot for commuters.

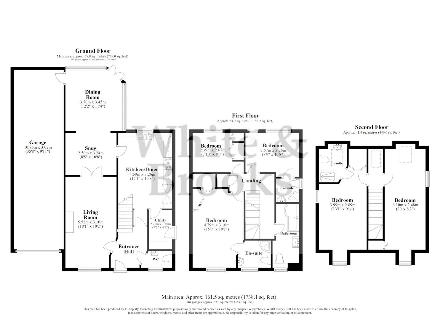
As you arrive, a characterful clay-paved driveway welcomes you with ample parking and leads to a double-length integral garage. Step inside and you're greeted by a warm entrance hall, complete with a convenient ground floor WC and a staircase that flows naturally to the upper floors.

At the heart of the home lies the modern kitchen/breakfast room, fitted with sleek white high-gloss base and wall units. There's plenty of space for a range cooker and an American-style fridge freezer, while integrated appliances such as a microwave and dishwasher offer added practicality and style.

The ground floor is filled with natural light and designed for family living. The cosy living room features a central fireplace - perfect for relaxing evenings - and opens via double doors to a snug, which in turn leads into a bright and airy dining room. With glass on two sides and French doors opening to the private, well-maintained rear garden, this space is perfect for entertaining or simply enjoying the peaceful surroundings.

Entrance Hall -

Downstairs Wc -

Kitchen/Diner - 4.60m x 3.25m (15'1 x 10'8) -

Utility Room - 2.21m x 1.40m (7'3 x 4'7) -

Living Room - 5.51m x 3.10m (18'1 x 10'2) -

Snug - 3.25m x 2.57m (10'8 x 8'5) -

Dining Room - 3.71m x 3.45m (12'2 x 11'4) -

Landing -

Bedroom - 4.80m x 3.10m (15'9 x 10'2) -

En Suite -

Bedroom - 3.25m x 2.67m (10'8 x 8'9) -

En Suite -

Bedroom - 2.67m x 2.39m (8'9 x 7'10) -

Bathroom -

Second Floor Landing -

Bedroom - 3.99m x 2.90m (13'1 x 9'6) -

En Suite -

Bedroom - 6.10m x 2.49m (20 x 8'2) -

Outside -

Driveway -

Tandem Garage - 10.87m x 3.02m (35'8 x 9'11) -

Enclosed Rear Garden -

Anti Money Laundering - Bernards Estate agents have a legal obligation to complete anti-money laundering checks. The AML check should be completed in branch. Please call the office to book an AML check if you would like to make an offer on this property. Please note the AML check includes taking a copy of the two forms of identification for each purchaser. A proof of address and proof of name document is required. Please note we cannot put forward an offer without the AML check being completed

Offer Check Procedure - If you are considering making an offer for this or any other property we are marketing, please make early contact with your local office to enable us to verify your buying position. Our Sellers expect us to report on a Buyer's proceedability whenever we submit an offer. Thank you.

Removals - As part of our drive to assist clients with all aspects of the moving process, we have sourced a reputable removal company. Please ask a member of our sales team for further details and a quotation.

Solicitors - Choosing the right conveyancing solicitor is extremely important to ensure that you obtain an effective yet cost-efficient solution. The lure of supposedly cheaper on-line "conveyancing warehouse" style services can be very difficult to ignore but this is a route fraught with problems that we strongly urge you to avoid. A local, established and experienced conveyancer will safeguard your interests and get the job done in a timely manner. Bernards can recommend several local firms of solicitors who have the necessary local knowledge and will provide a personable service. Please ask a member of our sales team for further details.

Bernards Mortgage & Protection - We have a team of advisors covering all our offices, offering a comprehensive range of mortgages from across the market and various protection products from a panel of lending insurers. Our fee is competitively priced, and we can help advise and arrange mortgages and protection for anyone, regardless of who they are buying and selling through.

If you're looking for advice on borrowing power, what interest rates you are eligible for, submitting an agreement in principle, placing the full mortgage application, and ways to protect your health, home, and income, look no further!

Freehold / Council Tax Band F -

Property Ref: 327482_33985320

Share:

Similar Properties

Lichfield Drive, Priddys Hard, Hampshire

4 Bedroom Detached House | Guide Price £565,000

Nestled in the sought-after area of Lichfield Drive, Gosport, this impressive detached house offers a perfect blend of c...

Diana Close, Alverstoke, Gosport

4 Bedroom Detached Bungalow | Guide Price £550,000

The internal fixtures and fittings are all of extremely high quality and the property has the WOW factor throughout!The...

Fort Road, Alverstoke, Gosport

4 Bedroom Detached House | Offers Over £550,000

Bernards is pleased to present this impressive four-bedroom detached house situated on Fort Road in the desirable Alvers...

Orion Avenue, Priddys Hard, Gosport

5 Bedroom Detached House | Guide Price £580,000

**DETACHED THREE STOREY PROPERTY**Nestled in the highly sought-after area of Priddy's Hard, this impressive detached hou...

Park Road, Alverstoke, Gosport

4 Bedroom Detached House | Offers Over £600,000

*** NOW RE AVAILABLE ***Nestled on the picturesque Park Road in Gosport, this remarkable four-bedroom detached house is...

Fort Road, Alverstoke, Gosport

4 Bedroom Detached House | Guide Price £650,000

Bernards are pleased to market this four-bedroom detached house, ideally situated in Alverstoke, within close proximity...

Bernards Estate and Lettings Agents (Gosport)

97 High Street, Gosport, Hampshire, PO12 1DS

02392 004660

How much is your home worth?

Use our short form to request a valuation of your property.

Request a Valuation

Mortgage Calculator

Amount Borrowed: £
Total Amount Repayable: £
Total Monthly Payment: £
©2025 The Guild of Property Professionals. All rights reserved. Terms and Conditions | Privacy Policy | Cookie Policy | Complaints Policy | Members Login
The Guild of Property Professionals Trading Address: 121 Park Lane, London W1K 7AG. GPEA Limited. Registered in England & Wales.  Company No: 02819824.  Registered Office Address: 2 St. Stephen's Court, St. Stephen's Road, Bournemouth, Dorset, England, BH2 6LA.  VAT Registration No: 576 8795 61
Book a Property Valuation Update Cookies Preferences