Cheveley Park, Grantham

Asking Price
£115,000

2 Bedroom Retirement Property for sale in Grantham

1 2 2
  • *MOVE IN TODAY*
  • Brand New Park Home
  • 10 Year Warranty
  • Walking Distance of Town Centre
  • Spacious Lounge
  • Kitchen/Diner with Appliances
  • 2 Bedrooms
  • Modern Shower Room
  • Tenure: Leasehold
  • Council Tax Band: A

*BRAND NEW* - 'OMAR' Manufactured, 2 Bedroom Detached Park Home with Pleasant Garden and 10 Year Warranty situated on this popular over 55's development located a short distance from the Centre of the Market Town of Grantham.

Description

Charles Dyson Estate Agents are delighted to offer to the market, this BRAND NEW 'OMAR' Manufactured, 2 Bedroom Park Home offered with immediate vacant possession and being situated on the popular Cheveley Park Retirement Development within walking distance of Grantham Town Centre and Railway Station with direct trains to London in just over 1 hour.

Grantham has a number of amenities including supermarket shopping, schooling and recreational facilities as well as easy access to the A1/A52/A46 road network.

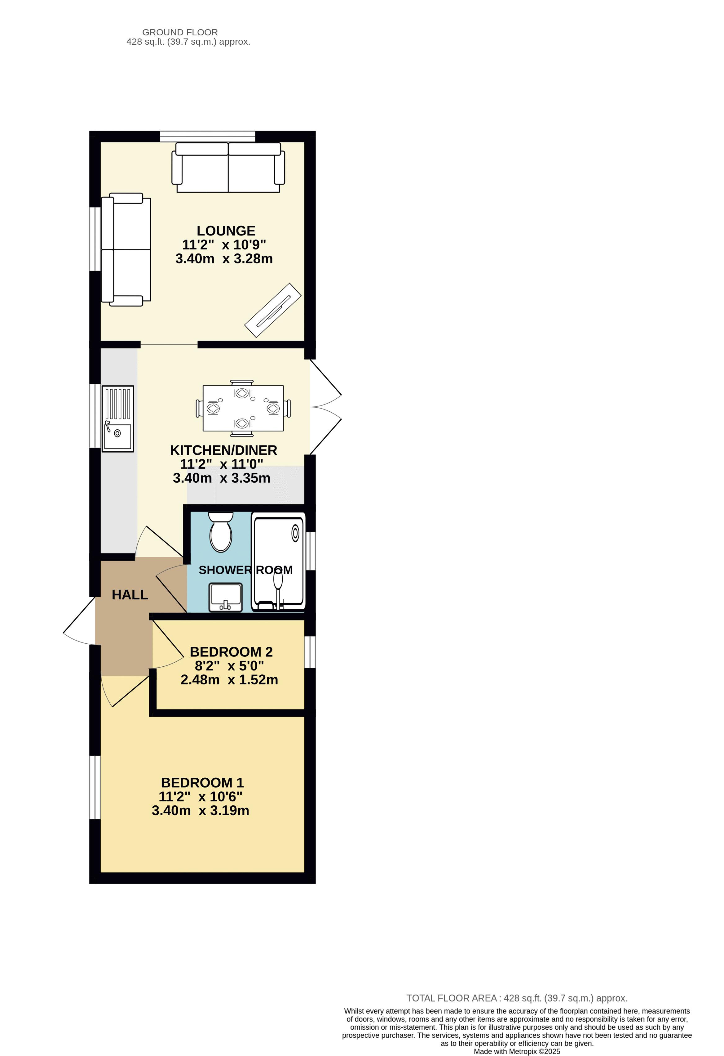
The accommodation in brief comprises Entrance Hall, Lounge, Kitchen/Diner, Two Bedroom's and Modern Shower Room.

The accommodation in more detail is as described below:

Entrance Hall

With uPVC double glazed entrance door and leading to:

Lounge

With uPVC double glazed windows to front and side elevations and fireplace with electric fire.

Kitchen / Diner

With uPVC double glazed patio doors, inset ceiling spot lights and having a range of base and eye level Kitchen unit with draw, cupboard and shelf space, worktop incorporating stainless steel sink and drainer with hot and cold mixer tap over, tiled splashbacks, inset 4 ring gas hob, electric oven under, integrated fridge/freezer, dining area, window to side and wall mounted gas fired boiler.

Bedroom 1

With uPVC double glazed window to side elevation, ceiling light point and built-in wardrobes with shelf space adjacent.

Shower Room

With obscure uPVC double glazed window to side, heated towel rail, shower cubicle with shower unit, wash hand basin and low flush wc.

Bedroom 2

With uPVC double glazed window to side, built-in wardrobe/cupboard and ceiling light point.

Outside

The property enjoys a pleasant garden being largely laid to lawn. There is also ample visitors parking on site.

Agents Note

Should you be considering purchasing a Park Home then we recommend obtaining independent legal advice and all potential purchasers should satisfy themselves any specific restrictions on occupancy or residential use of the home.

Park Home Sites often have requirements specific to the purchase of a property and to the site in general, which could include paying the site owner's commission on sale.

Service Charge

We are informed by the site owner that there is currently a service charge of £39 per week.

Electricity is charged at 29p (subject to change) per unit and Gas is available via Calor or Flogas.

Disclaimer

These particulars and floorplans are in draft form only awaiting Vendor approval but are set out as for guidance only and do not form part of any contract or PIA. Interested parties should not rely on them and should satisfy themselves by inspection or other means. Please note appliances, apparatus, equipment, fixtures and fittings, heating etc have not been tested and cannot confirm that they are working or fit for purpose. All measurements should not be relied upon and are for illustration purposes only. The details may be subject to change. Additional Material Information on the property can be found via the SKDC planning portal, Ofcom and Gov.com Flood Risk.

Money Laundering

We are required to carry out anti-money laundering checks on all parties involved in the sale or purchase of property. To enable us to do this, once a purchaser(s) has had their offer accepted (STC) our partner Movebutler will send a secure link to conduct the relevant HMRC & ID checks on our behalf. The cost of this is £30 (including vat) per person and is non-refundable. The checks must be completed before a memorandum of sale can be generated and sent to Solicitors confirming the sale. If you require any further details prior to submitting a formal offer contact our office on 01476 576688.

THINKING OF SELLING OR RENTING?

Thinking of Selling or Renting? Charles Dyson are Grantham's exclusive member of the Guild of Property Professionals with a network of over 800 independent offices. We are always delighted to provide free, impartial advice on all property matters.

Important Information

  • This is a Leasehold property.

Property Ref: EAXML11602_12786901

Share:

Similar Properties

Eyam Way, Grantham

2 Bedroom Flat | Asking Price £115,000

*IDEAL FIRST TIME PURCHASE* - A Modern, 2 Bedroom First Floor Apartment with Allocated Parking Space located in a prime...

College Street, Grantham

3 Bedroom House | Asking Price £115,000

*PERFECT FIRST TIME PURCHASE* - A Traditional Terrace House with 2 Bedrooms and Loft Room in a popular Town Centre locat...

Harlaxton Road, Grantham

2 Bedroom Ground Floor Flat | Asking Price £110,000

*IDEAL FIRST TIME PURCHASE* - A Spacious, 2 Bedroom Ground Floor Apartment with Pleasant Garden being situated close to...

Dysart Road, Grantham

1 Bedroom House | Asking Price £119,000

RESIDENTIAL OR COMMERCIAL - A Three Storey Terraced Property situated in the heart of Grantham Town Centre and offering...

Elmer Street North, Grantham

1 Bedroom Town House | Asking Price £124,950

Charles Dyson Estate Agents are delighted to offer to the market this unique 3 Storey, One Bedroom Town House with Large...

Cheveley Park, Grantham

2 Bedroom Retirement Property | Asking Price £130,000

*DOUBLE UNIT* - A Substantial, 2 Bedroom Detached Park Home on a prominent corner plot with Driveway and Large Patio Are...

Charles Dyson Estate & Lettings Agents (Grantham)

Finkin Street, Grantham, Lincolnshire, NG31 6QZ

01476 576688

How much is your home worth?

Use our short form to request a valuation of your property.

Request a Valuation

Mortgage Calculator

Amount Borrowed: £
Total Amount Repayable: £
Total Monthly Payment: £
©2026 The Guild of Property Professionals. All rights reserved. Terms and Conditions | Privacy Policy | Cookie Policy | Complaints Policy | Members Login
The Guild of Property Professionals Trading Address: 121 Park Lane, London W1K 7AG. GPEA Limited. Registered in England & Wales.  Company No: 02819824.  Registered Office Address: 2 St. Stephen's Court, St. Stephen's Road, Bournemouth, Dorset, England, BH2 6LA.  VAT Registration No: 576 8795 61
Book a Property Valuation Update Cookies Preferences