Regency Close, London Road, Great Notley, Braintree

Guide Price
£575,000
SSTC
This property listing is now SSTC

4 Bedroom Detached House for sale in Great Notley, Braintree

3 4 3
  • COMPLETE ONWARD CHAIN!!
  • UNOVERLOOKED & Sizeable SOUTH-FACING Rear Garden
  • Impressive 28' Kitchen/Diner, Spacious Lounge & PLAYROOM/LAUNDRY ROOM
  • External HOME OFFICE/GYM With ANNEX POTENTIAL*
  • IMMACULATELY PRESENTED Four Bedroom Detached Property
  • Ideally Positioned In PRIVATE ROAD / CUL-DE-SAC Setting
  • Garage, Carport Plus Parking For 3-4 Vehicles
  • RECENTLY BUILT & Still Under Warranty
  • EN-SUITE To Master, Family Bathroom Plus D/Stairs Cloakroom
  • Walking Distance To Local Shops/Amenities & Popular Schools

Boasting an UNOVERLOOKED & generously sized SOUTH-FACING rear garden, an impressive 28' kitchen/diner plus spacious lounge & SNUG/PLAYROOM is this IMMACULATELY PRESENTED four bedroom detached property. Benefiting from an external HOME OFFICE/GYM with ANNEX POTENTIAL* and offering a garage, carport and parking for 3-4 vehicles. RECENTLY BUILT & still under warranty, also offering an EN-SUITE to master, d/stairs cloakroom. Ideally positioned within a PRIVATE CUL-DE-SAC setting off London Road, within walking distance of all local shops/amenities & popular schools. Easy access to Braintree Town Centre & Station (2.3 miles), A120/M11 & Chelmsford.

***GUIDE PRICE £575,000-£600,000***

The accommodation, with approximate room sizes, is as follows:

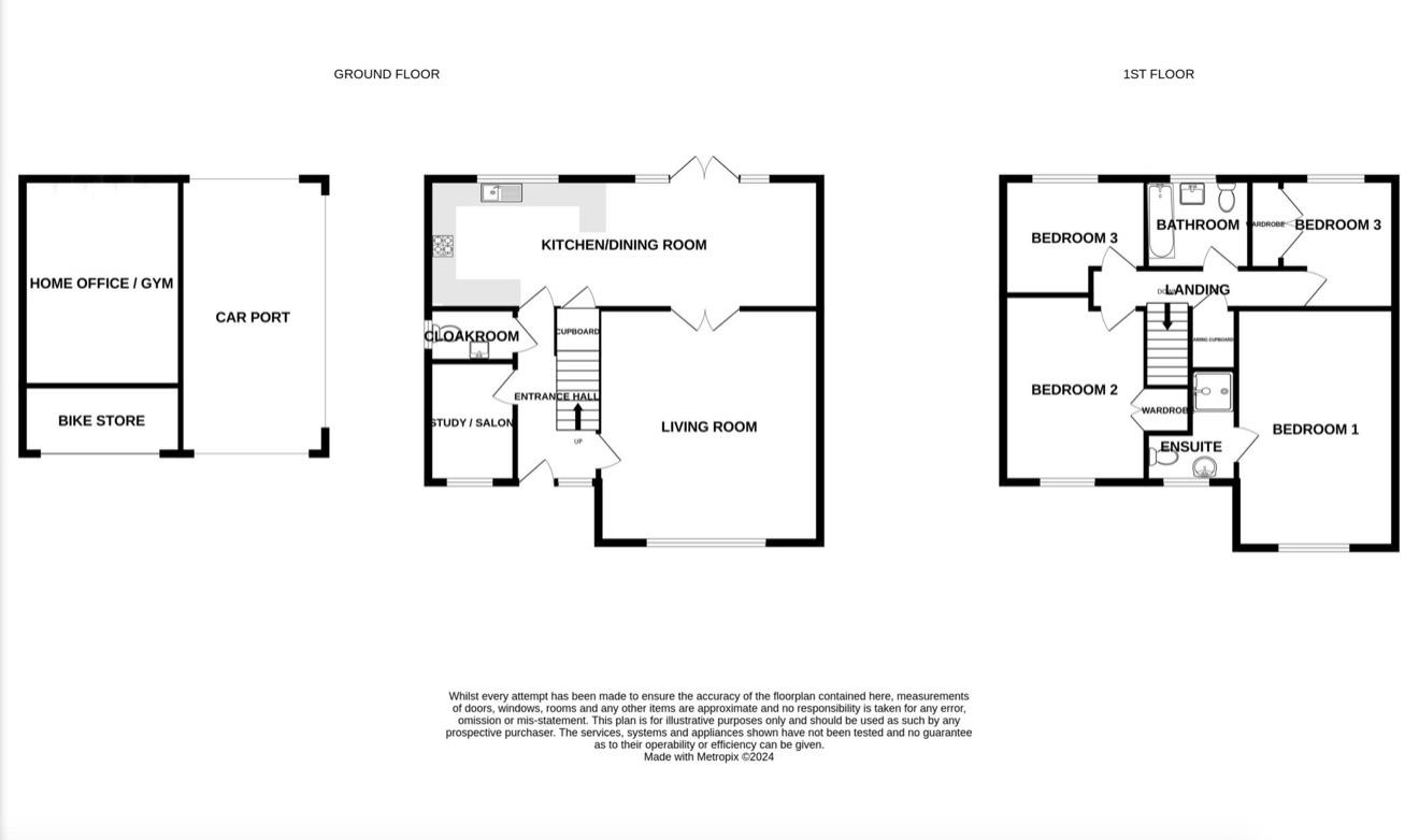
Ground Floor Accommodation: -

Entrance Hall: - Double glazed window to front aspect, stairs to first floor, custom fitted under stairs storage units, radiator, Amtico flooring and smooth coved ceiling.

Cloakroom: - Opaque double glazed window to side aspect, inset WC, vanity wash hand basin with tiled splash backs, heated towel rail, extractor fan, tiled flooring and smooth coved ceiling with sunken spotlights.

Lounge: - 4.85m x 4.22m (15'11 x 13'10) - Double glazed window to front aspect, radiator, carpeted flooring and smooth coved ceiling. Double doors into dining area.

Playroom / Utility & Laundry Room: - 2.49m x 1.91m (8'02 x 6'03) - Double glazed window to front aspect, radiator, tiled flooring and smooth coved ceiling. (Potential for laundry/utility room with plumbing in place for appliances).

Kitchen / Diner: - 8.53m x 2.64m (28'00 x 8'08) - Double glazed window to rear aspect, a series of matching base and wall units, roll top work surfaces in solid oak incorporating one and a half bowl sink with central mixer tap and drainer, built-in double oven, induction hob with extractor hood over, integrated fridge/freezer, dishwasher and washing machine, breakfast bar, wall-mounted boiler (in cupboard), walk-in storage/utility cupboard, tiled flooring and smooth coved ceiling with sunken spotlights. French doors onto rear garden.

First Floor Accommodation: -

Landing: - Loft access, airing cupboard, radiator, carpeted flooring and smooth coved ceiling.

Master Bedroom: - 4.42m x 3.15m (14'06 x 10'04) - Double glazed window to front aspect, built-in wardrobes, radiator, carpeted flooring and smooth coved ceiling.

En-Suite: - Velux window to front aspect, enclosed double shower unit, inset WC, vanity wash hand basin, fully tiled, extractor fan, heated towel rail, tiled flooring and smooth ceiling with sunken spotlights.

Bedroom Two: - 3.86m x 3.18m (12'08 x 10'05) - Double glazed window to front aspect, built-in wardrobes, radiator, carpeted flooring and smooth coved ceiling.

Bedroom Three: - 3.15m x 2.51m (10'04 x 8'03) - Double glazed window to rear aspect, radiator, carpeted flooring and smooth coved ceiling.

Bedroom Four: - 3.10m x 2.21m (10'02 x 7'03) - Double glazed window to rear aspect, radiator, carpeted flooring and smooth coved ceiling.

Family Bathroom: - Velux window to rear aspect, panelled bath with central mixer tap and shower over, inset WC, vanity wash hand basin with tiled splash backs, shaver point, extractor fan, heated towel rail, tiled flooring and smooth ceiling with sunken spotlights.

Exterior: -

Rear Garden: - Unoverlooked and generously sized fenced rear garden comprising large patio area extending across property rear with remainder mainly laid to lawn, shrub borders set behind railway sleepers, gated access to driveway and garage.

Home Office / Gym: - 3.91m x 3.58m (12'10 x 11'09) - Adjoining carport and garage with entry via secure composite front door, skylight, loft access, radiator, Amtico flooring and smooth ceiling with sunken spotlights.

Garage, Driveway & Parking: - Detached single garage fitted with power, lighting and up & over door. Adjoining carport with additional driveway parking for a further 2-3 vehicles.

Agents Notes: - Council Tax Band: E

For further information regarding this property, please contact Hamilton Piers.

PROVISIONAL DETAILS - AWAITING VENDORS APPROVAL

Property Ref: 56382_32989840

Share:

Similar Properties

Bridport Way, Kings Park, Braintree, CM7

4 Bedroom Detached House | Guide Price £575,000

Boasting FOUR reception rooms inc. 21' DUAL ASPECT lounge, 15' conservatory & STUDY with WOODLAND VIEWS to front is this...

Brickbarns, Great Leighs, Chelmsford, CM3

4 Bedroom Detached House | Guide Price £575,000

Boasting FOUR reception rooms inc. 17? FAMILY ROOM, study, 17? DUAL ASPECT lounge plus dressing room & TWO EN-SUITES is...

Highclere Road, Great Notley, Braintree

4 Bedroom Detached House | Guide Price £575,000

**SOLD IN 48 HOURS**Benefiting from masses of POTENTIAL TO EXTEND (STPP) with a 56' REAR GARDEN and a detached DOUBLE GA...

Mary Ruck Way, Black Notley, Braintree

6 Bedroom Detached House | Guide Price £585,000

Boasting FOUR EN-SUITES plus family bathroom & d/stairs cloakroom, an impressive 32' RECENTLY REFITTED kitchen/family ro...

Farriers Way, Great Notley, Braintree

5 Bedroom Detached House | Offers Over £600,000

Boasting a 27' kitchen/diner linked by GLASS ATRIUM across rear, a spacious 20' DUAL ASPECT lounge plus OFFICE/PLAYROOM...

Grantham Avenue, Great Notley, Braintree, CM77

5 Bedroom Detached House | Offers in excess of £600,000

Boasting VERSATILE living space throughout inc. 22' GLASS ATRIUM/dining area opening to a spacious 22' lounge, a modern...

Hamilton Piers (Great Notley)

Avenue West, Skyline 120 Business Park, Great Notley, Essex, CM77 7AA

01376341141

How much is your home worth?

Use our short form to request a valuation of your property.

Request a Valuation

Mortgage Calculator

Amount Borrowed: £
Total Amount Repayable: £
Total Monthly Payment: £
©2025 The Guild of Property Professionals. All rights reserved. Terms and Conditions | Privacy Policy | Cookie Policy | Complaints Policy | Members Login
The Guild of Property Professionals Trading Address: 121 Park Lane, London W1K 7AG. GPEA Limited. Registered in England & Wales.  Company No: 02819824.  Registered Office Address: 2 St. Stephen's Court, St. Stephen's Road, Bournemouth, Dorset, England, BH2 6LA.  VAT Registration No: 576 8795 61
Book a Property Valuation Update Cookies Preferences