Woolwich Road, London, SE10

£375,000
SSTC
This property listing is now SSTC

3 Bedroom End of Terrace House for sale in Greenwich

2 3 1
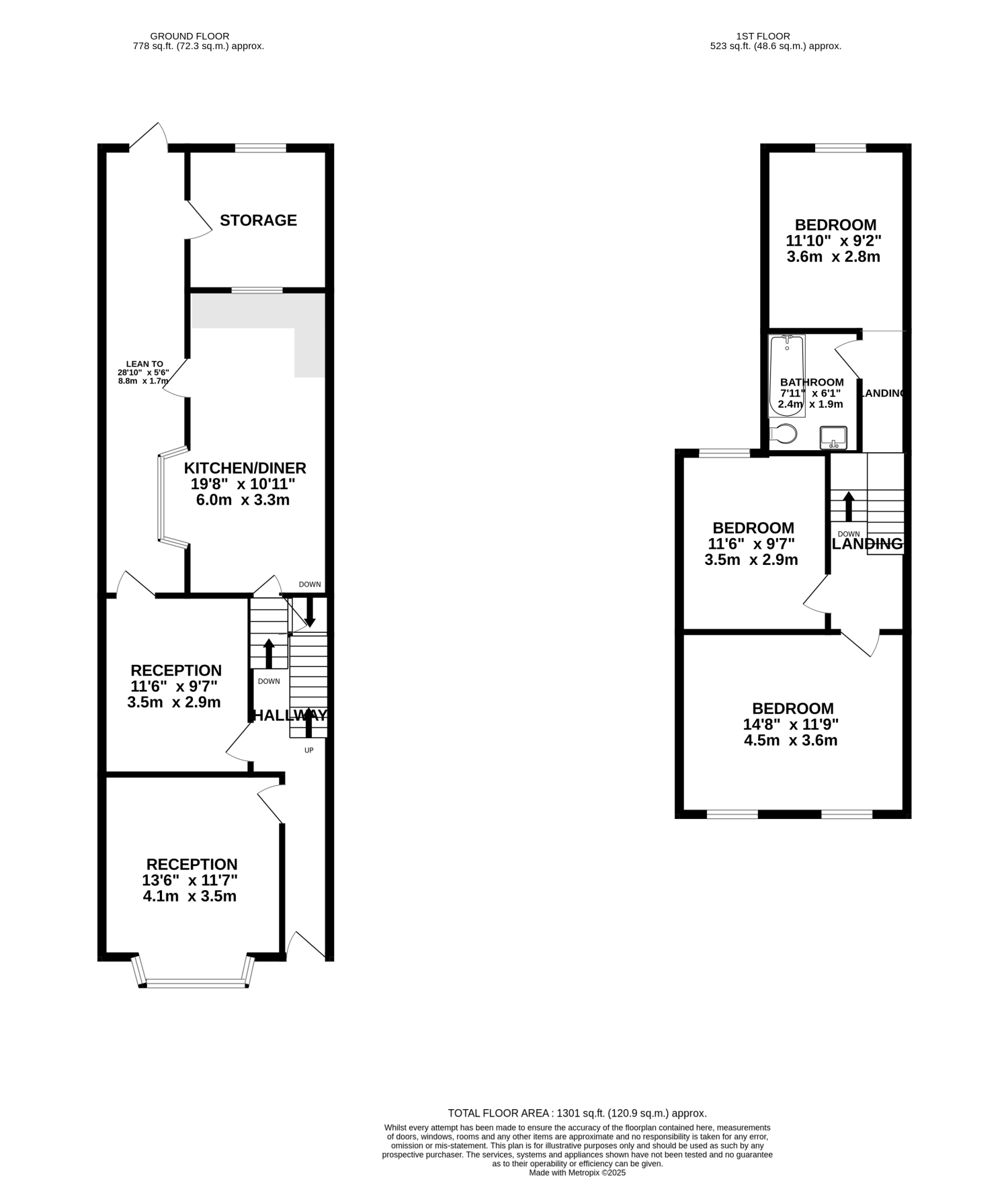
  • Victorian End of Terrace
  • Three Double Bedrooms
  • Two Reception rooms
  • Large Kitchen/Diner
  • Cellar
  • Close to Westcombe Park Station

A fantastic opportunity to acquire this large three-bedroom Victorian end-of-terrace house, brimming with potential and awaiting complete modernisation.
Offering generous room proportions and classic period features, this property provides an ideal blank canvas for buyers looking to create a bespoke family home or investment project.
Located in a desirable residential area, the property benefits from a prominent end-of-terrace position and offers scope for extension or reconfiguration (subject to the usual consents).
Early viewing is strongly recommended for those seeking a renovation project with real potential.
Contact us today to arrange your viewing.

Property Ref: 514475_10704421

Share:

Similar Properties

Avocet Mews, London, SE28

2 Bedroom Terraced House | £375,000

HI Residential is delighted to present this lovely two double bedroom terraced house, ideally situated in the highly sou...

Schoolhouse Yard, Bloomfield Road, London, Greater London, SE18

3 Bedroom Apartment | Fixed Price £372,500

3-Bedroom School Conversion Flat – School House Yard, Bloomfield Road, SE18

Sladedale Road, Plumstead, SE18

2 Bedroom Terraced House | Guide Price £370,000

Guide Price £370,000 - £390,000. If you're looking for exceptional value, this delightful Victorian 'Cottage' is a must-...

Walmer Terrace, Woolwich, SE18

3 Bedroom End of Terrace House | £385,000

Three-Bedroom Terraced Home in Prime Woolwich Location – No Onward Chain

Whimbrel Close, Thamesmead, SE28 8HX

2 Bedroom End of Terrace House | £385,000

Nestled in a charming cul-de-sac, this three-bedroom home offers a fantastic blend of comfort, convenience, and scenic s...

Birkdale Road, Abbey Wood, SE2 9HU

3 Bedroom Semi-Detached House | Guide Price £390,000

Guide Price £390,000 - £410,000. "No Onward Chain! This charming 3-bedroom semi-detached family home is ideally situated...

hi-residential (Plumstead)

Plumstead, London, SE18 3TN

020 8316 6616

How much is your home worth?

Use our short form to request a valuation of your property.

Request a Valuation

Mortgage Calculator

Amount Borrowed: £
Total Amount Repayable: £
Total Monthly Payment: £
©2025 The Guild of Property Professionals. All rights reserved. Terms and Conditions | Privacy Policy | Cookie Policy | Complaints Policy | Members Login
The Guild of Property Professionals Trading Address: 121 Park Lane, London W1K 7AG. GPEA Limited. Registered in England & Wales.  Company No: 02819824.  Registered Office Address: 2 St. Stephen's Court, St. Stephen's Road, Bournemouth, Dorset, England, BH2 6LA.  VAT Registration No: 576 8795 61
Book a Property Valuation Update Cookies Preferences